Lunteveien 26B
2 190 000 kr
78 m²
1 soverom
Solgt

Presenteres av
Amir Pedersen-Paydar Mineberget
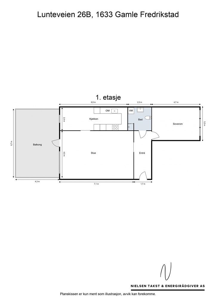
Stor og gjennomgående 2-roms andelsleilighet med trappefri adkomst. Vestvendt terrasse med sol fra ettermiddag til kveld
Prisantydning
2 190 000 krAndel fellesgjeld
389 682 krOmkostninger
19 252 krTotalpris
2 598 934 kr
Pris
Bruksareal
85 m²BRA-I (internt bruksareal)
78 m²BRA-E (eksternt bruksareal)
7 m²TBA (terrasse-balkongareal)
29 m²
Areal
Etasje
1Byggeår
1981Soverom
1 soveromBad
1 badType
AndelsleilighetEierform
AndelFellesutgifter
6 281 krEnergimerke
Rød F
Nøkkelinfo
Unngå doble boligrenter
Vi tilbyr gunstig forsikring.
Vurderer du utleie?
Få et tilbud fra Utleie KrogsveenHva koster lånet?
Sjekk estimert lånekostnadBeskrivelse
Kort om eiendommen
Stor og gjennomgående to-roms andelsleilighet på Mineberget
- I første etasje, med trappefri og meget enkel adkomst
- Generøst uteareal; vestvendt terrasse på 29 kvm. - solfylt fra ettermiddag til kveld sommerstid
- Kjøkken oppgradert med ny innredning i 2015
- Bad fra byggeåret med oppgraderingsbehov
- Skyvedørsgarderobe i både entré og soverom
- Romslig bod i felles kjeller
- Mulighet for leie av biloppstillingsplass - tildeles etter intern venteliste
- Kort gangavstand til barne- og ungdomsskole samt aktivitetstilbud
- Bredt kollektivtilbud i nærområdet, inkludert gratis by-ferge til sentrum
- Praktisk nærhet til togstasjonen - reell pendlemulighet til hovedstaden
Område
Legg til steder som er viktige for deg
På flyttefot? Tenk kjøp og salg samtidig.
Få din egen rådgiver gjennom hele kjøps- og salgsprosessen. Det starter med en verdivurdering.
Unngå doble boligrenter
Vi tilbyr gunstig forsikring.
Vurderer du utleie?
Få et tilbud fra Utleie KrogsveenHva koster lånet?
Sjekk estimert lånekostnadVil du varsles om lignende boliger?
Ved å lagre ditt boligsøk hos oss får du beskjed når vi har en bolig som ligner denne, før den legges ut på markedet!
På flyttefot? Slik gjør vi det enklere for deg
Skreddersydd flyttepakke
Vi fikser håndverkere, vask, pakking, lagring og transport, og legger ut for utgiftene underveis.
Hjelp med både kjøp og salg
Hos oss har du din egen rådgiver gjennom hele kjøps- og salgsprosessen.
Hjelp til finansiering
Vårt samarbeid med BN Bank sikrer deg rask og løsningsorientert hjelp, til konkurransedyktige betingelser.

