Kristian Auberts vei 48A
6 150 000 kr
75 m²
2 soverom
Komplett salgsoppgave

Røa
Røa: 3-roms andelsleilighet med 2 uteplasser og gode solforhold. | Ingen fellesgjeld. | Kort vei til T-bane og sentrum.
Prisantydning
6 150 000 krOmkostninger
11 040 krTotalpris
6 161 040 kr
Pris
Bruksareal
81 m²BRA-I (internt bruksareal)
75 m²BRA-E (eksternt bruksareal)
6 m²TBA (terrasse-balkongareal)
29 m²
Areal
Etasje
1Byggeår
1990Soverom
2 soveromBad
1 badType
AndelsleilighetEierform
AndelFasiliteter
Garasje/P-plass, Heis og Balkong/TerrasseFellesutgifter
4 369 kr
Nøkkelinfo
Unngå doble boligrenter
Vi tilbyr gunstig forsikring.
Vurderer du utleie?
Få et tilbud fra Utleie KrogsveenHva koster lånet?
Sjekk estimert lånekostnadBeskrivelse
Kort om eiendommen
Innhold og byggemåte
Innhold og byggemåte
Eiendommen
Kristian Auberts vei 48A, 0760 OSLO
Kommunenummer 301, gårdsnummer 12, bruksnummer 375, ideell andel 1/1
Andelsnummer 7, Melumbakken Borettslag, organisasjonsnummer 956664381
Innhold
Totalt bruksareal BRA: 81 kvm
BRA-i:
Leilighet:
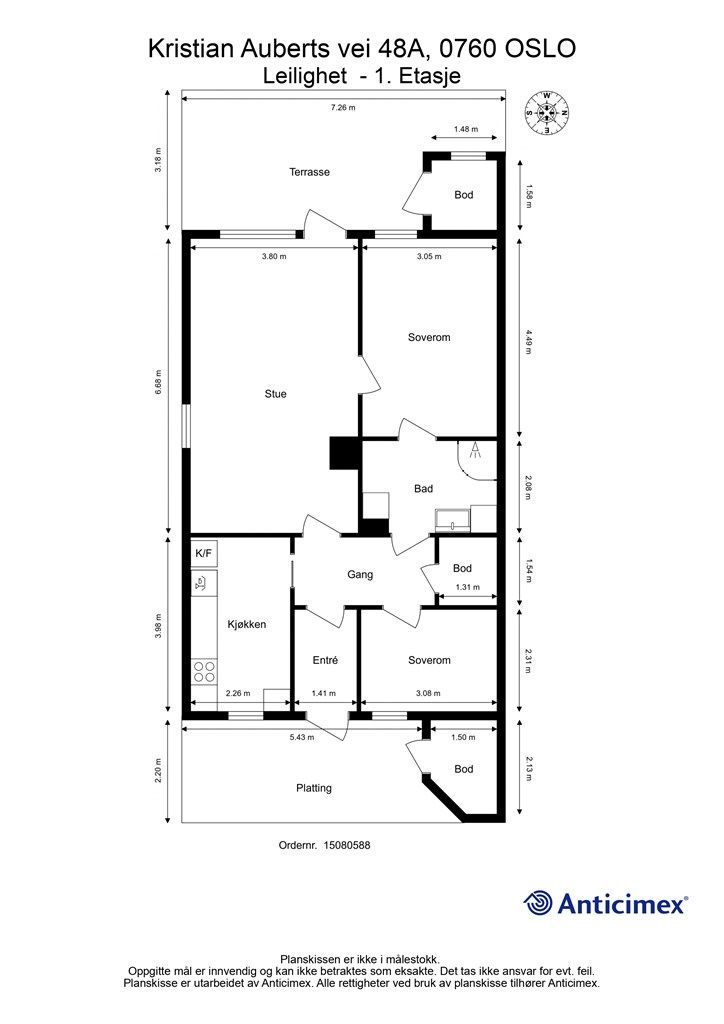
1. etasje 75 kvm: Entré, gang, bod, kjøkken, stue, bad og to soverom.
BRA-e:
1. etasje 6 kvm: To utvendige boder.
Åpent areal:
1. etasje 29 kvm: Terrasse og platting.
Det gjøres oppmerksom på at boligens eksterne boder tilhører borettslagets fellesareal, og at boden således ikke eies av den enkelte andelseier. Dette medfører at borettslaget i fellesskap beslutter bruken, og at man ikke selv har eierrett og rettsvern for boden. Borettslaget kan ved vedtak beslutte annet bruk av fellesarealet og disponering av bodarealet kan dermed opphøre.
Vedlagte plantegninger er ikke målbare. De oppgitte arealer er hentet fra rapport med befaringsdato 23.03.2026 utført av Anticimex AS v/John O. Ljungblom. Arealene er beregnet og rom er definert etter dagens faktiske bruk, uavhengig av hva som er godkjent av bygningsmyndighetene.
Byggemåte
Selger har innhentet en tilstandsrapport av boligen/eiendommen. Dersom det er registrert avvik, er disse klassifisert med tilstandsgrader (TGIU, TG2 og/eller TG3). Kjøper overtar ansvaret for de opplysninger som fremkommer av salgsdokumentasjonen, og kan ikke gjøre gjeldende som mangel noe som burde vært kjent eller som ikke kan anses å ha betydning for avtalen.
Bygningen er iht. tilstandsrapport en andelsleilighet i et leilighetsbygg oppført i 1990. Grunnmur og bærende konstruksjoner er i hovedsak av betong, og bygget er oppført med parkeringsanlegg i nederste etasje. Yttervegger er av trekonstruksjoner med utvendige fasader kledd i liggende trekledning. Etasjeskillere er av betong. Takkonstruksjonen er et saltak i tre som er tekket med takstein. Vinduer er fra byggeår med tre-lags glass og karmer/rammer av treverk. Entrédør med innfelt glassfelt og balkongdør er også fra byggeår. Innvendig er det profilerte innerdører, dører med innfelt glassfelt ved entré og stue mot gang, og en slett skyvedør til kjøkken. Det er en skorstein fra byggeår, men ildsted er ikke installert. Fra stuen er det utgang til en terrasse på 20 m² i betongkonstruksjon med flislagt gulv og rekkverk av tre. Ved inngangspartiet er det en platting på 9 m² i betong.
Det elektriske anlegget har sikringsskap plassert i entré med automatsikringer. Anlegget er vurdert å være fra byggeår, men med enkelte senere oppgraderinger. Varmtvannsbereder er koblet med stikkontakt.
Boligen har godkjent slukkeutstyr og tilstrekkelig med røykvarslere. Det er installert komfyrvakt på kjøkkenet.
Det gjøres spesielt oppmerksom på at følgende bygningsdeler er gitt Tilstandsgrad 3 (TG3) — Store eller alvorlige avvik:
Våtrom - Bad
- Vanntett sjikt / membran i gulv og vegger: Alder på vanntett sjikt er vurdert ut fra alder på sluk som erfaringsmessig tilsier at fremtidig funksjon er svært usikker (gjelder for produkter/løsninger etablert før år 2000). Konsekvensen er at bygningsdelen erfaringsmessig har risiko for nedsatt funksjon, utettheter eller andre aldersrelaterte problemer. Fornying av tettesjikt krever i de fleste tilfeller tiltak som komplett utskiftning/renovering av våtrom. Bygningsdelen er skjult, så den faktiske tilstanden/dagens tettefunksjon er ukjent. TG3 er satt i henhold til NS 3600.
Terrasse / platting - Terrasse
- Tilstand på rekkverk og overflatematerialer: TG3 gjelder: Det er registrert omfattende bom (hulrom og riss/sprekker i flisfuger) og tegn til løse gulvfliser.
Følgende bygningsdeler er gitt Tilstandsgrad 2 (TG2) — Avvik som kan kreve tiltak:
Våtrom - Bad
- Fallforhold rundt sluk: Det måles 5mm lokalfall over 50cm. Lokalfallet i sluksonen er mindre enn anbefalt.
- Lekkasjesikkerhet: Det måles 8mm høydeforskjell fra topp overflate gulv ved terskel til topp overflate gulv ved sluk. Fallforhold utenfor sluksonen vurderes ikke til å være tilstrekkelig for å lede eventuelt lekkasjevann til sluk, og det er ikke påvist at vanntett sjikt har tilstrekkelig oppkant ved dørterskel mot gang for å kompensere for dette.
- Tettesjiktets tilslutning til sluk: Det observeres rustproblematikk på skruene i klemringen, som vurderes å være som følge av slukets og skruenes alder.
- Vannrør: Vannrør av kobber (og tilhørende komponenter) har en alder som tilsier at fremtidig funksjon er usikker.
- Ventilasjon: Tilluftsspalte eller lignende er ikke etablert.
- Sanitærutstyr og innredning: Innredningen bærer samlet sett preg av slitasje med eksempelvis svelleskader fra fukt, riss i servant og skade på speil.
- Fagmessig utførelse: Det foreligger lite informasjon om arbeidet som er gjort i våtrommet. De deler av utførelsen som lar seg undersøke, bærer ikke preg av faglig god utførelse mtp utførelse av eksempelvis flislegging oppå belegg.
Kjøkken
- Vannrør: Vannrør av kobber (og tilhørende komponenter) har en alder som tilsier at fremtidig funksjon er usikker.
- Innredning: Benkeplate har enkelte synlige hakk og løsnet laminering på ender som vurderes som skader i benkeplatens overflate. Innredningen eksempelvis inni skap under oppvaskkum har slitasje og enkelte skader.
Tekniske anlegg
- Varmtvannsbereder: På bakgrunn av berederens ukjente alder vurderes det at fremtidig funksjon er usikker.
Andre rom
- Overflate vegg: Veggflater bærer preg av aldersrelatert slitasje og har enkelte mindre skader.
- Overflate gulv: Synlige deler av gulvets overflatemateriale bærer preg av slitasje og enkelte skader/gliper ved parkett.
- Innerdører: Dørbladet på skyvedør går treigt i karmen slik at døren ikke kan åpnes og lukkes som normalt. Enkelte innerdører/karmer bærer preg av skader/slitasje.
Etasjeskiller og gulv på grunn
- 1.etasje: På soverom tiliggende bad er det på tilfeldige punkter målt lokale høydeforskjeller opptil 26 mm. På stue er det på tilfeldige punkter målt lokale høydeforskjeller opptil 41 mm. Stikkprøvene som er utført har avdekket vesentlige/merkbare skjevheter. Eksakt årsak er ikke kjent, men det anses som lite sannsynlig at forholdet skyldes strukturelle skader i etasjeskilleren.
Yttervegger inkl. fasader
- Ytterkledning: Det er liten avstand mellom kledningens underkant og terrenget.
- Lufting av ytterkledning: Det er vurdert å være begrenset spalte for lufting og drenering bak ytterkledningen. Det gjøres oppmerksom på at det ikke er observert synlige tegn på at forholdet har ført til skader på dette tidspunkt.
Vinduer og ytterdører
- Vinduer og omramming: TG2 gjelder vinduer fra byggeår. Vinduene har dermed nådd en alder og tilstand der fremtidig funksjon vurderes som usikker.
- Ytterdører og omramming: TG2 gjelder dører fra byggeår. Dørene har dermed nådd en alder og tilstand der fremtidig funksjon vurderes som usikker.
Terrasse / platting - Terrasse
- Konstruksjon og fundamenter: Fundamentene var ikke tilgjengelig for undersøkelser, siden de kun er synlige fra andre boenheter. Tilstanden lot seg derfor ikke kontrollere.
- Tilstand på rekkverk og overflatematerialer: TG2 gjelder: Rekkverkets håndløper viser tegn til slitasje, elde og begynnende fuktskader.
Terrasse / platting - Platting
- Tilstand på rekkverk og overflatematerialer: Overflaten viser tegn til alder/slitasje.
Følgende bygningsdeler er ikke undersøkt (TGIU):
Tekniske anlegg
- Innvendig stakeluke: Innvendig stakeluke er ikke påvist inne i boenheten. Det vurderes at boenheten likevel har tilgjengelige stakepunkter gjennom sluk og øvrige komponenter tilknyttet avløpssystemet, men hvordan disse vil fungere i en faktisk brukssituasjon er ikke kjent. TGIU er valgt fordi fullverdig kontroll av stakemuligheter forutsetter spesialkompetanse på rørsystemer.
- Mekaniske ventilasjonsanlegg: Anlegget er vurdert til å være felles for flere boenheter, og er derfor ikke en del av undersøkelsene i denne rapporten. Funksjonen er vurdert indirekte under andre sjekkpunkter i rapporten.
Ildsteder og skorsteiner
- Skorsteiner inne i boligen: Til informasjon er vurderingen av pipen er begrenset til en visuell kontroll av synlige flater, og omfatter ikke funksjonstesting, aldersvurderinger eller inspeksjon av pipens innside (innvendig pipeløp).
Yttervegger inkl. fasader
- Gnagersikring: Det har ikke vært mulig å kontrollere om alle deler av ytterkledningen er sikret mot inntrekk av gnagere, ettersom det aktuelle inspeksjonsområdet stedvis er skjult av andre bygningsdeler. Det kan derfor ikke bekreftes om gnagersikringen er utført på korrekt måte.
Helse, miljø og sikkerhet
Terrasse / platting - Terrasse
- Rekkverkshøyde og lysåpninger: Rekkverkshøyder, lysåpninger og andre sikkerhetsmessige forhold er kontrollert opp mot dagens gjeldende byggtekniske forskrift, selv om denne ikke har tilbakevirkende kraft. Det registreres følgende: Rekkverkshøyden er under 1,0 meter. Basert på ovennevnte forhold oppfyller ikke rekkverket dagens krav til sikkerhet. Om rekkverket oppfylte kravene som var gjeldende på oppføringstidspunktet eller ikke, er ikke tatt stilling til.
Tilstandsrapporten er inntatt i salgsoppgaven. Rapporten inneholder informasjon om eventuelle avvik og konsekvensen av disse. Dersom det er registrert avvik med TG3, har den bygningssakkyndige i tillegg gitt et anslag på hva det vil koste å utbedre disse. Ettersom kjøper regnes å være kjent med forhold som tydelig fremgår av tilstandsrapporten, oppfordres du til å sette deg grundig inn i rapporten i sin helhet.
Selger beskriver også i egenerklæringsskjema:
Det ble utført oppussing av badet i 2009. Arbeidet ble utført av faglærte, men firma er ikke kjent og det foreligger ikke dokumentasjon på arbeidet.
Moderniseringer og påkostninger
Følgende moderniseringer er foretatt de senere år:
2009:
- Oppgradert bad med nye overflater og ny innredning.
1999:
- Utført elektriske arbeider, inkludert installasjon av flere stikkontakter.
Vedlikeholdshistorikk fellesskapet:
2024:
- Tiltak mot overvann og vannansamlinger (drenering/grøfting).
- Utskifting av fire vinduer og to inngangsdører.
2023:
- Utskifting av elektronisk brannvarslingssystem.
- Oppgradering av internett/TV-system (Telenor).
2021:
- Utskifting av løfteplattform/heis.
- Oppussing av redskapsboden i garasjen med ventilasjon.
Standard
Leilighet i bygning oppført i 1990. Boligen har en eldre standard og et generelt behov for oppgradering og vedlikehold. Badet har et oppgraderingsbehov, og det er registrert vedlikeholdsbehov på terrassen.
KJØKKEN:
Innredning fra byggeår med profilerte fronter og benkeplate i laminat. Nedfelt dobbel oppvaskkum med ett-greps armatur. Fliser mellom benk og overskap. Ventilator under overskap og komfyrvakt. Opplegg for frittstående komfyr, oppvaskmaskin og kjøleskap. Vannrør av kobber.
BAD:
Flislagt gulv med elektrisk gulvvarme og flislagte vegger. Innredning med vegghengt servant, ett-greps armatur og speilskap. Gulvstående toalett. Dusjhjørne med glassvegger. Opplegg for vaskemaskin. Mekanisk avtrekk. Stoppekran er plassert bak inspeksjonsluke. Vannrør av plastlagt kobber. Badet har et oppgraderingsbehov.
Overflater:
Gulv: Parkett i stue og ett soverom. Gulvbelegg i entré, kjøkken og ett soverom. Fliser på bad.
Vegger: Strukturtapet og slette malte flater.
Himling: Slette malte flater.
Lagring:
Leiligheten har en innvendig bod. I tillegg er det to utvendige, uisolerte boder på 3 m² hver. Den ene har adkomst fra plattingen ved inngangspartiet, og den andre fra terrassen.
For fullstendig teknisk informasjon om boligen, se punktet Byggemåte i salgsoppgaven.
Løsøre og tilbehør
Når ikke annet er avtalt, overdras eiendommen med innredninger og utstyr som etter lov, forskrift eller annet offentlig vedtak skal følge med, jf. avhendingsloven. Det samme gjelder varig innredning og utstyr som enten er fastmontert eller er særskilt tilpasset bygningen. Loven inneholder ingen detaljert oversikt over hva som omfattes av «innredning og utstyr», og over hva som skal regnes som «fastmontert eller særskilt tilpasset». Partene kan fritt avtale hva som skal følge eiendommen ved salg. Bransjens liste over løsøre og tilbehør som skal følge med eiendommen, er en del av avtalen mellom kjøper og selger dersom ikke annet er opplyst i salgsoppgaven, kjøper har tatt forbehold i bud eller annen måte er inngått. Er ikke annet avtalt, vil løsøre og tilbehør medfølge slik dette fremkommer av avhendingsloven og bransjens tilbehørsliste inntatt i salgsoppgaven. Følgende medfølger i tillegg: TV-tuner/dekoder/ruter.
Følgende hvitevarer medfølger i salget: kombinert kjøle- og fryseskap, oppvaskmaskin og komfyr. Hvitevarene leveres uten noen form for garantier, utover eventuelle gjenværende leverandørgaranti.
Oppvarming
Oppvarming med elektrisitet via gulvvarme på bad og frittstående panelovn. Ildsted er ikke installert.
Dersom beboelsesrom ikke har vegg- eller fastmonterte varmekilder ved visning, følger dette heller ikke med.
Ferdigattest/brukstillatelse
Det foreligger ferdigattest for nybygg av rekkehus (hus 2) datert 05.12.1990. Denne kan fås ved henvendelse til megler.
Det foreligger i tillegg en ferdigattest datert 16.08.2021 for utskifting av eksisterende løfteplattform med ny heis i bygget.
Det foreligger godkjente byggetegninger fra byggeåret i kommunens arkiv. Tegningene er udatert.
Tegningene er av en slik kvalitet at det ikke har vært mulig å vurdere om dagens planløsning samsvarer med det som er godkjent.
Det er ikke avdekket at rom definert som tilleggsdel (for eksempel bod) benyttes til varig opphold.
Kjøper overtar alt ansvar, kostnad og risiko for dette videre.
Tinglyste heftelser og rettigheter
Utover andel fellesgjeld overdras leiligheten fri for pengeheftelser.
Borettslaget har legalpant for forfalte felleskostnader og andre krav som følger av borettslagsforholdet iht. burettslagsloven § 5-20. Pantet er begrenset oppad til 2G (G = folketrygdens grunnbeløp).
Det er tinglyst følgende servitutter på borettslagets eiendom:
Det er tinglyst 10 servitutter på borettslagets eiendom. Disse omhandler blant annet deleforbud, bestemmelse om bebyggelse, veg, gjerde, vann/kloakkledning, benyttelse, kjellerrom, adkomst og opsjonsrett for kommunen.
Servituttene vil følge eiendommen. Kjøpers bank vil få prioritet etter ovennevnte heftelser og servitutter.
Eventuell adgang til utleie
Andelseier kan ikke uten samtykke fra styret i borettslaget overlate bruken av boligen til andre. Med samtykke kan andelseier overlate boligen til andre i inntil tre år hvis andelseier har bodd i boligen i minst ett av de to siste år. Utleie i andre tilfeller kan godtas ved særlige grunner, jf. burettslagslova § 5-6. Utleie forutsetter at leiligheten har forsvarlige radonverdier. Se også borettslagets vedtekter og konferer megler ved spørsmål.
I henhold til borettslagets vedtekter er bruksoverlating (utleie) ikke tillatt uten styrets samtykke og godkjennelse av leietaker. Korttidsutleie er ikke tillatt for mer enn 30 døgn per år.
Energimerking
Denne boligen er energimerket. På en skala fra A til G, der A er best, har denne boligen oppnådd E (en normalbolig vil gjerne ligge i området C-F). Kopi av energiattest ligger vedlagt i salgsoppgaven eller kan fås ved henvendelse til megler.
Beliggenhet og tomteforhold
Beliggenhet og tomteforhold
Beliggenhet
Med en tilbaketrukket beliggenhet i Kristian Auberts vei har du et ideelt utgangspunkt på Røa. Her kombineres umiddelbar nærhet til Lysakerelvas grønne turstier med gangavstand til alt av servicetilbud i Røa sentrum. Dette er en rolig gate med lite gjennomgangstrafikk, som balanserer det beste fra to verdener.
Hverdagslogistikken er enkel. Røa Torg og Røa Senter ligger kun en kort spasertur unna, med butikker som Coop Mega, Rema 1000, apotek og Vinmonopol. For pendlere er Røa T-banestasjon bare noen minutters gange fra døren, og tar deg effektivt inn til sentrum.
Fritiden kan nytes i nærområdet. Rett ved boligen slynger turstiene seg langs Lysakerelva, perfekt for gåturer, løpeturer eller sykkelturer. Vinterstid er veien kort til Bærumsmarka og Nordmarka med preparerte skiløyper. For organiserte aktiviteter finnes Røa kunstgressbane og flere treningssentre som SATS og EVO i nærheten.
Beskrivelse av tomt
Eiertomt på 3754 kvm som tilhører borettslaget. Fellesarealene er opparbeidet med asfalterte veier, trær og diverse beplantning.
Parkering
Ingen garasje/parkeringsplass tilhører leiligheten, men borettslaget har totalt 15 parkeringsplasser, fordelt på 4 i åpent og 11 i lukket/låst garasjeanlegg. Plassene tildeles (leies) etter ansiennitetsprinsippet basert på meldt behov til styret, hvor overtagelsesdato regnes som ansiennitetsdato. Fremleie er ikke tillatt, og månedsleie fastsettes av styret.
Borettslaget har kapasitet for el-biler, men den enkelte må selv bekoste godkjent ladeboks, elektriker og utgifter til ladestrøm.
Vei, vann og avløp
Eiendommen har adkomst via privat vei med felles vedlikeholdsansvar for borettslaget. Eiendommen er tilknyttet kommunalt ledningsnett via private stikkledninger. Borettslaget er ansvarlig for private stikkledninger til bygningen.
Regulerings-og arealplaner
Eiendommen er regulert til byggeområde for boliger med tilhørende anlegg (eldreboliger) i henhold til reguleringsplan S-2897, vedtatt 21.01.1987. Planen ble endret gjennom en bebyggelsesplan (sak 96/89), vedtatt 07.03.1989, med tilhørende reguleringsbestemmelser.
Bestemmelsene tillater konsentrert småhusbebyggelse med en utnyttelsesgrad på maks 0,3. Bebyggelsen skal ikke overstige 2 etasjer, og det skal opparbeides 1,1 biloppstillingsplass per boligenhet.
Det er per d.d. ingen kjente pågående plan- eller byggesaker med direkte innvirkning på eiendommen.
Opplistingen er ikke uttømmende og interessenter bes sette seg inn i planinnsyn på Oslo Kommune sine hjemmesider.
Utsnitt av plan med tilhørende bestemmelser kan fås ved henvendelse til megler.
Økonomi
Økonomi
Boligens kostnader
Felleskostnadene er kr 4 369,- pr. mnd. og inkluderer: kabel-tv og bredbånd fra Telenor.
Det er vedtatt et låneopptak på inntil kr 4 500 000,- for vedlikehold av tak. Låneopptaket vil skje i løpet av vår/sommer 2026. Dette vil medføre økte felleskostnader. For denne andelen er den månedlige økningen anslått til kr 1 204,-.
Felleskostnadene justeres normalt en til to ganger årlig i forhold til borettslagets faktiske utgifter.
Boligen er tilknyttet Telenor som leverandør av kabel-tv og internett. Tv-tuner/dekoder/ruter følger med salget.
Utgiftene er basert på nåværende eiers forbruk. Kjøper må selv tegne innboforsikring.
Kommunale utgifter
Kommunale avgifter faktureres borettslaget og er dekket gjennom de månedlige felleskostnadene.
Formuesverdi
Formuesverdi for 2024 var kr 1.684.441,- ifølge selgers skattemelding/Skatteetaten. Beløpet forutsetter at eier bor fast i boligen (primærbolig).
Ved eventuell øvrig bruk av eiendommen (f.eks. fritidsbolig, pendlerbolig, utleieobjekt) var formuesverdien for 2024 kr 6.737.765,-.
Fra 2026 har Stortinget vedtatt en oppdatert modell for beregning av formuesverdi for primærbolig, så avvik kan forekomme.
For mer informasjon se skatteetaten.no
Opplysninger om fellesgjeld
Andel formue er kr 32 293,- pr. 2025.
Andel fellesgjeld er kr 0,- pr. 24.03.2026.
Total fellesgjeld for borettslaget er kr 0,- pr. 24.03.2026.
Det er pr. 24.03.2026 ingen lån registrert på selskapet.
Omkostninger
6 150 000,00 Prisantydning
Omkostninger
9 950,00 Gjensidige Boligkjøperpakke* (valgfritt)
545,00 Tinglysing hjemmel
545,00 Tinglysing panterettsdokument
--------------------------------------------------------
1 090,00 (Omkostninger totalt (uten Gjensidige Boligkjøperpakke))
11 040,00 Omkostninger totalt (med Gjensidige Boligkjøperpakke))
--------------------------------------------------------
6 151 090,00 Totalpris inkl. omkostninger
6 161 040,00 Totalpris inkl. omkostninger (med Gjensidige Boligkjøperpakke)
--------------------------------------------------------
Annen viktig informasjon
Annen viktig informasjon
Eier
Harald Iwe
Informasjon om borettslaget
Leiligheten er tilknyttet Melumbakken Borettslag.
- Borettslaget består av 22 andeler fordelt på 3 bygninger.
- Forretningsfører er OSLO OG OMEGN BOLIGFORVALTNING AS.
- Borettslaget er forsikret i If Skadeforsikring NUF, polisenr. SP561668.
- Kun fysiske personer kan være andelseiere, og hver andelseier kan kun eie én andel. Det er et alderskrav på 55 år, men styret kan i særlige tilfeller fravike dette.
Dyrehold av hund og katt krever forhåndsgodkjenning fra styret.
Elektrisk grill eller gassgrill er tillatt på balkongen.
Borettslaget har avtale med firma for hagestell og snøbrøyting.
Andelseier har vedlikeholdsplikt for egen bolig, inkludert innvendige flater og balkongens innside.
Borettslaget har en løfteplattform med tilgang til alle leiligheter. Hver leilighet disponerer en bod.
Montering av utstyr som berører fasaden, slik som markiser og utelamper, må forhåndsgodkjennes av styret. Det er ikke tillatt å montere egne antenner eller varmepumper. Røyking er ikke tillatt i fellesområdene. Oppgraderinger i boligen som berører vann, strøm eller ventilasjon, må avklares med styret.
På generalforsamlingen 05.05.2025 ble det blant annet vedtatt følgende:
- Låneopptak på inntil kr 4 500 000 for vedlikehold av tak. Dette vil medføre en økning i felleskostnadene på ca. kr 1 204 per måned for denne andelen fra lånet tas opp i løpet av vår/sommer 2026.
- Inngå avtale med OPAK for utarbeidelse av tilstandsvurdering og vedlikeholdsplan.
- Etablering av seks branndetektorer i garasjer, redskapsbod og søppelrom.
Megler har kopi av budsjett for 2025 og årsregnskap for 2024. Dette kan interessenter få oversendt. Årsresultat for 2024 var et overskudd på kr 25 842,-. Borettslagets disponible midler per 31.12.2024 var kr 599 494,-.
I henhold til borettslagets vedtekter må kjøper godkjennes av styret som ny andelseier. Det er kjøpers ansvar at styregodkjenning blir gitt, men styret kan ikke nekte godkjenning uten saklig grunn. Iht. burettslagslova kan man bare eie en andel i borettslaget. Kun fysiske personer kan være andelseiere.
Det er ikke forkjøpsrett i borettslaget.
For å dekke eventuell manglende innbetaling av felleskostnader har borettslaget panterett i den enkelte andel foran alle andre panthavere med et beløp tilsvarende to ganger folketrygdens grunnbeløp (2G). Borettslaget er ikke tilknyttet en sikringsordning som dekker tap ved manglende innbetaling av felleskostnader.
Dokumenter for borettslaget kan fås ved henvendelse til megler.
Hvitvaskingsreglene
I henhold til lov om hvitvasking og terrorfinansiering har megler plikt til å gjennomføre kontrolltiltak overfor kunder, herunder fullmektiger. Dette innebærer bl.a. å bekrefte kunders og reelle rettighetshaveres identitet på bakgrunn av fremvist gyldig legitimasjon eller på annen godkjent måte, samt å innhente opplysninger om kundeforholdets formål og tilsiktede art.
Dersom slike kundetiltak ikke kan gjennomføres, kan megler ikke etablere kundeforholdet eller utføre transaksjonen.
Hvis kjøper ikke bidrar til gjennomføring av kundekontrollen og dette fører til at transaksjonen blir forsinket eller ikke kan gjennomføres, vil dette ansees som mislighold av avtalen og gi selger rettigheter etter avhendingslova kapittel 5. I tilfeller der selger ikke bidrar til gjennomføring av løpende kundekontroll underveis i oppdraget, er det selger som misligholder sine forpliktelser etter avtalen og gi kjøper rettigheter etter avhendingslovens kapittel 4. Partene er selv ansvarlige for eventuelle kostnader og ansvar dette kan medføre. Eiendomsmegleren eller eiendomsmeglingsforetaket kan ikke holdes ansvarlig for de konsekvenser dette vil kunne få for partene eller andre som har interesser i eiendomshandelen.
Kjøper oppfordres til å innbetale kjøpesummen som ikke kommer fra låneinstitusjon i én samlet innbetaling fra egen konto i norsk bank. Megler har plikt til å melde fra til Økokrim om eiendomshandler som fremstår som mistenkelige. Melding sendes Økokrim uten at partene varsles.
Personopplysningsloven
I henhold til personopplysningsloven gjør vi oppmerksom på at interessenter kan bli registrert for videre oppfølging.
Meglers vederlag
Vi er opptatt av verdiskapning, og har knyttet til oss samarbeidspartnere som skal sikre våre kunder de beste produkter og tjenester;
• I forbindelse med forberedelse av salget, innhenter vi informasjon om eiendommen hovedsakelig fra vår samarbeidspartner Ambita.
• Gjensidige leverer boligselgerforsikring og tilbyr bygningsforsikring
• Boligkjøperforsikring leveres av Hiscox og med Sedgwick som skadebehandler, og er formidlet gjennom Gjensidige.
• BN bank tilbyr finansieringsløsninger
• Vår avdeling Krogsveen Pluss tilbyr flyttetjenester som utvask, visningsvask, lager, tømming og transport av flyttelass, i tillegg til å formidle kontakt med Flip for overflateoppussing.
• I forbindelse med overtagelse av eiendommen tilbyr Overo avtale om strøm, alarm og bredbånd.
• Krogsveen er, sammen med øvrige bransjeaktører, medeier i Bomega AS som tilbyr den digitale annonseringsplattformen Hjem.
Opplysninger om oppdraget
Oppdragsnummer 48-0013/26
Eiendomsmegler Krogsveen AS, avd. Røa
Vækerøveien 193 A, 0751, OSLO
950 007 613
Oppdragets KR-kode KR48.2613
Dato
Sist oppdatert: 14. april 2026 kl. 18:36
Dokumenter
Dokumenter
PDF – 914 KB
PDF – 166 KB
PDF – 10 MB
PDF – 312 KB
PDF – 29 KB
PDF – 127 KB
PDF – 392 KB
Område
Legg til steder som er viktige for deg
Visning
Det er ingen planlagte visninger. Meld deg på for å avtale en tid som passer.
Lurer du på noe?
Unngå doble boligrenter
Vi tilbyr gunstig forsikring.
Vurderer du utleie?
Få et tilbud fra Utleie KrogsveenHva koster lånet?
Sjekk estimert lånekostnadVil du varsles om lignende boliger?
Ved å lagre ditt boligsøk hos oss får du beskjed når vi har en bolig som ligner denne, før den legges ut på markedet!

