Sondrevegen 2C
10 500 000 kr
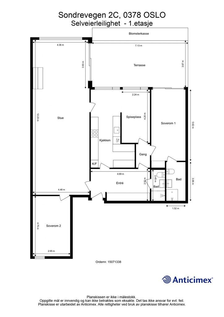
137 m²
2 soverom
Solgt

Ullern
Usjenert og flott terrasseleilighet. Stor terrasse og fantastisk utsikt. Oppussingsobjekt med stort potensial. Garasje.
Prisantydning
10 500 000 krOmkostninger
274 540 krTotalpris
10 774 540 kr
Pris
Bruksareal
148 m²BRA-I (internt bruksareal)
137 m²BRA-E (eksternt bruksareal)
11 m²TBA (terrasse-balkongareal)
26 m²
Areal
Etasje
3Byggeår
1971Soverom
2 soveromBad
2 badType
EierleilighetEierform
EierseksjonFasiliteter
Garasje/P-plass og Balkong/TerrasseFellesutgifter
4 237 krEnergimerke
Rød E
Nøkkelinfo
Unngå doble boligrenter
Vi tilbyr gunstig forsikring.
Vurderer du utleie?
Få et tilbud fra Utleie KrogsveenHva koster lånet?
Sjekk estimert lånekostnadBeskrivelse
Kort om eiendommen
Velkommen til Sondrevegen 2 C!
Her kan du skape ditt eget drømmehjem. Terrasseleiligheten har kanskje en av de fineste beliggenhetene i sameiet med en helt fantastisk utsikt mot fjorden. Det er behov modernisering da leiligheten ikke er pusset opp på mange år.
Gjennomgående planløsning. Store vinduer gir leiligheten godt med lys.
- Peis i stuen
- Garasjeplass
- To store skyvedører ut til terrassen
- Terrasse på hele 26 kvm med fantastisk utsikt
- Godt med lagringsplass. To eksterne boder
- Leiligheten ligger plassert med inngang rett inn fra inngangsparti. Kun et trappetrinn opp.
Område
Legg til steder som er viktige for deg
På flyttefot? Tenk kjøp og salg samtidig.
Få din egen rådgiver gjennom hele kjøps- og salgsprosessen. Det starter med en verdivurdering.
Unngå doble boligrenter
Vi tilbyr gunstig forsikring.
Vurderer du utleie?
Få et tilbud fra Utleie KrogsveenHva koster lånet?
Sjekk estimert lånekostnadVil du varsles om lignende boliger?
Ved å lagre ditt boligsøk hos oss får du beskjed når vi har en bolig som ligner denne, før den legges ut på markedet!

