Ortustranden 27
3 190 000 kr
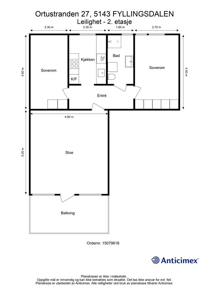
71 m²
2 soverom
Solgt
Fyllingsdalen
Lys og trivelig 3-roms med vestvendt altan og flott utsikt! Bad fra 2022 i regi av brl. Kort vei til Oasen og Bybanen.
Prisantydning
3 190 000 krAndel fellesgjeld
543 162 krOmkostninger
19 252 krTotalpris
3 752 414 kr
Pris
Bruksareal
78 m²BRA-I (internt bruksareal)
71 m²BRA-E (eksternt bruksareal)
7 m²
Areal
Etasje
2Byggeår
1967Soverom
2 soveromBad
1 badType
AndelsleilighetEierform
AndelFasiliteter
Balkong/TerrasseFellesutgifter
7 428 krEnergimerke
Lysegrønn C
Nøkkelinfo
Unngå doble boligrenter
Vi tilbyr gunstig forsikring.
Vurderer du utleie?
Få et tilbud fra Utleie KrogsveenHva koster lånet?
Sjekk estimert lånekostnadBeskrivelse
Kort om eiendommen
Velkommen til en lys og trivelig leilighet med vestvendt altan og gode solforhold! Her bor du svært sentralt, med en praktisk og gjennomtenkt planløsning. Leiligheten ligger i et etablert og populært område, kun et steinkast fra Oasen Senter, hvor du finner alt fra dagligvarebutikker og legekontor til klesbutikker, restauranter, kafeer og treningssenter. Bybanen, bussforbindelser og sykkeltunnelen er også like i nærheten.
Høydepunkter:
Vestvendt balkong med fin utsikt og lite innsyn fra nærliggende bebyggelse
Gode solforhold
Bad renovert i regi av borettslaget 2022
Attraktiv og sentral beliggenhet i Fyllingsdalen
Sentralvarme og varmtvann inkludert i felleskostnadene
Gangavstand til buss som tar deg til Bergen Sentrum på under 10 min, samt bybanen
Område
Legg til steder som er viktige for deg
På flyttefot? Tenk kjøp og salg samtidig.
Få din egen rådgiver gjennom hele kjøps- og salgsprosessen. Det starter med en verdivurdering.
Unngå doble boligrenter
Vi tilbyr gunstig forsikring.
Vurderer du utleie?
Få et tilbud fra Utleie KrogsveenHva koster lånet?
Sjekk estimert lånekostnadVil du varsles om lignende boliger?
Ved å lagre ditt boligsøk hos oss får du beskjed når vi har en bolig som ligner denne, før den legges ut på markedet!
På flyttefot? Slik gjør vi det enklere for deg
Skreddersydd flyttepakke
Vi fikser håndverkere, vask, pakking, lagring og transport, og legger ut for utgiftene underveis.
Hjelp med både kjøp og salg
Hos oss har du din egen rådgiver gjennom hele kjøps- og salgsprosessen.
Hjelp til finansiering
Vårt samarbeid med BN Bank sikrer deg rask og løsningsorientert hjelp, til konkurransedyktige betingelser.

































