Lahellestien 4
1 925 000 kr
56 m²
2 soverom
Solgt

Lahelle/Sjuveenga
Særdeles populært beliggende eierleilighet med umiddelbar nærhet til sjø og badestrand - Fantastiske turområder
Prisantydning
1 925 000 krOmkostninger
59 160 krTotalpris
1 984 160 kr
Pris
Bruksareal
72 m²BRA-I (internt bruksareal)
56 m²BRA-E (eksternt bruksareal)
16 m²TBA (terrasse-balkongareal)
34 m²
Areal
Etasje
1Byggeår
1953Soverom
2 soveromBad
1 badType
EierleilighetEierform
EierseksjonFasiliteter
Balkong/TerrasseEnergimerke
Oransje G
Nøkkelinfo
Unngå doble boligrenter
Vi tilbyr gunstig forsikring.
Vurderer du utleie?
Få et tilbud fra Utleie KrogsveenHva koster lånet?
Sjekk estimert lånekostnadBeskrivelse
Kort om eiendommen
Velkommen til idylliske Lahelle!
Leiligheten har en særdeles fin beliggenhet på Lahelle, og ligger fint tilbaketrukket i en sjarmerende gate med lite trafikk og støy.
Sameiet har en romslig tomt med rikelig plenareal, og her er det plass til lek og moro for store og små.
Leiligheten holder en enkel standard, og har behov for fremtidig vedlikehold og oppgradering/oppussing for å kunne oppnå en nåtidens ønsket standard.
Nåværende eier har leid ut leiligheten de senere år, og leiligheten har vært et kurant utleieobjekt.
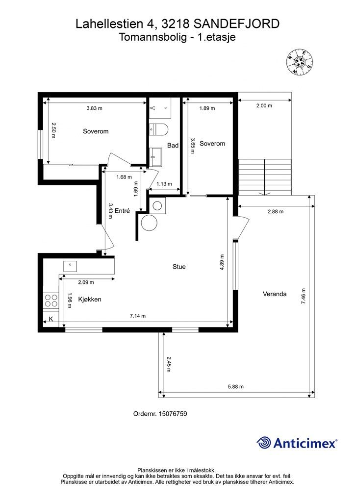
Lahellestien 4 har en praktisk planløsning med alt på en flate, hvor av 2 soverom samt åpen stue kjøkken løsning med godt lysinnslipp fra flere vinduer.
Det er rikelig med bodplass i kjelleren, samt vaskerom.
Område
Legg til steder som er viktige for deg
På flyttefot? Tenk kjøp og salg samtidig.
Få din egen rådgiver gjennom hele kjøps- og salgsprosessen. Det starter med en verdivurdering.
Unngå doble boligrenter
Vi tilbyr gunstig forsikring.
Vurderer du utleie?
Få et tilbud fra Utleie KrogsveenHva koster lånet?
Sjekk estimert lånekostnadVil du varsles om lignende boliger?
Ved å lagre ditt boligsøk hos oss får du beskjed når vi har en bolig som ligner denne, før den legges ut på markedet!

