Slottetkollen 6C
4 800 000 kr
137 m²
5 soverom
Solgt

Slottet/Garder
Moderne innholdsrik enebolig omgitt av vakker natur, beliggende i naturskjønne omgivelser på Slottet/Garder.
Prisantydning
4 800 000 krOmkostninger
140 990 krTotalpris
4 940 990 kr
Pris
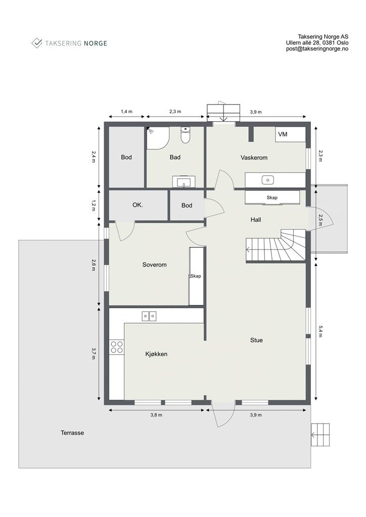
Bruksareal
142 m²BRA-I (internt bruksareal)
137 m²BRA-E (eksternt bruksareal)
5 m²TBA (terrasse-balkongareal)
49 m²
Areal
Byggeår
2022Soverom
5 soveromBad
1 badTomteareal
827 m² (eiet)Type
Enebolig - FrittliggendeEierform
EietFasiliteter
Balkong/TerrasseEnergimerke
Oransje B
Nøkkelinfo
Unngå doble boligrenter
Vi tilbyr gunstig forsikring.
Vurderer du utleie?
Få et tilbud fra Utleie KrogsveenHva koster lånet?
Sjekk estimert lånekostnadDette liker selger best ved boligen
Gode solforhold, stille og rolig område. Kort vei til skog og turmuligheter. Stor terrasse rundt huset. Flat og fin opparbeidet hage med gressplen, tujaer og blomsterbed. Mulighet for garasje. Forholdvis nytt hus med garanti. Mange soverom. Gode lagringsmuligheter. Energivennlig varmepumpe (luft til vann)
Beskrivelse
Kort om eiendommen
Her kan du våkne til fuglekvitter, nyte solrike dager i rolige og idylliske omgivelser.
Boligen har god standard og et lekkert interiør. Med sine to etasjer og familievennlig planløsning tilbyr hjemmet rom for mange med bl.a. 5 soverom. 1 stort bad og et bad som er tilrettelagt for ombygging til et ekstra bad. I tillegg får du et praktisk vaskerom og rikelig med lagringsplass i boder.
Eiendommen er pent opparbeidet med grønn gressplen og terrasse som gir plass til avslapning og sosiale sammenkomster.
Område
Legg til steder som er viktige for deg
På flyttefot? Tenk kjøp og salg samtidig.
Få din egen rådgiver gjennom hele kjøps- og salgsprosessen. Det starter med en verdivurdering.
Unngå doble boligrenter
Vi tilbyr gunstig forsikring.
Vurderer du utleie?
Få et tilbud fra Utleie KrogsveenHva koster lånet?
Sjekk estimert lånekostnadVil du varsles om lignende boliger?
Ved å lagre ditt boligsøk hos oss får du beskjed når vi har en bolig som ligner denne, før den legges ut på markedet!

