Hoppøya
8 490 000 kr
53 m²
2 soverom
Komplett salgsoppgave

Hoppøya/Viksfjord
Enestående anledning ytterst i Viksfjord - panoramautsikt og stor eiertomt på hele 7,7 mål - solrikt og meget usjenert
Prisantydning
8 490 000 krOmkostninger
233 240 krTotalpris
8 723 240 kr
Pris
Bruksareal
72 m²BRA-I (internt bruksareal)
53 m²BRA-E (eksternt bruksareal)
19 m²TBA (terrasse-balkongareal)
39 m²
Areal
Etasje
1Byggeår
1966Soverom
2 soveromTomteareal
7 728 m² (eiet)Type
Fritidseiendom ved sjøenEierform
EietEnergimerke
Rød G
Nøkkelinfo
Vurderer du utleie?
Få et tilbud fra Utleie KrogsveenHva koster lånet?
Sjekk estimert lånekostnadBeskrivelse
Kort om eiendommen
Fantastisk mulighet på vakre Hoppøya i Viksfjord - en sjelden perle med panoramautsikt mot havet og Skagerrak.
Velkommen til Hoppøya - en fredelig og ettertraktet øyperle midt i vakre Viksfjord, like utenfor Eftanglandet. Her finner du en sjelden, usjenert fritidseiendom i naturskjønne omgivelser. Hytta er omkranset av stille skog, svaberg og glitrende sjø - med utsikt hele veien ut mot havgapet og mektige Skagerrak. Dette er stedet der du virkelig kan senke skuldrene og kjenne på roen, med ekte skjærgårdsidyll. Hoppøya har i generasjoner vært et sommerparadis.
Hytta byr på et enkelt, men sjarmerende hytteliv i vakre og rolige omgivelser. Fra hytteveggen er det ikke lang vei til sjøen og nydelige badeplasser. Kanskje det perfekte sommerparadiset for den eventyrlystne?
Innhold og byggemåte
Innhold og byggemåte
Eiendommen
Hoppøya, 3280 TJODALYNG
Kommunenummer 3909, gårdsnummer 1118, bruksnummer 4, ideell andel 1/1
Innhold
Totalt bruksareal BRA: 72 kvm
BRA-i:
Hytta:
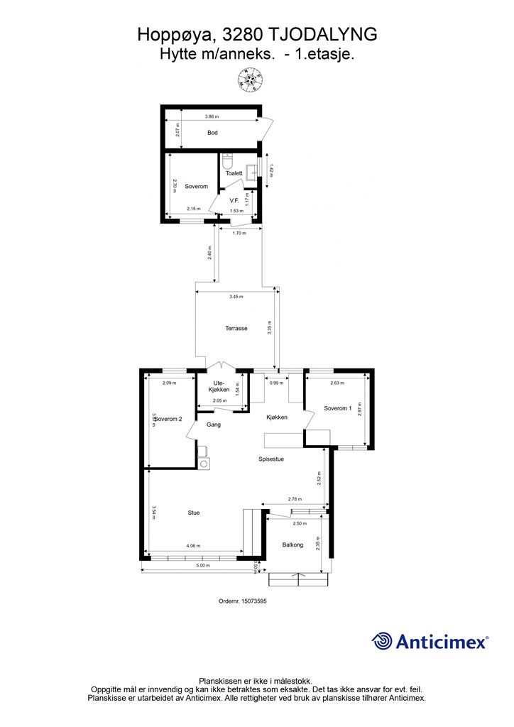
1. etasje 53 kvm: To soverom, gang med åpen løsning mot stue, kjøkken og spisestue.
BRA-e:
Anneks:
1. etasje 19 kvm: Vindfang, toalettrom, soverom og bodrom.
Åpent areal, totalt 39 kvm.
Balkong/terrasse v/stue: Overbygget terrasse 8 kvm.
Platting mellom hovedhytte og anneks: 26 kvm.
Frittliggende platting i terreng: 5 kvm.
Vedlagte plantegninger er ikke målbare. De oppgitte arealer er hentet fra rapport med befaringsdato 08.07.2025 utført av Anticimex Sandefjord AS v/Jon Simonsen. Arealene er beregnet og rom er definert etter dagens faktiske bruk, uavhengig av hva som er godkjent av bygningsmyndighetene. Det opplyses at soverommet i annekset ikke er søkt eller godkjent for varig opphold.
Byggemåte
Selger har innhentet en tilstandsrapport av boligen/eiendommen. Av rapporten fremgår det at flere bygningsdeler har fått tilstandsgrad ikke undersøkt/ikke tilgjengelig for undersøkelse (TG IU), 2 (TG2) og/eller 3 (TG3). Rapporten beskriver også avvik på undersøkte bygningsdeler uten tilstandsgrad. Kjøper overtar ansvaret for de opplysninger som fremkommer av salgsdokumentasjonen, og kan ikke gjøre gjeldende som mangel noe som burde vært kjent eller som ikke kan anses å ha betydning for avtalen.
Bygningen er iht. tilstandsrapporten oppført med grunnmur og søylefundamenter i murkonstruksjon. Etasjeskillere i trekonstrukjsjon. Yttervegger og reisverk i impregnert trekonstruksjon med utvendig liggende kledning i impregnert tre og stein/murfasader. Vinduer er i to-lags glass med karmer og rammer i tre fra byggeår. Vinduer i stue/spisestue mot sydvest samt balkongdør i spisestue med laminert glass og karmer og rammer i aluminium fra år 2017. Ytterdør i trekonstruksjon fra år 2025. Yttertaket har pulttaksform og tekket med sinktekking fra år 2010. Det er ikke innlagt vann eller strøm hytta, men det er montert enn vannsisterne i glassfiber på ca.3000 liter ved annekset.
Annekset er oppført med søylefundamenter i murkonstruksjon. Etasjeskillere i trekonstruksjon. Yttervegger og reisverk i impregnert trekonstruksjon med utvendig liggende kledning i impregnert treverk. Vinduer i to-lags glass med karmer og rammer i tre fra byggeår og fra år 2017. Ytterdør med karmer og rammer i tre fra år 2023. Yttertaket på annekset har pulttaksform og er tekket med folie fra år 2010. Det er montert en servant med avløp til terreng samt ett bio-toalett. Selger opplyser om at utvendig kledning og reisverk på hovedhytta og annekset er i impregnert trevirke (med unntak av deler av reisverk i bodrom). Les for øvrig mer om byggemåte og den tekniske tilstanden i rapporten.
Det gjøres spesielt oppmerksom på:
Følgende bygningsdeler har fått TG2:
- På kjøkken er det ikke mekanisk avtrekk men kun naturlig ventilasjon som fører til redusert avtrekkseffekt. Det er registrert stedvise fuktmerker ved vinduslister som følge av tidligere taklekkasje før omlegging av yttertaket. Skjulte skader kan ikke utelukkes, men det ble ved hjelp av fuktmåler med pigger utført stikkprøvekontroll uten at det ble påvist forhøyede fuktverdier.
- Gulvoverflater i hytta bærer stedvis preg av slitasje. Det registreres stedvise riper/hakk/merker i gulvets overflatemateriale.
- Det er registrert stedvise fuktmerker i himling på soverom 2, på vegg under vindu på soverom 1 og i deler av himling på soverom, samt i deler av himling og vegg i spisestue. Dette er i følge nåværende eier trolig som følge av tidligere taklekkasje før omlegging av yttertaket. Skjulte skader kan ikke utelukkes. Det ble ved hjelp av fuktmåler med pigger utført stikkprøvekontroll uten at det ble påvist forhøyede fuktverdier.
- Selger opplyser om at spjeld på åpen peis er rustet fast i halvveis åpen stilling. Ved store nedbørsmengder bør dette pipeløpet dekkes til med utvendig plate. For å stadfeste omfang av eventuelle tiltak med spjeld bør det gjennomføres ytterligere undersøkelser. Tiltak kan iverksettes dersom behov. Innvendige pipeløp i begge skorsteinene og funksjonalitet er ikke vurdert.
- Målbare skjevheter registrert. Det ble målt en høydeforskjell mellom høyeste og laveste målepunkt på ca. 23 mm i stue/kjøkken og ca. 18 mm på soverom 1. Målingene er foretatt i en eldre bygning og bør ses i den sammenheng. Skjevheter er mer påregnelige i eldre bygninger enn i nye.
- På grunn av begrenset tilkomst under hytta er det ikke utført en fullstendig vurdering av stubbloft og gulvkonstruksjonen for øvrig, og følgelig kan det ikke sies noe om eksakt tilstand på dette. For å kunne stadfeste eksakt tilstand bør det gjennomføres ytterligere undersøkelser. TG 2 er satt for å belyse risiko som følge av begrenset inspeksjonsmulighet.
- Det er stedvis slitasje på overflatebehandlingen på trekeldning. Tiltak med stedvis overflatebehandling bør påregnes. Luftespalte bak kledning er blokkert. Forholdet kan redusere levetiden til kledningen og veggkonstruksjonen. Lufting bør etableres. Det er usikkert om panelet er montert med tilstrekkelig lufting. Manglende lufting kan påvirke panelets levetid negativt. Ytterligere undersøkelser anbefales for å avdekke om lufting er etablert. Eventuelt bør lufting etableres.
- Vinduer som er fra opprinnelig byggeår er av eldre dato og har behov for oppgraderinger på sikt. Det ble også observert fuktighet mellom glassene på vindu på soverom 1. Årsak er ikke kjent.
- Selve takkonstruksjonen (takbjelker etc) er lukket, og det er ikke kjent hvordan denne oppbyggingen er utført. Erfaringsmessig betraktes slike konstruksjoner som risikokonstruksjoner blant annet med tanke på fukt-/kondensproblematikk. Det er ikke observert skader eller symptomer på skader, men skader kan ikke utelukkes. TG2 er valgt for å belyse risiko som følge av ovennevnte.
- Overflatebehandlingen på frittliggende platting er slitt og trenger fornying.
- Terrassen mellom hovedhytta og anneks bærer generelt preg av slitasje i tillegg til stedvise skjevheter/ujevnheter. Utbedrende tiltak/oppgraderinger bør påregnes.
- Synlige søyler/pilarer som danner fundamenter har stedvis skjevheter. Årsak er ikke kjent. Krever oppfølging med jevnlig ettersyn slik at eventuelle tiltak kan iverksettes ved behov. På grunn av begrenset tilkomst under hytten er det derfor ikke utført en fullstendig vurdering av søylefundamenter og følgelig kan det ikke sies noe om eksakt tilstand på alle fundamenter. TG 2 er satt for å belyse risiko som følge av begrenset inspeksjonsmulighet.
- Vannledning fra sisterne og til utekjøkken har ukjent alder og det tilsier at anbefalt brukstid og restlevetid på vannledningen ikke er kjent. TG2 settes for å belyse risiko som følge av ukjent alder og usikker restlevetid.
- Nåværende eier opplyser om at bunnpluggen i vannsisternen ikke holder tett slik at vann vil renne ut. Ytterligere undersøkelser bør påregnes slik at nødvendige tiltak kan iverksettes.
- Det er kun foretatt en forenklet og overordnet vurdering av tilstanden til annekset. I forhold til byggeår vurderes generelt moderat vedlikehold å være tilstrekkelig. I tillegg til ovennevnte er det registert følgende: Luftespalte bak kledning er blokkert. Forholdet kan redusere levetiden til kledningen og veggkonstruksjonen. Lufting bør etableres. Det er usikkert om panelet er montert med tilstrekkelig lufting. Manglende lufting kan påvirke panelets levetid negativt. Ytterligere undersøkelser anbefales for å avdekke om lufting er etablert. Eventuelt bør lufting etableres. Det vinduet som er fra byggeår er av eldre dato og har behov for oppgraderinger. I følge nåværende eier er dette vinduet i tillegg vanskelig og lukke.
Følgende bygningsdeler har fått TG3:
- Rekkverk mangler på den smale delen av balkongen foran stuevinduer og i trapp ned til terreng. Tiltak bør påregnes.
For øvrig slitasje grunnet alder. Se supplerende tekst i tilstandsrapporten om punktene over. Kjøper overtar ansvar og risiko for dette. Tilstandsrapporten er inntatt i salgsoppgaven. Rapporten inneholder informasjon om avvikene og konsekvensen av disse. For avvik som er gitt TG3 har den bygningssakkyndige i tillegg gitt et anslag på hva det vil koste å utbedre disse avvikene. Ettersom kjøper regnes å være kjent med forhold som tydelig fremgår av tilstandsrapporten, oppfordres du til å sette deg grundig inn i rapporten i sin helhet.
Standard
Hytta byr på et enkelt, men sjarmerende hytteliv i vakre og rolige omgivelser. Da hytta ble bygget, ble det lagt vekt på store vindusflater og et design tilpasset naturen og omgivelsene. Det er arkitekt Ola Mørk Sandvik som sto for tegning av hytta i kjent "Bauhaus" stil. Innvendig er hytta klassisk innredet, med overflater bestående for det meste av treverk på gulv og vegger. Dette skaper en lun og varm atmosfære. Kombinert med de store vindusflatene får du tett kontakt med naturen og sjøen utenfor.
Kjøkkenet ligger i åpen løsning mot stuen og spisestuen. Innredningen er fra byggeåret, med slette fronter og benkeplater i laminat. Videre er det montert et frittstående Sunwind gasskjøleskap fra 2024 og en to-bluss gasskomfyr. Det er ikke innlagt vann i hytta, men vann kan hentes fra egen sisterne med oppsamling av regnvann. Det kan også være muligheter for tilknytning til kommunalt sommervann via private stikkledninger og vannlag. Kontakt megler for mer informasjon. Det er kun de nevnte hvitevarene som følger med. Det gjøres oppmerksom på at hvitevarene ble kjøpt for noen år tilbake, og kjøper må forvente slitasje som følge av alder og normal bruk. Ved hyttas inngangsparti mot nord er det også tilrettelagt med et praktisk utekjøkken.
Hyttas bad/toalett er plassert i annekset/uthuset. Her er det montert servant med avløp til terreng, samt et biotoalett i toalettrommet. For øvrig er annekset/uthuset innredet med vindfang, soverom og bod (soverommet er ikke søkt eller godkjent for varig opphold).
Kort oppsummert/diverse oppgradering og påkostninger:
- Utvendig taktekking med sinkplater er fra 2010. Toppen av steinveggvange ble også tekket med sinkbeslag i 2010.
- Takrenner og nedløp i stål fra år 2010.
- Ny ytterdør fra 2025
- Vinduer og balkongdør i stuen/spisestue har karmer av aluminium, og laminerte glass og ble montert i 2017.
- Selger opplyser at det i 2025 ble montert ny røykrørmuffe inn i skorstein med tilhørende murarbeider på pipe ved vedovn (utført av muremester).
- Vinduer på anneks er byggeår og fra år 2017. Ny ytterdør ble montert i 2023.
- Yttertak på anneks ble tekket med ny folie i 2010.
- Muligheter for tilknytning til kommunalt sommervann via private stikkledninger og vannlag. Kontakt megler for mer informasjon.
Løsøre og tilbehør
Vi viser til listen fra Norges Eiendomsmeglerforbund som gjelder fra 01.01.2020, angående løsøre og tilbehør. Videre selges hytta fullt møblert med innbo og løsøre, men følgende medfølger ikke i avtalen: Trekommode, sengebord, krakk og rammeseng på soverom nummer én. Skipskiste i stuen, stueteppe med rombemønster og 2 stk. løpere. Hillerstorp utegruppe i tre (bestående av bord og 2 stoler med tilhørende puter og parasoll med fot). Øvrige affeksjonsgjenstander, som blant annet veggmaleri. Det gjøres også oppmerksom på at boden i annekset, samt lagrede materialer, ikke vil bli ryddet før overtakelsen.
Oppvarming
Vedovn og åpent ildsted/peis i stuen. Det er i dag ikke innlagt strøm. Dersom beboelsesrom ikke har vegg- eller fastmonterte varmekilder ved visning, følger dette heller ikke med. Larvik kommune opplyser at de ikke finner dokumentasjon på registrert ildsted på eiendommen. Dette vil si at det ikke har vært utført tilsyn eller feiing. Kjøper overtar ansvaret for en eventuell registrering, samt eventuelle pålegg/mangler og utbedring av disse ved tilsyn. Det vil tilkomme gebyr ved feiing/tilsyn. Selger opplyser at det i 2025 ble montert ny røykrørmuffe inn i skorstein med tilhørende murarbeider på pipe ved vedovn (utført av muremester).
Ferdigattest/brukstillatelse
Eiendommen har vært brukt til fritidsboligformål siden byggeår. Kommunen opplyser at det ikke foreligger ferdigattest eller midlertidig brukstillatelse for eiendommen. Det finnes av den grunn ikke dokumentasjon over eiendommens lovlighet. Videre så foreligger det søkte og godkjente tegninger av hovedhytta datert 1965. Hytta er oppført i henhold til disse. Annekset på eiendommen er omtalt i den opprinnelige byggesøknaden som uthus og tegnet inn på situasjonskart knyttet til søknaden i 1965, det finnes ingen nøyaktige tegninger av bygningsmassen. Det er dermed ikke kjent hva det er søkt eller godkjent som av Larvik kommune, men det legges til grunn at ett uthus ikke er tiltenkt beboelse. Soverom i uthuset/annekset er dermed ikke søkt eller godkjent for varig opphold. Det er ikke kjent om bryggen er søkt/godkjent av kommunen men det foreligger teninger knyttet til plasseringen av bryggeanlegget nord på øya. Tegningene er ikke datert eller detaljerte. Kjøper overtar alt ansvar, kostnad og risiko for dette videre.
Det gjøres oppmerksom på at det ikke lenger utstedes ferdigattest på tiltak det er søkt om før 1998 jf. plan- og bygningsloven § 21-10. Kommunen vil ikke kreve ferdigattest for disse tiltakene og vil avvise eventuelle søknader. Bestemmelsen innebærer ikke at tiltak med manglende søknad blir lovlige, men at man ikke trenger å avslutte gamle byggesaker. Normalt sett kreves ferdigattest for alle søknadspliktige tiltak som gjøres etter plan- og bygningsloven.
Tinglyste heftelser og rettigheter
Eiendommen overdras fri for pengeheftelser. Det er ingen tinglyste servitutter på eiendommen.
Eiendommen har tinglyst rett til adkomst/ umotorisert ferdsel over hovedbruket med gnr. 1118, bnr. 1 samt rett til å fremføre ledningsanlegg for vannforsyning, avløp og el-kabler over samme gnr./bnr. og frem til hytta. Eiendommen har også rett til å etablere fremtidig bryggeanlegg på gnr. 1118, bnr. 1 i nordvendt bukt rett vest for hytteområde B, denne eiendommen. Hytta har også rett til ferdsel (som nevnt over) fra ny brygge og frem til hytta. Ved oppføring av nytt bryggeanlegg må rett til eksisterende anlegg frafalles. Det gjøres også oppmerksom på at oppføring av ny bygge vil være søknadspliktig ovenfor Larvik kommune. Rettighetene er tinglyst på gnr. 1118, bnr. 1 med dagboknr 153292, tinglyst 01.03.2010. Eiendommen har også rett til parkering ved bryggeanlegget ved Kaupangstranda på gnr. 1012, bnr. 1. Plass nr. 115 medfølger. Retten til parkering gjelder i 50 år, regnet fra 2018. Det skal også betales en årlig avgift for parkering. Avgiften reguleres hver 5. år etter konsumprisindeksen (første gang i 2021).
Det gjøres oppmerksom på at Eli Hannemyr har forkjøpsrett ved dette salget (ikke ved senere omsetning). Frist for å benytte forkjøpsretten er senest 2 måneder etter at hun har mottatt skriftlig beskjed om at eiendommen er solgt. Melding vil bli sendt straks etter salget.
Eventuell adgang til utleie
Eiendommen har ikke separat utleieenhet. Det vil normalt være anledning til utleie av hele eiendommen eller enkeltrom, såfremt utleiearealet er bygningsmessig godkjent for varig opphold og har forsvarlige radonnivåer.
Diverse
Vi er opptatt av verdiskapning, og har knyttet til oss samarbeidspartnere som skal sikre våre kunder de beste produkter og tjenester;
• Gjensidige leverer boligselgerforsikring og tilbyr bygningsforsikring
• Boligkjøperforsikring leveres av Hiscox og med Sedgwick som skadebehandler, og er formidlet gjennom Gjensidige.
• BN bank tilbyr finansieringsløsninger
• Vår avdeling Krogsveen Pluss tilbyr flyttetjenester som utvask, visningsvask, lager, tømming og transport av flyttelass, i tillegg til å formidle kontakt med Flip for overflateoppussing.
• I forbindelse med overtagelse av eiendommen tilbyr Overo avtale om strøm, alarm og bredbånd.
• Krogsveen er, sammen med øvrige bransjeaktører, medeier i den digitale annonseringsplattformen Hjem.
Det blir ikke utført tradisjonell utvask av hytta før overtakelse. Kun enkel "helgevask".
Beliggenhet og tomteforhold
Beliggenhet og tomteforhold
Beliggenhet
Unik sommeridyll på vakre Hoppøya i Viksfjord – en sjelden perle med utsikt mot havet og Skagerrak. Velkommen til Hoppøya – en fredelig og ettertraktet øyperle midt i vakre Viksfjord, like utenfor Eftanglandet. Her finner du en sjelden usjenert fritidseiendom i naturskjønne omgivelser. Hytta er omkranset av stille skog, svaberg og glitrende sjø – med utsikt hele veien ut mot havgapet og mektige Skagerrak. Dette er stedet der du virkelig kan senke skuldrene og kjenne på roen med ekte skjærgårdsidyll. Hoppøya har i generasjoner vært et sommerparadis, men også hatt fokus på blant annet jordbruk og beite for dyr gjennom årenes løp. Øya ligger idyllisk plassert mellom Malmøya og Eftanglandet.
Hytta ligger lunt og solrikt til på en romslig tomt, godt tilbaketrukket fra naboer og uten innsyn. Uteområdet er frodig og fredelig – her har du sol fra morgen til kveld og panoramautsikt over landskapet og sjøen. Fra uteområdene kan du nyte måkeskrik og havbris mens du skuer utover øylandskapet og sjøen.
Bare en kort spasertur fra hytteveggen finner du flotte bademuligheter fra svaberg. Dersom et morgenbad frister, er det ikke lange veien. Her er det også flotte krabbefiskeforhold til sommerens faste fiskekonkurranse. For de som er glade i sjø og båtliv, er det ikke lange båtturen til sommeridyll og lunsj i historiske Stavern eller ved kjente Svenner fyr. Fyret markerer ikke bare innseilingen til Ytre Oslofjord, men byr også på idylliske omgivelser ytterst i havgapet. Øygruppen er en populær destinasjon med fine havneforhold, solvarme svaberg, bølgeskvulp og måkeskrik. Det er også mulighet for å bestille overnatting på fyret. Videre inviterer fjorden til familievennlige eventyr i den flotte skjærgården med flere fine badeplasser og øygrupper. Viksfjord er godt egnet for båtliv og vannlek.
Fra Hoppøya har du også tilgang til mange flotte turmål på fastlandet. Velkjente Ula og Kjerringvik er populære turmål. I Ula finnes det en nydelig småbåthavn, kiosk, flotte og barnevennlige sandstrender og glatte svaberg. Idylliske Kjerringvik ligger heller ikke langt unna, og her finnes det blant annet småbåthavn, sandstrender og fine turområder. Her arrangeres det også kulturelle begivenheter hvert år. "Sør i Ommane"/Ølbergholmen er også en kjent destinasjon og et flott friområde ytterst på Eftanghalvøya. Her finnes barnevennlig sandstrand, gresslette og svaberg. Både Ula og Ølbergholmen byr på fantastiske badestrender med ypperlige badeforhold. Alt ligger til rette for at du kan nyte late dager i ditt eget sommerparadis.
Vi ønsker velkommen til en hyggelig visning på idylliske Hoppøya.
Adkomst
Hytta har egen parkeringsplass på Kaupangstranda ved bryggeanlegget som medfølger. Derifra tar du sjøveien over til øya til egen bygge beliggende nord på øya. Det medfølger ikke båtplass på fastlandssiden, men megler kan kontaktes for mer informasjon rundt båtplass. For nærmere veibeskrivelse Se Google maps - det er enkelt å finne frem i kartet. Det vil bli skiltet med Krogsveen visningsskilt ved fellesvisninger.
Beskrivelse av tomt
Eiertomt på 7 728 kvm. Tomten består for det meste av vakker naturtomt, små partier med gress og store områder med nydelig svaberg og fjell. Hytta ligger lunt, men fritt i terrenget, med en fantastisk panoramautsikt til sjøen og havet – så langt øyet kan se. Her er det langt til nærmeste nabo, så du får virkelig en usjenert beliggenhet. Nyt både naturen og privatlivets fred. Tomten har gode solforhold, med sol fra morgen til kveld og flere nydelige utearealer. På nordsiden av hytta, ved inngangspartiet, er det tilrettelagt med en skjermet og lun uteplass. Her er det rom for både sittegruppe og spisebord. Ved sjøsiden mot sør er det opparbeidet en frittliggende uteplass/platting, hvor du sitter solrikt og åpent til, med sjøen og naturen tett på. Med utgang fra stuen finner du også en lun og overbygget uteplass.
Tomten består av to parseller: en hovedteig på 7 668,8 kvm, hvor hytta er plassert, samt en mindre parsell nord på øya på 59 kvm, hvor bryggen er plassert.
Parkering
Det medfølger rett til parkering ved bryggeanlegget på Kaupangstranda på gnr. 1012, bnr. 1. Plass nr. 115. Det medfølger ikke båtplass på landsiden. Megler kan kontaktes for mer informasjon.
Vei, vann og avløp
Eiendommen har i dag ikke innlagt vann eller avløp men har vanntilførsel fra sisterne med oppsamling for regnvann.
Det vil være mulighet til å tilknytte seg kommunalt ledningsnett via private stikkledninger og privat vannlag (sommer vann i perioden ca. 1. mai til ca. 1. oktober). En tilknytning vil medføre årlig medlemskontingent og et innmeldingsgebyr til vannlaget. Kontakt megler for mer informasjon og dokumenter knyttet til vannlaget. Det gjøres også oppmerksom på at en tilkobling av vann utover vannpost , dvs. innleggelse av vann i selve hytta også kan medføre pålegg om forsvarlig avløpsløsning. For mer informasjon rundt dette må Larvik kommune kontaktes.
Regulerings-og arealplaner
Eiendommen er regulert til fritidsbebyggelse samt privat småbåtanlegg, jord- og skogbruk og friluftsområde i henhold til eldre reguleringsplan Hoppøya datert 24.05.1989 med tilhørende reguleringsbestemmelser. Eiendommen ligger også i kommuneplan datert 06.10.2021 avsatt til fritidsbebyggelse. En liten del på 59 kvm er avsatt til småbåthavn. Videre gjøres det oppmerksom på at deler av eiendommen ligger innenfor 100-meters belte langs sjøen. Det er egen regler og retningslinjer som gjelder for bytting i disse hensynsområdene. Utsnitt av plan med tilhørende bestemmelser kan fås ved henvendelse til megler.
Økonomi
Økonomi
Kommunale utgifter
Kommunale avgifter er kr 1.840,- for inneværende år. I dette inngår gebyr for renovasjon.
Ved tilknytting og etablering av ledningsnett for sommervann vil det påløpe årlig medlemsavgift til vannlaget samt eget tilkoblingsgebyr. Kontakt megler for mer informasjon.
Hytta har en årlig forsikringspremie på kr 2.964,-
Avgift for parkering utgjør kr. 900,- for året 2026. Avgiften for parkering vil bli indeksregulert i henhold til konsumprisindeksen neste år. beregnet fra 2018.
Hytta er i dag ikke tilknyttet noen leverandør av kabel-tv/internett.
Utgiftene er basert på nåværende eiers forbruk og avtaler.
Formuesverdi
Formuesverdi for 2023 var kr 1 022 400,- ifølge skatteetaten.
Omkostninger
8 490 000,00 Prisantydning
Omkostninger
212 250,00 Dokumentavgift til staten (2,5% av kjøpesum)
19 900,00 Gjensidige Boligkjøperpakke (valgfri)* (valgfritt)
545,00 Tinglysing panterettsdokument
545,00 Tinglysing skjøte
--------------------------------------------------------
213 340,00 Omkostninger totalt (uten Gjensidige Boligkjøperpakke (valgfri))
233 240,00 Omkostninger totalt (med Gjensidige Boligkjøperpakke (valgfri))
--------------------------------------------------------
8 703 340,00 Totalpris inkl. omkostninger
8 723 240,00 Totalpris inkl. omkostninger (med Gjensidige Boligkjøperpakke (valgfri))
--------------------------------------------------------
Dersom sameiet har fellesgjeld, vil leilighetens andel av fellesgjelden komme i tillegg til kjøpesummen. Denne gjelden skal ikke innbetales i oppgjøret, men følger leiligheten.
Totalpris inkl. omkostninger forutsetter kjøp til prisantydning.
Det tas forbehold om endringer i avgifter og gebyrer.
Tilbud om lånefinansiering
Megler formidler gjerne kontakt med rådgiver hos vår samarbeidspartner BN Bank. De har konkurransedyktige betingelser samt rask og løsningsorientert behandling av din lånesøknad. Krogsveen mottar et honorar for denne formidlingen.
Betalingsbetingelser
Kjøpesum inkludert omkostninger, samt pantedokument tilknyttet eventuelt lån, skal være disponibelt hos megler 2 virkedager før overtagelsen.
Annen viktig informasjon
Annen viktig informasjon
Eier
Hans Christian Jahnsen
Overtakelse
Etter nærmere avtale.
Boligselgerforsikring
Selger har i forbindelse med salget tegnet boligselgerforsikring levert av Gjensidige.
Boligselgerforsikringen dekker selgers ansvar etter avhendingsloven begrenset oppad til kr 14 millioner. Dersom kjøper oppdager forhold ved eiendommen som hen mener utgjør en mangel ved eiendommen, vil Gjensidige behandle reklamasjonen på vegne av selger. Forsikringsvilkår kan fås ved henvendelse til megler.
Vedlagt salgsoppgaven følger selgers egenerklæringsskjema og tilstandsrapport. Interessenter må sette seg inn i dokumentene før bud inngis.
Boligkjøperforsikring
Innen kontraktsmøtet må kjøper ta stilling til om det ønskes å bestille Boligkjøperpakken gjennom Gjensidige. I denne gunstige pakken er boligen ferdig forsikret og inkluderer rettshjelpsforsikring, også kalt Boligkjøperforsikring. Rettshjelpsforsikring gir trygghet og tilgang på profesjonell juridisk hjelp dersom det oppdages uventede feil eller mangler det første året etter overtagelse. Forsikringsselskapet behandler i så fall ethvert mangelskrav kjøper måtte ha overfor selger.
Boligkjøperpakken inkluderer bygningsforsikring for hus og hytte, innboforsikring, flytteforsikring og dobbel rentedekning - i situasjoner hvor kjøper ikke får solgt nåværende primærbolig.
Kjøper mottar ingen særskilt faktura for Boligkjøperpakken da kostnaden det første året legges til kjøpesummen for boligen. Det gjøres oppmerksom på Krogsveen mottar et honorar for denne formidlingen.
Produktark for Boligkjøperpakken ligger vedlagt i salgsoppgaven.
Dersom ikke boligkjøperpakke ønskes kan kun rettshjelpsforsikring, også kalt boligkjøperforsikring, tegnes særskilt via megler. Rettshjelpsforsikringen varer i 5 år fra overtagelse og leveres gjennom Gjensidige. Ta kontakt med megler for ytterligere informasjon.
Selskap og privatpersoner som driver med kjøp/salg/utvikling som ledd i egen næringsvirksomhet kan ikke tegne boligkjøperpakke eller rettshjelpsforsikring.
Budgivning
Forbrukerinformasjon om budgivning er vedlagt denne salgsoppgaven og er også på vår hjemmeside Krogsveen.no. Alle bud og budforhøyelser må inngis skriftlig. I tillegg må legitimasjon være fremlagt sammen med signatur fra budgiver.
Vi oppfordrer til å gi bud elektronisk via GI BUD-knappen på eiendommens hjemmeside på Krogsveen.no. Da vil samtlige vilkår bli oppfylt.
Eventuelle forhøyelser eller endringer av budet kan bekreftes pr SMS eller på e-post. Vi oppfordrer alltid til å kontakte megler pr. telefon i tillegg da forsinkelser i SMS og e-post kan forekomme.
For at budene skal kunne bli behandlet og videreformidlet skriftlig til alle involverte parter, må alle bud ha en tilstrekkelig lang akseptfrist, jf. eiendomsmeglingsforskriften § 6-3.
Selger må også skriftlig akseptere budet før aksept kan formidles til budgiver. Akseptfrist bør derfor være på minimum 30 minutter, og budforhøyelser må derfor skje i god tid før fristens utløp.
Bud i forbrukerforhold kan uansett ikke settes med kortere frist enn kl. 12.00 første virkedag etter siste annonserte visning. I tillegg kan ikke budet ha forbehold om at det skal holdes hemmelig ovenfor øvrige interessenter. Megler har iht lov om eiendomsmegling ikke anledning til å videreformidle disse budene, og de vil dermed heller ikke bli journalført.
Etter at eiendommen er solgt vil kjøper og selger få tilsendt budjournal. Øvrige budgivere kan få utlevert kopi av budjournalen i anonymisert form.
Hvitvaskingsreglene
I henhold til lov om hvitvasking og terrorfinansiering har megler plikt til å gjennomføre kontrolltiltak overfor kunder, herunder fullmektiger. Dette innebærer bl.a. å bekrefte kunders og reelle rettighetshaveres identitet på bakgrunn av fremvist gyldig legitimasjon eller på annen godkjent måte, samt å innhente opplysninger om kundeforholdets formål og tilsiktede art.
Dersom slike kundetiltak ikke kan gjennomføres, kan megler ikke etablere kundeforholdet eller utføre transaksjonen.
Hvis kjøper ikke bidrar til gjennomføring av kundekontrollen og dette fører til at transaksjonen blir forsinket eller ikke kan gjennomføres, vil dette ansees som mislighold av avtalen og gi selger rettigheter etter avhendingslova kapittel 5. I tilfeller der selger ikke bidrar til gjennomføring av løpende kundekontroll underveis i oppdraget, er det selger som misligholder sine forpliktelser etter avtalen og gi kjøper rettigheter etter avhendingslovens kapittel 4. Partene er selv ansvarlige for eventuelle kostnader og ansvar dette kan medføre. Eiendomsmegleren eller eiendomsmeglingsforetaket kan ikke holdes ansvarlig for de konsekvenser dette vil kunne få for partene eller andre som har interesser i eiendomshandelen.
Kjøper oppfordres til å innbetale kjøpesummen som ikke kommer fra låneinstitusjon i én samlet innbetaling fra egen konto i norsk bank. Megler har plikt til å melde fra til Økokrim om eiendomshandler som fremstår som mistenkelige. Melding sendes Økokrim uten at partene varsles.
Personopplysningsloven
I henhold til personopplysningsloven gjør vi oppmerksom på at interessenter kan bli registrert for videre oppfølging.
Lovanvendelse
Generelle bestemmelser
Salgsoppgaven er basert på de opplysningene selger har gitt til megler, den bygningssakyndiges tilstandsrapport, samt opplysninger innhentet fra kommunen, Kartverket og andre tilgjengelige kilder. Det er viktig at kjøper setter seg grundig inn i alle salgsdokumentene, herunder salgsoppgave, tilstandsrapport og selgers egenerklæring. Kjøper anses kjent med forhold som er tydelig beskrevet i salgsdokumentene, og slike forhold kan ikke påberopes som mangler. Dette gjelder uavhengig av om kjøper har lest dokumentene. Alle interessenter oppfordres til å undersøke eiendommen nøye, gjerne sammen med fagkyndig før bud inngis. Kjøper som velger å kjøpe usett kan ikke gjøre gjeldende som mangel noe han burde blitt kjent med ved undersøkelsen.
Dersom det er behov for avklaringer, anbefaler vi at interessenter rådfører seg med eiendomsmegler eller egne rådgivere før det legges inn bud.
En bolig som har blitt brukt i en viss tid, har vanligvis blitt utsatt for slitasje og skader kan ha oppstått. Slik bruksslitasje må kjøper regne med, og det kan avdekkes enkelte forhold etter overtakelse som nødvendiggjør utbedringer. Normal slitasje og skader som nødvendiggjør utbedring, er innenfor hva kjøper må forvente og vil ikke utgjøre en mangel.
Kjøper og selgers rettigheter og plikter reguleres av avtalen mellom partene, samt informasjonen som har vært tilgjengelig for kjøperen i forbindelse med handelen. Avtalen utfylles av avhendingsloven, og det gjelder ulike avtalevilkår avhengig av om kjøper er forbrukerkjøper eller ikke. Dette er nærmere beskrevet nedenfor.
På grunn av ulike avtalevilkår kan selger vurdere bud fra en som ikke er forbruker, ulikt fra en forbrukers bud. Dersom kjøper ikke er forbruker, er selger sitt mulige mangelsansvar begrenset fordi eiendommen selges "som den er". Selger kan ikke ta «som den er»- forbehold overfor en forbrukerkjøper. Selv et lavere bud fra en som ikke er forbruker kan foretrekkes fordi begrensningen i mulig mangelsansvar kan ha egenverdi for selger. Selger står fritt til å forkaste eller akseptere ethvert bud, og er for eksempel ikke forpliktet til å akseptere høyeste bud.
Budgiver skal i budskjema avgi egenerklæring om budgiver er forbruker eller næringsdrivende/ person som hovedsakelig handler som ledd i næringsvirksomhet. Budgivere får informasjon dersom andre bud er inngitt av en som ikke er forbruker.
Forbrukerkjøp - definisjon
Med forbrukerkjøp menes kjøp av eiendom når kjøperen er en fysisk person som ikke hovedsakelig handler som ledd i næringsvirksomhet.
Forbruker – avtalevilkår
Eiendommen har en mangel dersom den ikke er i samsvar med kravene som følger av avtalen, eller det foreligger brudd på bestemmelsene i avhendingsloven §§ 3-2 til 3-8. Hvis eiendommen ikke er i samsvar med det kjøperen må kunne forvente ut ifra alder, type og synlig tilstand, kan det være grunnlag for mangelskrav. Det samme gjelder hvis det er holdt tilbake eller gitt uriktige opplysninger om eiendommen. Dette gjelder likevel bare dersom man kan gå ut ifra at det virket inn på avtalen at opplysningen ikke ble gitt eller at mangelskravet ikke blir rettet i tide på en tydelig måte.
Boligen kan ha en mangel etter avhendingsloven § 3-3 andre ledd, dersom det er avvik mellom opplyst og faktisk innvendig areal, forutsatt at avviket er på 2% eller mer og minimum 1 kvm.
Ved beregning av et eventuelt prisavslag eller erstatning må kjøper selv dekke tap/kostnader opptil et beløp på kr 10 000 (egenandel).
Ikke-forbruker (næringsdrivende) – definisjon
Hvis kjøper er en juridisk person, eller en fysisk person som hovedsakelig handler som ledd i næringsvirksomhet, vil kjøpet ikke anses som et forbrukerkjøp.
Ikke-forbruker – avtalevilkår
Eiendommen har en mangel dersom den ikke er i samsvar med kravene som følger av avtalen.
Eiendommen selges «som den er», og selgers ansvar utover det konkret avtalte er da begrenset etter avhendingsloven § 3-9, første ledd andre setning.
Avhendingsloven § 3-3 andre ledd fravikes, og hvorvidt boligens arealsvikt utgjør en mangel vurderes etter avhendingsloven § 3-8.
Informasjon om kjøpers undersøkelsesplikt, herunder oppfordringen om å undersøke eiendommen nøye, gjelder også for kjøpere som ikke anses som forbrukere.
Det forutsettes at hjemmel overføres til kjøper. Hvis kjøper ikke ønsker hjemmelsoverføring av eiendommen, må det tas forbehold om dette i budet.
Meglers vederlag
Meglers vederlag betales av selger og er avtalt til:
Vederlag: 1,30 % av salgssummen
Vederlag:
Film kr 4 500,00
Fotopakke kr 6 500,00
Kontroll av hjemmel og heftelser kr 2 900,00
Markedsføringspakke kr 26 000,00
Oppgjør kr 7 500,00
Tilrettelegging kr 17 000,00
Visninger pr. stk. kr 2 500,00
Innhenting av offentlig opplysninger inkl pipe E-pl kr 5 057,00
Tinglysing sikring kr 500,00
Andre utgifter:
Boligselgerforsikring Gjensidige Tomt/Fritid regnes av prisant. kr. 56 727,00
Opplysninger om oppdraget
Oppdragsnummer 22-0229/25
Eiendomsmegler Krogsveen AS, avd. Sandefjord
Jernbanealléen 13, 3210, SANDEFJORD
950 007 613
Oppdragets KR-kode KR22.25229
Dato
Sist oppdatert: 13. mai 2026 kl. 09:41
Dokumenter
Dokumenter
PDF – 397 KB
PDF – 2 MB
PDF – 3 MB
PDF – 312 KB
PDF – 29 KB
PDF – 127 KB
PDF – 392 KB
Område
Legg til steder som er viktige for deg
Visning
Ta kontakt med megler for avtale om privatvisning. Ønsker du kun å bli holdt orientert, kan du fra eiendommens hjemmeside få varsel om solgtpris, eller kontakte megler.
Lurer du på noe?
Vurderer du utleie?
Få et tilbud fra Utleie KrogsveenHva koster lånet?
Sjekk estimert lånekostnadVil du varsles om lignende boliger?
Ved å lagre ditt boligsøk hos oss får du beskjed når vi har en bolig som ligner denne, før den legges ut på markedet!












































