Vetlandsveien 83B
7 190 000 kr
78 m²
3 soverom
Komplett salgsoppgave
Oppsal
Stor og lekker toppleilighet med utsikt og idyllisk beliggenhet | Utvidet bad | Oppr. 4-roms | Fyr./Varmtv. inkl.
Prisantydning
7 190 000 krAndel fellesgjeld
281 184,78 krOmkostninger
19 252 krTotalpris
7 490 436,78 kr
Pris
Bruksareal
86 m²BRA-I (internt bruksareal)
78 m²BRA-E (eksternt bruksareal)
8 m²TBA (terrasse-balkongareal)
10 m²
Areal
Etasje
3Byggeår
1954Soverom
3 soveromBad
1 badType
AndelsleilighetEierform
AndelFasiliteter
Balkong/TerrasseFellesutgifter
6 368 krEnergimerke
Lysegrønn E
Nøkkelinfo
Unngå doble boligrenter
Vi tilbyr gunstig forsikring.
Vurderer du utleie?
Få et tilbud fra Utleie KrogsveenHva koster lånet?
Sjekk estimert lånekostnadBeskrivelse
Kort om eiendommen
Innhold og byggemåte
Innhold og byggemåte
Eiendommen
Vetlandsveien 83B, 0685 OSLO
Kommunenummer 301, gårdsnummer 146, bruksnummer 241, ideell andel 1/1
Andelsnummer 221, Vetlandsveien Borettslag, organisasjonsnummer 950 084 545
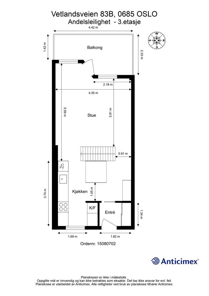
Innhold
Totalt bruksareal BRA: 86 kvm
BRA-i:
Andelsleilighet:
3. etasje 39 kvm: Entré og stue med åpen kjøkkenløsning.
4. etasje 39 kvm: Gang, bad, 2 soverom og bibliotek/opprinnelig soverom 3.
BRA-e:
Kjeller 8 kvm: Kjellerbod.
Åpent areal:
3. etasje 8 kvm: Vestvendt balkong.
4. etasje 2 kvm: Vestvendt balkong.
Det er følgende avvik fra originale byggetegninger:
- Et rom som benyttes som bibliotek er opprinnelig byggemeldt som soverom. Dør og deler av vegg er fjernet. Dette kan enkelt tilbakeføres og krever ikke søknad til verken borettslaget eller kommunen. - Vegg mellom kjøkken og gang/stue er tatt vekk.
Det gjøres oppmerksom på at boligens eksterne boder tilhører borettslagets fellesareal, og at boden således ikke eies av den enkelte andelseier. Dette medfører at borettslaget i fellesskap beslutter bruken, og at man ikke selv har eierrett og rettsvern for boden. Borettslaget kan ved vedtak beslutte annet bruk av fellesarealet og disponering av bodarealet kan dermed opphøre.
Vedlagte plantegninger er ikke målbare. De oppgitte arealer er hentet fra rapport med befaringsdato 10.04.2026 utført av Anticimex AS v/Lars Erik Bergersen. Arealene er beregnet og rom er definert etter dagens faktiske bruk, uavhengig av hva som er godkjent av bygningsmyndighetene.
Byggemåte
Selger har innhentet en tilstandsrapport av boligen/eiendommen. Dersom det er registrert avvik, er disse klassifisert med tilstandsgrader (TGIU, TG2 og/eller TG3). Kjøper overtar ansvaret for de opplysninger som fremkommer av salgsdokumentasjonen, og kan ikke gjøre gjeldende som mangel noe som burde vært kjent eller som ikke kan anses å ha betydning for avtalen.
Bygningen er iht. tilstandsrapport oppført i 1954. Det er et leilighetsbygg med grunnmur og bærende konstruksjoner i hovedsak av betong, og bygget er oppført med kjeller. Yttervegger er i en kombinasjon av tre- og betongkonstruksjoner med utvendige fasader kledd med fasadeplater/plateprofiler. Etasjeskillere er av betong. Yttertaket er en saltakskonstruksjon tekket med takplater av metall. Leiligheten har en glatt/profilert entrédør med glassfelt (brannklasse EI30 og lydklasse 41db). Balkongdører og vinduer med karmer av tre og to-lags glass er fra 2016, med unntak av vindu på bad som har karmer av PVC og to-lags glass fra 2016. Det er utgang til to vestvendte balkonger på henholdsvis 2 m² og 8 m², begge i betong- og glassfiberkonstruksjon.
Sikringsskap er plassert i felles trapperom utenfor leiligheten, og anlegget er sikret med automatsikringer. Store deler av det elektriske anlegget ble skiftet ut i 2018. Dette ble gjort ifm. baderomsrehabiliteringen, og samme firma ble benyttet til jobben. Selger har forsøkt å komme i kontakt for å få tak i dokumentasjonen, men har ikke lykkes med dette.
Boligen har godkjent slukkeutstyr, tilstrekkelig med røykvarslere og det er montert komfyrvakt på kjøkkenet.
Følgende bygningsdeler er gitt Tilstandsgrad 2 (TG2) — Avvik som kan kreve tiltak:
Våtrom - Bad
- Ventilasjon: Våtrommet har kun naturlig ventilasjon. Dette erfaringsmessig gir lavere luftutskifting enn mekanisk ventilasjon. Tilstandsgrad er satt i henhold til NS3600.
Tekniske anlegg
- Vannbåren varme (radiatorer, vannbåren gulvvarme, o.l.): Radiatorer og tilhørende røropplegg har en alder som tilsier at fremtidig funksjon er usikker.
Følgende bygningsdeler er ikke undersøkt (TGIU):
Tekniske anlegg
- Innvendig stakeluke: Innvendig stakeluke er ikke påvist inne i boenheten. Det er ikke kjent om stakeluker eller tilsvarende stakepunkter er prosjektert og etablert i bygningens fellesarealer. Det vurderes at boenheten likevel har tilgjengelige stakepunkter gjennom sluk og øvrige komponenter tilknyttet avløpsystemet, men hvordan disse vil fungere i en faktisk brukssituasjon er ikke kjent. TGIU er valgt fordi fullverdig kontroll av stakemuligheter forutsetter spesialkompetanse på rørsystemer.
Yttertak
- Yttertak: Taket er ikke fysisk inspisert grunnet sikkerhetsmessige forhold.
Tilstandsrapporten er inntatt i salgsoppgaven. Rapporten inneholder informasjon om eventuelle avvik og konsekvensen av disse. Dersom det er registrert avvik med TG3, har den bygningssakkyndige i tillegg gitt et anslag på hva det vil koste å utbedre disse. Ettersom kjøper regnes å være kjent med forhold som tydelig fremgår av tilstandsrapporten, oppfordres du til å sette deg grundig inn i rapporten i sin helhet.
Selger beskriver også i egenerklæringsskjema:
Det ble utført arbeid på bad i 2018 i regi av borettslaget, som har relevant dokumentasjon. I 2016 ble vinduer byttet, også i regi av borettslaget. Det elektriske anlegget ble oppgradert i 2018 som et tillegg til våtromsrehabiliteringen, og det ble lagt nye vannrør i forbindelse med oppussing av badet samme år.
Moderniseringer og påkostninger
Følgende moderniseringer er foretatt de senere år:
2018:
- Oppgradering av det elektriske anlegget.
- Rehabilitering av bad med flislagt gulv (gulvvarme), flislagte vegger, ny innredning, vegghengt toalett og rør-i-rør system. Samsvarserklæring for elektrisk arbeid foreligger.
- Ny kjøkkenløsning med innredning, laminert benkeplate, integrerte hvitevarer, komfyrvakt, rør-i-rør system og automatisk lekkasjesikring.
- Lagt flisgulv med gulvvarme i entré.
- Oppgradering av overflater med parkett på gulv, malte vegger og himling, samt stedvis installerte downlights.
2016:
- Utskifting av balkongdører og vinduer, inkludert vindu på bad.
Vedlikeholdshistorikk borettslaget:
2025:
- Utskifting av lamper på svalganger til LED-lys.
- Asfaltering og utbedring av mur ved Kampheimveien 22.
- Grunnarbeid og utbedring av kabel til lysmast ved parkeringsplassen utenfor Vetlandsveien 82.
2018 - 2019:
- Rør- og våtromsrehabilitering.
Standard
Dette er en gjennomgående toppleilighet over to plan, med en usjenert beliggenhet og utsikt over nærområdet. Leiligheten er vesentlig oppgradert i 2018 med et moderne kjøkken og pene overflater, bad rehabilitert i regi av borettslaget samme år. Planløsningen fordeler de sosiale sonene og de private rommene på hver sin etasje, og med to vestvendte balkonger er uteplassene godt ivaretatt.
Entré 3. etasje:
Inngangen har flislagt gulv med varmekabler, noe som er praktisk på våte og kalde dager. En skyvedørsgarderobe gir god plass til yttertøy og sko. Fra entréen åpner leiligheten seg opp med siktlinje rett inn i stuen og mot trappen som leder opp til neste etasje.
Kjøkken:
Kjøkkenet fra 2018 er plassert i en åpen løsning mot stuen, men fungerer som en egen, definert sone. Innredningen har glatte, hvite fronter og en mørk laminatbenkeplate. Alle hvitevarer er integrerte, inkludert stekeovn, mikrobølgeovn, induksjonstopp og oppvaskmaskin. Kjøkkenøya fungerer som en naturlig overgang mot stuen og gir ekstra arbeids- og sitteplass.
Stue:
Stuen er leilighetens hovedrom, med plass til både sofagruppe og spisebord. Rommet er knyttet sammen med kjøkkenet via den åpne løsningen, og trappen i tre med glassrekkverk er et sentralt designelement som forbinder de to etasjene. Fra stuen er det utgang til den største av leilighetens to balkonger.
Balkong 3. etasje:
Den vestvendte balkongen på 8 kvm har god plass til en sittegruppe. Herfra er det utsikt over området, og beliggenheten uten gjenboere gir en privat og åpen følelse.
Gang 4. etasje:
Trappen leder opp til en gang som fordeler tilgangen til leilighetens private del. Herfra når du badet og de 3 soverommene.
Balkong 4. etasje:
Fra biblioteket er det utgang til en liten, vestvendt balkong på 2 kvm. En fin plass for en stol og morgenkaffen, med den samme gode utsikten.
Soverom:
Leiligheten har 3 soverom. Hovedsoverommet har plass til dobbeltseng og har et stort garderobeskap. Vinduene vender ut mot rolige omgivelser, og trærne på utsiden skjermer for innsyn. Soverom 2 egner seg godt som barnerom, gjesterom eller kontor, og har også garderobeskap. Soverom 3 er pt. devis åpnet opp, og kan enkelt tilbakeføres til et tredje soverom ved å eksempelvis sette opp en dobbeltdør.
Bad:
Badet ble rehabilitert i regi av borettslaget i 2018 og har en moderne standard. Rommet har fliser på gulv og vegger, med varmekabler i gulvet. Innredningen består av en vegghengt servant med skuffer, speilskap med belysning, og et vegghengt toalett. En dusjnisje med glassvegg utnytter plassen godt, og det er opplegg for vaskemaskin. Vinduet slipper inn naturlig lys.
Overflater:
Gulv: Parkett. Fliser med gulvvarme i entré.
Vegger: Malte glatte flater.
Himling: Malte glatte flater, stedvis med downlights.
Lagring:
Leiligheten disponerer en kjellerbod på 8 kvm. I tillegg er det garderobeskap på soverom 1 og 2, samt en skyvedørsgarderobe i entréen.
For fullstendig teknisk informasjon om boligen, se punktet Byggemåte i salgsoppgaven.
Løsøre og tilbehør
Når ikke annet er avtalt, overdras eiendommen med innredninger og utstyr som etter lov, forskrift eller annet offentlig vedtak skal følge med, jf. avhendingsloven. Det samme gjelder varig innredning og utstyr som enten er fastmontert eller er særskilt tilpasset bygningen. Loven inneholder ingen detaljert oversikt over hva som omfattes av «innredning og utstyr», og over hva som skal regnes som «fastmontert eller særskilt tilpasset». Partene kan fritt avtale hva som skal følge eiendommen ved salg. Bransjens liste over løsøre og tilbehør som skal følge med eiendommen, er en del av avtalen mellom kjøper og selger dersom ikke annet er opplyst i salgsoppgaven, kjøper har tatt forbehold i bud eller annen måte er inngått. Er ikke annet avtalt, vil løsøre og tilbehør medfølge slik dette fremkommer av avhendingsloven og bransjens tilbehørsliste inntatt i salgsoppgaven.
Følgende medfølger i tillegg: Hvitevarer på kjøkken, samt TV-tuner/dekoder. Løsøre som ikke medfølger salget: gardiner, lamper og vegghengte bilder.
Oppvarming
Leiligheten varmes opp via radiatorer tilknyttet felles varmesentral basert på fjernvarme. Det er elektrisk gulvvarme på bad og i entré.
Dersom beboelsesrom ikke har vegg- eller fastmonterte varmekilder ved visning, følger dette heller ikke med.
Ferdigattest/brukstillatelse
Bygningen er oppført i 1954. Det foreligger ferdigattest for nybygg og større arbeider, datert 16.01.1961. Denne kan fås ved henvendelse til megler.
Det foreligger i tillegg en ferdigattest vedrørende rehabilitering av bad, datert 12.06.2019.
Kjøper overtar alt ansvar, kostnad og risiko for dette videre.
Tinglyste heftelser og rettigheter
Utover andel fellesgjeld overdras leiligheten fri for pengeheftelser.
Borettslaget har legalpant for forfalte felleskostnader og andre krav som følger av borettslagsforholdet iht. burettslagsloven § 5-20. Pantet er begrenset oppad til 2G (G = folketrygdens grunnbeløp).
Det er tinglyst 2 servitutter på borettslagets eiendom. Disse omhandler blant annet bestemmelse om trafostasjon/kiosk og bestemmelse om veg.
Servituttene vil følge eiendommen. Kjøpers bank vil få prioritet etter ovennevnte heftelser og servitutter.
Eventuell adgang til utleie
Andelseier kan ikke uten samtykke fra styret i borettslaget overlate bruken av boligen til andre. Med samtykke kan andelseier overlate boligen til andre i inntil tre år hvis andelseier har bodd i boligen i minst ett av de to siste år. Utleie i andre tilfeller kan godtas ved særlige grunner, jf. burettslagslova § 5-6. Utleie forutsetter at leiligheten har forsvarlige radonverdier. Se også borettslagets vedtekter og konferer megler ved spørsmål.
Energimerking
Denne boligen er energimerket. På en skala fra A til G, der A er best, har denne boligen oppnådd E (en normalbolig vil gjerne ligge i området C-F). Kopi av energiattest ligger vedlagt i salgsoppgaven eller kan fås ved henvendelse til megler.
Beliggenhet og tomteforhold
Beliggenhet og tomteforhold
Beliggenhet
Sjeldent god beliggenhet på populære Oppsal i et skjermet og tilbaketrukket boligområde med trygg og nærmest bilfri skolevei til Oppsal barne- og ungdomsskole.
Nærhet til Østmarka med flotte turområder både sommer- og vinterstid. Stier, lysløyper og turveier som er fine til turgåing, sykling og løping. Om vinteren blir det kjørt opp skispor i lysløypene i tillegg til et stort nettverk av løyper. I Østmarka finner du bl.a. Nøklevann og Ulsrudvann med flotte badeplasser. Det er muligheter for en gåtur til markastuene Rustadsaga, Skullerudstua og Mariholtet hvor du kan få kjøpt diverse bakst, varmretter m.m. hele året. Det er også kort vei til Østensjøvannet med et flott dyre- og fugleliv og turvei videre inn til Østmarka.
Et par minutter med gange til Oppsal senter med daglighandel, diverse forretninger, legesenter, tannlege, frisør og serveringssteder. T-bane og flere busser på Oppsal. T-banen tar deg til Oslo sentrum på ca. 15 minutter. Lokalbussene 78A/B og 61B tar deg blant annet til Bryn, Tveita, Abildsø og Manglerud. På Bryn, Tveita og Manglerud finner du også større kjøpesentre med et større utvalg av butikker og restauranter. Nattbuss (N3) stopper ved Oppsal senter. 79 buss (Grorud - Åsbråten) og 76 buss (Mortensrud - Helsfyr) fra Kampheimveien.
Det er idrettsanlegg på Trasop med bl.a. idrettshall og kunstgressbaner. Bydelen byr også på et godt aktivitetstilbud med flere aktivitets-, kultur- og fritidsklubber. I tillegg ligger SATS på Hellerud og Friendly fitness på Ulsrud, samt flere treningstilbud på Oppsal Arena. Leos lekeland ligger en kort gåtur unna.
Adkomst
Det vil bli skiltet med Krogsveen visningsskilt ved fellesvisninger.
Barnehager, skoler og fritid
Informasjon om tilhørende skolekretser er hentet fra Prognosesenteret som dataleverandør, og tilhørigheten kan årlig endres av kommunen. Dersom skole- og barnehagetilbud er av betydning for kjøpet, ber vi om at det rettes en særskilt henvendelse til kommunen/bydelsadministrasjonen for oppdatert informasjon.
Beskrivelse av tomt
Eiertomt på 16 967 kvm som tilhører borettslaget.
Parkering
Parkeringsplass følger ikke leiligheten. Styret leier ut parkeringsplasser etter ansiennitet.
Området er for øvrig dekket godt med gateparkering.
Vei, vann og avløp
Eiendommen har adkomst via kommunal vei. Eiendommen er tilknyttet kommunalt ledningsnett via private stikkledninger. Borettslaget er ansvarlig for private stikkledninger til bygningen.
Regulerings-og arealplaner
Eiendommen er regulert til byggeområde for boliger i henhold til reguleringsplan S-466.
Eiendommen omfattes også av reguleringsplan S-474 "Reguleringsplan for Skøyen - Oppsal - Ulsrud...", datert 20.03.1953. Denne planen inneholder de gjeldende reguleringsbestemmelsene. Av bestemmelsenes § 2 fremgår det at feltene skal bebygges med "åpen blokkbebyggelse i 3 - 5 etasjer".
I tillegg omfattes eiendommen av reguleringsplan V100253 "Beliggenhet av fyrhus, vaskeri og garasjer i forbindelse med blokk 4 vei 3281 gnr.146 bnr. 179, Oppsal.", datert 10.02.1953.
Det er ingen plan- eller byggesaker per 17.04.2026 med direkte innvirkning på eiendommen.
Utsnitt av plan med tilhørende bestemmelser kan fås ved henvendelse til megler.
Økonomi
Økonomi
Boligens kostnader
Felleskostnadene er kr 6 368,- pr. mnd. og inkluderer: renter og avdrag på fellesgjeld, fyring, a-konto varmtvann, TV/fiber (bredbånd), kommunale avgifter, bygningsforsikring mm.
Felleskostnadene er fordelt slik:
- Felleskostnader: kr 3 710,70
- Akonto varmtvann: kr 316,-
- Lån nr: 9820753680; IN lån 1 - Akonto renter: kr 1 148,44
- Lån nr: 9820753680; IN lån 1 - Akonto avdrag: kr 663,65
- FIBER TELENOR: kr 489,-
Varmtvann avregnes årlig mot et innbetalt a-kontobeløp.
Felleskostnadene justeres normalt en til to ganger årlig i forhold til borettslagets faktiske utgifte og ble sist juster 01.04.2026.
Nåværende eier har et strømforbruk som tilsvarer ca. 2 519 kwh. pr. år.
Boligen er tilknyttet Telenor som leverandør av tv/internett. Tv-tuner/dekoder medfølger.
Utgiftene er basert på nåværende eiers forbruk. Kjøper må selv tegne innboforsikring.
Formuesverdi
Formuesverdi for 2024 var kr 1 364 537,- ifølge Skatteetaten. Beløpet forutsetter at eier bor fast i boligen (primærbolig).
Ved eventuell øvrig bruk av eiendommen (f.eks. fritidsbolig, pendlerbolig, utleieobjekt) var formuesverdien for 2024 kr 5 458 149,-.
Fra 2026 har Stortinget vedtatt en oppdatert modell for beregning av formuesverdi for primærbolig, så avvik kan forekomme.
For mer informasjon se skatteetaten.no
Formuesverdien på denne boligen anses å være lav, og kjøper må forvente oppjustering ifm. salget.
Eiendomsskatt
Skattesatsen i Oslo kommune er fastsatt til 1,7 promille for 2026 og det er vedtatt et bunnfradrag på 4,9 millioner kroner. Forretningsfører har ikke gitt informasjon om eiendomsskatten for eiendommen, men basert på eiendommens boligverdi for 2026, antas det at denne eiendommen kan få eiendomsskatt på rundt 400 - 700 kr for 2026. Ta kontakt med Skattekontoret for nærmere informasjon om beregning av boligverdi og eiendomsskatten.
Opplysninger om fellesgjeld
Andel formue er kr 17 723,- pr. 2025.
Andel fellesgjeld er kr 281 184,78 pr. 10.04.2026.
Total fellesgjeld for borettslaget er kr 97 430 942,- pr. 10.04.2026 og lånevilkårene er:
Bank: OBOS Boligkreditt AS
Lånenummer: 98207536806
Type: Annuitetslån, 12 terminer i året
Restsaldo pr. 10.04.2026: kr 97 430 942,00
Andel av saldo: kr 281 184,78
Innfrielsesdato: 30.10.2046
Type Rente: Flytende rente
Rente: 4,89%
Mulighet for individuell nedbetaling på hele eller deler av fellesgjeld (IN-lån): Ja. Felleskostnadene kan reduseres med kr 1 812,- ved innfrielse av fellesgjeld.
Omkostninger
7 190 000,00 Prisantydning
281 184,78 Andel av fellesgjeld
--------------------------------------------------------
7 471 184,78 Pris inkl. fellesgjeld
Omkostninger
8 212,00 Forkjøpsrett - forhåndsutlyst (kjøper)
9 950,00 Gjensidige Boligkjøperpakke* (valgfritt)
545,00 Tinglysing hjemmel
545,00 Tinglysing panterettsdokument
--------------------------------------------------------
9 302,00 (Omkostninger totalt (uten Gjensidige Boligkjøperpakke))
19 252,00 Omkostninger totalt (med Gjensidige Boligkjøperpakke))
--------------------------------------------------------
7 480 486,78 Totalpris inkl. omkostninger
7 490 436,78 Totalpris inkl. omkostninger (med Gjensidige Boligkjøperpakke)
--------------------------------------------------------
Dersom kjøper ikke er medlem av boligbyggelaget, må det påregnes en innmeldingsavgift og årlig medlemsgebyr pr. ny andelseier. Dette faktureres direkte fra boligbyggelaget.
Dersom borettslaget har fellesgjeld, vil leilighetens andel av fellesgjelden komme i tillegg til kjøpesummen. Denne gjelden skal ikke innbetales i oppgjøret, men følger leiligheten.
Det tas forbehold om endringer i avgifter og gebyrer.
Tilbud om lånefinansiering
Megler formidler gjerne kontakt med rådgiver hos vår samarbeidspartner BN Bank. De har konkurransedyktige betingelser samt rask og løsningsorientert behandling av din lånesøknad. Krogsveen mottar et honorar dersom lån opprettes.
Betalingsbetingelser
Kjøpesum inkludert omkostninger, samt pantedokument tilknyttet eventuelt lån, skal være disponibelt hos megler 2 virkedager før overtagelsen.
Annen viktig informasjon
Annen viktig informasjon
Eier
Linn Silje Undem
Informasjon om borettslaget
Leiligheten er tilknyttet Vetlandsveien Borettslag.
- Borettslaget består av 388 andeler fordelt på 15 blokker.
- Forretningsfører er OBOS.
- Borettslaget er forsikret i If Skadeforsikring Nuf, polisenummer 3529253.
Dugnad må påregnes.
Dyrehold er tillatt etter søknad til styret.
Bruk av kullgrill eller engangsgrill er ikke tillatt på balkongene.
Parabolantenne kan ikke monteres på balkongene.
Hver leilighet disponerer en kjellerbod.
Fellesfasiliteter inkluderer vaskeri, fellesrom for sykler og barnevogner, sykkelskur og fire lekeplasser.
Normalt husdyrhold tillates, men det er søknads- og registreringspliktig hos styret. Dyreeier plikter å sørge for at dyreholdet ikke er til sjenanse for de øvrige beboerne. Hunder skal føres i bånd på borettslagets eiendom, og dyreeier plikter å umiddelbart fjerne ekskrementer. Ved brudd på reglene kan styret kreve at dyreholdet opphører.
Foretatt påkostninger de senere år:
- Rør- og våtromsrehabilitering (2019).
- Utskifting av lamper på svalganger til LED (2025).
- Asfaltering og utbedring av mur ved Kampheimveien 22 (2025).
- Oppmerking av parkeringsplasser (2025).
Planlagte påkostninger:
- Styret økte felleskostnadene med 5 % fra 01.04.2026 for å dekke prisstigning og planlegge vedlikehold.
- Utbedring av manglende branntetting i ca. 140 leiligheter er pågående (per årsberetning 2025).
- Styret har vedtatt å gjennomføre en tilstandsvurdering av bygningsmassen (kjellere, betong, tak, fasader).
- Styret har fått mandat til å vurdere oppussing av inngangspartier.
- Utbedring av vanntrykk og -temperatur i Vetlandsveien 95 og 97 er igangsatt.
- Kartlegging av tilstanden til tilfluktsrommene er planlagt.
- Årsmøtet i 2026 skal behandle forslag om innkjøp og flagging med prideflagg under Pride-uken i Oslo.
I forbindelse med rør- og våtromsrehabiliteringen i 2019 ble det avdekket manglende branntetting. Borettslaget har vært i dialog med entreprenøren for utbedring, og arbeidene er pågående per årsberetning for 2025.
Megler har kopi av budsjett for 2026 og årsregnskap for 2025. Dette kan interessenter få oversendt.
I henhold til borettslagets vedtekter må kjøper godkjennes av styret som ny andelseier. Det er kjøpers ansvar at styregodkjenning blir gitt, men styret kan ikke nekte godkjenning uten saklig grunn. Iht. burettslagslova kan man bare eie en andel i borettslaget. Kun fysiske personer kan være andelseiere. Bare fysiske personer som er andelseiere i OBOS kan være andelseiere i borettslaget. Det kreves medlemskap i OBOS for å erverve/eie boligen.
Borettslaget har en avtale med OBOS Factoring om garantert betaling av felleskostnader. OBOS Factoring garanterer for overførsel til borettslaget hver måned og overtar deretter alt ansvar og risiko for eventuell manglende innbetaling av felleskostnader.
Dokumenter for borettslaget kan fås ved henvendelse til megler.
Informasjon om forkjøpsrett
Øvrige andelseiere i borettslaget og eventuelt medlemmer av OBOS har forkjøpsrett. Andelseiere i borettslaget har forkjøpsrett etter ansiennitet i borettslaget. Dersom boligen tas på forkjøpsrett løses kjøper fra avtalen.
Overtakelse
Etter nærmere avtale. Overtakelse kan tidligst skje etter at forkjøpsretten for øvrige andelseiere i borettslaget og eventuelt medlemmer av boligbyggelaget er avklart, samt at styrets godkjennelse er avklart.
Boligselgerforsikring
Selger har i forbindelse med salget tegnet boligselgerforsikring levert av Gjensidige.
Boligselgerforsikringen dekker selgers ansvar etter avhendingsloven begrenset oppad til kr 14 millioner. Dersom kjøper oppdager forhold ved eiendommen som hen mener utgjør en mangel ved eiendommen, vil Gjensidige behandle reklamasjonen på vegne av selger. Forsikringsvilkår kan fås ved henvendelse til megler.
Vedlagt salgsoppgaven følger selgers egenerklæringsskjema og tilstandsrapport. Interessenter må sette seg inn i dokumentene før bud inngis.
Boligkjøperforsikring
Innen kontraktsmøtet må kjøper ta stilling til om det ønskes å bestille Boligkjøperpakken gjennom Gjensidige. I denne gunstige pakken er boligen ferdig forsikret og inkluderer rettshjelpsforsikring, også kalt Boligkjøperforsikring. Rettshjelpsforsikring gir trygghet og tilgang på profesjonell juridisk hjelp dersom det oppdages uventede feil eller mangler det første året etter overtagelse. Forsikringsselskapet behandler i så fall ethvert mangelskrav kjøper måtte ha overfor selger.
Boligkjøperpakken inkluderer bygningsforsikring for hus og hytte, innboforsikring, flytteforsikring og dobbel rentedekning - i situasjoner hvor kjøper ikke får solgt nåværende primærbolig.
Kjøper mottar ingen særskilt faktura for Boligkjøperpakken da kostnaden det første året legges til kjøpesummen for boligen. Det gjøres oppmerksom på Krogsveen mottar et honorar for denne formidlingen.
Produktark for Boligkjøperpakken ligger vedlagt i salgsoppgaven.
Dersom ikke boligkjøperpakke ønskes kan kun rettshjelpsforsikring, også kalt boligkjøperforsikring, tegnes særskilt via megler. Rettshjelpsforsikringen varer i 5 år fra overtagelse og leveres gjennom Gjensidige. Ta kontakt med megler for ytterligere informasjon.
Selskap og privatpersoner som driver med kjøp/salg/utvikling som ledd i egen næringsvirksomhet kan ikke tegne boligkjøperpakke eller rettshjelpsforsikring.
Budgivning
Forbrukerinformasjon om budgivning er vedlagt denne salgsoppgaven og er også på vår hjemmeside Krogsveen.no. Alle bud og budforhøyelser må inngis skriftlig. I tillegg må legitimasjon være fremlagt sammen med signatur fra budgiver.
Vi oppfordrer til å gi bud elektronisk via GI BUD-knappen på eiendommens hjemmeside på Krogsveen.no. Da vil samtlige vilkår bli oppfylt.
Eventuelle forhøyelser eller endringer av budet kan bekreftes pr SMS eller på e-post. Vi oppfordrer alltid til å kontakte megler pr. telefon i tillegg da forsinkelser i SMS og e-post kan forekomme.
For at budene skal kunne bli behandlet og videreformidlet skriftlig til alle involverte parter, må alle bud ha en tilstrekkelig lang akseptfrist, jf. eiendomsmeglingsforskriften § 6-3.
Selger må også skriftlig akseptere budet før aksept kan formidles til budgiver. Akseptfrist bør derfor være på minimum 30 minutter, og budforhøyelser må derfor skje i god tid før fristens utløp.
Bud i forbrukerforhold kan uansett ikke settes med kortere frist enn kl. 12.00 første virkedag etter siste annonserte visning. I tillegg kan ikke budet ha forbehold om at det skal holdes hemmelig ovenfor øvrige interessenter. Megler har iht lov om eiendomsmegling ikke anledning til å videreformidle disse budene, og de vil dermed heller ikke bli journalført.
Etter at eiendommen er solgt vil kjøper og selger få tilsendt budjournal. Øvrige budgivere kan få utlevert kopi av budjournalen i anonymisert form.
Hvitvaskingsreglene
I henhold til lov om hvitvasking og terrorfinansiering har megler plikt til å gjennomføre kontrolltiltak overfor kunder, herunder fullmektiger. Dette innebærer bl.a. å bekrefte kunders og reelle rettighetshaveres identitet på bakgrunn av fremvist gyldig legitimasjon eller på annen godkjent måte, samt å innhente opplysninger om kundeforholdets formål og tilsiktede art.
Dersom slike kundetiltak ikke kan gjennomføres, kan megler ikke etablere kundeforholdet eller utføre transaksjonen.
Hvis kjøper ikke bidrar til gjennomføring av kundekontrollen og dette fører til at transaksjonen blir forsinket eller ikke kan gjennomføres, vil dette ansees som mislighold av avtalen og gi selger rettigheter etter avhendingslova kapittel 5. I tilfeller der selger ikke bidrar til gjennomføring av løpende kundekontroll underveis i oppdraget, er det selger som misligholder sine forpliktelser etter avtalen og gi kjøper rettigheter etter avhendingslovens kapittel 4. Partene er selv ansvarlige for eventuelle kostnader og ansvar dette kan medføre. Eiendomsmegleren eller eiendomsmeglingsforetaket kan ikke holdes ansvarlig for de konsekvenser dette vil kunne få for partene eller andre som har interesser i eiendomshandelen.
Kjøper oppfordres til å innbetale kjøpesummen som ikke kommer fra låneinstitusjon i én samlet innbetaling fra egen konto i norsk bank. Megler har plikt til å melde fra til Økokrim om eiendomshandler som fremstår som mistenkelige. Melding sendes Økokrim uten at partene varsles.
Personopplysningsloven
I henhold til personopplysningsloven gjør vi oppmerksom på at interessenter kan bli registrert for videre oppfølging.
Lovanvendelse
Generelle bestemmelser
Salgsoppgaven er basert på de opplysningene selger har gitt til megler, den bygningssakyndiges tilstandsrapport, samt opplysninger innhentet fra kommunen, Kartverket og andre tilgjengelige kilder. Det er viktig at kjøper setter seg grundig inn i alle salgsdokumentene, herunder salgsoppgave, tilstandsrapport og selgers egenerklæring. Kjøper anses kjent med forhold som er tydelig beskrevet i salgsdokumentene, og slike forhold kan ikke påberopes som mangler. Dette gjelder uavhengig av om kjøper har lest dokumentene. Alle interessenter oppfordres til å undersøke eiendommen nøye, gjerne sammen med fagkyndig før bud inngis. Kjøper som velger å kjøpe usett kan ikke gjøre gjeldende som mangel noe han burde blitt kjent med ved undersøkelsen.
Dersom det er behov for avklaringer, anbefaler vi at interessenter rådfører seg med eiendomsmegler eller egne rådgivere før det legges inn bud.
En bolig som har blitt brukt i en viss tid, har vanligvis blitt utsatt for slitasje og skader kan ha oppstått. Slik bruksslitasje må kjøper regne med, og det kan avdekkes enkelte forhold etter overtakelse som nødvendiggjør utbedringer. Normal slitasje og skader som nødvendiggjør utbedring, er innenfor hva kjøper må forvente og vil ikke utgjøre en mangel.
Kjøper og selgers rettigheter og plikter reguleres av avtalen mellom partene, samt informasjonen som har vært tilgjengelig for kjøperen i forbindelse med handelen. Avtalen utfylles av avhendingsloven, og det gjelder ulike avtalevilkår avhengig av om kjøper er forbrukerkjøper eller ikke. Dette er nærmere beskrevet nedenfor.
På grunn av ulike avtalevilkår kan selger vurdere bud fra en som ikke er forbruker, ulikt fra en forbrukers bud. Dersom kjøper ikke er forbruker, er selger sitt mulige mangelsansvar begrenset fordi eiendommen selges "som den er". Selger kan ikke ta «som den er»- forbehold overfor en forbrukerkjøper. Selv et lavere bud fra en som ikke er forbruker kan foretrekkes fordi begrensningen i mulig mangelsansvar kan ha egenverdi for selger. Selger står fritt til å forkaste eller akseptere ethvert bud, og er for eksempel ikke forpliktet til å akseptere høyeste bud.
Budgiver skal i budskjema avgi egenerklæring om budgiver er forbruker eller næringsdrivende/ person som hovedsakelig handler som ledd i næringsvirksomhet. Budgivere får informasjon dersom andre bud er inngitt av en som ikke er forbruker.
Forbrukerkjøp - definisjon
Med forbrukerkjøp menes kjøp av eiendom når kjøperen er en fysisk person som ikke hovedsakelig handler som ledd i næringsvirksomhet.
Forbruker – avtalevilkår
Eiendommen har en mangel dersom den ikke er i samsvar med kravene som følger av avtalen, eller det foreligger brudd på bestemmelsene i avhendingsloven §§ 3-2 til 3-8. Hvis eiendommen ikke er i samsvar med det kjøperen må kunne forvente ut ifra alder, type og synlig tilstand, kan det være grunnlag for mangelskrav. Det samme gjelder hvis det er holdt tilbake eller gitt uriktige opplysninger om eiendommen. Dette gjelder likevel bare dersom man kan gå ut ifra at det virket inn på avtalen at opplysningen ikke ble gitt eller at mangelskravet ikke blir rettet i tide på en tydelig måte.
Boligen kan ha en mangel etter avhendingsloven § 3-3 andre ledd, dersom det er avvik mellom opplyst og faktisk innvendig areal, forutsatt at avviket er på 2% eller mer og minimum 1 kvm.
Ved beregning av et eventuelt prisavslag eller erstatning må kjøper selv dekke tap/kostnader opptil et beløp på kr 10 000 (egenandel).
Ikke-forbruker (næringsdrivende) – definisjon
Hvis kjøper er en juridisk person, eller en fysisk person som hovedsakelig handler som ledd i næringsvirksomhet, vil kjøpet ikke anses som et forbrukerkjøp.
Ikke-forbruker – avtalevilkår
Eiendommen har en mangel dersom den ikke er i samsvar med kravene som følger av avtalen.
Eiendommen selges «som den er», og selgers ansvar utover det konkret avtalte er da begrenset etter avhendingsloven § 3-9, første ledd andre setning.
Avhendingsloven § 3-3 andre ledd fravikes, og hvorvidt boligens arealsvikt utgjør en mangel vurderes etter avhendingsloven § 3-8.
Informasjon om kjøpers undersøkelsesplikt, herunder oppfordringen om å undersøke eiendommen nøye, gjelder også for kjøpere som ikke anses som forbrukere.
Det forutsettes at hjemmel overføres til kjøper. Hvis kjøper ikke ønsker hjemmelsoverføring av eiendommen, må det tas forbehold om dette i budet.
Meglers vederlag
Meglers vederlag betales av selger og er avtalt til:
Vederlag: 0,70 % av salgssummen.
Vederlag:
Fellesvisninger pr stk kr 6 300,00
Salgsoppgaver kr 5 500,00
Kontroll av hjemmel og heftelser kr 4 500,00
Markedsføringspakke kr 30 900,00
Oppgjør kr 8 900,00
Tilrettelegging kr 16 900,00
Utlegg:
Eierskiftegebyr forretningsfører (selger) kr 6 725,00
Innhenting av informasjon forretningsfører kr 4 375,00
Tinglysing sikring kr 545,00
Andre utgifter:
AX tilstandsrapport kr 9 950,00
Boligselgerforsikring fra Gjensidige - andelsleilighet kr 18 830,00
Foto kr 10 200,00
Vi er opptatt av verdiskapning, og har knyttet til oss samarbeidspartnere som skal sikre våre kunder de beste produkter og tjenester;
• I forbindelse med forberedelse av salget, innhenter vi informasjon om eiendommen hovedsakelig fra vår samarbeidspartner Ambita.
• Gjensidige leverer boligselgerforsikring og tilbyr bygningsforsikring
• Boligkjøperforsikring leveres av Hiscox og med Sedgwick som skadebehandler, og er formidlet gjennom Gjensidige.
• BN bank tilbyr finansieringsløsninger
• Vår avdeling Krogsveen Pluss tilbyr flyttetjenester som utvask, visningsvask, lager, tømming og transport av flyttelass, i tillegg til å formidle kontakt med Flip for overflateoppussing.
• I forbindelse med overtagelse av eiendommen tilbyr Overo avtale om strøm, alarm og bredbånd.
• Krogsveen er, sammen med øvrige bransjeaktører, medeier i Bomega AS som tilbyr den digitale annonseringsplattformen Hjem.
Opplysninger om oppdraget
Oppdragsnummer 45-0025/26
Eiendomsmegler Krogsveen AS, avd. Oppsal
Haakon Tveters vei 27, 0682, OSLO
950 007 613
Oppdragets KR-kode KR45.2625
Dato
Sist oppdatert: 18. april 2026 kl. 17:59
Dokumenter
Dokumenter
PDF – 919 KB
PDF – 3 MB
PDF – 8 MB
PDF – 312 KB
PDF – 29 KB
PDF – 127 KB
PDF – 392 KB
Område
Legg til steder som er viktige for deg
Visning
For å delta på visning, ber vi om at du melder deg på. Da sikrer vi at du får nødvendig informasjon og at det er satt av tilstrekkelig med tid. Kontakt megler dersom annet tidspunkt ønskes. Husk å lese salgsoppgaven før visningen, så du stiller forberedt.
Ønsker du kun å bli holdt orientert, kan du fra eiendommens hjemmeside få varsel om solgtpris, eller kontakte megler.
Lurer du på noe?
Unngå doble boligrenter
Vi tilbyr gunstig forsikring.
Vurderer du utleie?
Få et tilbud fra Utleie KrogsveenHva koster lånet?
Sjekk estimert lånekostnadVil du varsles om lignende boliger?
Ved å lagre ditt boligsøk hos oss får du beskjed når vi har en bolig som ligner denne, før den legges ut på markedet!

































































