Øivinds vei 7
4 550 000 kr
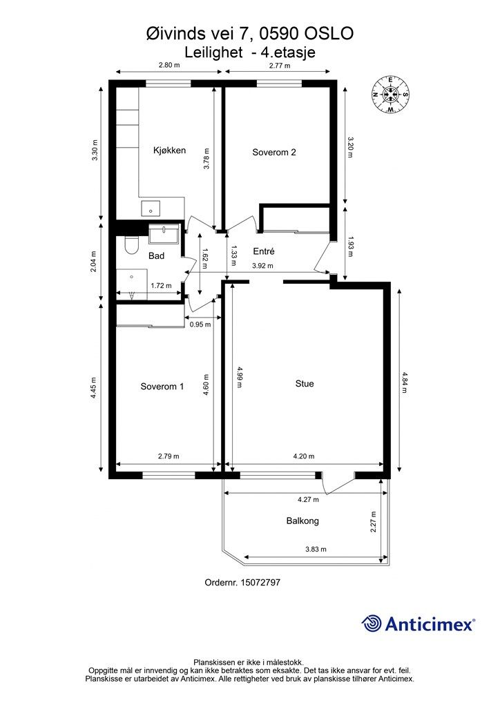
66 m²
2 soverom
Komplett salgsoppgave

ÅRVOLL
Lys og gjennomgående 3-roms toppleilighet med solrik, vestvendt balkong på 10 kvm-Sentral beliggenhet-Vv/fyring inkl.
Prisantydning
4 550 000 krAndel fellesgjeld
426 770 krOmkostninger
19 295 krTotalpris
4 996 065 kr
Pris
Bruksareal
71 m²BRA-I (internt bruksareal)
66 m²BRA-E (eksternt bruksareal)
5 m²TBA (terrasse-balkongareal)
10 m²
Areal
Etasje
4Byggeår
1955Soverom
2 soveromBad
1 badType
AndelsleilighetEierform
AndelFasiliteter
Balkong/TerrasseFellesutgifter
7 061 krEnergimerke
Gul D
Nøkkelinfo
Unngå doble boligrenter
Vi tilbyr gunstig forsikring.
Vurderer du utleie?
Få et tilbud fra Utleie KrogsveenHva koster lånet?
Sjekk estimert lånekostnadBeskrivelse
Kort om eiendommen
Innhold og byggemåte
Innhold og byggemåte
Eiendommen
Øivinds vei 7, 0590 OSLO
Kommunenummer 301, gårdsnummer 87, bruksnummer 13, ideell andel 1/1
Andelsnummer 116, Årvoll Vest borettslag, organisasjonsnummer 948609096
Innhold
Totalt bruksareal BRA: 71 kvm
BRA-i:
4. etasje 66 kvm: Entré, bad, stue, kjøkken og to soverom
BRA-e:
Kjeller 4 kvm: Bod
5. etasje 1 kvm: Loftsbod
Åpent areal:
4. etasje 10 kvm: Balkong
Leiligheten disponerer 2 eksterne boder; en kjellerbod og en loftsbod. Loftsboden har et totalt gulvareal (GUA) på 10 kvm, men grunnet skråtak/lav takhøyde er kun 1 kvm (BRA-e) av arealet måleverdig som bruksareal. De delene av arealene som har lav himlingshøyde (ALH) utgjør 9 m2.
Det gjøres oppmerksom på at boligens eksterne boder tilhører borettslagets fellesareal, og at boden således ikke eies av den enkelte andelseier. Dette medfører at borettslaget i fellesskap beslutter bruken, og at man ikke selv har eierrett og rettsvern for boden. Borettslaget kan ved vedtak beslutte annet bruk av fellesarealet og disponering av bodarealet kan dermed opphøre.
Vedlagte plantegninger er ikke målbare. De oppgitte arealer er hentet fra rapport med befaringsdato 09.03.2026 utført av Anticimex v/ Knut Johnsen.
Byggemåte
Selger har fått utarbeidet en tilstandsrapport, dvs. en teknisk gjennomgang av boligen hvor eventuelle avvik, risiko for kjøper og prisoverslag for hva som bør gjøres av oppgradering, er skissert. Se særskilt TGIU (tilstandsgrad ikke undersøkt), samt TG2 og TG3 som viser hva som er avvik fra boligens normale slitasje, alder og type, eller som bør/må utbedres. Rapporten og selgers egenerklæring er en del av salgsoppgaven og må leses nøye før bud inngis. Kjøper overtar ansvaret for de opplysninger som fremkommer av salgsdokumentasjonen, og kan ikke gjøre gjeldende som mangel noe som burde vært kjent eller som ikke kan anses å ha betydning for avtalen.
Leilighetsbygg oppført i 1955. Grunnmur av betong. Bygget er oppført med støpt gulv mot grunn. Yttervegger i hovedsak av murverk. Utvendige fasader i pusset og malte flater. Etasjeskillere av betong. Saltak i trekonstruksjoner. Yttertak er belagt med takstein. Entrédør med kikkehull. Vinduer med karmer av tre. Balkongdør med karmer av tre.
Det gjøres oppmerksom på:
Tilstandsgrad 2 (TG2 - Avvik som kan kreve tiltak)
Våtrom:
- Vanntett sjikt / membran i gulv og vegger: Vanntett sjikt har en alder som tilsier at fremtidig funksjon er usikker. Konsekvensen er at bygningsdelen erfaringsmessig har risiko for nedsatt funksjon, utettheter eller andre aldersrelaterte problemer. Bygningsdelen er skjult, så den faktiske tilstanden og dagens tettefunksjon er ukjent.
- Ventilasjon: Våtrommet har kun naturlig ventilasjon. Konsekvens er at dette erfaringsmessig gir lavere luftutskifting enn mekanisk ventilasjon.
Tilluftsspalte eller lignende er ikke etablert. Konsekvens er at forholdet medfører redusert ventilering av våtrommet når døren er lukket.
- Sanitærutstyr og innredning: Det er registrert stedvis riss i porselenet til servanten. Konsekvensen er at slike forhold erfaringsmessig skyldes aldersrelatert slitasje eller lignende, men eksakt årsak kan ikke fastslås ved visuell inspeksjon..
Drenering fra innebygget toalettsisterne er ikke registrert. Konsekvens er at det derfor ikke kan verifiseres om installasjonen er utført slik at eventuelt lekkasjevann raskt blir synliggjort.
Kjøkken:
- Gulv: Synlige deler av gulvets overflatemateriale bærer preg av slitasje.
- Ventilasjon: Kjøkken har ikke avtrekksventilasjon. Konsekvensen er at dette kan medføre økt fuktbelastning og redusert luftkvalitet over tid. Det bør etablere en permanent ventilasjonsløsning som sikrer tilstrekkelig luftutskifting.
- Innredning: Tegn til svelleskader på benkeplate, og vannsprut vurderes som en sannsynlig årsak. Dør ved hjørne har behov for justering.
Overflater:
- Det er registrert sprekker på himling i entré.
Teknisk anlegg:
- Fordelerskap og fordelerstammer: Fordelerstammer for rør-i-rør er plassert i himling på bad. Konsekvens kan være at det kan oppstå
følgeskader hvis lekkasje fra rørene skulle oppstå. Forholdet er ikke i tråd med anbefalt utførelse.
- Vannbåren varme (radiatorer, vannbåren gulvvarme, o.l.): Radiatorer og tilhørende røropplegg (unntatt i soverom 1) har en alder som tilsier at fremtidig funksjon er usikker. Konsekvensen er at bygningsdelen erfaringsmessig har risiko for nedsatt funksjon, funksjonssvikt eller andre aldersrelaterte problemer.
Yttertak:
- Inspeksjonsmulighet: Taket er ikke fysisk inspisert grunnet sikkerhetsmessige forhold. Konsekvens er at taket kan være utsatt for slitasje, skader eller feil utførelse som ikke lar seg registrere på grunn av begrenset tilkomst.
- Undertak (inkluderer sløyfer, lekter og innfestninger): Undertaket (inkluderer sløyfer, lekter, innfestninger og lignende) med tilhørende komponenter har en alder som tilsier at fremtidig funksjon er usikker. Konsekvens er at usikker fremtidig funksjon betyr at bygningsdelen erfaringsmessig har risiko for nedsatt funksjon, funksjonssvikt eller andre aldersrelaterte problemer. Bygningsdelen er skjult, så den faktiske tilstanden er ukjent.
- Snøfangere: Snøfangerutstyr er kun etablert på deler av taket. På grunn av oppføringstidspunktet vurderes det at kravet for snøfangerutstyr trolig ikke var gjeldende, men TG2 er valgt siden forholdet kan påvirke sikkerheten.
Balkong:
- Tilstands på rekkverk og overflatematerialer: Overflatematerialer på balkongen viser tegn til slitasje. Konsekvens er svekket beskyttelse av materialene, noe som kan forkorte levetiden og øke risikoen for fuktrelaterte skader på sikt.
TGIU (tilstandsgrad ikke undersøkt)
- Våtrommet har vegger av mur/betong og det er derfor ikke utført hulltaking/fuktmåling.
- Innvendig stakeluke er ikke påvist inne i boenheten. Det er ikke kjent om stakeluker eller tilsvarende stakepunkter er prosjektert og etablert i bygningens fellesarealer.
- Taktekking (med tilhørende beslag), vannbord, vindskier, gesimskasser o.l, takgjennomføringer og skorsteiner er ikke besiktiget.
Øvrige kontrollpunkter er vurdert til TG1 (tilstandsgrad 1 - i orden).
Ovennevnte er kun ment som et utdrag fra vedlagt tilstandsrapport. For fullstendige beskrivelser og forklaringer på tilstandsgradene samt kommentarer ellers utover dette henvises til rapporten.
Standard
Eiendomsmegler Krogsveen v/ Bjørn Erik Dørum-Persen har gleden av å presentere Øivinds vei 7!
En lys og gjennomgående 3-roms beliggende høyt og fritt i byggets øverste etasje. Vestvendt, solrik balkong på hele 10 kvm! Her får du en lys stue med utgang til balkong, romslig separat kjøkken, to gode soverom, pent baderom og praktisk entré med god lagringsplass.
Øivinds vei er en rolig enveiskjørt gate, omkranset av grøntarealer med kort vei til marka, butikker og offentlig transport. Her er det et ungt, sporty og godt bomiljø.
Dette er leiligheten for deg som ønsker kort vei til både sentrum og skogen, i rolige og barnevennlige omgivelser det er lett å finne seg til rette i.
Nærmere innhold:
Stue:
Stuen oppleves både lys og luftig med store vindusflater som skaper en god atmosfære i hele rommet. Her er det god plass til en romslig sofagruppe med tilhørende salongbord og tv-seksjon, samt et hyggelig spisebord. Rommet er romslig og har en veldimensjonert utforming hvor du med enkelthet kan innrede etter eget ønske og personlige stil. Stuen ble malt i 2019 i en lun farge med parkett på gulv. Fra stuen tas du videre til en vestvendt, solrik balkong som blir en herlig forlengelse av stuen hele sommeren!
Balkong:
Balkongen ligger høyt og fritt i byggets øverste etasje og er på hele 10 kvm! Her er det god plass til utemøblement som sittegruppe og grill. Det er tillatt med el- og/eller gassgrill på balkongene. Balkongen har og gode solforhold med sol store deler av dagen, og selger opplyser om sol fra ca. kl. 13 til 21 midtsommers. Solskjerming i form av el-markise er montert som gjør balkongen sval på de varmeste dager. Balkongene ble rehabilitert av borettslaget i 2012/2013. Etter fasaderehabiliteringen i 2025 er det installert ny kabel, stikkontakt og ny utelampe på balkongen. Dette ble gjort av faglært.
Kjøkken:
Romslig separat kjøkken med god skap- og benkeplass, samt naturlig plass til et hyggelig spisebord langs store vindusflater. Her får du rikelig med naturlig lys, samt et hyggelig utsyn over borettslagets grønne fellesområder. Kjøkkeninnredning med hvite, profilerte fronter, benkeplate av laminat og nedfelt oppvaskkum i rustfritt stål med ett-greps armatur. Kjøkkenet har frittstående hvitevarer som kjøleskap med frysedel, oppvaskmaskin og komfyr med kullfilterventilator plassert i overskap over. Kjøkkenet er malt i lyse toner med mørke fliser på vegg mellom benkeplate og overskap, samt gulvflater belagt med laminat. Det er montert praktisk benkeskapsbelysning og stikkontakter over kjøkkenbenk.
Soverom I:
Lyst og behagelig hovedsoverom av god størrelse med store vindusflater som skaper et luftig oppholdsrom. Her er det godt med plass til både dobbeltseng og tilhørende nattbord. Det er og gode oppbevaringsmuligheter i romslig skyvedørsgarderobe. Rommet er som resten av leiligheten malt i tidsriktige farger, med laminat belagt på gulv.
Soverom II:
Soverom II er og av god størrelse og deretter fleksibelt i bruk. Rommet egner seg like godt som både barnerom, gjesterom og kontor, med god plass til seng, skrivepult og garderobeskap. Rommet ble i 2021 malt i en lun farge, med samme gjennomgående laminat på gulv. Godt med lysinnslipp fra stort vindu.
Baderom:
Delikat, flislagt bad med gulvvarme og downlights. Badet ble pusset opp i regi av borettslaget i 2005. Baderomsinnredning med vegghengt servantskap, ovenpåliggende servant med ett-greps armatur, samt både speil og skap på vegg over. Videre har badet vegghengt toalett og dusjhjørne med praktiske, innfellbare glassdører. Opplegg og god plass for vaskemaskin.
Entré:
Lys og innbydende entré med god plass til oppheng av yttertøy og sko, samt godt med lagringsplass i en romslig skyvedørsgarderobe med speildører. Entréen er malt i behagelige farger med laminat belagt på gulv.
Takhøyder:
Takhøyder er målt på tilfeldige steder i boligen. Det er målt ca. 2,22 meter takhøyde i bad. Ca. 2,46 meter i kjøkken. Ca. 2,48 meter i stue. Ca. 2,49 meter i entré og ca. 2,50 meter i begge soverom.
Diverse:
- Godt med lagringsplass i 2 eksterne boder
- Kjellerboden på 4 kvm er lukket og perfekt til sportsutstyr
- Loftsbod med skråtak og gulvareal på 10 kvm
- Boligen har entrédør med brannklasse B30 og lydklasse db35
- Felles sykkelbod og vaskeri
- Felles rom i kjeller hvor du kan ha sin egen fryser
- Leie av p-plass med/uten elbil-lader etter venteliste
- Forkjøpsretten er forhåndsutlyst
Løsøre og tilbehør
Vi viser til liste fra Norges Eiendomsmeglerforbund som gjelder fra 01.01.2020 angående løsøre og tilbehør.
Det gjøres oppmerksom på at hvitevarene er kjøpt for noen år tilbake, og kjøper må forvente slitasje som følge alder og normal bruk.
Følgende vil ikke følge med salget:
- Vegghyller, tavler, bilder på soverom 2
- Bilder, 2 x lamper i vindu/tak, ikea-lysbryter på kjøkken
- Kommode ved vindu, 2 x lys på vegg ved seng på soverom 1
- Bokhylle, bilder, tv, ikea-lysbryter i stuen
- Kroker i gangen
- Ikea Ivar-hyller i kjellerbod
Oppvarming
Oppvarming via radiatorer tilknyttet sentralvameanlegg. Varmekabler på badet.
Dersom beboelsesrom ikke har vegg- eller fastmonterte varmekilder ved visning, følger dette heller ikke med.
Ferdigattest/brukstillatelse
Det foreligger et arkivkort som viser til ferdigattest på eiendommen datert 07.05.1958. Det foreligger ferdigattest på rehabilitering av bad datert 14.07.2006 og ferdigattest på nye balkonger datert 02.08.2013. Disse kan fås ved henvendelse til megler.
Kjøper overtar eiendommen slik den fremstår på visning.
Tinglyste heftelser og rettigheter
Utover andel fellesgjeld overdras leiligheten fri for pengeheftelser.
Borettslaget har legalpant for forfalte felleskostnader og andre krav som følger av borettslagsforholdet iht. burettslagsloven § 5-20. Pantet er begrenset oppad til 2G (G = folketrygdens grunnbeløp).
Det er tinglyst 8 servitutter på borettslagets eiendom. Disse omhandler blant annet 1 bestemmelse om veg (kloakkledning, regulering av areal i forbindelse med veggrunn/jernbanegrunn og gjerde), 2 bestemmelser om garasje/parkering, 4 bestemmelser om vann/kloakkledning og 1 erklæring/avtale (rett for kommunen til å anlegge og vedlikeholde ledninger m.m.).
Servituttene vil følge eiendommen. Kjøpers bank vil få pant etter ovennevnte heftelser og servitutter.
Eventuell adgang til utleie
Andelseier kan ikke uten samtykke fra styret i borettslaget overlate bruken av boligen til andre. Med samtykke kan andelseier overlate boligen til andre i inntil tre år hvis andelseier har bodd i boligen i minst ett av de to siste år. Utleie i andre tilfeller kan godtas ved særlige grunner, jf. burettslagslova § 5-6. Utleie forutsetter at leiligheten har forsvarlige radonverdier. Se også borettslagets vedtekter og konferer megler ved spørsmål.
Beliggenhet og tomteforhold
Beliggenhet og tomteforhold
Beliggenhet
Boligen ligger i et etablert, rolig og barnevennlig boligområde på Årvoll. Boligen ligger i en blindvei med store opparbeidede grøntarealer i umiddelbar nærhet, noe som gjør boligen meget velegnet for både barn og voksne. Kort vei til barnehage, barne- og ungdomsskole, div. forretninger og offentlig kommunikasjon.
Gangavstand til marka med turstier og lysløyper samt Grefsenkleiva alpinanlegg. Koselige Årvoll Gård med dyr og aktiviteter for hele familien ligger kun en kort spasertur unna, samt badedammen på Tonsenhagen med bademuligheter om sommeren og akebakke om vinteren.
Årvoll senter ligger kun 4 minutters gange fra boligen med matbutikk, apotek, frisør, kafé og treningssenteret EVO like ved. Det er og kort vei til både Linderud senter og Storo senter med et bredt utvalg av butikker og servicetilbud.
Få minutters gange til offentlig kommunikasjon. Nærmeste bussholdeplass er Årvoll senter eller Bjerke med buss nr. 31, som har avganger hele døgnet hele uken, nr. 25 til Majorstuen, nr. 58, nr. 380 og nr. 390. Med buss fra Årvoll tar det ca. 4 minutter til Sinsen T-bane. Kort vei til flybussen fra Bjerke som tar deg til Oslo Lufthavn på under en time.
Dette er en bolig for deg som ønsker å bo sentralt, men samtidig bo i rolige og grønne omgivelser.
Adkomst
Det vil bli skiltet med Krogsveen visningsskilt ved fellesvisninger.
Barnehager, skoler og fritid
Boligen sogner til Årvoll barne- og ungdomsskole.
Det er flere barnehager i området, blant annet:
Årvoll barnehage (1-6 år) 4 min
Læringsverkstedet Årvollveien bhg. (1-4 år) 5 min
Læringsverkstedet Bjerke Panorama (1-5 år) 6 min
Informasjon om tilhørende skolekretser er hentet fra Prognosesenteret som dataleverandør og tilhørigheten kan årlig endres av kommunen. Dersom skole- og barnehagetilbud er av betydning for kjøpet, ber vi om at det rettes en særskilt henvendelse til kommunen/bydelsadministrasjonen for oppdatert informasjon.
Beskrivelse av tomt
Eiertomt på 16.476 kvm som tilhører borettslaget. Borettslaget har felles tomteareal opparbeidet med blant annet asfalterte veier, sykkelstativer, sittebenker, plenarealer og lekeområde.
Parkering
Borettslaget har 75 parkeringsplasser som leies ut etter venteliste. Ventetiden er vanskelig å forutsi da den avhenger av en oppsigelse fra eksisterende leietaker.
Leie av parkeringsplass koster kr 150,- pr. mnd.
I 2019 ble det også lagt til rette for totalt 8 plasser til elbil. Elbilplasser koster kr 750,- pr. mnd.
Det er per dags dato kostnadsfri gateparkering i Bård Skolemesters vei og Øivinds vei.
I tillegg er det to garasjelag i borettslaget med til sammen 72 garasjeplasser. Begge disse er separate selskaper som organiserer seg selv. Det er svært sjelden omsetning av garasjer i det ene garasjelaget, mens det andre har 63 garasjer + 1 motorsykkelplass, fordelt over hele området. Kjøp av garasje gjøres ved henvendelse til garasjelagets styre som forestår omsetningen etter ventelisteprinsippet .
Det er også 10 kommunale ladeplasser i Bård Skolemesters vei med god kapasitet.
For øvrig gateparkering etter områdets bestemmelser.
Vei, vann og avløp
Eiendommen har adkomst via kommunal vei og private stikkveier med felles vedlikeholdsansvar for borettslaget.
Eiendommen er tilknyttet kommunalt ledningsnett via private stikkledninger. Borettslaget er ansvarlig for private stikkledninger til bygningen.
Regulerings-og arealplaner
Eiendommen er regulert til boligformål i henhold til reguleringsplan S-2864 datert 14.05.1986 med tilhørende reguleringsbestemmelser.
Kommunedelplan: KDP-17.
Utsnitt av plan med tilhørende bestemmelser kan fås ved henvendelse til megler.
Det er søkt om riving av garasjer om oppføring av nye garasjer for garasjene i borettslaget. Disse ligger langs Bård Skolemesters vei og ved Øivinds vei 16 og 22. Forslaget har tilnærmet samme uttrykk som eksisterende garasjer i fotavtrykk og takform. Høydene er imidlertid økt og antall biloppstillingsplasser er redusert for å tilpasse seg dagens moderne biler. Se saksnummer 2026/00171, 2026/00173 og 2026/00175 hos Plan- og Bygningsetaten for mer informasjon.
Det er vedtatt bygging av forretning/boliger i Årvollveien 15 (gammel del av Årvoll senter). Riving av eksisterende bygning er utført. Rammetillatelsen inneholder oppføring av blokk på syv etasjer inkludert to kjeller-/underetasjer. Tomten er solgt til en ny utbygger som har sendt inn endringssøknad som gjelder blant annet grad av utnytting, leilighetsfordeling og parkeringsdekning. Den opprinnelse rammetillatelsen utløp 26. januar 2026 og PBE har anbefalt utbygger å sende inn ny søknad om rammetillatelse. Støy og byggearbeider vil forekomme når byggingen settes i gang. Se saksnummer 202212136 og 2025/10603 hos Plan- og Bygningsetaten.
Det ble i 2019 gitt et planforslag for oppgradering av gang- og sykkelveien som går forbi borettslaget langs RV 4, fra Årvoll skole til Sinsen. Formålet med prosjektet er å tilrettelegge for mer bruk av miljøvennlig transport ved å etablere ny sykkelveg med fortau, samt ny og forbedret kollektivholdeplass ved Bjerke. Planforslaget er i dag til offentlig ettersyn. Se saksnummer 201904064 og 2025/06789 hos Plan- og Bygningsetaten for mer informasjon.
I februar 2010 sa bystyret ja til trikk fra Sinsenkrysset, langs Trondheimsveien, via Årvollveien og Rødbergveien, til Tonsenhagen/Linderud. I 2011 ble konsekvensutredningen for traseen gjennomført. Trikk til Tonsenhagen er en av 13 foreslåtte strekninger iht. rapport "Videreutvikling av trikkenettet i Oslo" utarbeidet av Multiconsult på vegne av Ruter datert 22.05.2020. Tonsenhagen en av strekningene de anbefaler å arbeide videre med der trikk er hovedalternativ. Trikk til Bjerke (Tonsenhagen) er også inntatt som en del av Oslopakke 3. Oslopakke 3 er plan for veiutbygging, drift og utbygging av kollektivtrafikk i Oslo og Akershus. Tidshorisonten er 2008-2045.
For strekningen mellom Bjerke og Årvoll foreslås det å legge traséen i en ca. 200 meter lang kulvert som kommer opp mellom Traverveien 3 og 5. Ved kryssingen under Traverveien ligger topp-kulvert noe over eksisterende terreng, og det er derfor forutsatt at Traverveien må heves inntil 2 meter. Dette vil påvirke adkomstforholdene langs Traverveien.
Reguleringsplanen er til offentlig høring og politisk behandling. Byggestøy og anleggsarbeid må påregnes dersom arbeidet igangsettes.
Se saksnummer 201004818 hos Plan- og Bygningsetaten for mer informasjon.
Det er i dag planlagt en omfattende byutvikling av området rundt Bjerke travbane, beliggende rett ovenfor Trondheimsveien fra boligen. Store deler av områder rundt Bjerke Travbane skal transformeres til en ny torg- og parkby med ca. 1500 nye boliger, sammen med handel, service og kulturtilbud. Dette vil desidert være til fordel for området med blant annet et bredere tilbud av butikker, restauranter og kafeer i nærhet av boligen.
På tomten til Bjerke travbane er det lagt frem et omfattende planinitiativ. Selvaag Bolig ønsker å starte opp en omregulering av felt N4-N8, Torgbyen på Bjerke, i tråd med føringene i planprogram om felles regulering av disse feltene. I den forbindelse er det utarbeidet et planinitiativ for det kommende planarbeidet som skal vise hva som skal vurderes i plansaken. Det er potensiale for opp mot 600-700 boliger i Nordfeltet (Torgbyen) og 1100 boliger i Sørfeltet (Parkbyen). Det planlegges med en forventet ferdigstillelse av 150-200 boliger per år i en 10-årsperiode. Foreløpig så ligger det an til politisk behandling av sakene høsten 2026.
Saksnummer 202213772 og 2025/0690 (Bjerke Nord, Torgbyen).
Saksnummer 202213600 og 2025/06705 (Bjerke Syd, Parkbyen).
Se saksnumrene hos Plan- og bygningsetaten for mer informasjon.
Prosjektet kan sees på: https://www.selvaagbolig.no/oslo/bjerke/
Bystyret vedtok 23. mars 2022 å omregulere Refstadveien 102 fra forretninger og transformatorstasjon til boliger. Det pågår bygging av et tårnbygg på 40 meter (12 etasjer) i kombinasjon med en lavere lamell på 17 meter (4 etasjer). Mot Refstadveien skal første etasje inneholde utadrettet virksomhet (f.eks. butikk) mot et torg. Lamellen skal skjerme de nye boligenes utearealer fra støy i Refstadveien. Totalt inneholder prosjektet 63 boenheter. Dagens turvei gjennom Bjerke borettslag skal fortsette gjennom planområdet fram til Refstadveien. En fremtidig utvidelse av Refstadveien sikres. Se saksnr. 201715003 hos Plan- og bygningsetaten for mer informasjon. Salget er i gang og prosjektet kan følges på: https://bolig.soeiendom.no/boliger-til-salgs/pilar-bjerke/til-salgs.
I Refstadveien 60-74 foreligger det planer for omregulering av tomtene. Forslagsstiller Attivo Bolig Bjerke AS ønsker å omregulere Refstadveien 60-74 fra byggeområde for Kontor- og forretningsbygg til Kombinert bebyggelse og anleggsformål - Forretning/kulturinstitusjon/annen offentlig eller privat tjenesteyting (treningssenter, service, helse og velvære)/kontor/bevertning/lager. Det skal oppføres to nye bygg på planområdet i to byggetrinn Dagens bruk ønskes videreført og utvidet med større tilbud av aktiviteter og service for nærområdet (deriblant bibliotek). Planforslaget muliggjør planlagt utvidelse av Refstadveien. Plan- og bygningsetaten anbefaler planforslaget. Reguleringsplanen foreslår nye og utvidete byggegrenser mot riksveianlegg. Planene inneholder bygg på maks 7 etasjer og 3 underetasjer.
Siste status er at Statens vegvesen har innsigelser og merknader til planforslaget og det bløe avholdt et møte med involverte parter 7. januar 2026 . Se saksnr. 201915380 og 2025/06893 hos Plan- og Bygningsetaten for mer informasjon.
Det ble for noen år siden avholdt et mulighetsstudie på tomten i Refstadveien 52 (Circle K-tomten). Her er det sett på to alternativer, ett med boliger over bensinstasjon og ett med hotell/kontor/næring. Begge alternativene inneholder forslag til bygg med inntil 8 etasjer.
Opplistingen er ikke uttømmende og interessenter oppfordres til å sette seg inn i reguleringsplaner for området. Utsnitt av plan med tilhørende bestemmelser kan fås ved henvendelse til megler.
Økonomi
Økonomi
Boligens kostnader
Felleskostnadene er kr 7.061,- pr. mnd. og inkluderer: fyring, varmtvann, kabel-tv/internett (grunnpakke), nedbetaling av fellesgjeld, trappevask, fellesvaskeri, vaktmestertjenester, kommunale avgifter, felles bygningsforsikring, forretningsførsel, drift, vedlikehold mv.
Felleskostnadene justeres etter borettslagets faktiske utgifter, normalt en til to ganger årlig.
Felleskostnadene fordeles slik:
Felleskostnader. kr 4.750,-
Renter. kr 1.708,-
Avdrag: kr 590,-
Nåværende eier hadde et strømforbruk på ca. kr. 2.353,- / 2.000 kwh. for 2025.
Boligen er tilknyttet Telia som leverandør av kabel-tv og internett. Tv-tuner/dekoder medfølger ikke.
Utgiftene er basert på nåværende eiers forbruk. Kjøper må selv tegne innboforsikring.
Formuesverdi
Formuesverdi for 2024 var kr 1 242 816,- ifølge Skatteetaten. Beløpet forutsetter at eier bor fast i boligen (primærbolig).
Ved eventuell øvrig bruk av eiendommen (f.eks. fritidsbolig, pendlerbolig, utleieobjekt) var formuesverdien for 2023 kr 4 971 262,-.
Fra 2026 har Stortinget vedtatt en oppdatert modell for beregning av formuesverdi for primærbolig, så avvik kan forekomme.
For mer informasjon se skatteetaten.no.
Opplysninger om fellesgjeld
Andel formue er kr 58 862,- pr. 31.12.2024.
Andel fellesgjeld er kr 426 770,- pr. 06.03.2026.
Total fellesgjeld for boligselskapet var kr kr 96 245 600,- pr. 15.10.2025 og lånevilkårene er:
Lånenummer: 16369021234, DNB Bank ASA
Annuitetslån, 12 terminer per år.
Rentesats per 15.10.2025: 4.95% pa.
Første termin/første avdrag: 30.04.2025 og siste termin: 31.10.2054
Dette borettslaget har ikke tilrettelagt for individuell nedbetaling av andel fellesgjeld (IN-ordning).
Omkostninger
4 550 000,00 Prisantydning
426 770,00 Andel av fellesgjeld
--------------------------------------------------------
4 976 770,00 Pris inkl. fellesgjeld
Omkostninger
8 255,00 Gebyr forhåndsavklaring forkjøpsrett
9 950,00 Gjensidige Boligkjøperpakke (valgfri)
545,00 Tinglysing hjemmel
545,00 Tinglysing panterettsdokument
--------------------------------------------------------
19 295,00 Omkostninger totalt
--------------------------------------------------------
4 996 065,00 Totalpris inkl. omkostninger
--------------------------------------------------------
Dersom kjøper ikke er medlem av boligbyggelaget, må det påregnes en innmeldingsavgift og årlig medlemsgebyr pr. ny andelseier. Dette faktureres direkte fra boligbyggelaget.
Dersom borettslaget har fellesgjeld, vil leilighetens andel av fellesgjelden komme i tillegg til kjøpesummen. Denne gjelden skal ikke innbetales i oppgjøret, men følger leiligheten.
Det tas forbehold om endringer i avgifter og gebyrer.
Tilbud om lånefinansiering
Megler formidler gjerne kontakt med rådgiver hos vår samarbeidspartner BN Bank. De har konkurransedyktige betingelser samt rask og løsningsorientert behandling av din lånesøknad. Krogsveen mottar et honorar for denne formidlingen.
Betalingsbetingelser
Kjøpesum inkludert omkostninger, samt pantedokument tilknyttet eventuelt lån, skal være disponibelt hos megler 2 virkedager før overtagelsen.
Annen viktig informasjon
Annen viktig informasjon
Eier
Filip Hartvigsen og Ingvild Sagmoen
Informasjon om borettslaget
Leiligheten er tilknyttet Årvoll Vest borettslag.
Borettslaget består av 224 leiligheter.
Forretningsfører er USBL, tlf. 22 98 38 00.
Dugnad må påregnes.
Dyrehold er tillatt dersom det ikke er til ulempe for andre beboere. Styret skal ha melding om hundehold og egen avtale om hundehold skal underskrives av andelseier før hundeholdet begynner.
Borettslaget har egen hjemmeside: www.arvoll-vest.no.
Foretatt påkostninger de senere år:
Vinter 2025/2026: Spyling av avløpsrør
2025: Nye vinduer, balkongdør og etterisolering av fasade og nye inngangsdører
2024: Overflatebehandling av inngangspartier og oppganger
2022: Ny avfallsordning med nedgravde beholdere
2014 - 2020: Nye tak
2013: Utskifting av balkonger
2004/2005: Rehabilitering av våtrom
Planlagte påkostninger:
- Borettslaget har orientert beboerne om at dreneringen er gammel og det vil bli behov for å fornye denne i løpet av noen år.
- I følge styreleder kartlegges tilstanden på bunn- og uttrekksledninger og det kan bli aktuelt med oppgradering/utskiftning av disse. Omfang, tidspunkt og kostnader er ikke klart p.t.
I henhold til borettslagets vedtekter må kjøper godkjennes av styret som ny andelseier. Det er kjøpers ansvar at styregodkjenning blir gitt, men styret kan ikke nekte godkjenning uten saklig grunn. Iht. burettslagslova kan man bare eie én andel i borettslaget. Kun fysiske personer kan være andelseiere.
Øvrige andelseiere i borettslaget og eventuelt medlemmer av boligbyggelaget har forkjøpsrett. Forkjøpsretten er forhåndsutlyst og dersom forkjøpsretten benyttes løses kjøper fra avtalen.
Borettslaget er sikret mot tap av felleskostnader som følge av at en andelseier unnlater å betale sine felleskostnader i Klare Finans AS. Avtalen om sikring er gyldig til avtalen sies opp av en av partene. Oppsigelsesfristen er 1. desember med gyldighet fra førstkommende årsskifte.
Dokumenter for borettslaget kan fås ved henvendelse til megler.
Overtakelse
Etter nærmere avtale. Overtakelse kan tidligst skje etter at forkjøpsretten for øvrige andelseiere i borettslaget og eventuelt medlemmer av boligbyggelaget er avklart, samt at styrets godkjennelse er avklart.
Boligselgerforsikring
Selger har i forbindelse med salget tegnet boligselgerforsikring levert av Gjensidige.
Boligselgerforsikringen dekker selgers ansvar etter avhendingsloven begrenset oppad til kr 14 millioner. Dersom kjøper oppdager forhold ved eiendommen som hen mener utgjør en mangel ved eiendommen, vil Gjensidige behandle reklamasjonen på vegne av selger. Forsikringsvilkår kan fås ved henvendelse til megler.
Vedlagt salgsoppgaven følger selgers egenerklæringsskjema og tilstandsrapport. Interessenter må sette seg inn i dokumentene før bud inngis.
Boligkjøperforsikring
Innen kontraktsmøtet må kjøper ta stilling til om det ønskes å bestille Boligkjøperpakken gjennom Gjensidige. I denne gunstige pakken er boligen ferdig forsikret og inkluderer rettshjelpsforsikring, også kalt Boligkjøperforsikring. Rettshjelpsforsikring gir trygghet og tilgang på profesjonell juridisk hjelp dersom det oppdages uventede feil eller mangler det første året etter overtagelse. Forsikringsselskapet behandler i så fall ethvert mangelskrav kjøper måtte ha overfor selger.
Boligkjøperpakken inkluderer bygningsforsikring for hus og hytte, innboforsikring, flytteforsikring og dobbel rentedekning - i situasjoner hvor kjøper ikke får solgt nåværende primærbolig.
Kjøper mottar ingen særskilt faktura for Boligkjøperpakken da kostnaden det første året legges til kjøpesummen for boligen. Det gjøres oppmerksom på Krogsveen mottar et honorar for denne formidlingen.
Produktark for Boligkjøperpakken ligger vedlagt i salgsoppgaven.
Dersom ikke boligkjøperpakke ønskes kan kun rettshjelpsforsikring, også kalt boligkjøperforsikring, tegnes særskilt via megler. Rettshjelpsforsikringen varer i 5 år fra overtagelse og leveres gjennom Gjensidige. Ta kontakt med megler for ytterligere informasjon.
Selskap og privatpersoner som driver med kjøp/salg/utvikling som ledd i egen næringsvirksomhet kan ikke tegne boligkjøperpakke eller rettshjelpsforsikring.
Budgivning
Forbrukerinformasjon om budgivning er vedlagt denne salgsoppgaven og er også på vår hjemmeside www.krogsveen.no. Alle bud og budforhøyelser må inngis skriftlig. I tillegg må legitimasjon være fremlagt sammen med signatur fra budgiver.
Vi oppfordrer til å gi bud elektronisk via GI BUD-knappen på eiendommens hjemmeside på Krogsveen.no. Da vil samtlige vilkår bli oppfylt.
Eventuelle forhøyelser eller endringer av budet kan bekreftes pr SMS eller på e-post. Vi oppfordrer alltid til å kontakte megler pr. telefon i tillegg da forsinkelser i SMS og e-post kan forekomme.
For at budene skal kunne bli behandlet og videreformidlet skriftlig til alle involverte parter, må alle bud ha en tilstrekkelig lang akseptfrist, jf. eiendomsmeglingsforskriften § 6-3.
Selger må også skriftlig akseptere budet før aksept kan formidles til budgiver. Akseptfrist bør derfor være på minimum 30 minutter, og budforhøyelser må derfor skje i god tid før fristens utløp.
Bud i forbrukerforhold kan uansett ikke settes med kortere frist enn kl. 12.00 første virkedag etter siste annonserte visning.
Etter at eiendommen er solgt vil kjøper og selger få tilsendt budjournal. Øvrige budgivere kan få utlevert kopi av budjournalen i anonymisert form.
Hvitvaskingsreglene
I henhold til lov om hvitvasking og terrorfinansiering har megler plikt til å gjennomføre kontrolltiltak overfor kunder, herunder fullmektiger. Dette innebærer bl.a. å bekrefte kunders og reelle rettighetshaveres identitet på bakgrunn av fremvist gyldig legitimasjon eller på annen godkjent måte, samt å innhente opplysninger om kundeforholdets formål og tilsiktede art.
Dersom slike kundetiltak ikke kan gjennomføres, kan megler ikke etablere kundeforholdet eller utføre transaksjonen.
Hvis kjøper ikke bidrar til gjennomføring av kundekontrollen og dette fører til at transaksjonen blir forsinket eller ikke kan gjennomføres, vil dette ansees som mislighold av avtalen og gi selger rettigheter etter avhendingslova kapittel 5. I tilfeller der selger ikke bidrar til gjennomføring av løpende kundekontroll underveis i oppdraget, er det selger som misligholder sine forpliktelser etter avtalen og gi kjøper rettigheter etter avhendingslovens kapittel 4. Partene er selv ansvarlige for eventuelle kostnader og ansvar dette kan medføre. Eiendomsmegleren eller eiendomsmeglingsforetaket kan ikke holdes ansvarlig for de konsekvenser dette vil kunne få for partene eller andre som har interesser i eiendomshandelen.
Kjøper oppfordres til å innbetale kjøpesummen som ikke kommer fra låneinstitusjon i én samlet innbetaling fra egen konto i norsk bank. Megler har plikt til å melde fra til Økokrim om eiendomshandler som fremstår som mistenkelige. Melding sendes Økokrim uten at partene varsles.
Personopplysningsloven
I henhold til personopplysningsloven gjør vi oppmerksom på at interessenter kan bli registrert for videre oppfølging.
Lovanvendelse
Generelle bestemmelser
Salgsoppgaven er basert på de opplysningene selger har gitt til megler, den bygningssakyndiges tilstandsrapport, samt opplysninger innhentet fra kommunen, Kartverket og andre tilgjengelige kilder. Det er viktig at kjøper setter seg grundig inn i alle salgsdokumentene, herunder salgsoppgave, tilstandsrapport og selgers egenerklæring. Kjøper anses kjent med forhold som er tydelig beskrevet i salgsdokumentene, og slike forhold kan ikke påberopes som mangler. Dette gjelder uavhengig av om kjøper har lest dokumentene. Alle interessenter oppfordres til å undersøke eiendommen nøye, gjerne sammen med fagkyndig før bud inngis. Kjøper som velger å kjøpe usett kan ikke gjøre gjeldende som mangel noe han burde blitt kjent med ved undersøkelsen.
Dersom det er behov for avklaringer, anbefaler vi at interessenter rådfører seg med eiendomsmegler eller egne rådgivere før det legges inn bud.
En bolig som har blitt brukt i en viss tid, har vanligvis blitt utsatt for slitasje og skader kan ha oppstått. Slik bruksslitasje må kjøper regne med, og det kan avdekkes enkelte forhold etter overtakelse som nødvendiggjør utbedringer. Normal slitasje og skader som nødvendiggjør utbedring, er innenfor hva kjøper må forvente og vil ikke utgjøre en mangel.
Kjøper og selgers rettigheter og plikter reguleres av avtalen mellom partene, samt informasjonen som har vært tilgjengelig for kjøperen i forbindelse med handelen. Avtalen utfylles av avhendingsloven, og det gjelder ulike avtalevilkår avhengig av om kjøper er forbrukerkjøper eller ikke. Dette er nærmere beskrevet nedenfor.
På grunn av ulike avtalevilkår kan selger vurdere bud fra en som ikke er forbruker, ulikt fra en forbrukers bud. Dersom kjøper ikke er forbruker, er selger sitt mulige mangelsansvar begrenset fordi eiendommen selges "som den er". Selger kan ikke ta «som den er»- forbehold overfor en forbrukerkjøper. Selv et lavere bud fra en som ikke er forbruker kan foretrekkes fordi begrensningen i mulig mangelsansvar kan ha egenverdi for selger. Selger står fritt til å forkaste eller akseptere ethvert bud, og er for eksempel ikke forpliktet til å akseptere høyeste bud.
Budgiver skal i budskjema avgi egenerklæring om budgiver er forbruker eller næringsdrivende/ person som hovedsakelig handler som ledd i næringsvirksomhet. Budgivere får informasjon dersom andre bud er inngitt av en som ikke er forbruker.
Forbrukerkjøp - definisjon
Med forbrukerkjøp menes kjøp av eiendom når kjøperen er en fysisk person som ikke hovedsakelig handler som ledd i næringsvirksomhet.
Forbruker – avtalevilkår
Eiendommen har en mangel dersom den ikke er i samsvar med kravene som følger av avtalen, eller det foreligger brudd på bestemmelsene i avhendingsloven §§ 3-2 til 3-8. Hvis eiendommen ikke er i samsvar med det kjøperen må kunne forvente ut ifra alder, type og synlig tilstand, kan det være grunnlag for mangelskrav. Det samme gjelder hvis det er holdt tilbake eller gitt uriktige opplysninger om eiendommen. Dette gjelder likevel bare dersom man kan gå ut ifra at det virket inn på avtalen at opplysningen ikke ble gitt eller at mangelskravet ikke blir rettet i tide på en tydelig måte.
Boligen kan ha en mangel etter avhendingsloven § 3-3 andre ledd, dersom det er avvik mellom opplyst og faktisk innvendig areal, forutsatt at avviket er på 2% eller mer og minimum 1 kvm.
Ved beregning av et eventuelt prisavslag eller erstatning må kjøper selv dekke tap/kostnader opptil et beløp på kr 10 000 (egenandel).
Ikke-forbruker (næringsdrivende) – definisjon
Hvis kjøper er en juridisk person, eller en fysisk person som hovedsakelig handler som ledd i næringsvirksomhet, vil kjøpet ikke anses som et forbrukerkjøp.
Ikke-forbruker – avtalevilkår
Eiendommen har en mangel dersom den ikke er i samsvar med kravene som følger av avtalen.
Eiendommen selges «som den er», og selgers ansvar utover det konkret avtalte er da begrenset etter avhendingsloven § 3-9, første ledd andre setning.
Avhendingsloven § 3-3 andre ledd fravikes, og hvorvidt boligens arealsvikt utgjør en mangel vurderes etter avhendingsloven § 3-8.
Informasjon om kjøpers undersøkelsesplikt, herunder oppfordringen om å undersøke eiendommen nøye, gjelder også for kjøpere som ikke anses som forbrukere.
Det forutsettes at hjemmel overføres til kjøper. Hvis kjøper ikke ønsker hjemmelsoverføring av eiendommen, må det tas forbehold om dette i budet.
Meglers vederlag
Meglers vederlag betales av selger og er avtalt til:
Vederlag: 1,00 % av salgssummen inkl. eventuell fellesgjeld. Minimumsprovisjon er kr 60 000,00
Vederlag:
Kontroll av hjemmel og heftelser kr 2 900,00
Markedsføringspakke kr 28 250,00
Oppgjør kr 7 500,00
Tilrettelegging inkl. befaring med stylist kr 17 000,00
Visninger pr stk / Overtagelse kr 4 000,00
Utlegg:
Eierskiftegebyr forretningsfører (selger) kr 6 725,00
Innhenting av informasjon forretningsfører kr 3 630,00
Tinglysing sikring kr 545,00
Andre utgifter:
Boligselgerforsikring Buysure inkl. tilstandsrapport Anticimex kr 9 700,00
Foto - leilighet med collage Lasse Lerdahl kr 5 550,00
Opplysninger om oppdraget
Oppdragsnummer 39-0127/25
Eiendomsmegler Krogsveen AS, avd. Årvoll
Lofthusveien 66, 0588, OSLO
950 007 613
Oppdragets KR-kode KR39.25127
Dato
Sist oppdatert: 15. mars 2026 kl. 07:36
Dokumenter
Dokumenter
PDF – 972 KB
PDF – 165 KB
PDF – 3 MB
PDF – 312 KB
PDF – 29 KB
PDF – 127 KB
PDF – 392 KB
Område
Legg til steder som er viktige for deg
Visning
Unngå doble boligrenter
Vi tilbyr gunstig forsikring.
Vurderer du utleie?
Få et tilbud fra Utleie KrogsveenHva koster lånet?
Sjekk estimert lånekostnadVil du varsles om lignende boliger?
Ved å lagre ditt boligsøk hos oss får du beskjed når vi har en bolig som ligner denne, før den legges ut på markedet!

