Håkonskastet 1
6 550 000 kr
90 m²
3 soverom
Solgt

Varden
Attraktiv vestvendt 4-roms leilighet med fjordutsikt, stor solrik terrasse, peisovn, 2 wc, heis, 2 garasjeplasser.
Prisantydning
6 550 000 krOmkostninger
174 790 krTotalpris
6 724 790 kr
Pris
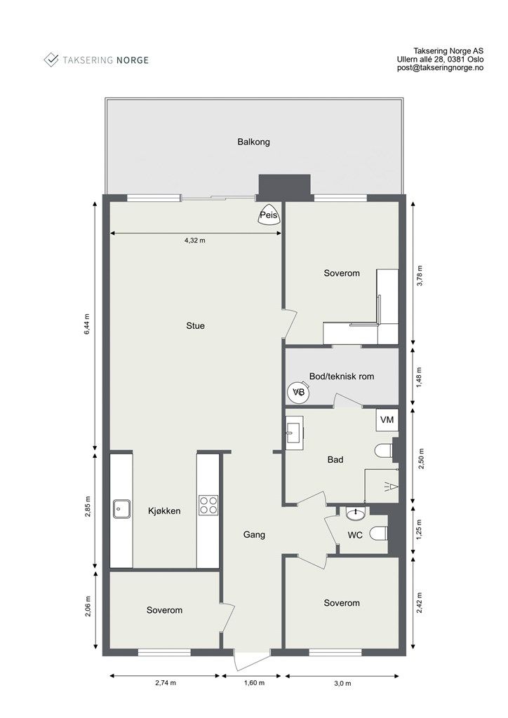
Bruksareal
96 m²BRA-I (internt bruksareal)
90 m²BRA-E (eksternt bruksareal)
6 m²TBA (terrasse-balkongareal)
16 m²
Areal
Etasje
2Byggeår
2012Soverom
3 soveromBad
1 badType
EierleilighetEierform
EierseksjonFasiliteter
Garasje/P-plass, Heis og Balkong/TerrasseFellesutgifter
3 325 krEnergimerke
Rød B
Nøkkelinfo
Unngå doble boligrenter
Vi tilbyr gunstig forsikring.
Vurderer du utleie?
Få et tilbud fra Utleie KrogsveenHva koster lånet?
Sjekk estimert lånekostnadBeskrivelse
Kort om eiendommen
Leiligheten har fin utsikt samt godt med vinduer på 2 sider. Stuen byr på store vindusflater mot utsikten i vest og en praktisk skyvedør gir direkte tilgang til den overbygde terrassen på ca 17 kvm. Her kan du nyte de magiske fargene i utsikten over Oslofjorden.
Gangavstand til butikker, barnehage, skole, hundepark, folkebad og flotte turområder i Nesoddmarka. Flere fine badeplasser i nærheten.
Umiddelbar nærhet til buss. «Tøffeltur» til Rehab-senteret med bl.a stort treningssenter, det meste innen helse, frisør, fotterapeut og restaurant med Oslofjordens flotteste uteservering.
Verdt å merke seg:
- Svært arealeffektiv leilighet
- 3 komfortable soverom
- Romslig flislagt bad med wc
- Separat wc-rom
- Innbydende stue og kjøkkenløsning
- Heis
- 2 garasjeplasser
- Godt med bodplass
Område
Legg til steder som er viktige for deg
På flyttefot? Tenk kjøp og salg samtidig.
Få din egen rådgiver gjennom hele kjøps- og salgsprosessen. Det starter med en verdivurdering.
Unngå doble boligrenter
Vi tilbyr gunstig forsikring.
Vurderer du utleie?
Få et tilbud fra Utleie KrogsveenHva koster lånet?
Sjekk estimert lånekostnadVil du varsles om lignende boliger?
Ved å lagre ditt boligsøk hos oss får du beskjed når vi har en bolig som ligner denne, før den legges ut på markedet!

