Eiksveien 60
3 950 000 kr
50 m²
1 soverom
Solgt

Presenteres av
Elias KarlsenLys 2-roms i 3. etg. m/ vestvendt balkong på 8 m². | Vannbåren varme & TV/internett inkl. | Rolig på Østerås.
Prisantydning
3 950 000 krAndel fellesgjeld
15 772 krOmkostninger
110 160 krTotalpris
4 075 932 kr
Pris
Bruksareal
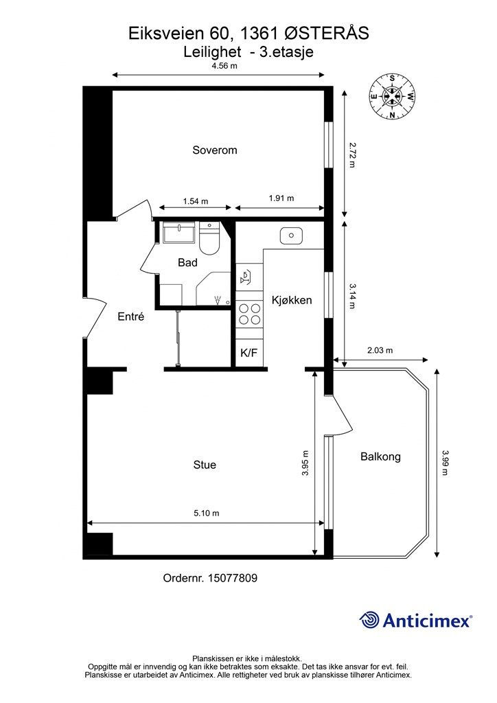
58 m²BRA-I (internt bruksareal)
50 m²BRA-E (eksternt bruksareal)
8 m²TBA (terrasse-balkongareal)
8 m²
Areal
Etasje
3Byggeår
1955Soverom
1 soveromBad
1 badType
EierleilighetEierform
EierseksjonFasiliteter
Balkong/TerrasseFellesutgifter
4 029 krEnergimerke
Nøkkelinfo
Unngå doble boligrenter
Vi tilbyr gunstig forsikring.
Vurderer du utleie?
Få et tilbud fra Utleie KrogsveenHva koster lånet?
Sjekk estimert lånekostnadBeskrivelse
Kort om eiendommen
Velkommen til Eiksveien 60! En arealeffektiv selveierleilighet i 3. etasje med vestvendt balkong og sentral beliggenhet på Eiksmarka.
Her bor du fredelig i et veletablert boligområde med alt du trenger like utenfor døren. Daglige innkjøp gjøres hos Joker, kun ett minutt unna. Med busstopp på Rideveien er reisen til Oslo sentrum eller Sandvika uanstrengt. Området byr også på flotte turmuligheter i nærområdet og innover i Bærumsmarka.
Høydepunkter:
Vestvendt balkong på 8 m²
Varmtvann og varme inkl.
Praktisk planløsning og god lagringsplass med to boder
Vannbåren varme via radiatorer og gulvvarme på bad
Integrerte hvitevarer på kjøkkenet
Få minutters gange til Lijordet T-bane
TV og internett er inkludert i felleskostnadene
Velkommen til visning
Område
Legg til steder som er viktige for deg
På flyttefot? Tenk kjøp og salg samtidig.
Få din egen rådgiver gjennom hele kjøps- og salgsprosessen. Det starter med en verdivurdering.
Unngå doble boligrenter
Vi tilbyr gunstig forsikring.
Vurderer du utleie?
Få et tilbud fra Utleie KrogsveenHva koster lånet?
Sjekk estimert lånekostnadVil du varsles om lignende boliger?
Ved å lagre ditt boligsøk hos oss får du beskjed når vi har en bolig som ligner denne, før den legges ut på markedet!
På flyttefot? Slik gjør vi det enklere for deg
Skreddersydd flyttepakke
Vi fikser håndverkere, vask, pakking, lagring og transport, og legger ut for utgiftene underveis.
Hjelp med både kjøp og salg
Hos oss har du din egen rådgiver gjennom hele kjøps- og salgsprosessen.
Hjelp til finansiering
Vårt samarbeid med BN Bank sikrer deg rask og løsningsorientert hjelp, til konkurransedyktige betingelser.
























