Steinbukken 43
3 200 000 kr
48 m²
1 soverom
Solgt

Neskollen
Meget pen leilighet på populære Neskollen - Perfekt førstegangskjøp!
Prisantydning
3 200 000 krOmkostninger
91 040 krTotalpris
3 291 040 kr
Pris
Bruksareal
53 m²BRA-I (internt bruksareal)
48 m²BRA-E (eksternt bruksareal)
5 m²TBA (terrasse-balkongareal)
23 m²
Areal
Etasje
1Byggeår
2023Soverom
1 soveromBad
1 badType
EierleilighetEierform
EierseksjonÅrlig velavgift
3 000 krFellesutgifter
1 535 kr
Nøkkelinfo
Unngå doble boligrenter
Vi tilbyr gunstig forsikring.
Vurderer du utleie?
Få et tilbud fra Utleie KrogsveenHva koster lånet?
Sjekk estimert lånekostnadBeskrivelse
Kort om eiendommen
Eiendomsmegler Krogsveen v/Marcus Grundy har gleden av å presentere Steinbukken 43, en moderne 2-romsleilighet fra 2023.
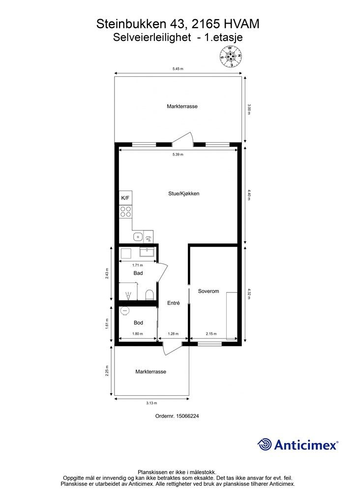
Inne i leiligheten blir du møtt av tidsriktige og gjennomtenkte valg som en god planløsning med en optimal arealutnyttelse. Her får du en åpen kjøkken/stueløsning, romslig soverom, innvendig bod som også kan brukes som garderobe, samt et romslig og innbydende bad.
Høydepunkter ved leiligheten:
- Perfekt førstegangskjøp.
- God planløsning.
- Solrik og skjermet uteplass.
- God beliggenhet med gangavstand til dagligvarebutikker og kollektivtransport.
- Carport med el. lader
- Romslig utvendig bod på 5kvm.
Leiligheten er det perfekte førstegangskjøpet for deg som ønsker å komme deg inn på boligmarkedet.
Velkommen til visning!
Område
Legg til steder som er viktige for deg
På flyttefot? Tenk kjøp og salg samtidig.
Få din egen rådgiver gjennom hele kjøps- og salgsprosessen. Det starter med en verdivurdering.
Unngå doble boligrenter
Vi tilbyr gunstig forsikring.
Vurderer du utleie?
Få et tilbud fra Utleie KrogsveenHva koster lånet?
Sjekk estimert lånekostnadVil du varsles om lignende boliger?
Ved å lagre ditt boligsøk hos oss får du beskjed når vi har en bolig som ligner denne, før den legges ut på markedet!

