Arne Garborgs vei 6E
3 500 000 kr
134 m²
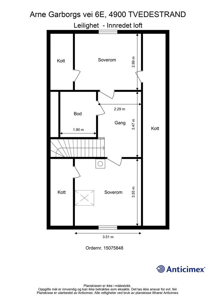
3 soverom
Solgt

Innholdsrik leilighet over 3 etasjer - Sentral og fin beliggenhet - 3 soverom - Parkering i garasjekjeller
Prisantydning
3 500 000 krOmkostninger
98 540 krTotalpris
3 598 540 kr
Pris
Bruksareal
139 m²BRA-I (internt bruksareal)
134 m²BRA-E (eksternt bruksareal)
5 m²TBA (terrasse-balkongareal)
18 m²
Areal
Byggeår
2001Soverom
3 soveromType
EierleilighetEierform
EierseksjonFasiliteter
Garasje/P-plass og Balkong/TerrasseFellesutgifter
1 794 krEnergimerke
Rød D
Nøkkelinfo
Unngå doble boligrenter
Vi tilbyr gunstig forsikring.
Vurderer du utleie?
Få et tilbud fra Utleie KrogsveenHva koster lånet?
Sjekk estimert lånekostnadBeskrivelse
Kort om eiendommen
Velkommen til Arne Garborgs vei 6E, en fin og lys 3-etasjers leilighet beliggende rett ved sentrum. Leiligheten inneholder bla. 3 soverom, kjøkken/spisestue, stue og bad, samt god oppbevaringsplass i bod og kott. Fra stuen i underetasjen er det utgang til stor terrasse med koselig utsikt. Hovedgatene i sentrum ligger like rundt hjørnet for leiligheten, og her finner man både bakeriutsalg, restauranter, vinmonopol, gallerier og mye mer. En hyggelig tur gjennom sentrum tar deg ned til sjøen og gjestehavna. Tvedestrand er et rolig og sjarmerende sentrum med hyggelige omgivelser. Det er skole, barnehage og busstopp i gangavstand fra leiligheten.
Område
Legg til steder som er viktige for deg
På flyttefot? Tenk kjøp og salg samtidig.
Få din egen rådgiver gjennom hele kjøps- og salgsprosessen. Det starter med en verdivurdering.
Unngå doble boligrenter
Vi tilbyr gunstig forsikring.
Vurderer du utleie?
Få et tilbud fra Utleie KrogsveenHva koster lånet?
Sjekk estimert lånekostnadVil du varsles om lignende boliger?
Ved å lagre ditt boligsøk hos oss får du beskjed når vi har en bolig som ligner denne, før den legges ut på markedet!

