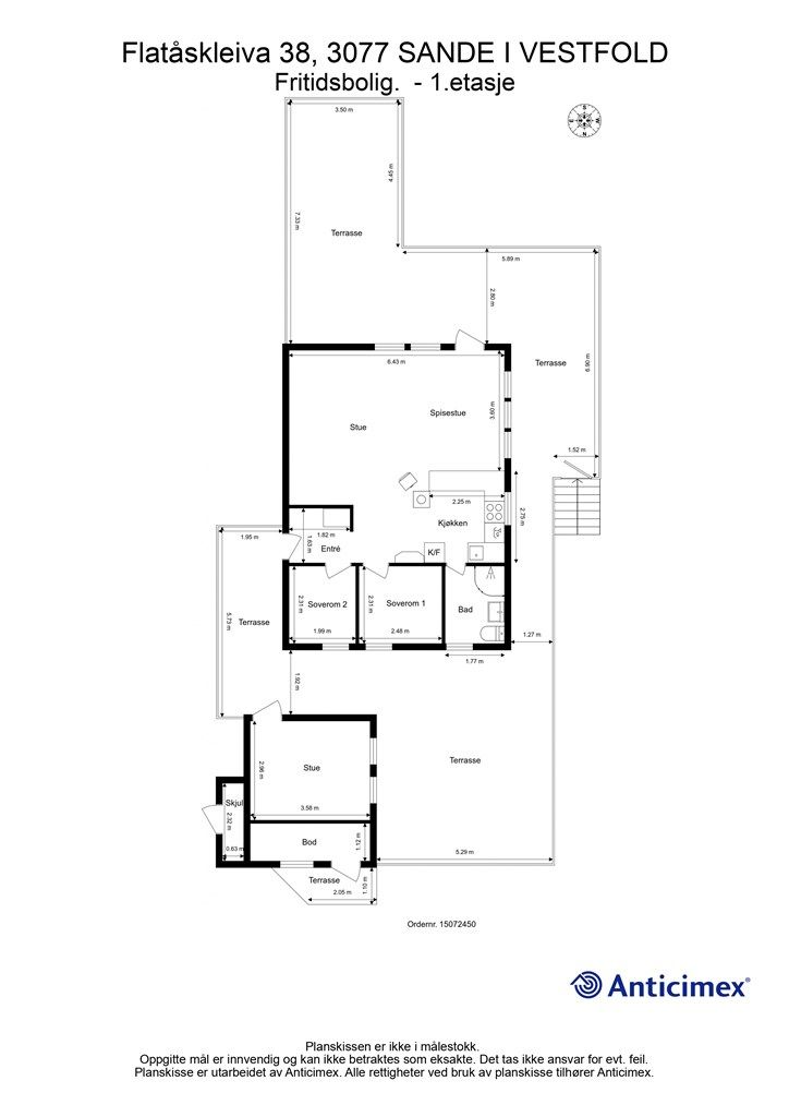
Flatåskleiva 38
3 100 000 kr
56 m²
2 soverom
Solgt

Presenteres av
Sondre Trøseng GjellumFlatåsen/Sande
Innbydende og velholdt sommerhytte beliggende i øvre del på Flatåsen. Romslig og solrik terrasse med flott sjøutsikt.
Prisantydning
3 100 000 krOmkostninger
98 490 krTotalpris
3 198 490 kr
Pris
Bruksareal
71 m²BRA-I (internt bruksareal)
56 m²BRA-E (eksternt bruksareal)
15 m²TBA (terrasse-balkongareal)
114 m²
Areal
Etasje
1Byggeår
1995Soverom
2 soveromBad
1 badTomteareal
833 m² (eiet)Type
Fritidseiendom ved sjøenEierform
EietFasiliteter
Balkong/TerrasseEnergimerke
Rød E
Nøkkelinfo
Vurderer du utleie?
Få et tilbud fra Utleie KrogsveenHva koster lånet?
Sjekk estimert lånekostnadBeskrivelse
Kort om eiendommen
Innbydende og velholdt sommerhytte beliggende i øvre del på Flatåsen.
Lys og luftig stue med høy takhøyde, hems samt vedovn
Pent og profilert kjøkken fra 2009 med medfølgende hvitevarer
Badet ble oppgradert i 2016 med bl.a. nytt gulv, dusj og innredning
Hytta har innlagt sommervann (planlagt kommunal tilknytning)
Praktisk anneks (manglende FA) med innlagt strøm
Sammenhengende terrasser på tilsammen 111 kvm
Terrassene har gode solforhold og flott utsikt fra høyden mot sjøen
Stor eiertomt på over 800 kvm bestående av naturtomt
Parkering på gruset gårdsplass ved hytta og felles parkering ved pumpehus
Det er kun noen få hundre meter ned til sjøen med båtliv og bademuligheter
Kort vei til vakker kyststi (fra Sandebukta til Berger/Svelvik)
Område
Legg til steder som er viktige for deg
På flyttefot? Tenk kjøp og salg samtidig.
Få din egen rådgiver gjennom hele kjøps- og salgsprosessen. Det starter med en verdivurdering.
Vurderer du utleie?
Få et tilbud fra Utleie KrogsveenHva koster lånet?
Sjekk estimert lånekostnadVil du varsles om lignende boliger?
Ved å lagre ditt boligsøk hos oss får du beskjed når vi har en bolig som ligner denne, før den legges ut på markedet!
På flyttefot? Slik gjør vi det enklere for deg
Skreddersydd flyttepakke
Vi fikser håndverkere, vask, pakking, lagring og transport, og legger ut for utgiftene underveis.
Hjelp med både kjøp og salg
Hos oss har du din egen rådgiver gjennom hele kjøps- og salgsprosessen.
Hjelp til finansiering
Vårt samarbeid med BN Bank sikrer deg rask og løsningsorientert hjelp, til konkurransedyktige betingelser.

