Stjerneblokkveien 20
3 650 000 kr
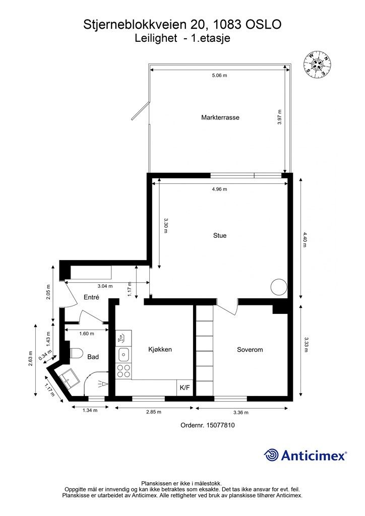
55 m²
1 soverom
Solgt

Presenteres av
Elias KarlsenStjerneblokkene
Meget hyggelig 2-roms med stor markterrasse på 20 m² |Peisovn |Varmtvann inkl. i fellesutg. |Parkering |Sentralt
Prisantydning
3 650 000 krAndel fellesgjeld
199 707 krOmkostninger
19 252 krTotalpris
3 868 959 kr
Pris
Bruksareal
62 m²BRA-I (internt bruksareal)
55 m²BRA-E (eksternt bruksareal)
7 m²TBA (terrasse-balkongareal)
20 m²
Areal
Etasje
1Byggeår
1953Soverom
1 soveromBad
1 badType
AndelsleilighetEierform
AndelFasiliteter
Garasje/P-plass og Balkong/TerrasseFellesutgifter
4 619 krEnergimerke
Rød D
Nøkkelinfo
Unngå doble boligrenter
Vi tilbyr gunstig forsikring.
Vurderer du utleie?
Få et tilbud fra Utleie KrogsveenHva koster lånet?
Sjekk estimert lånekostnadBeskrivelse
Kort om eiendommen
Velkommen til Stjerneblokkveien 20! Lys og arealeffektiv 2-roms med en herlig, stor markterrasse.
En trivelig andelsleilighet i et veletablert område på Grorud, med kort vei til servicetilbud og offentlig transport. Leiligheten har en god planløsning med eget separat kjøkken med god plass til stort spisebord. Med leiligheten følger i tillegg en herlig markterrasse på 20 m².
Kort fortalt:
- Stor markterrasse på 20 m²
- Peisovn i stuen for ekstra varme og hygge.
- God lagringsplass med to kjellerboder og én loftsbod.
- Varmtvann inkludert i felleskostnadene.
- Felles biloppstillingsplasser med elbillader.
- Mulighet for leie av garasjeplass
Område
Legg til steder som er viktige for deg
På flyttefot? Tenk kjøp og salg samtidig.
Få din egen rådgiver gjennom hele kjøps- og salgsprosessen. Det starter med en verdivurdering.
Unngå doble boligrenter
Vi tilbyr gunstig forsikring.
Vurderer du utleie?
Få et tilbud fra Utleie KrogsveenHva koster lånet?
Sjekk estimert lånekostnadVil du varsles om lignende boliger?
Ved å lagre ditt boligsøk hos oss får du beskjed når vi har en bolig som ligner denne, før den legges ut på markedet!
På flyttefot? Slik gjør vi det enklere for deg
Skreddersydd flyttepakke
Vi fikser håndverkere, vask, pakking, lagring og transport, og legger ut for utgiftene underveis.
Hjelp med både kjøp og salg
Hos oss har du din egen rådgiver gjennom hele kjøps- og salgsprosessen.
Hjelp til finansiering
Vårt samarbeid med BN Bank sikrer deg rask og løsningsorientert hjelp, til konkurransedyktige betingelser.

