Thurmanns gate 10C
5 400 000 kr
61 m²
1 soverom
Solgt

Presenteres av
André Gartland HoffSagene
Flott og innbydende 2-R med solrik terrasse. Sentral beliggenhet i grønne omgivelser på populære Sagene. IN-ordning.
Prisantydning
5 400 000 krAndel fellesgjeld
451 331 krOmkostninger
19 252 krTotalpris
5 870 583 kr
Pris
Bruksareal
66 m²BRA-I (internt bruksareal)
61 m²BRA-E (eksternt bruksareal)
5 m²TBA (terrasse-balkongareal)
16 m²
Areal
Etasje
1Byggeår
1999Soverom
1 soveromBad
1 badType
AndelsleilighetEierform
AndelFasiliteter
Heis og Balkong/TerrasseFellesutgifter
4 965 krEnergimerke
Rød D
Nøkkelinfo
Unngå doble boligrenter
Vi tilbyr gunstig forsikring.
Vurderer du utleie?
Få et tilbud fra Utleie KrogsveenHva koster lånet?
Sjekk estimert lånekostnadBeskrivelse
Kort om eiendommen
Velkommen til Thurmanns gate 10C!
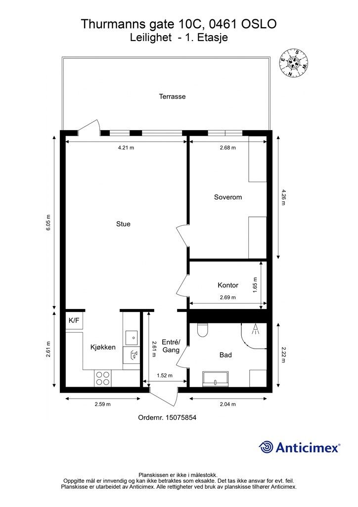
Dette er en lys og innbydende 2-roms leilighet med skjermet og attraktiv beliggenhet på Sagene. Fra stuen er det utgang til en sydvendt terrasse på 16m², som byr på gode solforhold og kan nytes på varme vår- og sommerdager.
Leiligheten har en velholdt standard og inneholder entré, bad, soverom av god størrelse, kontor samt åpen stue- og kjøkkenløsning med utgang til terrasse. Store vindusflater sørger for godt med lysinnslipp og gir en behagelig romfølelse.
Fra leiligheten har du kort vei til butikker, kafeer, restauranter, kollektiv og hyggelige turområder.
Noen høydepunkter:
Sentral og attraktiv beliggenhet
Nydelig terrasse med gode solforhold
Barnevennlig område
Gode kollektivmuligheter
IN-ordning
Område
Legg til steder som er viktige for deg
På flyttefot? Tenk kjøp og salg samtidig.
Få din egen rådgiver gjennom hele kjøps- og salgsprosessen. Det starter med en verdivurdering.
Unngå doble boligrenter
Vi tilbyr gunstig forsikring.
Vurderer du utleie?
Få et tilbud fra Utleie KrogsveenHva koster lånet?
Sjekk estimert lånekostnadVil du varsles om lignende boliger?
Ved å lagre ditt boligsøk hos oss får du beskjed når vi har en bolig som ligner denne, før den legges ut på markedet!
På flyttefot? Slik gjør vi det enklere for deg
Skreddersydd flyttepakke
Vi fikser håndverkere, vask, pakking, lagring og transport, og legger ut for utgiftene underveis.
Hjelp med både kjøp og salg
Hos oss har du din egen rådgiver gjennom hele kjøps- og salgsprosessen.
Hjelp til finansiering
Vårt samarbeid med BN Bank sikrer deg rask og løsningsorientert hjelp, til konkurransedyktige betingelser.

