Øvre Nesdalen 6
3 990 000 kr
193 m²
3 soverom
Komplett salgsoppgave

Songe
Påkostet enebolig med vanvittig fin utsikt til Songevannet - Tinglyst rett til brygge rett ved! Ingen boplikt
Prisantydning
3 990 000 krOmkostninger
120 740 krTotalpris
4 110 740 kr
Pris
Bruksareal
282 m²BRA-I (internt bruksareal)
193 m²BRA-E (eksternt bruksareal)
89 m²TBA (terrasse-balkongareal)
42 m²
Areal
Etasje
3Byggeår
1988Soverom
3 soveromBad
2 badTomteareal
2 009 m² (eiet)Type
Enebolig - FrittliggendeEierform
EietFasiliteter
Garasje/P-plass og Balkong/TerrasseEnergimerke
Gul D
Nøkkelinfo
Unngå doble boligrenter
Vi tilbyr gunstig forsikring.
Vurderer du utleie?
Få et tilbud fra Utleie KrogsveenHva koster lånet?
Sjekk estimert lånekostnadBeskrivelse
Kort om eiendommen
Sjelden mulighet ved Songevannet! Øvre Nesdalen 6 ligger helt usjenert til med stor og solrik tomt (2 mål). Det er bruksrett til en romslig brygge ca. 250 meter fra huset i gangavstand, samt badestrand for allmennheten. Det tar ca. 15 min. i bil til Tvedestrand sentrum hvor det er skole, barnehage, kjøpesenter og flere fasiliteter. Eiendommen har en opparbeidet hage og er påkostet i nyere tid. Sola skinner på eiendommen fra ca. kl. 06:30-21:30 midtsommers.
Boligen inneholder:
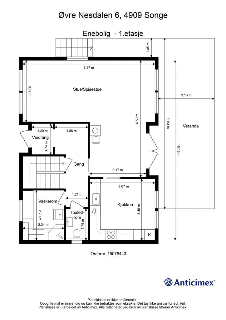
Underetasje: Vindfang, stue, gang, to boder og soverom.
Hovedetasje: Vindfang, gang, vaskerom, toalettrom, stue/spisestue og kjøkken.
Loftsetasje: Stue, tre soverom og baderom.
Det tilhører også en dobbel garasje med vedrom og stort loft, perfekt for festligheter eller lagringsplass, samt carport under veranda.
Innhold og byggemåte
Innhold og byggemåte
Eiendommen
Øvre Nesdalen 6, 4909 SONGE
Kommunenummer 4213, gårdsnummer 72, bruksnummer 35, ideell andel 1/1
Innhold
Totalt bruksareal BRA: 282 kvm
BRA-i:
Enebolig:
Underetasje 68 kvm: Vindfang, stue, gang, to boder og soverom.
1. etasje 74 kvm: Vindfang, gang, vaskerom, toalettrom, stue/spisestue og kjøkken.
2. etasje 51 kvm: Stue, tre soverom og baderom.
BRA-e:
Garasje:
1. etasje 58 kvm: Garasje med vedrom.
2. etasje 31 kvm: Uinnredet loft.
Åpent areal:
Enebolig:
1. etasje 42 kvm: Veranda og terrasse.
Loftsetasjen har et totalt gulvareal (GUA) på 58m², men grunnet skråtak/lav takhøyde er 51m² av arealet måleverdig som bruksareal. De delene av arealene som har lav himlingshøyde (ALH) utgjør 7m². Arealer bak knevegger og lignende rom er ikke medtatt som areal med lav himlingshøyde (ALH). Se mer informasjon om arealer i tilstandsrapporten.
Garasje: Deler av arealet på kaldtloftet oppfyller vilkår for måleverdighet og er derfor medregnet som en del av boligens bruksarealer (BRA-E). Kaldtloftet har et totalt gulvareal (GUA) på 37m², men grunnet skråtak/lav takhøyde er 31m² av arealet måleverdig som bruksareal. De delene av arealene som har lav himlingshøyde (ALH) utgjør 6m².
Vedlagte plantegninger er ikke målbare. De oppgitte arealer er hentet fra rapport med befaringsdato 13.10.2025 utført av Anticimex v/Halvard Grina. Arealene er beregnet og rom er definert etter dagens faktiske bruk, uavhengig av hva som er godkjent av bygningsmyndighetene. Det understrekes at takstmann har kalt to rom i kjelleren for noe de ikke er godkjent som, herunder "soverom" og "stue". Dette må omsøkes for at å lovlig bruke dette til varig opphold. Det foreligger ikke ferdigattest.
Byggemåte
Selger har fått utarbeidet en tilstandsrapport, dvs. en teknisk gjennomgang av boligen hvor eventuelle avvik, risiko for kjøper og prisoverslag for hva som bør gjøres av oppgradering, er skissert. Se særskilt TGIU (tilstandsgrad ikke undersøkt), samt TG2 og TG3 som viser hva som er boligens normale slitasje, alder og type, hva som er avvik fra dette og hva som bør/må utbedres. Rapporten og selgers egenerklæring er en del av salgsoppgaven og må leses nøye før bud inngis. Kjøper overtar ansvaret for de opplysninger som fremkommer av salgsdokumentasjonen, og kan ikke gjøre gjeldende som mangel noe som burde vært kjent eller som ikke kan anses å ha betydning for avtalen.
Bygningen er iht. tilstandsrapporten oppført i tre. Les forøvrig mer om byggemåte og den tekniske tilstanden i rapporten.
I rapporten har følgende fått tilstandsgrad 3: Forstøtningsmurer: Rekkverk er ikke etablert. Økt risiko for fallulykker. Rekkverk bør etableres. Sjablongmessig prisanslag kr. 10.000-50.000,-.
Følgende har fått tilstandsgrad 2 i rapporten, grunnet alder, skader, risiko mv:
Vaskerom: Fra 2010. Ikke målt fukt. Det er kun naturlig ventilasjon, mekanisk avtrekk anbefales å etablere. Stedvis misfarging på gulvoverflate. Tettesjikt har en alder som tilsier at restlevetid er usikker. Dusjkabinett er positivt likevel. Nivåforskjell overflate gulv til hovedsluk er mindre enn anbefalt. Sluket ble ikke skiftet ved renovering av rommet. Se mer på s. 10.
Rom under terreng: Symptomer på fuktvandring på synlig grunnmur/gulv i uinnredet bod. Riss/sprekker er observert i samme rom. Utlektede vegger i underetasjen er erfaringsmessig risikoutsatt med hensyn til fukt. Det ble målt med pigg i treverk og målt høyere verdier enn anbefalt. Dørbladet til begge innerdører til stue har kontakt med dørterskel/dørkarm. Se mer på s. 13.
Innredet loft: Det ble registrert noe misfarging på tre av kneloftene, alle tilknyttet soverom. Det ble ikke målt forhøyede fuktverdier. Det vurderes til at det kommer fra tidligere hendelser og ikke aktiv fuktvandring. Kosmetisk betydning. Ventilasjon er vurdert til ikke tilfredsstillende. Ventiler bør etableres i enkelte rom. Se s. 14.
Uinnredet loft: Det er registrert misfarging i undertak/taktro som kan tyde på fukt fra kondens. Dette ble målt og verdiene var under 16 i vekstprosent. Jevnlig ettersyn er anbefalt. Det ble registrert spor etter gnagere på kaldtloftet, eier informerer at det sannsynligvis stammer fra før de monterte musesikring/under bygging av huset. Det anbefales jevnlig ettersyn. Se s. 15. Det er ikke registrert mus der siden.
Ildsted: Mindre avskalling av overflatebehandlingen er registrert ved ildsted 1. etasje. Kosmetisk betydning slik det fremstår på befaringstidspunktet.
Innvendig trapp: Trapp har ikke rekkverk/håndløper på begge sider.
Etasjeskiller: Det er stedvis knirk i gulv.
Tekniske anlegg: Vannrør kjøkken er eldre, dette gjelder generelt vannrør av kobber som er fra byggeår. Varmtvannsbereder har en alder som tilsier usikker restlevetid. Jevnlig ettersyn er anbefalt. Se s. 16.
Elektrisk anlegg: Samsvarserklæring på deler av anlegget er forevist takstmann. Det anbefales generelt en utvidet elkontroll av en fagmann.
Yttervegger: Det er stedvis registrert malingsslitasje og en råteskade på kledningsbord på gavlvegg mot kjøkken. Det er ikke registrert luftespalte bak trekledning. Se s. 17.
Vinduer: TG2 gjelder vinduer som er fra byggeår. Disse har behov for oppgraderinger/overflatebehandling.
Dører: Ytterdører underetasje er av eldre dato og har behov for oppgraderinger/overflatebehandling. Se s. 18.
Yttertak: Det er registrert symptomer på elde og slitasje. TG2 er satt for å belyse dette. Beslag, takrenner og nedløp har en alder som tilsier usikker restlevetid. Snøfangerutstyr er ikke etablert. Se mer info på s. 18.
Balkong/terrasse: Rekkverkshøyden er under 1 meter.
Utvendige trapper: Det er ikke etablert håndløper/rekkverk på begge sider i trappene.
Grunnmur: Det er registrert par-tre sprekker i grunnmur. Setninger kan ikke utelukkes. Sprekkene bør tettes fra utsiden for å unngå fuktinnsig og frostspreng. Se s. 19.
Drenering: Dreneringens alder og symptomer på fukt i underetasjen. Det er stedvis lite terrengfall vekk fra grunnmuren. Vann fra yttertak er ikke ledet vekk fra bygningen/grunnmuren i tilstrekkelig grad. Nevnte forhold kan føre til økt fuktbelastning på grunnmuren. Se s. 20.
Stikkledninger: Alder. TG2 settes for å belyse dette. Se mer på s. 20.
Frittstående byggverk: Det er foretatt en forenklet og overordnet vurdering av tilstanden, det ble registrert enkelte sprekker og mindre skjevheter i grunnmur og forstøtningsmur tilknyttet garasjen. Se mer på s. 20.
Selger har fylt ut egenerklæringsskjema som er vedlagt salgsoppgaven i sin helhet. Skjemaet oppsummeres kort under her:
Eier har bodd i boligen siden de bygget denne i 1988.
2. Totalrenovering av våtrom i 2020 gjort av Lindal Hus AS.
4. Byttet vindu på loft i 2020 gjennom Lindal Hus AS.
10. Montert nytt sikringsskap av Froland Elektro AS i 2022.
19. Det ble oppdaget mus som kom inn via luftekanal under trapp ute til bod i kjeller. Skaden som følge av dette, ble utbedret med kontroll fra Rentokil. Gammel murtrapp ble fjernet og det ble satt inn ny ventil i boden. Dette skjedde i 2023, og vi har siden den gang ikke registrert nye tilfeller av mus.
Standard
Eneboligen holder en god standard og det er gjort flere påkostninger i nyere tid. Her kommer en kort oppsummering:
- Garasje med loft fra 2003/2004
- Kjøkken fra Strai (fra byggeår)
- Ny vannpumpe fra borrehull 2007.
- Scala speilskap på bad, badekar fra Vikingbad
- Vask med skuffer på bad fra Optima bad.
- Vaskerom og toalettrom i 1. etasje ble pusset opp i 2010
- Varmepumpe montert ny i 2021.
- Sikringsskap nytt i 2022
- Terrasse fra 2018 med glassrekkverk fra Suntec (stål og glass).
- Flere vinduer ble byttet i 2018-2021.
- Ny forstøtningsmur ute ble satt opp i 2025.
- Ny terrasse ved inngangsparti i 2022/23
- Asfaltert for noen år tilbake.
- Bad i 2. etasje ble renovert i 2020 av Lindal Hus AS.
- Kontor/soverom i 2. etasje ble pusset opp i ca. 2020 (rensket ned og bygget opp innvendig innredning)
- Inspeksjonsluke er ettermontert.
Det er ellers gjort flere påkostninger/vedlikeholdsarbeider i og utenfor huset gjennom årene.
Løsøre og tilbehør
Følgende hvitevarer medfølger i handelen: Oppvaskmaskin, komfyr og kjøleskap, samt vaskemaskin og tørketrommel.
Vi viser til liste fra Norges Eiendomsmeglerforbund som gjelder fra 01.01.2020 angående løsøre og tilbehør.
Oppvarming
Vedfyring og elektrisk. Det er varmekabler i gulv på bad i 2. etasje, vaskerom og toalettrom i 1. etasje, samt yttergang og "soverom" i underetasjen. Det er montert varmepumpe fra 2021 i stue, samt vedovn fra Jøtul.
Ferdigattest/brukstillatelse
Det foreligger ferdigattest på nybygg bolig, datert 13.05.1988. Denne kan fås ved henvendelse til megler. Det var Lindal Hus AS som oppførte bolig og garasje.
Hele underetasjen er opprinnelig byggemeldt som boder/disponible rom jf. byggetegninger, og er ikke godkjent til varig opphold. Innredning av rommene til bruk for varig opphold er ikke bruksendret/omsøkt og er heller ikke godkjent av kommunen. Konsekvensen ved søknad kan være at rommet ikke godkjennes som varig opphold og at rommet da må brukes som bod/midlertidig oppbevaring.
Følgende dokumenter er mottatt fra kommunen:
- Melding om vedtak i byggesak - Oppføring av garasje, disp.
- Godkjent tegning av garasje datert 05.05.2003.
- Utslippstillatelse datert 24.10.1986.
- Godkjent tegning av enebolig datert 11.11.1986.
- Ferdigattest enebolig datert 13.05.1988.
- Målebrev datert 18.12.2003.
Garasjen er fra 2003, ferdigstilt i 2004. Garasjen er søkt om og registrert tatt i bruk, men ingen ferdigattest foreligger.
Bryggen er ikke søkt om. Denne ble bygget av eier ca. 1999.
Kjøper overtar alt ansvar, kostnad og risiko for dette videre.
Tinglyste heftelser og rettigheter
På eiendommen er det tinglyst følgende heftelser og rettigheter som følger eiendommens matrikkel ved overskjøting til ny hjemmelshaver:
4213/72/35:
28.10.2025 - Dokumentnr: 1297390 - Bestemmelse om brygge/flytebrygge
Rettighet hefter i: Knr:4213 Gnr:72 Bnr:4
Se forklaring under "diverse" i salgsoppgaven. Dokumentet kan oversendes interessenter ved henvendelse.
Eventuell adgang til utleie
Eiendommen har ikke separat utleieenhet. Det vil normalt være anledning til utleie av hele eiendommen eller enkeltrom, såfremt utleiearealet er bygningsmessig godkjent for varig opphold og har forsvarlige radonnivåer.
Diverse
Bryggeretten er tinglyst. Avtalen lyder ca. slik:
"Rett til bruk og ansvar for brygge
Eier av eiendom med gnr. 72, bnr. 35 i Tvedestrand kommune har bruksrett til bryggen de selv har oppført på gnr. 72, bnr. 4 i Tvedestrand kommune.
Det vises til brygge på vedlagte kart.
Rettighetshaver har alt ansvar for vedlikehold og brygge uten ulempe/kostnad for grunneier.
Rettighetshaver kan ikke utvide eller endre bryggen uten samtykke fra grunneier.
Rettighetshaver kan ikke nekte andre å bade fra bryggen.
Dette dokumentet kan tinglyses på gnr. 72, bnr. 4 mot at rettighetshaver betaler omkostninger for tinglysing.".
_______________________________________________________________
Tilbud av produkter og tjenester fra våre samarbeidspartnere
Vi er opptatt av verdiskapning, og har knyttet til oss samarbeidspartnere som skal sikre våre kunder de beste produkter og tjenester;
• Gjensidige leverer boligselgerforsikring og tilbyr bygningsforsikring
• Boligkjøperforsikring leveres av Hiscox og med Sedgwick som skadebehandler, og er formidlet gjennom Gjensidige.
• BN bank tilbyr finansieringsløsninger
• Vår avdeling Krogsveen Pluss tilbyr flyttetjenester som utvask, visningsvask, lager, tømming og transport av flyttelass, i tillegg til å formidle kontakt med Flip for overflateoppussing.
• I forbindelse med overtagelse av eiendommen tilbyr Overo avtale om strøm, alarm og bredbånd.
• Krogsveen er, sammen med øvrige bransjeaktører, medeier i den digitale annonseringsplattformen Hjem som eies av Bomega AS.
Energimerking
Megler har fylt ut en enkel energiattest. Det tas forbehold om avvik i denne. Hele energiattesten kan oversendes ved henvendelse.
Beliggenhet og tomteforhold
Beliggenhet og tomteforhold
Beliggenhet
Velkommen til Øvre Nesdalen 6 på Songe! Eiendommen ligger fantastisk til på en egen høyde, helt usjenert med enkel adkomst. Fra tomten er det vakker utsikt utover Songevannet, og ca. 250 meter i gangavstand fra huset finner man tilhørende brygge. Bryggen ligger rett ved siden av badestrand som er åpen for allmennheten. Hvis man tar båten ut fra Songevannet kan man nå helt ut til sjøen gjennom Laget. Tvedestrand har (kanskje) Norges vakreste skjærgård fra Lyngør og helt til Arendal i indre Sørlandsleia. Tar man turen uttaskjærs kan man fint ta turen til idylliske Risør.
Det er flotte turstier fra eiendommen, og ellers kort vei til det meste i bil. Tvedestrand sentrum er ca. 15 minutter fra eiendommen i bil, og til Arendal sentrum tar det knapt 25 minutter i bil.
Adkomst
Se kart eller kontakt megler for veibeskrivelse.
Barnehager, skoler og fritid
Barnehage:
Fargeskrinet barnehage (1-5 år): 11.8 km
Lyngbakken barnehage (1-5 år): 13.9 km
Bronsbu barnehage (1-5 år): 14.1 km
Skole:
Tvedestrand barneskole (1-7 kl.): 14 km
Lyngmyr skole (8-10 kl.): 13.9 km
Tvedestrand videregående skole: 14.1 km
Risør videregående skole: 16.5 km
Informasjon om tilhørende skolekretser er hentet fra Prognosesenteret som dataleverandør, og tilhørigheten kan årlig endres av kommunen. Dersom skole- og barnehagetilbud er av betydning for kjøpet, ber vi om at det rettes en særskilt henvendelse til kommunen/bydelsadministrasjonen for oppdatert informasjon.
Beskrivelse av tomt
Tomten er flott opparbeidet med murer, plen, asfaltert innkjørsel og beplantning. Tomten ligger helt for seg selv på en pen høyde uten innsyn.
Eiendomsgrenser er oppgitt som middels nøyaktige i grunnkart mottatt fra kommunene. Dvs. avvik mellom 10-30 cm kan forekomme.
Parkering
Det er god plass til parkering på egen tomt og i dobbel garasje.
Vei, vann og avløp
Eiendommen har adkomst via privat vei med felles vedlikeholdsansvar.
Eiendommen har privat septiktank. Kommunen har en generell hjemmel til å kreve at eiendommer med privat septiktank kobler seg til det offentlige avløpsnettet. Kontakt megler for ytterligere informasjon.
Eiendommen har privat borrevann som vannkilde. Brønnen er fra byggeår. Borrehullet er i forbindelse med salget ikke undersøkt og det er ikke tatt vannprøver selger bekjent. Det tas forbehold om vannkvalitet og borrehullets tilstand. Kommunen kan kreve at man kobler seg på det kommunale vannet, men det foreligger ingen varsel/pålegg om dette nå.
Eier informerer om at de fikk tillatelse fra kommunen ved bygging å etablere privat vann/avløp.
Regulerings-og arealplaner
Eiendommen er regulert til boligformål i henhold til reguleringsplan "Nesdalen ll" datert 18.10.2005. Øvre Nesdalen 2 er en tomt nedenfor denne eiendommen som pr. i dag ikke er bygget på, det er ikke kjente planer for dette, men uavhengig av det er denne tomten ganske mye lavere nivå på.
Utsnitt av plan med tilhørende bestemmelser kan fås ved henvendelse til megler.
Økonomi
Økonomi
Kommunale utgifter
I årlige kommunale avgifter inngår følgende i beregningen som er stipulert for 2025:
Renovasjon kr. 4.800,-
Slamtømming kr. 1.500,- (gjøres normalt hvert 2. år, men faktureres årlig).
Eiendomsskatt kr. 4.560,-
Feiing/tilsyn kr. 309,-
I totale årlige avgifter for 2025 kan kr. 11.169,- påregnes innkludert ovennenvte kostnader.
Vann og avløp har man selv ansvar for ettersom dette er privat.
Privat veiavgift kr. 1.506,- pr. år.
Brøyting kr. 3.331,- for 2024.
Nåværende eier har et strømforbruk som tilsvarer ca. kr. 12.531,- pr. år. / 15 172 kwh. pr. år.
Boligen har en årlig forsikringspremie på kr 16 000,- for hus, innbo og garasje.
Boligen er tilknyttet Telenor som leverandør av fiber og har avgift på kr 1.049 pr. mnd (Bredbånd 500).
Utgiftene er basert på nåværende eiers forbruk og avtaler. Priser oppgitt vil kunne variere/endres fra år til år basert på behov og forbruk.
Formuesverdi
Formuesverdi for 2023 var kr 678 615,- ifølge skatteetaten. Beløpet forutsetter at eier bor fast i boligen (primærbolig).
Ved eventuell øvrig bruk av eiendommen (f.eks. fritidsbolig, pendlerbolig, utleieobjekt) var formuesverdien for 2023 kr 2 714 460,-.
Formuesverdien justeres normalt årlig. Se skatteetaten.no for mer informasjon om fastsettelse av formuesverdien.
Omkostninger
3 990 000,00 Prisantydning
Omkostninger
99 750,00 Dokumentavgift til staten (2,5% av kjøpesum)
19 900,00 Gjensidige Boligkjøperpakke (valgfri)
545,00 Tinglysing panterettsdokument
545,00 Tinglysing skjøte
--------------------------------------------------------
120 740,00 Omkostninger totalt
--------------------------------------------------------
4 110 740,00 Totalpris inkl. omkostninger
--------------------------------------------------------
Totalpris inkl. omkostninger forutsetter kjøp til prisantydning.
Det tas forbehold om endringer i avgifter og gebyrer.
Betalingsbetingelser
Kjøpesum inkludert omkostninger, samt pantedokument tilknyttet eventuelt lån, skal være disponibelt hos megler 2 virkedager før overtagelsen.
Annen viktig informasjon
Annen viktig informasjon
Eier
Gunn Langmyr og John Terje Langmyr
Konsesjon
Da eiendommen er over 2 mål er den i utgangspunktet underlagt konsesjonslovgivning, og kjøper må ved kontrakt undertegne egenerklæring om konsesjonsfrihet. Denne erklæringen må godkjennes fra kommunen før eiendommen kan overskjøtes til kjøper. Det er ingen boplikt.
Overtakelse
Etter nærmere avtale.
Boligselgerforsikring
Selger har i forbindelse med salget tegnet boligselgerforsikring levert av Gjensidige.
Boligselgerforsikringen dekker selgers ansvar etter avhendingsloven begrenset oppad til kr 14 millioner. Dersom kjøper oppdager forhold ved eiendommen som hen mener utgjør en mangel ved eiendommen, vil Gjensidige behandle reklamasjonen på vegne av selger. Forsikringsvilkår kan fås ved henvendelse til megler.
Vedlagt salgsoppgaven følger selgers egenerklæringsskjema og tilstandsrapport. Interessenter må sette seg inn i dokumentene før bud inngis.
Boligkjøperforsikring
Innen kontraktsmøtet må kjøper ta stilling til om det ønskes å bestille Boligkjøperpakken gjennom Gjensidige. I denne gunstige pakken er boligen ferdig forsikret og inkluderer rettshjelpsforsikring, også kalt Boligkjøperforsikring. Rettshjelpsforsikring gir trygghet og tilgang på profesjonell juridisk hjelp dersom det oppdages uventede feil eller mangler det første året etter overtagelse. Forsikringsselskapet behandler i så fall ethvert mangelskrav kjøper måtte ha overfor selger.
Boligkjøperpakken inkluderer bygningsforsikring for hus og hytte, innboforsikring, flytteforsikring og dobbel rentedekning - i situasjoner hvor kjøper ikke får solgt nåværende primærbolig.
Kjøper mottar ingen særskilt faktura for Boligkjøperpakken da kostnaden det første året legges til kjøpesummen for boligen. Det gjøres oppmerksom på Krogsveen mottar et honorar for denne formidlingen.
Produktark for Boligkjøperpakken ligger vedlagt i salgsoppgaven.
Dersom ikke boligkjøperpakke ønskes kan kun rettshjelpsforsikring, også kalt boligkjøperforsikring, tegnes særskilt via megler. Rettshjelpsforsikringen varer i 5 år fra overtagelse og leveres gjennom Gjensidige. Ta kontakt med megler for ytterligere informasjon.
Selskap og privatpersoner som driver med kjøp/salg/utvikling som ledd i egen næringsvirksomhet kan ikke tegne boligkjøperpakke eller rettshjelpsforsikring.
Budgivning
Forbrukerinformasjon om budgivning er vedlagt denne salgsoppgaven og er også på vår hjemmeside Krogsveen.no. Alle bud og budforhøyelser må inngis skriftlig. I tillegg må legitimasjon være fremlagt sammen med signatur fra budgiver.
Vi oppfordrer til å gi bud elektronisk via GI BUD-knappen på eiendommens hjemmeside på Krogsveen.no. Da vil samtlige vilkår bli oppfylt.
Eventuelle forhøyelser eller endringer av budet kan bekreftes pr SMS eller på e-post. Vi oppfordrer alltid til å kontakte megler pr. telefon i tillegg da forsinkelser i SMS og e-post kan forekomme.
For at budene skal kunne bli behandlet og videreformidlet skriftlig til alle involverte parter, må alle bud ha en tilstrekkelig lang akseptfrist, jf. eiendomsmeglingsforskriften § 6-3.
Selger må også skriftlig akseptere budet før aksept kan formidles til budgiver. Akseptfrist bør derfor være på minimum 30 minutter, og budforhøyelser må derfor skje i god tid før fristens utløp.
Bud i forbrukerforhold kan uansett ikke settes med kortere frist enn kl. 12.00 første virkedag etter siste annonserte visning. I tillegg kan ikke budet ha forbehold om at det skal holdes hemmelig ovenfor øvrige interessenter. Megler har iht lov om eiendomsmegling ikke anledning til å videreformidle disse budene, og de vil dermed heller ikke bli journalført.
Etter at eiendommen er solgt vil kjøper og selger få tilsendt budjournal. Øvrige budgivere kan få utlevert kopi av budjournalen i anonymisert form.
Hvitvaskingsreglene
I henhold til lov om hvitvasking og terrorfinansiering har megler plikt til å gjennomføre kontrolltiltak overfor kunder, herunder fullmektiger. Dette innebærer bl.a. å bekrefte kunders og reelle rettighetshaveres identitet på bakgrunn av fremvist gyldig legitimasjon eller på annen godkjent måte, samt å innhente opplysninger om kundeforholdets formål og tilsiktede art.
Dersom slike kundetiltak ikke kan gjennomføres, kan megler ikke etablere kundeforholdet eller utføre transaksjonen.
Hvis kjøper ikke bidrar til gjennomføring av kundekontrollen og dette fører til at transaksjonen blir forsinket eller ikke kan gjennomføres, vil dette ansees som mislighold av avtalen og gi selger rettigheter etter avhendingslova kapittel 5. I tilfeller der selger ikke bidrar til gjennomføring av løpende kundekontroll underveis i oppdraget, er det selger som misligholder sine forpliktelser etter avtalen og gi kjøper rettigheter etter avhendingslovens kapittel 4. Partene er selv ansvarlige for eventuelle kostnader og ansvar dette kan medføre. Eiendomsmegleren eller eiendomsmeglingsforetaket kan ikke holdes ansvarlig for de konsekvenser dette vil kunne få for partene eller andre som har interesser i eiendomshandelen.
Kjøper oppfordres til å innbetale kjøpesummen som ikke kommer fra låneinstitusjon i én samlet innbetaling fra egen konto i norsk bank. Megler har plikt til å melde fra til Økokrim om eiendomshandler som fremstår som mistenkelige. Melding sendes Økokrim uten at partene varsles.
Personopplysningsloven
I henhold til personopplysningsloven gjør vi oppmerksom på at interessenter kan bli registrert for videre oppfølging.
Lovanvendelse
Generelle bestemmelser
Salgsoppgaven er basert på de opplysningene selger har gitt til megler, den bygningssakyndiges tilstandsrapport, samt opplysninger innhentet fra kommunen, Kartverket og andre tilgjengelige kilder. Det er viktig at kjøper setter seg grundig inn i alle salgsdokumentene, herunder salgsoppgave, tilstandsrapport og selgers egenerklæring. Kjøper anses kjent med forhold som er tydelig beskrevet i salgsdokumentene, og slike forhold kan ikke påberopes som mangler. Dette gjelder uavhengig av om kjøper har lest dokumentene. Alle interessenter oppfordres til å undersøke eiendommen nøye, gjerne sammen med fagkyndig før bud inngis. Kjøper som velger å kjøpe usett kan ikke gjøre gjeldende som mangel noe han burde blitt kjent med ved undersøkelsen.
Dersom det er behov for avklaringer, anbefaler vi at interessenter rådfører seg med eiendomsmegler eller egne rådgivere før det legges inn bud.
En bolig som har blitt brukt i en viss tid, har vanligvis blitt utsatt for slitasje og skader kan ha oppstått. Slik bruksslitasje må kjøper regne med, og det kan avdekkes enkelte forhold etter overtakelse som nødvendiggjør utbedringer. Normal slitasje og skader som nødvendiggjør utbedring, er innenfor hva kjøper må forvente og vil ikke utgjøre en mangel.
Kjøper og selgers rettigheter og plikter reguleres av avtalen mellom partene, samt informasjonen som har vært tilgjengelig for kjøperen i forbindelse med handelen. Avtalen utfylles av avhendingsloven, og det gjelder ulike avtalevilkår avhengig av om kjøper er forbrukerkjøper eller ikke. Dette er nærmere beskrevet nedenfor.
På grunn av ulike avtalevilkår kan selger vurdere bud fra en som ikke er forbruker, ulikt fra en forbrukers bud. Dersom kjøper ikke er forbruker, er selger sitt mulige mangelsansvar begrenset fordi eiendommen selges "som den er". Selger kan ikke ta «som den er»- forbehold overfor en forbrukerkjøper. Selv et lavere bud fra en som ikke er forbruker kan foretrekkes fordi begrensningen i mulig mangelsansvar kan ha egenverdi for selger. Selger står fritt til å forkaste eller akseptere ethvert bud, og er for eksempel ikke forpliktet til å akseptere høyeste bud.
Budgiver skal i budskjema avgi egenerklæring om budgiver er forbruker eller næringsdrivende/ person som hovedsakelig handler som ledd i næringsvirksomhet. Budgivere får informasjon dersom andre bud er inngitt av en som ikke er forbruker.
Forbrukerkjøp - definisjon
Med forbrukerkjøp menes kjøp av eiendom når kjøperen er en fysisk person som ikke hovedsakelig handler som ledd i næringsvirksomhet.
Forbruker – avtalevilkår
Eiendommen har en mangel dersom den ikke er i samsvar med kravene som følger av avtalen, eller det foreligger brudd på bestemmelsene i avhendingsloven §§ 3-2 til 3-8. Hvis eiendommen ikke er i samsvar med det kjøperen må kunne forvente ut ifra alder, type og synlig tilstand, kan det være grunnlag for mangelskrav. Det samme gjelder hvis det er holdt tilbake eller gitt uriktige opplysninger om eiendommen. Dette gjelder likevel bare dersom man kan gå ut ifra at det virket inn på avtalen at opplysningen ikke ble gitt eller at mangelskravet ikke blir rettet i tide på en tydelig måte.
Boligen kan ha en mangel etter avhendingsloven § 3-3 andre ledd, dersom det er avvik mellom opplyst og faktisk innvendig areal, forutsatt at avviket er på 2% eller mer og minimum 1 kvm.
Ved beregning av et eventuelt prisavslag eller erstatning må kjøper selv dekke tap/kostnader opptil et beløp på kr 10 000 (egenandel).
Ikke-forbruker (næringsdrivende) – definisjon
Hvis kjøper er en juridisk person, eller en fysisk person som hovedsakelig handler som ledd i næringsvirksomhet, vil kjøpet ikke anses som et forbrukerkjøp.
Ikke-forbruker – avtalevilkår
Eiendommen har en mangel dersom den ikke er i samsvar med kravene som følger av avtalen.
Eiendommen selges «som den er», og selgers ansvar utover det konkret avtalte er da begrenset etter avhendingsloven § 3-9, første ledd andre setning.
Avhendingsloven § 3-3 andre ledd fravikes, og hvorvidt boligens arealsvikt utgjør en mangel vurderes etter avhendingsloven § 3-8.
Informasjon om kjøpers undersøkelsesplikt, herunder oppfordringen om å undersøke eiendommen nøye, gjelder også for kjøpere som ikke anses som forbrukere.
Det forutsettes at hjemmel overføres til kjøper. Hvis kjøper ikke ønsker hjemmelsoverføring av eiendommen, må det tas forbehold om dette i budet.
Meglers vederlag
Meglers vederlag betales av selger og er avtalt til:
Vederlag: 1,20 % av salgssummen inkl. eventuell fellesgjeld. Minimumsprovisjon er kr 60 000,00,-
Vederlag:
Kontroll av hjemmel og heftelser kr 2 900,00,-
Markedsføringspakke kr 26 900,00,-
Oppgjør kr 7 500,00,-
Tilrettelegging kr 9 900,00,-
Visninger pr stk / Overtagelse kr 1 000,00,-
Utlegg:
Innhenting av offentlig opplysninger Tvedestrand kommune kr 4 800,00,-
Tinglysing sikring kr 545,00,-
Andre utgifter:
Foto inkl. dronebilder kr 6 000,00,-
Opplysninger om oppdraget
Oppdragsnummer 47-0175/25
Eiendomsmegler Krogsveen AS, avd. Arendal
Kystveien 14, 4841, ARENDAL
950 007 613
Oppdragets KR-kode KR47.25175
Dato
Sist oppdatert: 12. januar 2026 kl. 21:34
Dokumenter
Dokumenter
PDF – 1008 KB
PDF – 836 KB
PDF – 312 KB
PDF – 29 KB
PDF – 127 KB
PDF – 392 KB
Område
Legg til steder som er viktige for deg
Visning
For å delta på visning, ber vi om at du melder deg på. Da sikrer vi at du får nødvendig informasjon og at det er satt av tilstrekkelig med tid. Kontakt megler dersom annet tidspunkt ønskes. Husk å lese salgsoppgaven før visningen, så du stiller forberedt. NB. Visning utgår dersom det ikke er noen påmeldte.
Ønsker du kun å bli holdt orientert, kan du fra eiendommens hjemmeside få varsel om solgtpris, eller kontakte megler.
Lurer du på noe?
Unngå doble boligrenter
Vi tilbyr gunstig forsikring.
Vurderer du utleie?
Få et tilbud fra Utleie KrogsveenHva koster lånet?
Sjekk estimert lånekostnadVil du varsles om lignende boliger?
Ved å lagre ditt boligsøk hos oss får du beskjed når vi har en bolig som ligner denne, før den legges ut på markedet!

