Godesetkroken 40
7 200 000 kr
253 m²
5 soverom
Solgt

GODESET
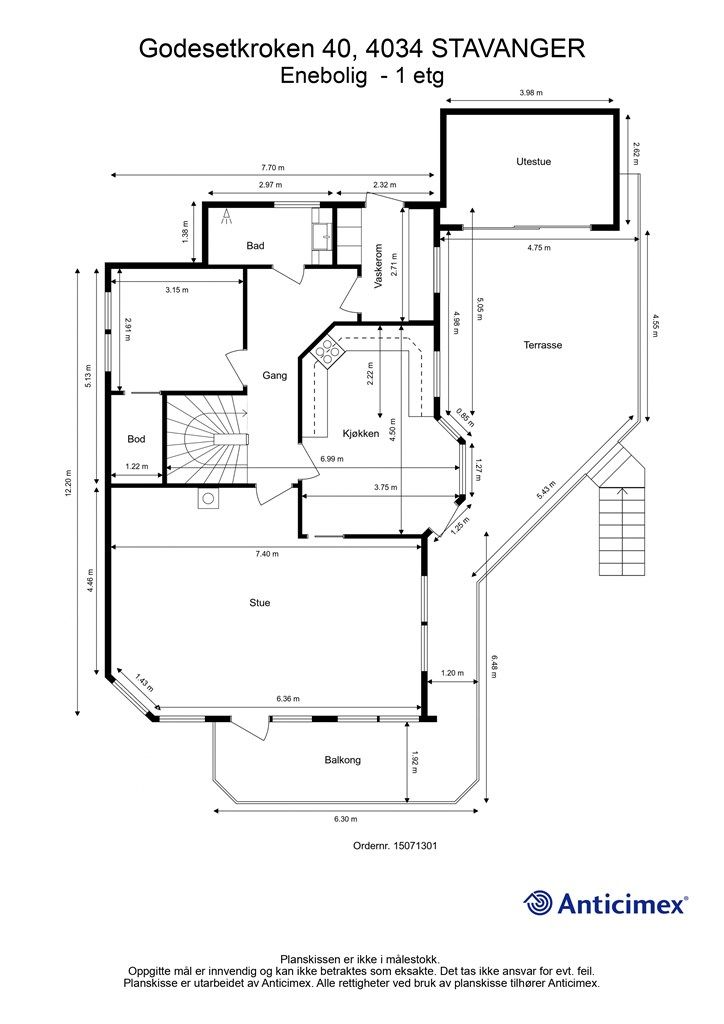
Stor enebolig m/innredet kjelleretasje. 5 sov, 2 kjøkken, 3 bad, vaskerom, garasje. Fin utsikt og gode solforhold.
Prisantydning
7 200 000 krOmkostninger
200 990 krTotalpris
7 400 990 kr
Pris
Bruksareal
287 m²BRA-I (internt bruksareal)
253 m²BRA-E (eksternt bruksareal)
34 m²TBA (terrasse-balkongareal)
51 m²
Areal
Byggeår
1992Soverom
5 soveromBad
3 badTomteareal
433 m² (eiet)Type
Enebolig - FrittliggendeEierform
EietFasiliteter
Garasje/P-plass og Balkong/TerrasseÅrlig velavgift
400 krEnergimerke
Rød E
Nøkkelinfo
Unngå doble boligrenter
Vi tilbyr gunstig forsikring.
Vurderer du utleie?
Få et tilbud fra Utleie KrogsveenHva koster lånet?
Sjekk estimert lånekostnadBeskrivelse
Kort om eiendommen
*Barnevennlig og fin beliggenhet med kort vei til Forus og Jåttåvågen
*5 sov, 2 kjøkken, 3 bad og eget praktisk vaskerom
*Deler av u.etg er innredet som en egen enhet og er pt. utleid for kr 7000 + strøm pr. mnd. Man kan benytte seg av denne delen selv om man vil
*Trivelig stue med god plass til stor salong og spisebord. Flott utsikt
*Kjøkken med tidløs lys innredning. Rikelig rikelig skapplass, skuffer og arbeidsplass på benk. Integrerte hvitevarer som medfølger. God plass til spisebord på kjøkken
*Stor loftstue, benyttet som soverom nå. Utgang til balkong
*Hagestue som er trivelige både dagtid og kveld
*Parkering i garasje samt på tomt. Mulighet for elbil-lader
*Meget god lagringsplass i flere boder i boligen
*Vedovn
*Kun vært 1 eier av boligen
*Skole og barnehager i kort gangavstand
Område
Legg til steder som er viktige for deg
På flyttefot? Tenk kjøp og salg samtidig.
Få din egen rådgiver gjennom hele kjøps- og salgsprosessen. Det starter med en verdivurdering.
Unngå doble boligrenter
Vi tilbyr gunstig forsikring.
Vurderer du utleie?
Få et tilbud fra Utleie KrogsveenHva koster lånet?
Sjekk estimert lånekostnadVil du varsles om lignende boliger?
Ved å lagre ditt boligsøk hos oss får du beskjed når vi har en bolig som ligner denne, før den legges ut på markedet!

