Vollasvingen 21
2 990 000 kr
68 m²
2 soverom
Komplett salgsoppgave

Bjørkelangen
Pen 3-roms fra 2017 på bakkeplan | Stor, delvis overbygget terrasse | Carport m/elbillader | Rolig og sentrumsnært
Prisantydning
2 990 000 krOmkostninger
85 790 krTotalpris
3 075 790 kr
Pris
Bruksareal
73 m²BRA-I (internt bruksareal)
68 m²BRA-E (eksternt bruksareal)
5 m²TBA (terrasse-balkongareal)
22 m²
Areal
Etasje
1Byggeår
2017Soverom
2 soveromBad
1 badType
EierleilighetEierform
EierseksjonFasiliteter
Garasje/P-plass og Balkong/TerrasseFellesutgifter
1 000 kr
Nøkkelinfo
Unngå doble boligrenter
Vi tilbyr gunstig forsikring.
Vurderer du utleie?
Få et tilbud fra Utleie KrogsveenHva koster lånet?
Sjekk estimert lånekostnadBeskrivelse
Kort om eiendommen
Innhold og byggemåte
Innhold og byggemåte
Eiendommen
Vollasvingen 21, 1940 BJØRKELANGEN
Kommunenummer 3226, gårdsnummer 73, bruksnummer 444, seksjonsnummer 3, ideell andel 1/1
Innhold
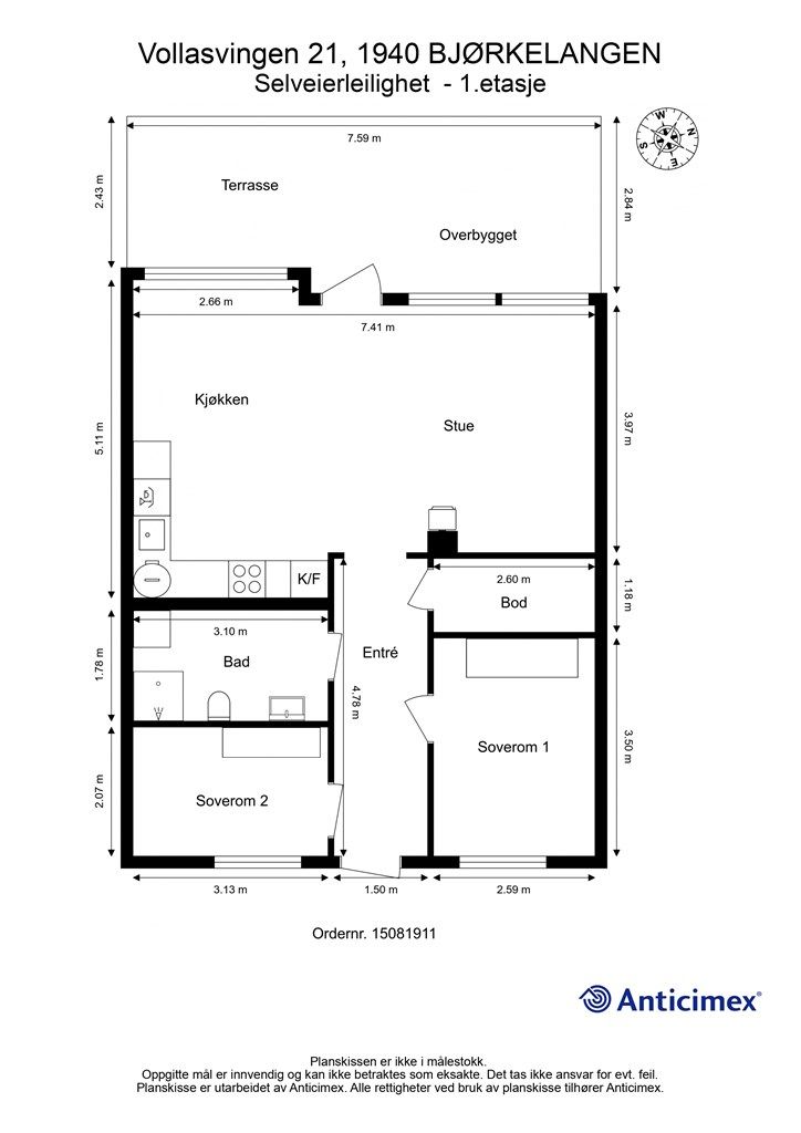
Totalt bruksareal BRA: 73 kvm
BRA-i:
1. etasje 68 kvm: Entré, bad, bod, stue, kjøkken og 2 soverom.
BRA-e:
1. etasje 5 kvm: Bod.
TBA (terrasse- og balkongareal):
1. etasje 22 kvm: Terrasse.
Vedlagte plantegninger er ikke målbare. De oppgitte arealer er hentet fra rapport med befaringsdato 28.04.2026 utført av Anticimex AS v/Thomas Nordby.
Byggemåte
Selger har innhentet en tilstandsrapport av boligen. Dersom det er registrert avvik, er disse klassifisert med tilstandsgrader (TGIU, TG2 og/eller TG3). Kjøper overtar ansvaret for de opplysninger som fremkommer av salgsdokumentasjonen, og kan ikke gjøre gjeldende som mangel noe som burde vært kjent eller som ikke kan anses å ha betydning for avtalen.
Bygningen er iht. tilstandsrapport oppført i 2017. Bygningen har støpt betongplate på mark, og yttervegger er av bindingsverk utvendig kledd med trepanel. Etasjeskillet er av trekonstruksjoner. Yttertaket er en saltakskonstruksjon som er utvendig tekket med takstein. Leiligheten har vinduer med karmer av tre og tre-lags glass fra byggeår. Entrédøren er av tre med elektrisk kodelås, og terrassedøren har karmer av tre og tre-lags glass, begge fra byggeår. Det er en elementpipe fra byggeår med en peisovn i stuen. Fra stuen er det utgang til en terrasse på 22 m², hvorav ca. 12 m² er overbygget. Terrassen har bærende konstruksjoner av tre med spaltegulv av tre, og det er blomsterkasser av tre på terrassen.
Leiligheten disponerer en biloppstillingsplass på ca. 14 m² i felles carport fra 2017, med elbil-lader. I tilknytning til carporten disponeres en isolert bod på 5 m².
Det elektriske anlegget har et sikringsskap med automatsikringer plassert i bod. Hovedsikringen er på 4x25A, og anlegget er skjult.
Boligen er utstyrt med godkjent slukkeutstyr, tilstrekkelig med røykvarslere og komfyrvakt.
Følgende bygningsdeler er ikke undersøkt (TGIU):
Tekniske anlegg
- Innvendig stakeluke er ikke påvist inne i boenheten. Det vurderes at boenheten likevel har tilgjengelige stakepunkter gjennom sluk og øvrige komponenter tilknyttet avløpssystemet, men hvordan disse vil fungere i en faktisk brukssituasjon er ikke kjent. TGIU er valgt fordi fullverdig kontroll av stakemuligheter forutsetter spesialkompetanse på rørsystemer.
Tilstandsrapporten er inntatt i salgsoppgaven. Rapporten inneholder informasjon om eventuelle avvik og konsekvensen av disse. Ettersom kjøper regnes å være kjent med forhold som tydelig fremgår av tilstandsrapporten, oppfordres du til å sette deg grundig inn i rapporten i sin helhet.
Selger beskriver også i egenerklæringsskjema:
I 2021 ble terrassen utvidet og det ble satt opp plantekasser.
Samtidig ble vegger i boden ved carporten etterisolert og plateslått.
Arbeidet ble utført av faglært personell i familien.
Det opplyses også om elektrisk arbeid utført i 2021 av elektriker, som omfattet bytte av benkebelysning på kjøkken, installasjon av en nedfelt stikkontakt i benkeplaten, samt opplegg av tre nye stikkontakter på terrassen.
Moderniseringer og påkostninger
Følgende moderniseringer er foretatt de senere år:
Vedlikeholdshistorikk fellesskapet:
2025:
- Beising og annet vedlikehold av bygget.
Ifølge selgers egenerklæring er følgende arbeid utført:
2021:
- Utvidet terrasse og satt opp plantekasser.
- Etterisolert og plateslått vegger i bod ved carport.
- Byttet benkebelysning på kjøkken.
- Felt ned backflip stikkontakt i benkeplate.
- Lagt opp 3 nye stikkontakter ute på terrassen (utført av Aurskog Elektriske Installasjon AS).
Standard
Dette er en arealeffektiv og praktisk leilighet fra 2017, beliggende på ett plan i første etasje. Boligen har en åpen løsning mellom stue og kjøkken, en stor, delvis overbygget terrasse med utsikt mot åpne jorder, og en gjennomgående god standard med balansert ventilasjon.
Entré
Romslig entrè med flislagt gulv og elektrisk gulvvarme.
Døren har elektronisk kodelås for en praktisk og nøkkelfri hverdag.
Stue / kjøkken
Stuen og kjøkken i åpen løsning, noe som skaper et sosialt og lyst allrom.
Peisovnen med glassdør gir varme og en lun atmosfære.
Rommet har plass til både en sofagruppe og et spisebord, og vindusrekken slipper inn dagslys og gir utsikt mot jordene utenfor.
Kjøkkeninnredningen fra Kvik har hvite, slette fronter og en laminert benkeplate.
Det er godt med skap- og benkeplass.
Kjøkkenet er utstyrt med integrert komfyr med keramisk platetopp og oppvaskmaskin, samt et frittstående kjøleskap med fryser.
En automatisk vannstopper med fuktsensor er installert for ekstra trygghet.
I 2021 ble det montert ny benkebelysning og en nedfelt stikkontakt i benkeplaten.
Fra stuen kommer du ut til en romslig terrasse på 22 m². Omtrent 12 m² er overbygget, noe som gir ly for vær og vind og forlenger brukstiden.
Terrassen vender ut mot åpne jorder, er skjermet for innsyn og har gode solforhold. Det er montert blomsterkasser og utvendige stikkontakter.
Bad
Badet er fra byggeåret og har flislagt gulv med elektrisk gulvvarme.
Rommet er utstyrt med en vegghengt servant med underskap, overskap med speildører og belysning, og et vegghengt toalett med innebygget sisterne.
En dusjnisje med innfellbare glassdører utnytter plassen godt.
Det er opplegg for vaskemaskin og tørketrommel.
Soverom
Hovedsoverommet har plass til dobbeltseng og er utstyrt med et romslig garderobeskap med speilfronter.
Det andre soverommet passer godt som barnerom, gjesterom eller kontor. Også dette rommet har garderobeskap.
Leiligheten har en innvendig bod hvor sikringsskap og ventilasjonsaggregat er plassert.
Det medfølger også en isolert, ekstern bod på 5 m² i tilknytning til carporten.
De integrerte hvitevarene og kjøleskap følger med handelen. Kjøper må forvente slitasje som følge alder og normal bruk.
Løsøre og tilbehør
Vi viser til liste fra Norges Eiendomsmeglerforbund som gjelder fra 01.01.2020 angående løsøre og tilbehør. Løsøre som ikke medfølger salget: Mulitlift i carport.
Oppvarming
Leiligheten er elektrisk oppvarmet kombinert med vedfyring. Det er elektrisk gulvvarme på bad og i entré. I stuen er det en peisovn med glassdør.
Boligen har balansert ventilasjon.
Dersom beboelsesrom ikke har vegg- eller fastmonterte varmekilder ved visning, følger dette heller ikke med.
Ferdigattest/brukstillatelse
Det foreligger ferdigattest datert 08.02.2017. Attesten gjelder nybygg boligbygg med 16 boenheter (Bygg L4). Ferdigattesten kan fås ved henvendelse til megler.
Det foreligger godkjente og byggemeldte tegninger, sist revidert 25.01.2016. Det har ikke kunnet kontrolleres om dagens bruk av rommene samsvarer med det som er godkjent. Tegningene kan fås ved henvendelse til megler.
Kjøper overtar alt ansvar, kostnad og risiko for dette videre.
Tinglyste heftelser og rettigheter
Eiendommen overdras fri for pengeheftelser.
Sameiet har legalpant for krav mot sameieren som følger av sameieforholdet iht. eierseksjonsloven § 31. Pantet er begrenset oppad til 2G (G = folketrygdens grunnbeløp).
Det er ingen tinglyste servitutter på sameiets eiendom.
Kjøpers bank vil få prioritet etter ovennevnte heftelser og servitutter.
Eventuell adgang til utleie
Leiligheten kan leies ut såfremt leiligheten har forsvarlige radonverdier. Leietaker må følge sameiets vedtekter og ordensregler på lik linje som eier.
Beliggenhet og tomteforhold
Beliggenhet og tomteforhold
Beliggenhet
Leiligheten i Vollasvingen ligger i et etablert og rolig boligområde i Bjørkelangen vest. Her bor du med utsikt over åpne jorder og med umiddelbar nærhet til store, grønne fellesarealer med lekeplass og fotballmål.
Hverdagslogistikken er enkel med gangavstand til flere barnehager og Bjørkelangen skole for 1. til 10. trinn. For fritidsaktiviteter ligger Bjørkelangen sportssenter kun noen få minutter unna. Turmulighetene starter rett utenfor døren, med stier som egner seg like godt for en løpetur som for en rolig kveldstur med hunden.
Alle sentrumstjenester er innen rekkevidde, med en kort spasertur til Bjørkelangen Senter og AMFI Bjørkelangen Torg. Her finnes dagligvarebutikker som Rema 1000 og Coop Extra, apotek, Vinmonopol og diverse andre butikker. For pendlere er det bussholdeplass i Trandumsvingen, og med bil tar det under en time til Oslo Gardermoen.
Barnehager, skoler og fritid
Bjørkelangen skole (1-10 kl.)
Bjørkelangen videregående skole
Kjelle videregående skole
Setskog oppvekstsenter (0-5 år)
Burholtoppen barnehage (1-6 år)
Kjelle gårdsbarnehage (1-5 år)
Informasjon om tilhørende skolekretser er hentet fra Prognosesenteret som dataleverandør, og tilhørigheten kan årlig endres av kommunen. Dersom skole- og barnehagetilbud er av betydning for kjøpet, ber vi om at det rettes en særskilt henvendelse til kommunen for oppdatert informasjon.
Beskrivelse av tomt
Eiertomt som tilhører sameiet. Fellesarealene er opparbeidet med asfaltert gårdsplass og grøntarealer. Det er etablert sittegrupper på fellesområdet.
Parkering
Leiligheten disponerer én biloppstillingsplass på ca. 14 m² i felles carport. Fastmontert lader for EL-bil følger med. I tillegg er det fellesparkering utenfor inngangsdøren, som i hovedsak er beregnet for gjester eller bil nummer to.
Multilift i carport medfølger ikke.
Vei, vann og avløp
Eiendommen har adkomst via kommunal vei. Eiendommen er tilknyttet kommunalt ledningsnett via private stikkledninger. Sameiet er ansvarlig for private stikkledninger til bygningen.
Regulerings-og arealplaner
Eiendommen er regulert til boligformål i henhold til reguleringsplan for Vollajordet, vedtatt 24.06.2008, med tilhørende reguleringsbestemmelser. Planen legger til rette for konsentrert småhusbebyggelse i to felt (B1 og B2) med ulik utnyttelsesgrad.
Eiendommen omfattes av kommuneplanen for Aurskog-Høland kommune og kommunedelplanen for Bjørkelangen.
Eiendommen berøres av følgende hensynssone i kommuneplanen:
- Hensynssone: Flomfare
Hele tomten ligger innenfor denne sonen. Dette kan medføre krav til dokumentasjon av flomsikkerhet ved søknad om byggetillatelse, og kan påvirke muligheten for å etablere kjeller eller utføre andre tiltak i grunnen.
Utsnitt av plan med tilhørende bestemmelser kan fås ved henvendelse til megler.
Økonomi
Økonomi
Boligens kostnader
Fellesutgiftene er kr 1.000,- pr. mnd. og inkluderer: brøyting, strøing, feiing, beis, fasade, klipping av felles gress, bygningsforsikring og avfallshåndtering.
Fellesutgiftene justeres normalt en til to ganger årlig i forhold til sameiets faktiske utgifter.
Kommunale avgifter faktureres i tillegg.
Nåværende eier har et strømforbruk som tilsvarer ca. kr 16 000,- pr. år / 10 000 kwh. pr. år.
Boligen er tilknyttet Vev Romerike som leverandør av fiber for TV og internett og har avgift på kr 740,- pr. mnd. Ruter fra Vev følger med salget.
Eiendomsskatten er kr 3 000,- pr. år.
Utgiftene er basert på nåværende eiers forbruk. Kjøper må selv tegne innboforsikring.
Kommunale utgifter
Kommunale avgifter er kr xxx,- for inneværende år. I dette inngår gebyr for vann, avløp, renovasjon og feiing/tilsyn.
Det tas forbehold om at kommunen kan justere gebyrene i løpet av året.
Eiendomsskatten utgjør ca kr 3 000,- pr år.
Formuesverdi
Ved hjelp av skatteetatens boligkalkulator er boligens formuesverdi beregnet til kr 821 628 ,- for fjoråret når boligen benyttes som primærbolig.
Formuesverdien er en gitt prosent av den beregnede markedsverdien. Beregnet markedsverdi er basert på Statistisk sentralbyrå (SSB) sine opplysninger om omsatte boliger. I beregningen tas det hensyn til boligens beliggenhet, areal, byggeår og boligtype.
Det er eier av boligen som fastsetter formuesverdien, jf. skatteforvaltningsloven § 9-1 første ledd, men skattemyndighetene kan kontrollere at verdien er satt riktig.
Fra 2026 har Stortinget vedtatt en oppdatert modell for beregning av formuesverdi for primærbolig, så avvik kan forekomme.
For mer informasjon se skatteetaten.no
Opplysninger om fellesgjeld
Andel formue er kr 190 000,- pr. 2025.
Det er pr. 27.04.2026 ingen lån registrert på selskapet.
Omkostninger
2 990 000,00 Prisantydning
Omkostninger
74 750,00 Dokumentavgift til staten (2,5% av kjøpesum)
9 950,00 Gjensidige Boligkjøperpakke* (valgfritt)
545,00 Tinglysing panterettsdokument
545,00 Tinglysing skjøte
--------------------------------------------------------
75 840,00 Omkostninger totalt (uten Gjensidige Boligkjøperpakke)
85 790,00 Omkostninger totalt (med Gjensidige Boligkjøperpakke)
--------------------------------------------------------
3 065 840,00 Totalpris inkl. omkostninger
3 075 790,00 Totalpris inkl. omkostninger (med Gjensidige Boligkjøperpakke)
--------------------------------------------------------
Dersom sameiet har fellesgjeld, vil leilighetens andel av fellesgjelden komme i tillegg til kjøpesummen. Denne gjelden skal ikke innbetales i oppgjøret, men følger leiligheten.
Totalpris inkl. omkostninger forutsetter kjøp til prisantydning.
Det tas forbehold om endringer i avgifter og gebyrer.
Tilbud om lånefinansiering
Megler formidler gjerne kontakt med rådgiver hos Trøgstad Sparebank. De har konkurransedyktige betingelser samt rask og løsningsorientert behandling av din lånesøknad.
Betalingsbetingelser
Kjøpesum inkludert omkostninger, samt pantedokument tilknyttet eventuelt lån, skal være disponibelt hos megler 2 virkedager før overtagelsen.
Annen viktig informasjon
Annen viktig informasjon
Eier
Jacob Engh Solberg
Informasjon om sameiet
Eiendommen er seksjonert, og leiligheten er tilknyttet sameie Vollasvingen 2, med sameiebrøk 68/1088.
Sameiet består av 16 seksjoner.
Dugnad må påregnes.
Det er tillatt å hold vanlige husdyr i sameiet.
Iht. sameiets vedtekter må kjøper godkjennes av styret som ny sameier. Det er kjøpers ansvar at styregodkjenning blir gitt, men styret kan ikke nekte godkjenning uten saklig grunn.
Vi gjør videre oppmerksom på at det iht. eierseksjonsloven ikke er anledning å erverve mer enn 2 seksjoner i sameiet, her teller også eierskap via. firma, nærstående og familie. Kjøper har risikoen for at overskjøting på denne bakgrunn kan nektes av Statens Kartverk. I så fall vil kjøper uansett være forpliktet til å gjennomføre handelen, og oppgjør til selger vil finne sted tross manglende overskjøting.
Konferer med megler for mer informasjon.
I tillegg følger det av sameiets vedtekter at juridiske personer (selskaper) ikke kan eie seksjoner i sameiet.
Dokumenter for sameiet og kopi av seksjonsbegjæringen kan fås ved henvendelse til megler.
Overtakelse
Etter nærmere avtale.
Boligselgerforsikring
Selger har i forbindelse med salget tegnet boligselgerforsikring levert av Gjensidige.
Boligselgerforsikringen dekker selgers ansvar etter avhendingsloven begrenset oppad til kr 14 millioner. Dersom kjøper oppdager forhold ved eiendommen som hen mener utgjør en mangel ved eiendommen, vil Gjensidige behandle reklamasjonen på vegne av selger. Forsikringsvilkår kan fås ved henvendelse til megler.
Vedlagt salgsoppgaven følger selgers egenerklæringsskjema og tilstandsrapport. Interessenter må sette seg inn i dokumentene før bud inngis.
Boligkjøperforsikring
Innen kontraktsmøtet må kjøper ta stilling til om det ønskes å bestille Boligkjøperpakken gjennom Gjensidige. I denne gunstige pakken er boligen ferdig forsikret og inkluderer rettshjelpsforsikring, også kalt Boligkjøperforsikring. Rettshjelpsforsikring gir trygghet og tilgang på profesjonell juridisk hjelp dersom det oppdages uventede feil eller mangler det første året etter overtagelse. Forsikringsselskapet behandler i så fall ethvert mangelskrav kjøper måtte ha overfor selger.
Boligkjøperpakken inkluderer bygningsforsikring for hus og hytte, innboforsikring, flytteforsikring og dobbel rentedekning - i situasjoner hvor kjøper ikke får solgt nåværende primærbolig.
Kjøper mottar ingen særskilt faktura for Boligkjøperpakken da kostnaden det første året legges til kjøpesummen for boligen. Det gjøres oppmerksom på Krogsveen mottar et honorar for denne formidlingen.
Produktark for Boligkjøperpakken ligger vedlagt i salgsoppgaven.
Dersom ikke boligkjøperpakke ønskes kan kun rettshjelpsforsikring, også kalt boligkjøperforsikring, tegnes særskilt via megler. Rettshjelpsforsikringen varer i 5 år fra overtagelse og leveres gjennom Gjensidige. Ta kontakt med megler for ytterligere informasjon.
Selskap og privatpersoner som driver med kjøp/salg/utvikling som ledd i egen næringsvirksomhet kan ikke tegne boligkjøperpakke eller rettshjelpsforsikring.
Budgivning
Forbrukerinformasjon om budgivning er vedlagt denne salgsoppgaven og er også på vår hjemmeside Krogsveen.no. Alle bud og budforhøyelser må inngis skriftlig. I tillegg må legitimasjon være fremlagt sammen med signatur fra budgiver.
Vi oppfordrer til å gi bud elektronisk via GI BUD-knappen på eiendommens hjemmeside på Krogsveen.no. Da vil samtlige vilkår bli oppfylt.
Eventuelle forhøyelser eller endringer av budet kan bekreftes pr SMS eller på e-post. Vi oppfordrer alltid til å kontakte megler pr. telefon i tillegg da forsinkelser i SMS og e-post kan forekomme.
For at budene skal kunne bli behandlet og videreformidlet skriftlig til alle involverte parter, må alle bud ha en tilstrekkelig lang akseptfrist, jf. eiendomsmeglingsforskriften § 6-3.
Selger må også skriftlig akseptere budet før aksept kan formidles til budgiver. Akseptfrist bør derfor være på minimum 30 minutter, og budforhøyelser må derfor skje i god tid før fristens utløp.
Bud i forbrukerforhold kan uansett ikke settes med kortere frist enn kl. 12.00 første virkedag etter siste annonserte visning. I tillegg kan ikke budet ha forbehold om at det skal holdes hemmelig ovenfor øvrige interessenter. Megler har iht lov om eiendomsmegling ikke anledning til å videreformidle disse budene, og de vil dermed heller ikke bli journalført.
Etter at eiendommen er solgt vil kjøper og selger få tilsendt budjournal. Øvrige budgivere kan få utlevert kopi av budjournalen i anonymisert form.
Hvitvaskingsreglene
I henhold til lov om hvitvasking og terrorfinansiering har megler plikt til å gjennomføre kontrolltiltak overfor kunder, herunder fullmektiger. Dette innebærer bl.a. å bekrefte kunders og reelle rettighetshaveres identitet på bakgrunn av fremvist gyldig legitimasjon eller på annen godkjent måte, samt å innhente opplysninger om kundeforholdets formål og tilsiktede art.
Dersom slike kundetiltak ikke kan gjennomføres, kan megler ikke etablere kundeforholdet eller utføre transaksjonen.
Hvis kjøper ikke bidrar til gjennomføring av kundekontrollen og dette fører til at transaksjonen blir forsinket eller ikke kan gjennomføres, vil dette ansees som mislighold av avtalen og gi selger rettigheter etter avhendingslova kapittel 5. I tilfeller der selger ikke bidrar til gjennomføring av løpende kundekontroll underveis i oppdraget, er det selger som misligholder sine forpliktelser etter avtalen og gi kjøper rettigheter etter avhendingslovens kapittel 4. Partene er selv ansvarlige for eventuelle kostnader og ansvar dette kan medføre. Eiendomsmegleren eller eiendomsmeglingsforetaket kan ikke holdes ansvarlig for de konsekvenser dette vil kunne få for partene eller andre som har interesser i eiendomshandelen.
Kjøper oppfordres til å innbetale kjøpesummen som ikke kommer fra låneinstitusjon i én samlet innbetaling fra egen konto i norsk bank. Megler har plikt til å melde fra til Økokrim om eiendomshandler som fremstår som mistenkelige. Melding sendes Økokrim uten at partene varsles.
Personopplysningsloven
I henhold til personopplysningsloven gjør vi oppmerksom på at interessenter kan bli registrert for videre oppfølging.
Lovanvendelse
Generelle bestemmelser
Salgsoppgaven er basert på de opplysningene selger har gitt til megler, den bygningssakyndiges tilstandsrapport, samt opplysninger innhentet fra kommunen, Kartverket og andre tilgjengelige kilder. Det er viktig at kjøper setter seg grundig inn i alle salgsdokumentene, herunder salgsoppgave, tilstandsrapport og selgers egenerklæring. Kjøper anses kjent med forhold som er tydelig beskrevet i salgsdokumentene, og slike forhold kan ikke påberopes som mangler. Dette gjelder uavhengig av om kjøper har lest dokumentene. Alle interessenter oppfordres til å undersøke eiendommen nøye, gjerne sammen med fagkyndig før bud inngis. Kjøper som velger å kjøpe usett kan ikke gjøre gjeldende som mangel noe han burde blitt kjent med ved undersøkelsen.
Dersom det er behov for avklaringer, anbefaler vi at interessenter rådfører seg med eiendomsmegler eller egne rådgivere før det legges inn bud.
En bolig som har blitt brukt i en viss tid, har vanligvis blitt utsatt for slitasje og skader kan ha oppstått. Slik bruksslitasje må kjøper regne med, og det kan avdekkes enkelte forhold etter overtakelse som nødvendiggjør utbedringer. Normal slitasje og skader som nødvendiggjør utbedring, er innenfor hva kjøper må forvente og vil ikke utgjøre en mangel.
Kjøper og selgers rettigheter og plikter reguleres av avtalen mellom partene, samt informasjonen som har vært tilgjengelig for kjøperen i forbindelse med handelen. Avtalen utfylles av avhendingsloven, og det gjelder ulike avtalevilkår avhengig av om kjøper er forbrukerkjøper eller ikke. Dette er nærmere beskrevet nedenfor.
På grunn av ulike avtalevilkår kan selger vurdere bud fra en som ikke er forbruker, ulikt fra en forbrukers bud. Dersom kjøper ikke er forbruker, er selger sitt mulige mangelsansvar begrenset fordi eiendommen selges "som den er". Selger kan ikke ta «som den er»- forbehold overfor en forbrukerkjøper. Selv et lavere bud fra en som ikke er forbruker kan foretrekkes fordi begrensningen i mulig mangelsansvar kan ha egenverdi for selger. Selger står fritt til å forkaste eller akseptere ethvert bud, og er for eksempel ikke forpliktet til å akseptere høyeste bud.
Budgiver skal i budskjema avgi egenerklæring om budgiver er forbruker eller næringsdrivende/ person som hovedsakelig handler som ledd i næringsvirksomhet. Budgivere får informasjon dersom andre bud er inngitt av en som ikke er forbruker.
Forbrukerkjøp - definisjon
Med forbrukerkjøp menes kjøp av eiendom når kjøperen er en fysisk person som ikke hovedsakelig handler som ledd i næringsvirksomhet.
Forbruker – avtalevilkår
Eiendommen har en mangel dersom den ikke er i samsvar med kravene som følger av avtalen, eller det foreligger brudd på bestemmelsene i avhendingsloven §§ 3-2 til 3-8. Hvis eiendommen ikke er i samsvar med det kjøperen må kunne forvente ut ifra alder, type og synlig tilstand, kan det være grunnlag for mangelskrav. Det samme gjelder hvis det er holdt tilbake eller gitt uriktige opplysninger om eiendommen. Dette gjelder likevel bare dersom man kan gå ut ifra at det virket inn på avtalen at opplysningen ikke ble gitt eller at mangelskravet ikke blir rettet i tide på en tydelig måte.
Boligen kan ha en mangel etter avhendingsloven § 3-3 andre ledd, dersom det er avvik mellom opplyst og faktisk innvendig areal, forutsatt at avviket er på 2% eller mer og minimum 1 kvm.
Ved beregning av et eventuelt prisavslag eller erstatning må kjøper selv dekke tap/kostnader opptil et beløp på kr 10 000 (egenandel).
Ikke-forbruker (næringsdrivende) – definisjon
Hvis kjøper er en juridisk person, eller en fysisk person som hovedsakelig handler som ledd i næringsvirksomhet, vil kjøpet ikke anses som et forbrukerkjøp.
Ikke-forbruker – avtalevilkår
Eiendommen har en mangel dersom den ikke er i samsvar med kravene som følger av avtalen.
Eiendommen selges «som den er», og selgers ansvar utover det konkret avtalte er da begrenset etter avhendingsloven § 3-9, første ledd andre setning.
Avhendingsloven § 3-3 andre ledd fravikes, og hvorvidt boligens arealsvikt utgjør en mangel vurderes etter avhendingsloven § 3-8.
Informasjon om kjøpers undersøkelsesplikt, herunder oppfordringen om å undersøke eiendommen nøye, gjelder også for kjøpere som ikke anses som forbrukere.
Det forutsettes at hjemmel overføres til kjøper. Hvis kjøper ikke ønsker hjemmelsoverføring av eiendommen, må det tas forbehold om dette i budet.
Meglers vederlag
Meglers vederlag betales av selger og er avtalt til:
Vederlag: 1,25 % av salgssummen inkl. eventuell fellesgjeld. Minimumsprovisjon er kr 35 000,-
Vederlag:
Visning / Overtagelse kr 2 900,- pr stk
Kontroll av hjemmel og heftelser kr 4 500,-
Markedsføringspakke kr 29 900,-
Oppgjør kr 8 900,-
Tilrettelegging kr 19 900,-
Utlegg:
Innhenting av informasjon forretningsfører kr 1 500,-
Innhenting av offentlig opplysninger kr 6 656,-
Tinglysing sikring kr 545,-
Andre utgifter:
AX tilstandsrapport leilighet kr 9 950,-
Foto kr 4 300,-
Vi er opptatt av verdiskapning, og har knyttet til oss samarbeidspartnere som skal sikre våre kunder de beste produkter og tjenester;
• I forbindelse med forberedelse av salget, innhenter vi informasjon om eiendommen hovedsakelig fra vår samarbeidspartner Ambita.
• Gjensidige leverer boligselgerforsikring og tilbyr bygningsforsikring
• Boligkjøperforsikring leveres av Hiscox og med Sedgwick som skadebehandler, og er formidlet gjennom Gjensidige.
• BN bank tilbyr finansieringsløsninger
• Vår avdeling Krogsveen Pluss tilbyr flyttetjenester som utvask, visningsvask, lager, tømming og transport av flyttelass, i tillegg til å formidle kontakt med Flip for overflateoppussing.
• I forbindelse med overtagelse av eiendommen tilbyr Overo avtale om strøm, alarm og bredbånd.
• Krogsveen er, sammen med øvrige bransjeaktører, medeier i Bomega AS som tilbyr den digitale annonseringsplattformen Hjem.
Opplysninger om oppdraget
Oppdragsnummer 60-0187/26
Eiendomsmegler Krogsveen AS, avd. Lillestrøm
Adolph Tidemands gate 38, 2000, LILLESTRØM
950 007 613
Oppdragets KR-kode KR60.26187
Dato
Sist oppdatert: 30. april 2026 kl. 17:14
Dokumenter
Dokumenter
PDF – 917 KB
PDF – 168 KB
PDF – 2 MB
PDF – 319 KB
PDF – 937 KB
PDF – 196 KB
PDF – 5 MB
PDF – 312 KB
PDF – 29 KB
PDF – 127 KB
PDF – 392 KB
Område
Legg til steder som er viktige for deg
Visning
Unngå doble boligrenter
Vi tilbyr gunstig forsikring.
Vurderer du utleie?
Få et tilbud fra Utleie KrogsveenHva koster lånet?
Sjekk estimert lånekostnadVil du varsles om lignende boliger?
Ved å lagre ditt boligsøk hos oss får du beskjed når vi har en bolig som ligner denne, før den legges ut på markedet!

