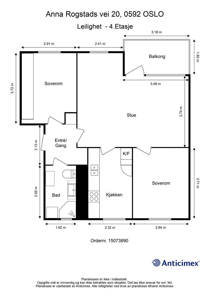
Anna Rogstads vei 20
4 800 000 kr
67 m²
2 soverom
Solgt

TONSENHAGEN
3R toppleilighet med v.vendt balkong. Oppussing-/moderniseringsbehov - Fyring/v.vann ink. i fk - Markanært - Parkering*
Prisantydning
4 800 000 krAndel fellesgjeld
36 840 krOmkostninger
131 940 krTotalpris
4 968 780 kr
Pris
Bruksareal
77 m²BRA-I (internt bruksareal)
67 m²BRA-E (eksternt bruksareal)
10 m²TBA (terrasse-balkongareal)
6 m²
Areal
Etasje
4Byggeår
1956Soverom
2 soveromBad
1 badType
EierleilighetEierform
EierseksjonFellesutgifter
4 727 krEnergimerke
Grønn G
Nøkkelinfo
Unngå doble boligrenter
Vi tilbyr gunstig forsikring.
Vurderer du utleie?
Få et tilbud fra Utleie KrogsveenHva koster lånet?
Sjekk estimert lånekostnadBeskrivelse
Kort om eiendommen
Velkommen til Anna Rogstads vei 20!
En 3-roms selveierleilighet med vestvendt balkong og marka som nærmeste nabo. Leiligheten ligger usjenert til på toppen med gode solforhold og utsikt til skjermet skogholt.
Boligen er et oppussingsobjekt med stort potensiale. Her ligger alt til rette for å lage din drømmeleilighet!
Beliggende i et attraktivt, rolig og sentralt boligområde på populære Tonsenhagen med marka i umiddelbar nærhet.
- Lys og gjennomgående leilighet uten innsyn
- Usjenert, vestvendt balkong på 6 kvm
- Utallige rekreasjonsmuligheter i umiddelbar nærhet
- V.vann/fyring (a-konto), TV/internett inkl. i fellesutgiftene
- Kjellerbod på 5 kvm og loftsbod på 9 kvm (gulvareal)
- Fellesrom, sykkelrom og hobbyrom i kjeller
- Gode kollektivforbindelser
- Skole i umiddelbar nærhet
Område
Legg til steder som er viktige for deg
På flyttefot? Tenk kjøp og salg samtidig.
Få din egen rådgiver gjennom hele kjøps- og salgsprosessen. Det starter med en verdivurdering.
Unngå doble boligrenter
Vi tilbyr gunstig forsikring.
Vurderer du utleie?
Få et tilbud fra Utleie KrogsveenHva koster lånet?
Sjekk estimert lånekostnadVil du varsles om lignende boliger?
Ved å lagre ditt boligsøk hos oss får du beskjed når vi har en bolig som ligner denne, før den legges ut på markedet!

