Årosveien 241
2 999 000 kr
89 m²
2 soverom
Solgt

Nyere og meget pen 3-roms selveier med god planløsning - 2 bad, solrik balkong, garasje og heis,
Prisantydning
2 999 000 krOmkostninger
86 010 krTotalpris
3 085 010 kr
Pris
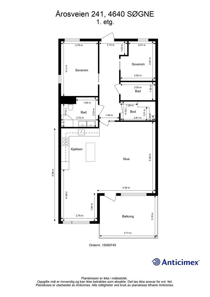
Bruksareal
94 m²BRA-I (internt bruksareal)
89 m²BRA-E (eksternt bruksareal)
5 m²TBA (terrasse-balkongareal)
12 m²
Areal
Etasje
1Byggeår
2012Soverom
2 soveromBad
2 badType
EierleilighetEierform
EierseksjonFellesutgifter
3 304 kr
Nøkkelinfo
Unngå doble boligrenter
Vi tilbyr gunstig forsikring.
Vurderer du utleie?
Få et tilbud fra Utleie KrogsveenHva koster lånet?
Sjekk estimert lånekostnadBeskrivelse
Kort om eiendommen
Velkommen til en meget pen og praktisk leilighet som tilbyr høy komfort med god planløsning. Leiligheten har en lys stue med åpen kjøkkenløsning og ny eikeparkett. Fra stuen er det utgang til en solrik balkong på ca. 13 kvm. Kjøkkenet har en praktisk kjøkkenøy og med integrerte hvitevarer. Komforten økes med balansert ventilasjon, vannbåren gulvvarme i stue og kjøkken, samt elektriske varmekabler på badet.
Leiligheten ligger på den "riktige" siden av bygget og har sol store deler av dagen.
Den overbygde uteplassen gjør at du kan nyte uteområdet i mange måneder av året. Det er bod og garasjeplass i kjeller, og bygget har heis.
Upåklagelig beliggenhet med nærhet til det meste og gode bussforbindelser, med busstopp rett ved siden av bygget.
Område
Legg til steder som er viktige for deg
På flyttefot? Tenk kjøp og salg samtidig.
Få din egen rådgiver gjennom hele kjøps- og salgsprosessen. Det starter med en verdivurdering.
Unngå doble boligrenter
Vi tilbyr gunstig forsikring.
Vurderer du utleie?
Få et tilbud fra Utleie KrogsveenHva koster lånet?
Sjekk estimert lånekostnadVil du varsles om lignende boliger?
Ved å lagre ditt boligsøk hos oss får du beskjed når vi har en bolig som ligner denne, før den legges ut på markedet!

