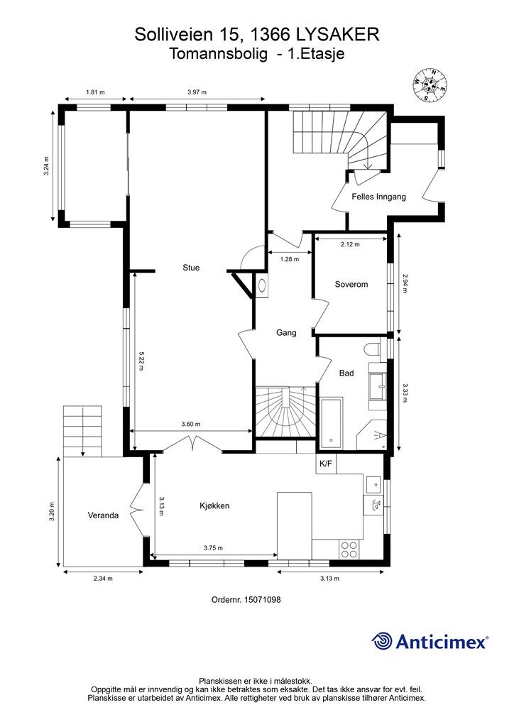
Solliveien 15
9 000 000 kr
179 m²
3 soverom
Solgt

Lysaker
Sjarmerende familieidyll! Flott tomannsbolig med hybel og stor solrik hage, beliggende i attraktiv blindgate på Lysaker
Prisantydning
9 000 000 krOmkostninger
245 990 krTotalpris
9 245 990 kr
Pris
Bruksareal
189 m²BRA-I (internt bruksareal)
179 m²BRA-E (eksternt bruksareal)
10 m²TBA (terrasse-balkongareal)
65 m²
Areal
Etasje
2Byggeår
1916Soverom
3 soveromBad
2 badType
Halvpart horisontaldelt boligEierform
EierseksjonFasiliteter
Balkong/TerrasseEnergimerke
Oransje G
Nøkkelinfo
Unngå doble boligrenter
Vi tilbyr gunstig forsikring.
Vurderer du utleie?
Få et tilbud fra Utleie KrogsveenHva koster lånet?
Sjekk estimert lånekostnadBeskrivelse
Kort om eiendommen
Velkommen til Solliveien 15 – en sjarmerende og innholdsrik familiebolig med egen hybel, omgitt av en stor, solfylt og frodig hage. Her får du et hjem med sjel, lune soner og god plass til både lek og avslapning – perfekt for familier som ønsker trygge og rolige omgivelser. Eiendommen ligger idyllisk til i enden av en blindvei, usjenert og barnevennlig.
Høydepunkter:
• Koselig tomannsbolig med hybel
• Stor, solrik og skjermet privat hage
• Renovert bad (2025) og nye gulv i underetasje
• Varmekabler i begge bad, kjellerstue og to soverom
• To parkeringsplasser
• Gangavstand til sjøen og Lysakerelven
• Kort vei til Lysaker stasjon og servicetilbud
• Høy takhøyde i 1. etasje
Et hjem som kombinerer sjarm med sentral beliggenhet og en atmosfære du straks vil trives i! Velkommen
Område
Legg til steder som er viktige for deg
På flyttefot? Tenk kjøp og salg samtidig.
Få din egen rådgiver gjennom hele kjøps- og salgsprosessen. Det starter med en verdivurdering.
Unngå doble boligrenter
Vi tilbyr gunstig forsikring.
Vurderer du utleie?
Få et tilbud fra Utleie KrogsveenHva koster lånet?
Sjekk estimert lånekostnadVil du varsles om lignende boliger?
Ved å lagre ditt boligsøk hos oss får du beskjed når vi har en bolig som ligner denne, før den legges ut på markedet!

