Klauvsteinen 16
4 190 000 kr
130 m²
4 soverom
Solgt
Innbydende rekkehus | Sentral og barnevennlig beliggenhet i populære Klauvsteinen | 4 sov | Garasjeplass m/ elbil lader
Prisantydning
4 190 000 krAndel fellesgjeld
1 341 467 krOmkostninger
19 252 krTotalpris
5 550 719 kr
Pris
Bruksareal
152 m²BRA-I (internt bruksareal)
130 m²BRA-E (eksternt bruksareal)
22 m²TBA (terrasse-balkongareal)
23 m²
Areal
Etasje
3Byggeår
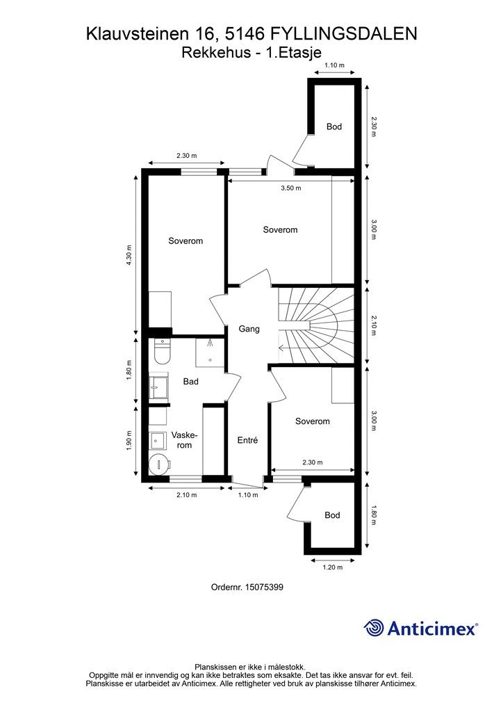
1987Soverom
4 soveromBad
1 badType
RekkehusEierform
AndelFasiliteter
Garasje/P-plass og Balkong/TerrasseFellesutgifter
11 464 krEnergimerke
Oransje D
Nøkkelinfo
Unngå doble boligrenter
Vi tilbyr gunstig forsikring.
Vurderer du utleie?
Få et tilbud fra Utleie KrogsveenHva koster lånet?
Sjekk estimert lånekostnadBeskrivelse
Kort om eiendommen
Velkommen til denne flotte familieboligen i populære Krohnegården - nærhet til alt!
Svært sentral beliggenhet, men samtidig rolig og tilbaketrukket
Hele fasaden ink. tak, vinduer m.m. renovert i regi av brl. i 2021!
Fast garasje med elbil-lader og garasjeportåpner
Gode solforhold store deler av dagen
Vestvendt altan, terrasse og hage
4 soverom, og 3 utvendige og 2 innvendige boder
Loftstue kan utvides - bod har vindu
Busstopp "rett utenfor døren"
Kort vei til Rema 1000 (med Instabox)/ Coop Prix (med Post i Butikk og Postnord)
Meget barnevennlig - nærhet til fotballbaner, idrettsanlegg, lekeplasser og Fysakhall
Ca 5 min. gange til Krohnegården friluftsområde med turløype og badeplass
Ca.10 min gange til Løvstien
Flere bhg i nærområdet
Område
Legg til steder som er viktige for deg
Meglere

Ingvar Nypan
Eiendomsmegler | Partner
På flyttefot? Tenk kjøp og salg samtidig.
Få din egen rådgiver gjennom hele kjøps- og salgsprosessen. Det starter med en verdivurdering.
Unngå doble boligrenter
Vi tilbyr gunstig forsikring.
Vurderer du utleie?
Få et tilbud fra Utleie KrogsveenHva koster lånet?
Sjekk estimert lånekostnadVil du varsles om lignende boliger?
Ved å lagre ditt boligsøk hos oss får du beskjed når vi har en bolig som ligner denne, før den legges ut på markedet!
På flyttefot? Slik gjør vi det enklere for deg
Skreddersydd flyttepakke
Vi fikser håndverkere, vask, pakking, lagring og transport, og legger ut for utgiftene underveis.
Hjelp med både kjøp og salg
Hos oss har du din egen rådgiver gjennom hele kjøps- og salgsprosessen.
Hjelp til finansiering
Vårt samarbeid med BN Bank sikrer deg rask og løsningsorientert hjelp, til konkurransedyktige betingelser.



