Fjellvegen 14
10 250 000 kr
119 m²
3 soverom
Komplett salgsoppgave

Jessheim/Skogmo Park
Unik og lekker toppleilighet med høy standard, enorm takterrasse, balkong, 2 garasjeplasser, store vinduer og gulvvarme
Prisantydning
10 250 000 krOmkostninger
267 290 krTotalpris
10 517 290 kr
Pris
Bruksareal
124 m²BRA-I (internt bruksareal)
119 m²BRA-E (eksternt bruksareal)
5 m²TBA (terrasse-balkongareal)
104 m²
Areal
Etasje
5Byggeår
2021Soverom
3 soveromBad
2 badType
EierleilighetEierform
EierseksjonFasiliteter
Garasje/P-plass, Heis og Balkong/TerrasseFellesutgifter
4 146 krEnergimerke
Grønn B
Nøkkelinfo
Unngå doble boligrenter
Vi tilbyr gunstig forsikring.
Vurderer du utleie?
Få et tilbud fra Utleie KrogsveenHva koster lånet?
Sjekk estimert lånekostnadBeskrivelse
Kort om eiendommen
Dette er en unik toppleilighet av høy kvalitet i populære Skogmo Park, med gangavstand til Jessheim sentrum. Leiligheten ligger i byggets femte etasje og byr på fantastiske uteområder i form av en solrik balkong på ca. 15 kvm og takterrasse på nærmere 90 kvm. Sistnevnte har flere soner, moderne pergola og alt tilrettelagt for utvendig hygge hele sommeren. Det medfølger to garasjeplasser ved siden av hverandre, begge med elbillader.
Inne finner du en moderne 4-roms med vannbåren gulvvarme, gjennomført stil og store vindusflater for herlig lysinnslipp og utsikt. Stuen ligger i åpen løsning med kjøkkenet, som har stilren innredning og øy med sitteplasser. Videre er det to delikate bad og tre soverom, hvor ett ligger i suiteløsning med walk-in closet og eget bad. Det er også en disponibel bod
Innhold og byggemåte
Innhold og byggemåte
Eiendommen
Fjellvegen 14, 2053 JESSHEIM
Kommunenummer 3209, gårdsnummer 131, bruksnummer 158, seksjonsnummer 104, ideell andel 1/1
Kommunenummer 3209, gårdsnummer 131, bruksnummer 160, ideell andel 1/89
Innhold
Totalt bruksareal BRA: 124 kvm
BRA-i:
Eierleilighet:
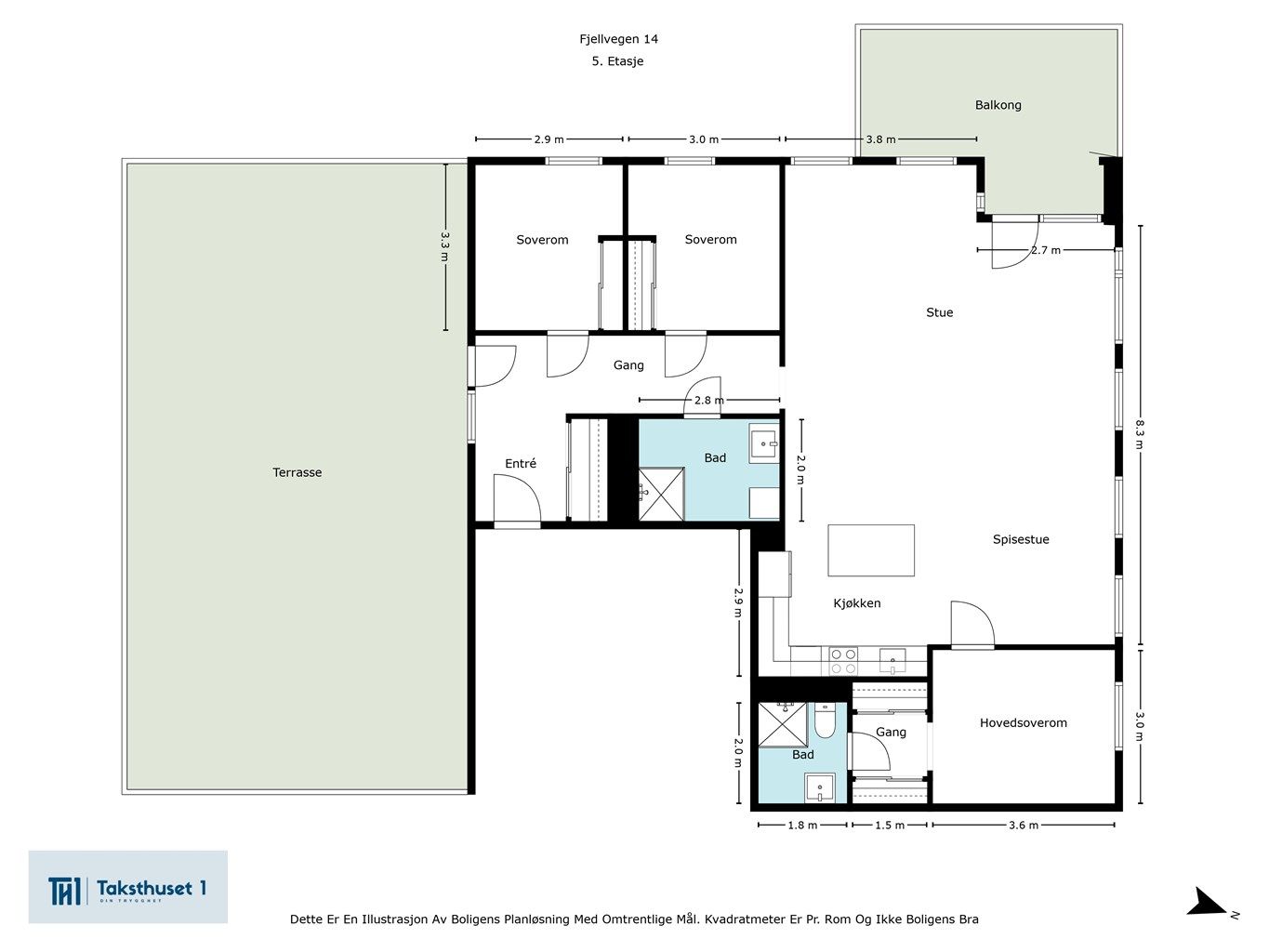
5. etasje 119 kvm: Gang, stue, kjøkken, to bad, tre soverom og garderobe
BRA-e:
Eierleilighet:
U. etasje 5 kvm: Kjellerbod
Åpent areal:
Eierleilighet:
5. etasje 15 kvm: Balkong
5. etasje 89 kvm: Takterrasse
Boligen disponerer en kjellerbod på ca. 5 kvm. Det gjøres oppmerksom på at boligens eksterne boder tilhører sameiets fellesareal, og at boden således ikke eies av den enkelte sameier. Dette medfører at sameiet i fellesskap beslutter bruken, og at man ikke selv har eierrett og rettsvern for boden. Sameiet kan ved vedtak beslutte annet bruk av fellesarealet og disponering av bodarealet kan dermed opphøre.
Vedlagte plantegninger er ikke målbare. De oppgitte arealer er hentet fra rapport med befaringsdato 28.04.2025 utført av Eirik Kalheim.
Byggemåte
Selger har fått utarbeidet en tilstandsrapport, dvs. en teknisk gjennomgang av boligen hvor eventuelle avvik, risiko for kjøper og prisoverslag for hva som bør gjøres av oppgradering, er skissert. Se særskilt TGIU (tilstandsgrad ikke undersøkt), samt TG2 og TG3 som viser hva som er boligens normale slitasje, alder og type, hva som er avvik fra dette og hva som bør/må utbedres. Rapporten og selgers egenerklæring er en del av salgsoppgaven og må leses nøye før bud inngis. Kjøper overtar ansvaret for de opplysninger som fremkommer av salgsdokumentasjonen, og kan ikke gjøre gjeldende som mangel noe som burde vært kjent eller som ikke kan anses å ha betydning for avtalen.
Bygningen er iht. tilstandsrapporten oppført i betong. Bygningen er etablert med grunnmurmur og bærende konstruksjoner av betong. Veggkonstruksjon med bindingsverk av tre, utvendig forblendet med teglstein og trekledning. Taket er et flatt papptekket tak. Etasjeskiller av betong.
Les for øvrig mer om byggemåte og den tekniske tilstanden i rapporten.
Bygget er oppført i 2021 og leiligheten har gjennomgående tilstandsgrad 1 (TG 1).
Sammendrag av selgers egenerklæring
- Ingen spesielle kommentarer i egenerklæring utover at det er to garasjeplasser med elbil lader.
Standard
Kort fortalt
- Unik 4-roms toppleilighet.
- Høy standard fra 2021.
- Takterrasse på ca. 90 kvm.
- Balkong på ca. 15 kvm.
- 2 garasjeplasser med lader.
- Moderne, gjennomført stil.
- Vannbåren gulvvarme i alle rom.
- Stue og kjøkken i åpen løsning.
- Store vinduer langs to vegger.
- Stilrent, velutstyrt kjøkken.
- Øy med sitteplasser for tre.
- 2 delikate bad, ett m/vaskesøyle.
- Tre lekre soverom m/garderobe.
- Hovedsoverom i suiteløsning.
- Disponibel kjellerbod på ca. 5 kvm.
Entré
Leiligheten ligger i øverste etasje og har heisadkomst fra garasjen, slik at man kan ta seg tørrskodd til og fra bilen. Inne venter en lekker entré med store glassdører ut til takterrassen. Glassdørene gir en lys og luftig romfølelse, samt et svært godt førsteinntrykk. Entreen har gjennomført stil med lys enstavs parkett, grå, slette vegger og innfelte downlights. Det er også vannbåren gulvvarme for lun komfort hele året, og videre er entreen utstyrt med bred, plassbygd skyvedørsgarderobe.
Stue og kjøkken
Stue og kjøkken danner et imponerende allrom med store vinduer langs begge gavlveggene. Vinduene slipper inn rikelig med dagslys og byr i tillegg på utsikt over grøntområdet, samt bølgende landskap i det fjerne. Døren ut til balkongen gjør uterommet lett tilgjengelig. Stuen har god plass for ulikt møblement og innbyr til matlaging, latter og avslapning i godt selskap. Overflatene er like som i entreen, med enstavs parkett, gråmalte vegger og vannbåren gulvvarme.
Kjøkken
Kjøkkenet har stilren innredning, delvis innfelt i veggen for et sømløst uttrykk. Det er også øy med sitteplasser for tre – perfekt for enkle måltider eller lekselesing. Innredningen har hvite fronter med gripekant og mørke laminatbenkeplater med nedfelt oppvaskkum i kompositt. Kjøkkenet er for øvrig utstyrt med integrerte hvitevarer i form av stekeovn, induksjonstopp, ventilator, oppvaskmaskin og kjøl/frys. Vannstoppsystem og komfyrvakt er montert.
Bad/wc/vaskerom
Leiligheten har to delikate bad med lik utførelse. Badene har flislagte overflater, varme i gulvet og downlights i himling. Innredningene består av hvite skuffemøblement med heldekkende servant, og over er det speil med integrert belysning. Toalettene er vegghengt og dusjhjørnene har innfellbare dører i glass. Det ene badet har i tillegg vaskesøyle med opplegg for vaskemaskin og tørketrommel.
Soverom og garderobe
Leiligheten har tre tiltalende soverom med lekre overflater og ulik utførelse som gir hvert rom sitt personlige preg. To av soverommene ligger vegg-i-vegg og har plassbygde skyvedørsgarderober med speilfronter. Hovedsoverommet ligger i suiteløsning med eget walk-in closet og bad. Garderoben har rikelig med oppbevaringsplass i skyvedørsgarderober langs to parallelle vegger. Det er for øvrig mer lagringsplass i en disponibel kjellerbod på ca. 5 kvm.
Løsøre og tilbehør
- Integrerte hvitevarer på kjøkkenet medfølger ved salg. Det gjøres oppmerksom på at hvitevarene er kjøpt for noen år tilbake, og kjøper må forvente slitasje som følge alder og normal bruk.
- Pergola medfølger ikke, men mulig å inngå en avtale på.
Vi viser for øvrig til liste fra Norges Eiendomsmeglerforbund som gjelder fra 01.01.2020 angående løsøre og tilbehør.
Oppvarming
Leiligheten har vannbåren oppvarming med gulvvarme i alle rom. Varmtvann til fyring og forbruk er fra felles fjernvarmeanlegg. Ventilasjonen er balansert med avtrekk fra våtrom og kjøkken.
Dersom beboelsesrom ikke har vegg- eller fastmonterte varmekilder ved visning, følger dette heller ikke med.
Ferdigattest/brukstillatelse
Det foreligger ferdigattest på eiendommen datert 27.10.2022. Denne kan fås ved henvendelse til megler.
Tinglyste heftelser og rettigheter
Leiligheten overdras fri for pengeheftelser.
Sameiet har legalpant for krav mot sameieren som følger av sameieforholdet iht. eierseksjonsloven § 31. Pantet er begrenset oppad til 2G, (G = folketrygdens grunnbeløp).
Det er tinglyst følgende servitutter på sameiets eiendom:
Dagboknr 900125-1/10, tinglyst 26.06.1926, type heftelse: Rettigheter iflg. skjøte. Forbud mot næringsvirksomhet.
Dagboknr 3496934-1/200, tinglyst 16.12.2020, type heftelse: Bestemmelse om elektriske ledninger/kabler. Elvia har rett til å plassere nettstasjon med transformator, tilhørende apparater og kabelanlegg på eiendommen. Retten omfatter også rett til å drfte, vedlikeholde og fornye nettstasjon med tilhørende ledningsnett. Grunneier kan ikke bygge nærmere enn 5 meter til nettstasjon uten tillatelse av netteier.
Dagboknr 690318-1/200, tinglyst 09.06.2021, type heftelse: Bestemmelse om veg. Gnr 131 bnr 160 har vegrett over gnr 131 bnr 158 frem til innkjøring i garasjeanlegget.
Servituttene vil følge eiendommen. Kjøpers bank vil få prioritet etter ovennevnte heftelser og servitutter.
Seksjonen eier en ideell andel på 1/89 i garasjeanlegget på eiendom gnr. 131, bnr. 160.
Eventuell adgang til utleie
Leiligheten kan leies ut såfremt leiligheten har forsvarlige radonverdier. Leietaker må følge sameiets vedtekter og ordensregler på lik linje som eier.
Diverse
Vi er opptatt av verdiskapning, og har knyttet til oss samarbeidspartnere som skal sikre våre kunder de beste produkter og tjenester;
• Gjensidige leverer boligselgerforsikring og tilbyr bygningsforsikring
• Boligkjøperforsikring leveres av Hiscox og med Sedgwick som skadebehandler, og er formidlet gjennom Gjensidige.
• BN bank tilbyr finansieringsløsninger
• Vår avdeling Krogsveen Pluss tilbyr flyttetjenester som utvask, visningsvask, lager, tømming og transport av flyttelass, i tillegg til å formidle kontakt med Flip for overflateoppussing.
• I forbindelse med overtagelse av eiendommen tilbyr Overo avtale om strøm, alarm og bredbånd.
• Krogsveen er, sammen med øvrige bransjeaktører, medeier i den digitale annonseringsplattformen Hjem.
Beliggenhet og tomteforhold
Beliggenhet og tomteforhold
Beliggenhet
Eiendommen ligger i et sentralt og flott boligområde, i underkant av én km. øst for Jessheim sentrum med alt av fasiliteter. Det er gangavstand til skoler, barnehager og Jessheim sentrum med de fleste fasiliteter med bl.a. Jessheim Storsenter, restauranter, kulturhus, offentlig kommunikasjon m.m.. Det er kort vei til Nordbytjernet med badeplass og flotte tur- og rekreasjonsmuligheter, sommer som vinter. Området for øvrig har et bredt tilbud for alle aldersklasser innen idrett og kultur. Jessheim fikk bystatus i september 2012, og er en by i stor vekst.
Jessheim sentrum ligger kun en kort spasertur unna. Her finner du et stort kjøpesenter med 140 butikker, koselige kafeer og restauranter. Ved siden av senteret ligger byens kulturhus med flere kinosaler og bibliotek. Kulturskole med dans, musikk og teater for barna. Kulturhuset byr i tillegg på konserter, teater, revyer og kunstutstillinger.
Nordbytjernet er Ullensakers mest populære badeplass som er tilrettelagt med blant annet brygge og volleyballbane. Tjernet er en naturperle som er meget populært på fine sommerdager. Her finner du flotte turstier rundt tjernet samt et yrende badeliv om sommeren. Ellers kan Jessheims skoger tilby turstier, sykkelstier, skiløyper og lysløype. Jessheimmarka har gode vintertilbud hvor det blir kjørt opp flotte skiløyper. Jessheim stadion med fotball, friidrett og ny flerbrukshall/skøytehall ligger kun ca 10 min. gange fra boligen, og flere treningssentre ligger etablert i nye lokaler sentralt på Jessheim. I tillegg ble Jessheimbadet ferdigstilt i 2022 - et moderne anlegg med treningsbasseng og mye rom for lek og moro.
Jessheim stasjon har gode bussforbindelser til Gardermoen og Oslo, samt skolebusser til både Jessheim og Nannestad. Fra Jessheim stasjon går det tog i retning Oslo/Drammen og Dal to ganger i timen. Godt tilrettelagt for pendlere. I tillegg er det nå satt opp et ekspresstog kl 07:50 i hverdagene som bruker 24 minutter til Oslo S. Nærmeste bussholdeplass er Dampsaga allé, ca 250 meter fra leiligheten.
Avstander med bil:
Oslo Lufthavn ca. 10 min
Lillestrøm ca. 23 min
Strømmen ca. 24 min
Oslo S. ca. 35 min
Adkomst
Det vil bli skiltet med Krogsveen visningsskilt ved fellesvisninger.
Barnehager, skoler og fritid
Dersom skole- og barnehagetilbud er av betydning for kjøpet, ber vi om at det rettes en særskilt henvendelse til kommunen for oppdatert informasjon.
Beskrivelse av tomt
Eiertomt på 9 083 kvm som tilhører sameiet.
Leiligheten ligger i populære Skogmo Park, som er et moderne og gjennomført bomiljø med kort vei til sentrum og natur. Her får du en solrik balkong på ca. 15 og en fantastisk takterrasse på nærmere 90 kvm – et privat uterom som innbyr til både hverdagsro og festlige anledninger.
Terrassen har ypperlige solforhold store deler av dagen og fungerer som en naturlig forlengelse av leiligheten. Den har flere romslige soner med plass til spisegruppe, loungemøbler og solstoler, deriblant under en moderne pergola som gir skygge når det trengs. Også fellesområdene i Skogmo Park holder høy standard, med pent beplantet gårdsrom, sittegrupper og sykkelparkering.
Parkering
Leiligheten har to parkeringsplasser i felles garasjekjeller, og for øvrig er parkering etter områdets gjeldende bestemmelser. Parkeringsplassene er ved siden av hverandre og har elbilladere.
Parkeringsplassene er i anleggseiendom med eget gårds- og bruksnummer 131/160. P-plassene er realkoblet mot seksjonen og medfølger ved salg. Realkobling kan oppløses.
Vei, vann og avløp
Eiendommen har adkomst via privat vei med felles vedlikeholdsansvar for sameiet.
Eiendommen er tilknyttet kommunalt ledningsnett via private stikkledninger. Sameiet er ansvarlig for private stikkledninger til bygningen.
Regulerings-og arealplaner
Eiendommen er regulert til boligbebyggelse - blokkbebyggelse i henhold til reguleringsplan for «Skogmo B5-B6.5» med tilhørende reguleringsbestemmelser vedtatt 13.03.2018.
Avsatt i kommuneplanen vedtatt 23.03.2021 til boligbebyggelse - nåværende.
Eiendommen grenser inntil reguleringsplan for «Del av TV 174 øst for jernbanen med tilliggende eiendommer» vedtatt 28.12.1983, «Del av RV øst for jernbanen med tilliggende eiendommer, gnr/bnr 135/22» vedtatt 23.11.1987 og «Grønnstruktur Langmyra» vedtatt 23.03.2021.
Det er regulert til blokkbebyggelse på naboeiendommen.
Det gjøres oppmerksom på at neste salgstrinn av Skogmo Park, samt Allergotskogene er under bygging. Området er generelt under utbygging, og byggestøy må derfor påregnes.
Utsnitt av plan med tilhørende bestemmelser kan fås ved henvendelse til megler.
Økonomi
Økonomi
Boligens kostnader
Kommunale avgifter er kr 14 127,- for inneværende år. I dette inngår gebyr for vann, avløp og renovasjon.
Det er installert vannmåler i eiendommen og kostnadene betales etter forbruk. Avlesning av forbruk avleses etter henvendelse fra kommunen. Gebyret betales à konto basert på siste avlesning. Avregning foretas i forbindelse med neste forfall på kommunale avgifter.
Fellesutgiftene er kr 4 146,- pr. mnd. og inkluderer: Bygningsforsikring, forretningsførsel, grunnpakke kabel-tv/bredbånd, garasje, generelt drift og vedlikehold av sameiet m.m.
Fellesutgiftene justeres normalt en til to ganger årlig i forhold til sameiets faktiske utgifter.
Sameiet har månedlig forbruksfakturering av energi (fjernvarme) og vann-/avløpsavgift etter måler.
Nåværende eier har et strømforbruk som tilsvarer ca. 9 000 kwh. pr. år.
Boligen er tilknyttet Telia som leverandør av kabel-tv og bredbånd. Avgiften er inkl. i de månedlige felleskostnadene. Tv-tuner/dekoder medfølger.
Utgiftene er basert på nåværende eiers forbruk. Kjøper må selv tegne innboforsikring.
Formuesverdi
Formuesverdi for 2023 var kr 1 656 463,- ifølge skatteetaten. Beløpet forutsetter at eier bor fast i boligen (primærbolig).
Ved eventuell øvrig bruk av eiendommen (f.eks. fritidsbolig, pendlerbolig, utleieobjekt) var formuesverdien for 2023 kr 6 625 852,-.
Formuesverdien justeres normalt årlig. Se skatteetaten.no for mer informasjon om fastsettelse av formuesverdien.
Eiendomsskatt
Det er p.t ikke vedtatt eiendomsskatt for eiendommer i kommunen.
Opplysninger om fellesgjeld
Andel formue er kr 26 184,- pr. 31.12.2024
Andel fellesgjeld er kr 0,- pr. 28.04.2025.
Det er ikke felles lån i sameiet.
Omkostninger
10 250 000,00 Prisantydning
Omkostninger
256 250,00 Dokumentavgift til staten (2,5% av kjøpesum)
9 950,00 Gjensidige Boligkjøperpakke (valgfri)
545,00 Tinglysing panterettsdokument
545,00 Tinglysing skjøte
--------------------------------------------------------
267 290,00 Omkostninger totalt
--------------------------------------------------------
10 517 290,00 Totalpris inkl. omkostninger
--------------------------------------------------------
Totalpris inkl. omkostninger forutsetter kjøp til prisantydning.
Det tas forbehold om endringer i avgifter og gebyrer.
Tilbud om lånefinansiering
Megler formidler gjerne kontakt med rådgiver hos vår samarbeidspartner BN Bank. De har konkurransedyktige betingelser samt rask og løsningsorientert behandling av din lånesøknad. Krogsveen mottar et honorar for denne formidlingen.
Betalingsbetingelser
Kjøpesum inkludert omkostninger, samt pantedokument tilknyttet eventuelt lån, skal være disponibelt hos megler 2 virkedager før overtagelsen.
Annen viktig informasjon
Annen viktig informasjon
Eier
Elin Andrea McCall og David William Mccall
Informasjon om sameiet
Eiendommen er seksjonert, og leiligheten er tilknyttet Skogmo Park Boligsameie 1, med sameiebrøk 1205/111040.
Sameiet består av 148 boligseksjoner, fordelt på fem bygg.
Forretningsfører er BORI BBL, tlf. 63 89 02 00.
Dugnad må påregnes.
Dyrehold er tillatt så lenge det ikke er til sjenanse for øvrige beboere. Hund skal alltid føres i bånd på sameiets område.
Foretatt påkostninger de senere år: Generelt vedlikehold.
Planlagte påkostninger: Generelt vedlikehold.
Under blokkene er det etablert et felles parkeringsanlegg som inneholder bl.a. teknisk rom, trapper, heisoppganger, sportsboder, felles sportsbod og parkeringsplasser organisert som en anleggseiendom. Det er heis fra hvert bygg til parkeringsanlegget. Parkeringsanlegget er organisert som en anleggseiendom gnr 131 bnr 160 med 177 parkeringsplasser.
Eierseksjonssameiet Skogmo Park Boligsameie 1 eier andelen som gir rett til atkomst og bruk av boder, tekniske rom, sykkelparkering og fellesfunksjoner mv. Skogmo Park Boligsameie 1 eier og disponerer videre 8 parkeringsplasser i kjeller og 2 på terreng til gjesteparkering.
Vi gjør videre oppmerksom på at det iht. eierseksjonsloven ikke er anledning å erverve mer enn 2 seksjoner i sameiet, her teller også eierskap via. firma, nærstående og familie. Kjøper har risikoen for at overskjøting på denne bakgrunn kan nektes av Statens Kartverk. I så fall vil kjøper uansett være forpliktet til å gjennomføre handelen, og oppgjør til selger vil finne sted tross manglende overskjøting. Konferer med megler for mer informasjon.
Dokumenter for sameiet og kopi av seksjonsbegjæringen kan fås ved henvendelse til megler.
Overtakelse
Etter nærmere avtale.
Boligselgerforsikring
Selger har ikke tegnet boligselgerforsikring og eventuelle reklamasjoner må rettes direkte til selger. Selgers egenerklæringsskjema følger som bilag til denne salgsoppgaven i tillegg til tilstandsrapport. Interessenter må sette seg inn i dokumentene før bud inngis.
Boligkjøperforsikring
Innen kontraktsmøtet må kjøper ta stilling til om det ønskes å bestille Boligkjøperpakken gjennom Gjensidige. I denne gunstige pakken er boligen ferdig forsikret og inkluderer rettshjelpsforsikring, også kalt Boligkjøperforsikring. Rettshjelpsforsikring gir trygghet og tilgang på profesjonell juridisk hjelp dersom det oppdages uventede feil eller mangler det første året etter overtagelse. Forsikringsselskapet behandler i så fall ethvert mangelskrav kjøper måtte ha overfor selger.
Boligkjøperpakken inkluderer bygningsforsikring for hus og hytte, innboforsikring, flytteforsikring og dobbel rentedekning - i situasjoner hvor kjøper ikke får solgt nåværende primærbolig.
Kjøper mottar ingen særskilt faktura for Boligkjøperpakken da kostnaden det første året legges til kjøpesummen for boligen. Det gjøres oppmerksom på Krogsveen mottar et honorar for denne formidlingen.
Produktark for Boligkjøperpakken ligger vedlagt i salgsoppgaven.
Dersom ikke boligkjøperpakke ønskes kan kun rettshjelpsforsikring, også kalt boligkjøperforsikring, tegnes særskilt via megler. Rettshjelpsforsikringen varer i 5 år fra overtagelse og leveres gjennom Gjensidige. Ta kontakt med megler for ytterligere informasjon.
Selskap og privatpersoner som driver med kjøp/salg/utvikling som ledd i egen næringsvirksomhet kan ikke tegne boligkjøperpakke eller rettshjelpsforsikring.
Budgivning
Forbrukerinformasjon om budgivning er vedlagt denne salgsoppgaven og er også på vår hjemmeside Krogsveen.no. Alle bud og budforhøyelser må inngis skriftlig. I tillegg må legitimasjon være fremlagt sammen med signatur fra budgiver.
Vi oppfordrer til å gi bud elektronisk via GI BUD-knappen på eiendommens hjemmeside på Krogsveen.no. Da vil samtlige vilkår bli oppfylt.
Eventuelle forhøyelser eller endringer av budet kan bekreftes pr SMS eller på e-post. Vi oppfordrer alltid til å kontakte megler pr. telefon i tillegg da forsinkelser i SMS og e-post kan forekomme.
For at budene skal kunne bli behandlet og videreformidlet skriftlig til alle involverte parter, må alle bud ha en tilstrekkelig lang akseptfrist, jf. eiendomsmeglingsforskriften § 6-3.
Selger må også skriftlig akseptere budet før aksept kan formidles til budgiver. Akseptfrist bør derfor være på minimum 30 minutter, og budforhøyelser må derfor skje i god tid før fristens utløp.
Bud i forbrukerforhold kan uansett ikke settes med kortere frist enn kl. 12.00 første virkedag etter siste annonserte visning. I tillegg kan ikke budet ha forbehold om at det skal holdes hemmelig ovenfor øvrige interessenter. Megler har iht lov om eiendomsmegling ikke anledning til å videreformidle disse budene, og de vil dermed heller ikke bli journalført.
Etter at eiendommen er solgt vil kjøper og selger få tilsendt budjournal. Øvrige budgivere kan få utlevert kopi av budjournalen i anonymisert form.
Hvitvaskingsreglene
I henhold til lov om hvitvasking og terrorfinansiering har megler plikt til å gjennomføre kontrolltiltak overfor kunder, herunder fullmektiger. Dette innebærer bl.a. å bekrefte kunders og reelle rettighetshaveres identitet på bakgrunn av fremvist gyldig legitimasjon eller på annen godkjent måte, samt å innhente opplysninger om kundeforholdets formål og tilsiktede art.
Dersom slike kundetiltak ikke kan gjennomføres, kan megler ikke etablere kundeforholdet eller utføre transaksjonen.
Hvis kjøper ikke bidrar til gjennomføring av kundekontrollen og dette fører til at transaksjonen blir forsinket eller ikke kan gjennomføres, vil dette ansees som mislighold av avtalen og gi selger rettigheter etter avhendingslova kapittel 5. I tilfeller der selger ikke bidrar til gjennomføring av løpende kundekontroll underveis i oppdraget, er det selger som misligholder sine forpliktelser etter avtalen og gi kjøper rettigheter etter avhendingslovens kapittel 4. Partene er selv ansvarlige for eventuelle kostnader og ansvar dette kan medføre. Eiendomsmegleren eller eiendomsmeglingsforetaket kan ikke holdes ansvarlig for de konsekvenser dette vil kunne få for partene eller andre som har interesser i eiendomshandelen.
Kjøper oppfordres til å innbetale kjøpesummen som ikke kommer fra låneinstitusjon i én samlet innbetaling fra egen konto i norsk bank. Megler har plikt til å melde fra til Økokrim om eiendomshandler som fremstår som mistenkelige. Melding sendes Økokrim uten at partene varsles.
Personopplysningsloven
I henhold til personopplysningsloven gjør vi oppmerksom på at interessenter kan bli registrert for videre oppfølging.
Lovanvendelse
Generelle bestemmelser
Salgsoppgaven er basert på de opplysningene selger har gitt til megler, den bygningssakyndiges tilstandsrapport, samt opplysninger innhentet fra kommunen, Kartverket og andre tilgjengelige kilder. Det er viktig at kjøper setter seg grundig inn i alle salgsdokumentene, herunder salgsoppgave, tilstandsrapport og selgers egenerklæring. Kjøper anses kjent med forhold som er tydelig beskrevet i salgsdokumentene, og slike forhold kan ikke påberopes som mangler. Dette gjelder uavhengig av om kjøper har lest dokumentene. Alle interessenter oppfordres til å undersøke eiendommen nøye, gjerne sammen med fagkyndig før bud inngis. Kjøper som velger å kjøpe usett kan ikke gjøre gjeldende som mangel noe han burde blitt kjent med ved undersøkelsen.
Dersom det er behov for avklaringer, anbefaler vi at interessenter rådfører seg med eiendomsmegler eller egne rådgivere før det legges inn bud.
En bolig som har blitt brukt i en viss tid, har vanligvis blitt utsatt for slitasje og skader kan ha oppstått. Slik bruksslitasje må kjøper regne med, og det kan avdekkes enkelte forhold etter overtakelse som nødvendiggjør utbedringer. Normal slitasje og skader som nødvendiggjør utbedring, er innenfor hva kjøper må forvente og vil ikke utgjøre en mangel.
Kjøper og selgers rettigheter og plikter reguleres av avtalen mellom partene, samt informasjonen som har vært tilgjengelig for kjøperen i forbindelse med handelen. Avtalen utfylles av avhendingsloven, og det gjelder ulike avtalevilkår avhengig av om kjøper er forbrukerkjøper eller ikke. Dette er nærmere beskrevet nedenfor.
På grunn av ulike avtalevilkår kan selger vurdere bud fra en som ikke er forbruker, ulikt fra en forbrukers bud. Dersom kjøper ikke er forbruker, er selger sitt mulige mangelsansvar begrenset fordi eiendommen selges "som den er". Selger kan ikke ta «som den er»- forbehold overfor en forbrukerkjøper. Selv et lavere bud fra en som ikke er forbruker kan foretrekkes fordi begrensningen i mulig mangelsansvar kan ha egenverdi for selger. Selger står fritt til å forkaste eller akseptere ethvert bud, og er for eksempel ikke forpliktet til å akseptere høyeste bud.
Budgiver skal i budskjema avgi egenerklæring om budgiver er forbruker eller næringsdrivende/ person som hovedsakelig handler som ledd i næringsvirksomhet. Budgivere får informasjon dersom andre bud er inngitt av en som ikke er forbruker.
Forbrukerkjøp - definisjon
Med forbrukerkjøp menes kjøp av eiendom når kjøperen er en fysisk person som ikke hovedsakelig handler som ledd i næringsvirksomhet.
Forbruker – avtalevilkår
Eiendommen har en mangel dersom den ikke er i samsvar med kravene som følger av avtalen, eller det foreligger brudd på bestemmelsene i avhendingsloven §§ 3-2 til 3-8. Hvis eiendommen ikke er i samsvar med det kjøperen må kunne forvente ut ifra alder, type og synlig tilstand, kan det være grunnlag for mangelskrav. Det samme gjelder hvis det er holdt tilbake eller gitt uriktige opplysninger om eiendommen. Dette gjelder likevel bare dersom man kan gå ut ifra at det virket inn på avtalen at opplysningen ikke ble gitt eller at mangelskravet ikke blir rettet i tide på en tydelig måte.
Boligen kan ha en mangel etter avhendingsloven § 3-3 andre ledd, dersom det er avvik mellom opplyst og faktisk innvendig areal, forutsatt at avviket er på 2% eller mer og minimum 1 kvm.
Ved beregning av et eventuelt prisavslag eller erstatning må kjøper selv dekke tap/kostnader opptil et beløp på kr 10 000 (egenandel).
Ikke-forbruker (næringsdrivende) – definisjon
Hvis kjøper er en juridisk person, eller en fysisk person som hovedsakelig handler som ledd i næringsvirksomhet, vil kjøpet ikke anses som et forbrukerkjøp.
Ikke-forbruker – avtalevilkår
Eiendommen har en mangel dersom den ikke er i samsvar med kravene som følger av avtalen.
Eiendommen selges «som den er», og selgers ansvar utover det konkret avtalte er da begrenset etter avhendingsloven § 3-9, første ledd andre setning.
Avhendingsloven § 3-3 andre ledd fravikes, og hvorvidt boligens arealsvikt utgjør en mangel vurderes etter avhendingsloven § 3-8.
Informasjon om kjøpers undersøkelsesplikt, herunder oppfordringen om å undersøke eiendommen nøye, gjelder også for kjøpere som ikke anses som forbrukere.
Det forutsettes at hjemmel overføres til kjøper. Hvis kjøper ikke ønsker hjemmelsoverføring av eiendommen, må det tas forbehold om dette i budet.
Meglers vederlag
Megler har i tillegg krav på dekning av utlegg.
Meglers vederlag betales av selger og er avtalt til:
Vederlag: 0,50 % av salgssummen inkl. eventuell fellesgjeld. Minimumsprovisjon er kr ?60 000,00?
Vederlag
Kontroll av hjemmel og heftelser kr 2 900,00
Markedsføringspakke kr 27 400,00
Oppgjør kr 7 500,00
Tilrettelegging kr 15 000,00
Utlegg
Eierskiftegebyr kr 6 570,00
Innhenting av informasjon forretningsfører kr 4 500,00
Innhenting av offentlig opplysninger kr 3 056,00
Tinglysing sikring kr 545,00
Andre utgifter
Foto kr 11 698,75
Tilrettelegging salgsoppgave kr 2 806,25
Tilstandsrapport fra bygningssakkyndig - faktura til megler kr 9 000,00
Opplysninger om oppdraget
Oppdragsnummer 63-0095/25
Eiendomsmegler Krogsveen AS, avd. Jessheim
Skovly Promenade 10, 2066, JESSHEIM
950 007 613
Oppdragets KR-kode KR63.2595
Dato
Sist oppdatert: 16. januar 2026 kl. 16:20
Dokumenter
Dokumenter
PDF – 688 KB
PDF – 2 MB
PDF – 3 MB
PDF – 122 KB
PDF – 312 KB
PDF – 29 KB
PDF – 127 KB
PDF – 392 KB
Område
Legg til steder som er viktige for deg
Visning
Det er ingen planlagte visninger. Meld deg på for å avtale en tid som passer.
Lurer du på noe?
Unngå doble boligrenter
Vi tilbyr gunstig forsikring.
Vurderer du utleie?
Få et tilbud fra Utleie KrogsveenHva koster lånet?
Sjekk estimert lånekostnadVil du varsles om lignende boliger?
Ved å lagre ditt boligsøk hos oss får du beskjed når vi har en bolig som ligner denne, før den legges ut på markedet!

