Peter Sinneruds veg 58
2 900 000 kr
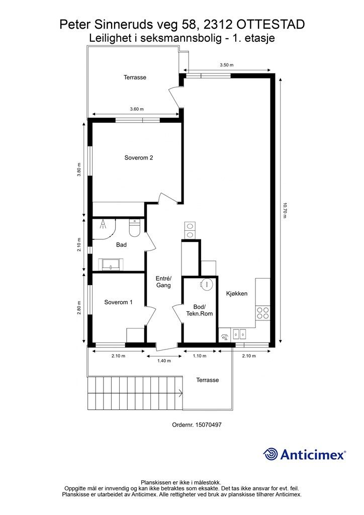
74 m²
2 soverom
Solgt
Ottestad
Tiltalende og lettstelt 3-roms selveierleilighet med fin og rolig beliggenhet i Sandvika - Carport
Prisantydning
2 900 000 krOmkostninger
83 540 krTotalpris
2 983 540 kr
Pris
Bruksareal
79 m²BRA-I (internt bruksareal)
74 m²BRA-E (eksternt bruksareal)
5 m²TBA (terrasse-balkongareal)
11 m²
Areal
Etasje
1Byggeår
2011Soverom
2 soveromBad
1 badType
EierleilighetEierform
EierseksjonFasiliteter
Garasje/P-plass og Balkong/TerrasseFellesutgifter
1 600 krEnergimerke
Rød D
Nøkkelinfo
Unngå doble boligrenter
Vi tilbyr gunstig forsikring.
Vurderer du utleie?
Få et tilbud fra Utleie KrogsveenHva koster lånet?
Sjekk estimert lånekostnadBeskrivelse
Kort om eiendommen
Velkommen til Peter Sinneruds veg 58!
Pen og lettstelt 3-roms selveierleilighet med god planløsning og parkering i carport.
Boligen passer godt for deg som ønsker et enkelt og funksjonelt hjem i naturskjønne omgivelser, samtidig som du har kort vei til sentrum.
Leiligheten inneholder blant annet to soverom, flislagt bad med gulvvarme og en åpen stue- og kjøkkenløsning med utgang til en overbygd terrasse.
Området består av eneboliger, leiligheter og rekkehus. Godt skjermet område med lite trafikk og støy. Korte avstander til barnehager, samt barne- og ungdomsskoler.
Vikasenteret med stor dagligvareforretning og diverse butikker ligger ca. 3 km unna, samt kun 1,5 km til Atlungstad Golfklubb med 18-hulls golfbane.
Velkommen til en hyggelig visning!
Område
Legg til steder som er viktige for deg
På flyttefot? Tenk kjøp og salg samtidig.
Få din egen rådgiver gjennom hele kjøps- og salgsprosessen. Det starter med en verdivurdering.
Unngå doble boligrenter
Vi tilbyr gunstig forsikring.
Vurderer du utleie?
Få et tilbud fra Utleie KrogsveenHva koster lånet?
Sjekk estimert lånekostnadVil du varsles om lignende boliger?
Ved å lagre ditt boligsøk hos oss får du beskjed når vi har en bolig som ligner denne, før den legges ut på markedet!




