Nabben 29
5 150 000 kr
152 m²
3 soverom
Solgt

Lys og lettstelt enebolig med naturnær beliggenhet| Utsyn mot Glomma| Dobbelgarasje!
Prisantydning
5 150 000 krOmkostninger
149 740 krTotalpris
5 299 740 kr
Pris
Bruksareal
189 m²BRA-I (internt bruksareal)
152 m²BRA-E (eksternt bruksareal)
37 m²TBA (terrasse-balkongareal)
68 m²
Areal
Etasje
1Byggeår
2018Soverom
3 soveromBad
2 badTomteareal
934 m² (eiet)Type
Enebolig - FrittliggendeEierform
EietFasiliteter
Garasje/P-plass og Balkong/TerrasseÅrlig velavgift
2 200 krEnergimerke
Grønn D
Nøkkelinfo
Unngå doble boligrenter
Vi tilbyr gunstig forsikring.
Vurderer du utleie?
Få et tilbud fra Utleie KrogsveenHva koster lånet?
Sjekk estimert lånekostnadBeskrivelse
Kort om eiendommen
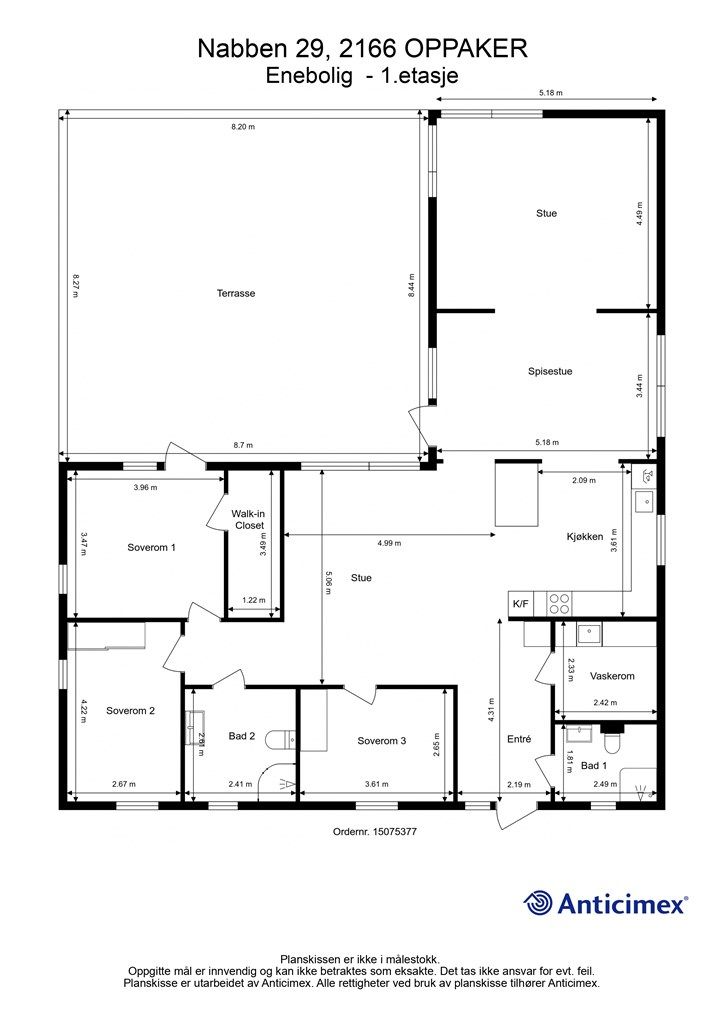
Velkommen til Nabben 29 – en romslig og lettstelt enebolig fra Älvsbyhus, byggeår 2018, alt på ett plan. Boligen har en gjennomtenkt planløsning med tre lyse soverom, flere stuesoner, et stort og funksjonelt kjøkken, to bad med gulvvarme og eget vaskerom. Ute finner du dobbelgarasje og gruslagt gårdsplass med rikelig parkering. Eiendommen ligger fredelig og idyllisk i et nyere boligfelt på Oppaker i Nes, ca. 11 minutter fra Årnes. Her bor du nær Glomma og flotte turområder med gode muligheter for rekreasjon og naturopplevelser rett utenfor døren.
Høydepunkter:
- Dobbelgarasje klargjort for gulvvarme.
- 3 soverom & 2 bad.
- Skjermet hage og stor terrasse.
- Hele 3 stuesoner.
Område
Legg til steder som er viktige for deg
På flyttefot? Tenk kjøp og salg samtidig.
Få din egen rådgiver gjennom hele kjøps- og salgsprosessen. Det starter med en verdivurdering.
Unngå doble boligrenter
Vi tilbyr gunstig forsikring.
Vurderer du utleie?
Få et tilbud fra Utleie KrogsveenHva koster lånet?
Sjekk estimert lånekostnadVil du varsles om lignende boliger?
Ved å lagre ditt boligsøk hos oss får du beskjed når vi har en bolig som ligner denne, før den legges ut på markedet!

