Bølerlia 139
4 400 000 kr
69 m²
2 soverom
Solgt
Bøler v/marka
Lys 3-roms i 2. etg. med marka som nabo|Vestvendt balkong|Separat kjøkken|Bad oppgradert 2015|Peisovn|Ingen forkjøpsrett
Prisantydning
4 400 000 krAndel fellesgjeld
151 682 krOmkostninger
11 040 krTotalpris
4 562 722 kr
Pris
Bruksareal
79 m²BRA-I (internt bruksareal)
69 m²BRA-E (eksternt bruksareal)
10 m²TBA (terrasse-balkongareal)
8 m²
Areal
Etasje
2Byggeår
1960Soverom
2 soveromBad
1 badType
AndelsleilighetEierform
AndelFasiliteter
Balkong/TerrasseFellesutgifter
3 627 krEnergimerke
Oransje E
Nøkkelinfo
Unngå doble boligrenter
Vi tilbyr gunstig forsikring.
Vurderer du utleie?
Få et tilbud fra Utleie KrogsveenHva koster lånet?
Sjekk estimert lånekostnadBeskrivelse
Kort om eiendommen
Vil du bo rett ved Østmarka, med fantastiske muligheter for aktiv utfoldelse sommer som vinter?
Buldring og klatring, fiske, Nøklevann med bading og roklubb, gå- og sykkelturer, ski og skøyter...bor du i Bølerlia, har du alle disse mulighetene i umiddelbar nærhet.
Skulle du savne bylivet, er du ikke lenger enn 19 min. unna med T-banen.
Verdt å nevne:
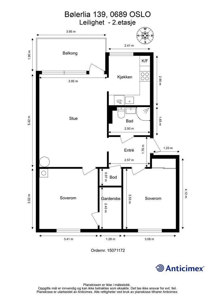
- Praktisk planløsning m/luftige rom
- Vestvendt balkong på 8 kvm m/fredelig utsyn
- Flislagt bad oppgradert 2015; nytt gulv m/v.kabler. Ellers dusjkabinett (ca 2005), oppl. vaskemaskin
- Sep. kjøkken m/integrerte hvitevarer fra ca 2015
- Lys og innbydende stue m/ny peisovn 2024
- 2 romslige soverom; walk-in closet og skyvedørsgarderobe
- 2 disp. kjellerboder; 3 og 7 kvm
- Kun 270 m til nærbutikk
- Trygg og kort skolevei
- Ingen forkjøpsrett
Område
Legg til steder som er viktige for deg
På flyttefot? Tenk kjøp og salg samtidig.
Få din egen rådgiver gjennom hele kjøps- og salgsprosessen. Det starter med en verdivurdering.
Unngå doble boligrenter
Vi tilbyr gunstig forsikring.
Vurderer du utleie?
Få et tilbud fra Utleie KrogsveenHva koster lånet?
Sjekk estimert lånekostnadVil du varsles om lignende boliger?
Ved å lagre ditt boligsøk hos oss får du beskjed når vi har en bolig som ligner denne, før den legges ut på markedet!




