Lundadalen 17
5 390 000 kr
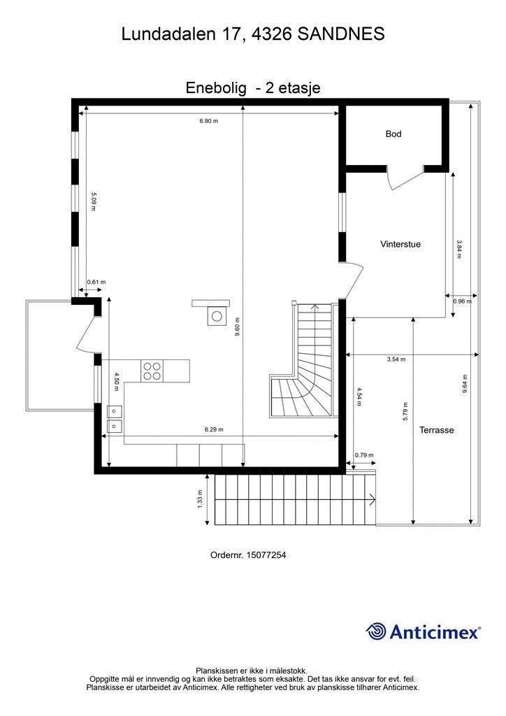
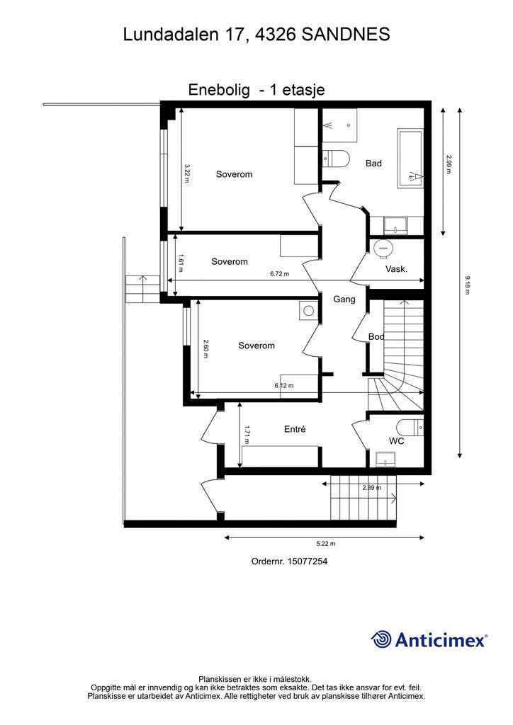
121 m²
3 soverom
Solgt

Innholdsrik og oppgradert enebolig i attraktivt område. Usjenert uteområde og god utsikt
Prisantydning
5 390 000 krOmkostninger
155 740 krTotalpris
5 545 740 kr
Pris
Bruksareal
136 m²BRA-I (internt bruksareal)
121 m²BRA-E (eksternt bruksareal)
4 m²TBA (terrasse-balkongareal)
5 m²
Areal
Byggeår
2002Soverom
3 soveromBad
1 badTomteareal
290 m² (eiet)Type
Enebolig - FrittliggendeEierform
EietEnergimerke
Gul C
Nøkkelinfo
Unngå doble boligrenter
Vi tilbyr gunstig forsikring.
Vurderer du utleie?
Få et tilbud fra Utleie KrogsveenHva koster lånet?
Sjekk estimert lånekostnadBeskrivelse
Kort om eiendommen
Boligen ligger i et familievennlig område med kort avstand til lekeplasser, busstopp, barnehager, skoler og flotte naturskjønne turområder ved Vedafjell, Ragnhildsnuden og lysløypene i Melsheia.
Boligen kan bl.a. by på:
- Tidløs innredning og fargevalg
- Lekkert moderne Epoq kjøkken fra 2020
- Delikat baderom pusset opp i 2020
- Nytt gulv i hele 2.etg. og alle 3 soverom fra 2020
- God takhøyde
- Varmepumpe og vedovn
- Store vindusflater som slipper inn rikelig med naturlig dagslys
- Parkering i gårdsrom med el-bil lader.
- Flotte uteområde på både fremsiden- og baksiden av boligen. På baksiden har man også hagestue og jacuzzi og sitter usjenert til
- Gode solforhold
Område
Legg til steder som er viktige for deg
På flyttefot? Tenk kjøp og salg samtidig.
Få din egen rådgiver gjennom hele kjøps- og salgsprosessen. Det starter med en verdivurdering.
Unngå doble boligrenter
Vi tilbyr gunstig forsikring.
Vurderer du utleie?
Få et tilbud fra Utleie KrogsveenHva koster lånet?
Sjekk estimert lånekostnadVil du varsles om lignende boliger?
Ved å lagre ditt boligsøk hos oss får du beskjed når vi har en bolig som ligner denne, før den legges ut på markedet!

