Ths.W.Schwartz gate 21
3 490 000 kr
72 m²
1 soverom
Komplett salgsoppgave
Cicignon
Romslig, klassisk selveierleilighet med stor takhøyde og balkong med kveldssol! 2 min. gange til toget.
Prisantydning
3 490 000 krAndel fellesgjeld
20 159 krOmkostninger
88 840 krTotalpris
3 598 999 kr
Pris
Bruksareal
90 m²BRA-I (internt bruksareal)
72 m²BRA-E (eksternt bruksareal)
18 m²TBA (terrasse-balkongareal)
7 m²
Areal
Etasje
2Byggeår
1910Soverom
1 soveromBad
1 badType
EierleilighetEierform
EierseksjonFellesutgifter
3 336 krEnergimerke
Rød G
Nøkkelinfo
Unngå doble boligrenter
Vi tilbyr gunstig forsikring.
Vurderer du utleie?
Få et tilbud fra Utleie KrogsveenHva koster lånet?
Sjekk estimert lånekostnadBeskrivelse
Kort om eiendommen
- Vestvendt balkong med sol fra ettermiddag til sen kveld sommerstid
- Innredet rom benyttet som soverom 2 (ikke byggemeldt)
- Stor takhøyde og fremtredende klassisk atmosfære
- Velholdt kjøkken med integrerte hvitevarer
- Gode lagringsmuligheter i loftsbod og to store kjellerboder
- Ærverdig bygård med vakre klassiske detaljer
- Rolig miljø i gaten utenfor - ingen gjennomkjøringsmulighet
- Attraktive omgivelser og vakre parkområder i nabolaget
- Få minutters gange til togstasjon og sentrumskjernen
Innhold og byggemåte
Innhold og byggemåte
Eiendommen
Ths.W.Schwartz gate 21, 1606 FREDRIKSTAD
Kommunenummer 3107, gårdsnummer 300, bruksnummer 1283, seksjonsnummer 3, ideell andel 1/1
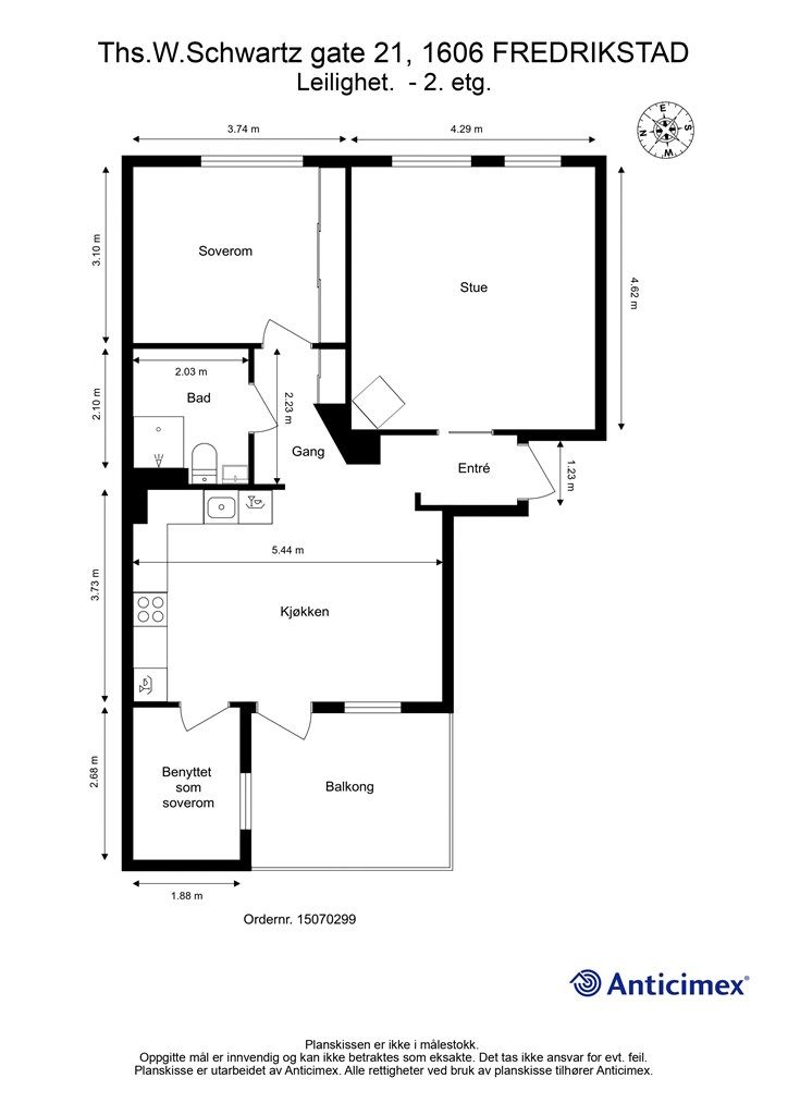
Innhold
Totalt bruksareal BRA: 90 kvm
BRA-i:
Leilighet:
2. etasje - 72 kvm: Entré/gang, bad, kjøkken, stue, soverom og rom benyttet som soverom.
BRA-e:
Leilighet:
Kjeller - 18 kvm: To boder (14 kvm og 4 kvm)
Åpent areal:
Leilighet:
2. etasje - 7 kvm: Balkong
Boligen disponerer to boder i kjelleren, en på 14 kvm (BRA-e) og en på 4 kvm (BRA-e).
Vedlagte plantegninger er ikke målbare. De oppgitte arealer er hentet fra rapport med befaringsdato 25.04.2025 utført av Anticimex. Arealene er beregnet og rom er definert etter dagens faktiske bruk, uavhengig av hva som er godkjent av bygningsmyndighetene.
Se punkt ferdigattest.
Byggemåte
Selger har fått utarbeidet en tilstandsrapport, dvs. en teknisk gjennomgang av boligen hvor eventuelle avvik, risiko for kjøper og prisoverslag for hva som bør gjøres av oppgradering, er skissert. Se særskilt TGIU (tilstandsgrad ikke undersøkt), samt TG2 og TG3 som viser hva som er boligens normale slitasje, alder og type, hva som er avvik fra dette og hva som bør/må utbedres. Rapporten og selgers egenerklæring er en del av salgsoppgaven og må leses nøye før bud inngis. Kjøper overtar ansvaret for de opplysninger som fremkommer av salgsdokumentasjonen, og kan ikke gjøre gjeldende som mangel noe som burde vært kjent eller som ikke kan anses å ha betydning for avtalen.
Bygningen er iht. tilstandsrapporten oppført i mur og betong. Boligbygg over tre etasjer samt kjeller og kaldtloft. Gulv av betong mot grunn. Grunnmur og yttervegger av betong og murkonstruksjoner. Etasjeskiller av trekonstruksjon. Takkonstruksjon i mansardtaksform, utvendig tekket med takshingel. Leiligheten har slett entrédør med brannklasse B30 og lydklasse 35dB. Balkongdør med to-lags glass fra 2009. Vinduer med to-lags glass fra mellom 1980 og 1992.
Les forøvrig mer om byggemåte og den tekniske tilstanden i rapporten.
Det er gitt 41% TG 1, 56 % TG 2 og 3 % TGIU.
Det gjøres spesielt oppmerksom på:
Det er gitt tilstandsgrad 2 (TG 2) på bygningselementer i våtrom - bad, kjøkken, øvrige rom, elektrisk anlegg, yttervegger inkl. fasader og konstruksjon, dører og vinduer.
Se supplerende tekst i tilstandsrapporten om rommet/badet/bygningsdelen/det elektriske etc. Kjøper overtar ansvar og risiko for dette.
Utdrag fra selgers egenerklæringsskjema:
Tilleggskommentar:
- Hele blokka fikk helt nye piperør i 2022, selvfølgelig gjort av proffer (som jeg må lete mer for å finne navnet på siden det er gjennom sameiet), men her er pipa av høyeste kvalitet.
Standard
Leiligheten er på 2000-tallet oppgradert i flere omganger og har av den grunn overflater, utstyr og faste innredninger av varierende alder og tilstand. Nåværende eiere har siden 2021 utført malerarbeid i flere rom.
Tross gjentatt modernisering har leiligheten likevel en fremtredende klassisk atmosfære det kan være vel verdt å foredle ytterligere. Teglstein er i tidligere år hentet frem i veggene som både dekorative elementer og tidsvitner til gårdens over 120 år lange historie.
Vel så atmosfærefremmende er den store takhøyden som på det meste er over 2,7 meter og fremheves av nær like høye krysspostvinduer. De mange høye vinduene tilfører leiligheten mye naturlig lys og slipper solstrålene inn til stuen første del av dagen, før solen beveger seg rundt til kjøkkenet og balkongen på motsatt side. I stuen inngår også et ildsted som besørger lun og varm stemning på kjøligere dager.
Kjøkkenet ble tidlig på 2000-tallet oppgradert med ny innredning som i dag er velholdt. Mange oppbevaringsmuligheter kombinert med arbeidsflater rundt både vask og kokesone gjør innredningen praktisk i daglig bruk. Hvitevarene er alle integrert/innbygget og medfølger. Som leilighetens største fungerer kjøkkenet utmerket også som et sosialt samlingsrom, i tillegg til sin rent praktiske funksjon.
På badet er oppussing utført i flere omganger på 2000-tallet. En mer helhetlig fornying bør påregnes da rommet i sin helhet er gitt TG 2. Badet er imidlertid funksjonelt og benyttes med dusjkabinett som begrenser vannpåkjenning på overflatene. Gulvet har elektrisk varme og fliser, veggene er utført med tapet og plater.
Overflater og innredninger:
Gulv: Parkett og fliser.
Innervegger: Malt tapet, malte glatte flater, plater, malt mur, teglstein, malt teglstein og fliser.
Himlinger: Malte glatte flater, trepanel og plater.
Kjøkken: Skapinnredning med glatte hvite fronter. Laminerte grå benkeplater. Plater på vegger over benker. Nedfelt stålvask med avrenningsbrett og ett-greps blandebatteri. Integrert platetopp, stekeovn, oppvaskmaskin og kombiskap. Ventilator i overskap.
Bad: Servantskap med glatte hvite fronter og heldekkende servant med ett-greps blandebatteri. Veggspeil med overbelysning. Dusjkabinett. Gulvmontert klosett. Rør-opplegg til vaskemaskin.
Løsøre og tilbehør
Vi viser til liste fra Norges Eiendomsmeglerforbund som gjelder fra 01.01.2020 angående løsøre og tilbehør.
Oppvarming
Boligen oppvarmes med elektrisitet og vedfyring.
Fredrikstad kommune opplyser at det ikke er registrert fyringsanlegg for oppvarming. Det anbefales å informere Fredrikstad kommune om forholdet for å gjennomføre nødvendige tilsyn.
Dersom beboelsesrom ikke har vegg- eller fastmonterte varmekilder ved visning, følger dette heller ikke med.
Ferdigattest/brukstillatelse
Eiendommen har vært brukt til boligformål siden 1910.
Kommunen opplyser at det ikke foreligger ferdigattest eller midlertidig brukstillatelse for eiendommen. Det finnes av den grunn ikke dokumentasjon over eiendommens lovlighet. Kjøper overtar eiendommen slik den fremstår på visning med risiko og ansvaret for eventuelle pålegg fra kommunen og kostnader forbundet med dette.
Det er mottatt en rekke byggetegninger fra kommunen. Det er mottatt godkjente byggetegninger som gjelder ominnredning datert 1979. Følgende endringer avviker fra de godkjente byggetegningene:
- Kjøkkenet har blitt utvidet og et soverom er fjernet.
- Rom benyttet som soverom er opprinnelig et trapperom.
Rom benyttet som soverom er opprinnelig byggemeldt som trapperom jf. byggetegninger og er ikke godkjent til varig opphold. Innredning av rommene til bruk for varig opphold er ikke bruksendret/omsøkt og er heller ikke godkjent for denne bruk av kommunen. Konsekvensen ved søknad kan være at rommet ikke godkjennes som varig opphold og at rommet da må brukes som bod/midlertidig oppbevaring. Kjøper overtar alt ansvar, kostnad og risiko for dette videre.
Det er mottatt godkjente byggetegninger på nye balkonger datert 1993.
Det gjøres oppmerksom på at det ikke lenger utstedes ferdigattest på tiltak det er søkt om før 1998 jf. plan- og bygningsloven § 21-10. Kommunen vil ikke kreve ferdigattest for disse tiltakene og vil avvise eventuelle søknader. Bestemmelsen innebærer ikke at tiltak med manglende søknad blir lovlige, men at man ikke trenger å avslutte gamle byggesaker. Normalt sett kreves ferdigattest for alle søknadspliktige tiltak som gjøres etter plan- og bygningsloven.?
Tinglyste heftelser og rettigheter
Utover andel fellesgjeld overdras leiligheten fri for pengeheftelser med unntak av:
Dagboknr 6078, tinglyst 26.06.1980, type heftelse: Panterett til sameiet for kr 10.000,- som sikkerhet for fellesutgifter.
Sameiet har legalpant for krav mot sameieren som følger av sameieforholdet iht. eierseksjonsloven § 31. Pantet er begrenset oppad til 2G, (G = folketrygdens grunnbeløp).
Det er tinglyst en servitutt på eiendommen. Denne omhandler blant annet bestemmelse om at seksjonsnr. 2 har bruksrett til en hems.
Servitutten vil følge eiendommen. Kjøpers bank vil få prioritet etter ovennevnte heftelser og servitutter.
Eventuell adgang til utleie
Leiligheten kan leies ut såfremt leiligheten har forsvarlige radonverdier. Leietaker må følge sameiets vedtekter og ordensregler på lik linje som eier.
Ved utleie av leilighet skal det kontraktsfestes med at leietaker at han/hun plikter å delta på dugnader i sameiet dersom ikke seksjonseier stiller selv.
Diverse
Vi er opptatt av verdiskapning, og har knyttet til oss samarbeidspartnere som skal sikre våre kunder de beste produkter og tjenester;
• Gjensidige leverer boligselgerforsikring og tilbyr bygningsforsikring
• Boligkjøperforsikring leveres av Hiscox og med Sedgwick som skadebehandler, og er formidlet gjennom Gjensidige.
• BN bank tilbyr finansieringsløsninger
• Vår avdeling Krogsveen Pluss tilbyr flyttetjenester som utvask, visningsvask, lager, tømming og transport av flyttelass, i tillegg til å formidle kontakt med Flip for overflateoppussing.
• I forbindelse med overtagelse av eiendommen tilbyr Overo avtale om strøm, alarm og bredbånd.
• Krogsveen er, sammen med øvrige bransjeaktører, medeier i den digitale annonseringsplattformen Hjem.
Beliggenhet og tomteforhold
Beliggenhet og tomteforhold
Beliggenhet
Cicignon bydel har en helt egen atmosfære. Her bor du svært sentralt og nyter godt av nærhet til alle tjenester og tilbud som finnes i eller omkring byen. I nærmiljøet finnes noen av byens vakreste parkområder, samt en idyllisk elvepromenade med utsikt til blant annet Isegran og ærverdige Gamlebyen.
Til sentrumsgatene er det kun en kort rusletur. Sentrum har gjennom de seneste årene opplevd stor utvikling og fått en generell revitalisering, blant annet av den gode gamle gågaten. I byen kan du velge i et bredt utvalg av shoppingmuligheter, små og store spisesteder samt ulike kulturtilbud.
Til togstasjonen er det kun få meter å gå og reisetiden videre med tog til Oslo S er ca. 60 minutter. I gatene omkring passerer i tillegg en hel rekke busslinjer som gjør det enkelt å reise kollektivt i hverdagen. Et stort kollektivt pluss er ikke minst også fergene på elven, et gratis tilbud som gjør det enkelt å forflytte seg både internt i sentrum, over til Østsiden og Gamlebyen, eller helt ut til Gressvik. Fergene har hyppige avganger dagen gjennom.
Med utgangspunkt i Cicignon er det i tillegg kort vei til friområder rundt byen, deriblant Fredrikstadmarka som er like velegnet for utflukter som for treningsøkter. Marka har lysløype og kilometervis av preparerte skispor når forholdene tillater vinterstid. Tar du turen over elven til Kråkerøy, opplever du straks både skjærgård og mer landlige omgivelser.
Adkomst
Det vil bli skiltet med Krogsveen visningsskilt ved fellesvisninger.
Barnehager, skoler og fritid
Barnehager:
Speiderfjellet barnehage (1-5 år) 1.1 km
Kiæråsen barnehage (1-5 år) 1.2 km
St.Hansfjellet barnehage (1-5 år) 1.3 km
Skoler:
Cicignon skole (1-10 kl.) 0.4 km
Trara skole (1-7 kl.) 1.5 km
Gudeberg barne- og ungdomsskole (1-10 kl.) 2.5 km
Childrens International School Fredrikstad (1-10 kl.) 2.8 km
Wang Ung Fredrikstad (8-10 kl.) 1.5 km
Akademiet vgs. Fredrikstad 0.3 km
Hans Nielsen Hauge vgs
Informasjon om tilhørende skolekretser er hentet fra Prognosesenteret som dataleverandør, og tilhørigheten kan årlig endres av kommunen. Dersom skole- og barnehagetilbud er av betydning for kjøpet, ber vi om at det rettes en særskilt henvendelse til kommunen/bydelsadministrasjonen for oppdatert informasjon.
Beskrivelse av tomt
Eiet tomt på 336 kvm som tilhører sameiet. Felles bakgård med asfalt og diverse beplantning.
Tomten er ikke oppmålt i nyere tid og har usikre grenser. Dette vil ofte medføre arealavvik i forhold til eksisterende areal i marka. For å få nøyaktige grensebestemmelser anbefales det å rekvirere ny oppmåling. Kjøper overtar risiko for avviket.
Parkering
Det er beboerparkering i området. Ellers gateparkering etter gjeldende bestemmelser.
Vei, vann og avløp
Eiendommen har adkomst via kommunal vei.
Eiendommen er tilknyttet kommunalt ledningsnett via private stikkledninger. Sameiet er ansvarlig for private stikkledninger til bygningen.
Regulerings-og arealplaner
Eiendommen er regulert til Boliger i henhold til reguleringsplan 220 Cicignon datert 13.03.1986 med tilhørende reguleringsbestemmelser.
Eiendommen omfattes også kommuneplan Fredrikstad 2023-2035 datert 15.06.2023 med formål: ras- og skredfare, bebyggelse og anlegg.
Arealplaner under arbeid:
- Den åpne plassen ved St.croix krysset er under opparbeidelse. Se fredrikstad kommune sin hjemmeside for mer informasjon.
Utsnitt av plan med tilhørende bestemmelser kan fås ved henvendelse til megler.
Økonomi
Økonomi
Boligens kostnader
Fellesutgiftene er kr 3.336,- pr. mnd. og inkluderer: avdrag og renter på felleslån, kommunale avgifter, strøm fellesområde, bredbånd, kabel-tv og internett, felles bygningsforsikring, drift og vedlikehold m.m.
Fellesutgiftene justeres normalt en til to ganger årlig i forhold til sameiets faktiske utgifter. Det tas forbehold om at felleskostnadene kan justeres fortløpende.
Eiendomsskatten er kr 4.395,- for inneværende år. Denne faktureres separat.
Nåværende eier har ikke oppgitt årlig strømforbruk.
Boligen er tilknyttet kabel-tv og internett felles i sameiet og dette er inkludert i felleskostnadene. Dekoder medfølger ikke.
Utgiftene er basert på nåværende eiers forbruk. Kjøper må selv tegne innboforsikring.
Formuesverdi
Formuesverdi for 2023 var kr 778 961,- ifølge skatteetaten. Beløpet forutsetter at eier bor fast i boligen (primærbolig).
Ved eventuell øvrig bruk av eiendommen (f.eks. fritidsbolig, pendlerbolig, utleieobjekt) var formuesverdien for 2023 kr 3 115 842,-.
Formuesverdien justeres normalt årlig. Se skatteetaten.no for mer informasjon om fastsettelse av formuesverdien.
Opplysninger om fellesgjeld
Andel formue er kr 0,- pr. 31.12.2024
Andel fellesgjeld er kr 20.159,- pr. 01.04.2025
Total fellesgjeld for sameiet er kr 98.028,- pr. 01.04.2025 og lånevilkårene er:
Rentebetingelser: 9,6%
Lånets nedbetalingsdato: 20.12.2028
Avdragsfrihet: Ingen
Omkostninger
3 490 000,00 Prisantydning
20 159,00 Andel av fellesgjeld
--------------------------------------------------------
3 510 159,00 Pris inkl. fellesgjeld
Omkostninger
87 750,00 Dokumentavgift til staten (2,5% av kjøpesum)
545,00 Tinglysing panterettsdokument
545,00 Tinglysing skjøte
--------------------------------------------------------
88 840,00 Omkostninger totalt
--------------------------------------------------------
3 598 999,00 Totalpris inkl. omkostninger
--------------------------------------------------------
Tilbud om lånefinansiering
Megler formidler gjerne kontakt med rådgiver hos vår samarbeidspartner BN Bank. De har konkurransedyktige betingelser samt rask og løsningsorientert behandling av din lånesøknad. Krogsveen mottar et honorar for denne formidlingen.
Betalingsbetingelser
Kjøpesum inkludert omkostninger, samt pantedokument tilknyttet eventuelt lån, skal være disponibelt hos megler 2 virkedager før overtagelsen.
Annen viktig informasjon
Annen viktig informasjon
Eier
Jakob Aalstad Grønvoll og Mathilde Martinsen Stølan
Informasjon om forkjøpsrett
Eiendommen er seksjonert, og leiligheten er tilknyttet Ths. W. Schwartz gate 21 sameie, med sameiebrøk 20565/100000.
Sameiet består av 4 leiligheter.
Sameiet har ingen forretningsfører, men et styre og det føres budsjett. Alle seksjonseierne skal være medlem av styret.
Dugnad samt trappevask må påregnes.
Dyrehold er tillatt.
Foretatt påkostninger de senere år:
2022 - Nye piperør i hele sameiet.
Ingen planlagte påkostninger i sameiet.
Vinteren 2022 var det vannlekkasje i taket på soverommet i denne leiligheten. Forsikringsselskapet til sameiet var inne og la inn fuktsperre og byttet taket. Selger opplyser at forsikringsselskapet mistenker at vannet kom fra vinduet i leiligheten over og at det eventuelt er der det må gjøres ytterligere utbedringer. Hva som eventuelt skal gjøres eller kostnader relatert til dette er ikke fastslått per dags dato.
Iht. sameiets vedtekter må kjøper godkjennes av styret som ny sameier. Det er kjøpers ansvar at styregodkjenning blir gitt, men styret kan ikke nekte godkjenning uten saklig grunn.
Vi gjør videre oppmerksom på at det iht. eierseksjonsloven ikke er anledning å erverve mer enn 2 seksjoner i sameiet, her teller også eierskap via. firma, nærstående og familie. Kjøper har risikoen for at overskjøting på denne bakgrunn kan nektes av Statens Kartverk. I så fall vil kjøper uansett være forpliktet til å gjennomføre handelen, og oppgjør til selger vil finne sted tross manglende overskjøting.
Konferer med megler for mer informasjon.
Dokumenter for sameiet og kopi av seksjonsbegjæringen kan fås ved henvendelse til megler.
Overtakelse
Etter nærmere avtale.
Boligselgerforsikring
Selger har i forbindelse med salget tegnet boligselgerforsikring levert av Gjensidige.
Boligselgerforsikringen dekker selgers ansvar etter avhendingsloven begrenset oppad til kr 14 millioner. Dersom kjøper oppdager forhold ved eiendommen som hen mener utgjør en mangel ved eiendommen, vil Gjensidige behandle reklamasjonen på vegne av selger. Forsikringsvilkår kan fås ved henvendelse til megler.
Vedlagt salgsoppgaven følger selgers egenerklæringsskjema og tilstandsrapport. Interessenter må sette seg inn i dokumentene før bud inngis.
Boligkjøperforsikring
Innen kontraktsmøtet må kjøper ta stilling til om det ønskes å bestille Boligkjøperpakken gjennom Gjensidige. I denne gunstige pakken er boligen ferdig forsikret og inkluderer rettshjelpsforsikring, også kalt Boligkjøperforsikring. Rettshjelpsforsikring gir trygghet og tilgang på profesjonell juridisk hjelp dersom det oppdages uventede feil eller mangler det første året etter overtagelse. Forsikringsselskapet behandler i så fall ethvert mangelskrav kjøper måtte ha overfor selger.
Boligkjøperpakken inkluderer bygningsforsikring for hus og hytte, innboforsikring, flytteforsikring og dobbel rentedekning - i situasjoner hvor kjøper ikke får solgt nåværende primærbolig.
Kjøper mottar ingen særskilt faktura for Boligkjøperpakken da kostnaden det første året legges til kjøpesummen for boligen. Det gjøres oppmerksom på Krogsveen mottar et honorar for denne formidlingen.
Produktark for Boligkjøperpakken ligger vedlagt i salgsoppgaven.
Dersom ikke boligkjøperpakke ønskes kan kun rettshjelpsforsikring, også kalt boligkjøperforsikring, tegnes særskilt via megler. Rettshjelpsforsikringen varer i 5 år fra overtagelse og leveres gjennom Gjensidige. Ta kontakt med megler for ytterligere informasjon.
Selskap og privatpersoner som driver med kjøp/salg/utvikling som ledd i egen næringsvirksomhet kan ikke tegne boligkjøperpakke eller rettshjelpsforsikring.
Budgivning
Forbrukerinformasjon om budgivning er vedlagt denne salgsoppgaven og er også på vår hjemmeside Krogsveen.no. Alle bud og budforhøyelser må inngis skriftlig. I tillegg må legitimasjon være fremlagt sammen med signatur fra budgiver.
Vi oppfordrer til å gi bud elektronisk via GI BUD-knappen på eiendommens hjemmeside på Krogsveen.no. Da vil samtlige vilkår bli oppfylt.
Eventuelle forhøyelser eller endringer av budet kan bekreftes pr SMS eller på e-post. Vi oppfordrer alltid til å kontakte megler pr. telefon i tillegg da forsinkelser i SMS og e-post kan forekomme.
For at budene skal kunne bli behandlet og videreformidlet skriftlig til alle involverte parter, må alle bud ha en tilstrekkelig lang akseptfrist, jf. eiendomsmeglingsforskriften § 6-3.
Selger må også skriftlig akseptere budet før aksept kan formidles til budgiver. Akseptfrist bør derfor være på minimum 30 minutter, og budforhøyelser må derfor skje i god tid før fristens utløp.
Bud i forbrukerforhold kan uansett ikke settes med kortere frist enn kl. 12.00 første virkedag etter siste annonserte visning. I tillegg kan ikke budet ha forbehold om at det skal holdes hemmelig ovenfor øvrige interessenter. Megler har iht lov om eiendomsmegling ikke anledning til å videreformidle disse budene, og de vil dermed heller ikke bli journalført.
Etter at eiendommen er solgt vil kjøper og selger få tilsendt budjournal. Øvrige budgivere kan få utlevert kopi av budjournalen i anonymisert form.
Hvitvaskingsreglene
I henhold til lov om hvitvasking og terrorfinansiering har megler plikt til å gjennomføre kontrolltiltak overfor kunder, herunder fullmektiger. Dette innebærer bl.a. å bekrefte kunders og reelle rettighetshaveres identitet på bakgrunn av fremvist gyldig legitimasjon eller på annen godkjent måte, samt å innhente opplysninger om kundeforholdets formål og tilsiktede art.
Dersom slike kundetiltak ikke kan gjennomføres, kan megler ikke etablere kundeforholdet eller utføre transaksjonen.
Hvis kjøper ikke bidrar til gjennomføring av kundekontrollen og dette fører til at transaksjonen blir forsinket eller ikke kan gjennomføres, vil dette ansees som mislighold av avtalen og gi selger rettigheter etter avhendingslova kapittel 5. I tilfeller der selger ikke bidrar til gjennomføring av løpende kundekontroll underveis i oppdraget, er det selger som misligholder sine forpliktelser etter avtalen og gi kjøper rettigheter etter avhendingslovens kapittel 4. Partene er selv ansvarlige for eventuelle kostnader og ansvar dette kan medføre. Eiendomsmegleren eller eiendomsmeglingsforetaket kan ikke holdes ansvarlig for de konsekvenser dette vil kunne få for partene eller andre som har interesser i eiendomshandelen.
Kjøper oppfordres til å innbetale kjøpesummen som ikke kommer fra låneinstitusjon i én samlet innbetaling fra egen konto i norsk bank. Megler har plikt til å melde fra til Økokrim om eiendomshandler som fremstår som mistenkelige. Melding sendes Økokrim uten at partene varsles.
Personopplysningsloven
I henhold til personopplysningsloven gjør vi oppmerksom på at interessenter kan bli registrert for videre oppfølging.
Lovanvendelse
Generelle bestemmelser
Salgsoppgaven er basert på de opplysningene selger har gitt til megler, den bygningssakyndiges tilstandsrapport, samt opplysninger innhentet fra kommunen, Kartverket og andre tilgjengelige kilder. Det er viktig at kjøper setter seg grundig inn i alle salgsdokumentene, herunder salgsoppgave, tilstandsrapport og selgers egenerklæring. Kjøper anses kjent med forhold som er tydelig beskrevet i salgsdokumentene, og slike forhold kan ikke påberopes som mangler. Dette gjelder uavhengig av om kjøper har lest dokumentene. Alle interessenter oppfordres til å undersøke eiendommen nøye, gjerne sammen med fagkyndig før bud inngis. Kjøper som velger å kjøpe usett kan ikke gjøre gjeldende som mangel noe han burde blitt kjent med ved undersøkelsen.
Dersom det er behov for avklaringer, anbefaler vi at interessenter rådfører seg med eiendomsmegler eller egne rådgivere før det legges inn bud.
En bolig som har blitt brukt i en viss tid, har vanligvis blitt utsatt for slitasje og skader kan ha oppstått. Slik bruksslitasje må kjøper regne med, og det kan avdekkes enkelte forhold etter overtakelse som nødvendiggjør utbedringer. Normal slitasje og skader som nødvendiggjør utbedring, er innenfor hva kjøper må forvente og vil ikke utgjøre en mangel.
Kjøper og selgers rettigheter og plikter reguleres av avtalen mellom partene, samt informasjonen som har vært tilgjengelig for kjøperen i forbindelse med handelen. Avtalen utfylles av avhendingsloven, og det gjelder ulike avtalevilkår avhengig av om kjøper er forbrukerkjøper eller ikke. Dette er nærmere beskrevet nedenfor.
På grunn av ulike avtalevilkår kan selger vurdere bud fra en som ikke er forbruker, ulikt fra en forbrukers bud. Dersom kjøper ikke er forbruker, er selger sitt mulige mangelsansvar begrenset fordi eiendommen selges "som den er". Selger kan ikke ta «som den er»- forbehold overfor en forbrukerkjøper. Selv et lavere bud fra en som ikke er forbruker kan foretrekkes fordi begrensningen i mulig mangelsansvar kan ha egenverdi for selger. Selger står fritt til å forkaste eller akseptere ethvert bud, og er for eksempel ikke forpliktet til å akseptere høyeste bud.
Budgiver skal i budskjema avgi egenerklæring om budgiver er forbruker eller næringsdrivende/ person som hovedsakelig handler som ledd i næringsvirksomhet. Budgivere får informasjon dersom andre bud er inngitt av en som ikke er forbruker.
Forbrukerkjøp - definisjon
Med forbrukerkjøp menes kjøp av eiendom når kjøperen er en fysisk person som ikke hovedsakelig handler som ledd i næringsvirksomhet.
Forbruker – avtalevilkår
Eiendommen har en mangel dersom den ikke er i samsvar med kravene som følger av avtalen, eller det foreligger brudd på bestemmelsene i avhendingsloven §§ 3-2 til 3-8. Hvis eiendommen ikke er i samsvar med det kjøperen må kunne forvente ut ifra alder, type og synlig tilstand, kan det være grunnlag for mangelskrav. Det samme gjelder hvis det er holdt tilbake eller gitt uriktige opplysninger om eiendommen. Dette gjelder likevel bare dersom man kan gå ut ifra at det virket inn på avtalen at opplysningen ikke ble gitt eller at mangelskravet ikke blir rettet i tide på en tydelig måte.
Boligen kan ha en mangel etter avhendingsloven § 3-3 andre ledd, dersom det er avvik mellom opplyst og faktisk innvendig areal, forutsatt at avviket er på 2% eller mer og minimum 1 kvm.
Ved beregning av et eventuelt prisavslag eller erstatning må kjøper selv dekke tap/kostnader opptil et beløp på kr 10 000 (egenandel).
Ikke-forbruker (næringsdrivende) – definisjon
Hvis kjøper er en juridisk person, eller en fysisk person som hovedsakelig handler som ledd i næringsvirksomhet, vil kjøpet ikke anses som et forbrukerkjøp.
Ikke-forbruker – avtalevilkår
Eiendommen har en mangel dersom den ikke er i samsvar med kravene som følger av avtalen.
Eiendommen selges «som den er», og selgers ansvar utover det konkret avtalte er da begrenset etter avhendingsloven § 3-9, første ledd andre setning.
Avhendingsloven § 3-3 andre ledd fravikes, og hvorvidt boligens arealsvikt utgjør en mangel vurderes etter avhendingsloven § 3-8.
Informasjon om kjøpers undersøkelsesplikt, herunder oppfordringen om å undersøke eiendommen nøye, gjelder også for kjøpere som ikke anses som forbrukere.
Det forutsettes at hjemmel overføres til kjøper. Hvis kjøper ikke ønsker hjemmelsoverføring av eiendommen, må det tas forbehold om dette i budet.
Meglers vederlag
Meglers vederlag betales av selger og er avtalt til:
Vederlag kr 45.000 ,-
Tilrettelegging fra kr 17.000,-
Oppgjør: kr 7.500,-
Markedspakke: kr 27.400,-
Visninger: kr 4.000,- pr. visning
Oppslag eiendomsregister: kr 2.900,-
Megler har i tillegg krav på dekning av utlegg:
Innhenting av offentlig opplysninger Fredrikstad - inkl tegning: kr 4 477,-
Tinglysing sikring: kr 545,-
Foto PBF - Premium (dag/kveld/drone): kr 8 750,-
I tillegg kommer kostnad til takstmann ca kr 9500,- og valgfri boligselgerforsikring på 4,42 promille.
Opplysninger om oppdraget
Oppdragsnummer 67-0133/25
Eiendomsmegler Krogsveen AS, avd. Fredrikstad og Sarpsborg
Dikeveien 14, 1661, ROLVSØY
950 007 613
Oppdragets KR-kode KR67.25133
Dato
Sist oppdatert: 03. februar 2026 kl. 11:11
Dokumenter
Dokumenter
PDF – 396 KB
PDF – 14 MB
PDF – 658 KB
PDF – 1004 KB
PDF – 312 KB
PDF – 29 KB
PDF – 127 KB
PDF – 392 KB
Område
Legg til steder som er viktige for deg
Visning
Det er ingen planlagte visninger. Meld deg på for å avtale en tid som passer.
Lurer du på noe?
Unngå doble boligrenter
Vi tilbyr gunstig forsikring.
Vurderer du utleie?
Få et tilbud fra Utleie KrogsveenHva koster lånet?
Sjekk estimert lånekostnadVil du varsles om lignende boliger?
Ved å lagre ditt boligsøk hos oss får du beskjed når vi har en bolig som ligner denne, før den legges ut på markedet!




