Hanthobakken 10
1 690 000 kr
85 m²
3 soverom
Komplett salgsoppgave

Tvedestrand sentrum
Sjarmerende enebolig i Tvedestrand sentrum - Solrik terrasse - Få meter til havna - Ingen boplikt
Prisantydning
1 690 000 krOmkostninger
63 240 krTotalpris
1 753 240 kr
Pris
Bruksareal
110 m²BRA-I (internt bruksareal)
85 m²BRA-E (eksternt bruksareal)
25 m²TBA (terrasse-balkongareal)
19 m²
Areal
Etasje
2Byggeår
1893Soverom
3 soveromBad
2 badTomteareal
337 m² (eiet)Type
Enebolig - FrittliggendeEierform
EietFasiliteter
Balkong/TerrasseEnergimerke
Oransje G
Nøkkelinfo
Unngå doble boligrenter
Vi tilbyr gunstig forsikring.
Vurderer du utleie?
Få et tilbud fra Utleie KrogsveenHva koster lånet?
Sjekk estimert lånekostnadBeskrivelse
Kort om eiendommen
Innhold og byggemåte
Innhold og byggemåte
Eiendommen
Hanthobakken 10, 4900 TVEDESTRAND
Kommunenummer 4213, gårdsnummer 74, bruksnummer 297, ideell andel 1/1
Innhold
Totalt bruksareal BRA: 110 kvm
BRA-i:
Enebolig:
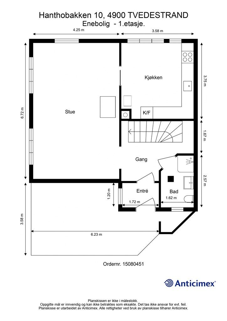
1. etasje 59 kvm: Entre, bad, gang, stue og kjøkken.
Innredet loft 26 kvm: Gang og tre soverom.
BRA-e:
Kjeller 25 kvm: Uinnredet kjeller og "bad".
Åpent areal:
1. etasje 19 kvm: Terrasse ved inngangsdør.
Kjelleren har et totalt gulvareal (GUA) på 42 m², men grunnet lav takhøyde er kun 25 m² av arealet måleverdig som bruksareal. De delene av arealene som har lav himlingshøyde (ALH) utgjør 17 m².
Innredet loft har et totalt gulvareal (GUA) på 34 m², men grunnet skråtak/lav takhøyde er kun 26 m² av arealet måleverdig som bruksareal. De delene av arealene som har lav himlingshøyde (ALH) utgjør 8 m².
Vedlagte plantegninger er ikke målbare. De oppgitte arealer er hentet fra rapport med befaringsdato 18.03.2026 utført av Anticimex AS v/Tom Henning Moen. Arealene er beregnet og rom er definert etter dagens faktiske bruk, uavhengig av hva som er godkjent av bygningsmyndighetene.
Byggemåte
Selger har innhentet en tilstandsrapport av boligen. Der det er registrert avvik, er disse klassifisert med tilstandsgrader (TGIU, TG2 og/eller TG3). Kjøper overtar ansvaret for de opplysninger som fremkommer av salgsdokumentasjonen, og kan ikke gjøre gjeldende som mangel noe som burde vært kjent eller som ikke kan anses å ha betydning for avtalen.
Bygningen er iht. tilstandsrapport oppført i 1893. Bygget har grunnmur av betong med sparestein og støpt gulv mot grunn, samt krypkjeller under deler av boligen. Yttervegger er av trekonstruksjoner, kledd med stående trekledning. Etasjeskillere er av trekonstruksjoner. Takkonstruksjonen er et saltak i tre, tekket med takstein fra ukjent årstall. Takrenner, nedløp og pipebeslag er i metall. Boligen har vinduer med karmer av tre i forskjellig utførelse og fra forskjellige årstall. Entrédøren har sikkerhetslås og glassfelter, og innvendig er det en blanding av glatte, profilerte og glassfelt-dører. Det er en innvendig trapp i tre og en utvendig trapp i tre. En terrasse på 19 m² med utgang fra stue er oppført i trekonstruksjoner. Det er en elementpipe med peisovner i stue, kjøkken og kjeller.
Det elektriske anlegget har sikringsskap plassert i kjeller og på innredet loft. Anlegget er sikret med automatsikringer. Det er observert enkelte kabler som ikke er tilstrekkelig festet i kjeller, og det er registrert forhold som tyder på behov for en utvidet kontroll av anlegget.
Boligen har godkjent slukkeutstyr og tilstrekkelig med røykvarslere.
Det gjøres spesielt oppmerksom på at følgende bygningsdeler er gitt Tilstandsgrad 3 (TG3) — Store eller alvorlige avvik:
Våtrom - Kjeller
- Helhetsvurdering: Det observeres stedvis tegn til riss i enkelte fliser. Det er registrert riss/sprekk i flis i dusjnisje. Det vurderes at det ikke er benyttet vanntett sjikt på våtrommets gulv- og veggflater. Vannrør av kobber (og tilhørende komponenter) har en alder som tilsier at fremtidig funksjon er usikker. På grunn av våtrommets utforming og bruk er det ikke praktisk mulig å gjennomføre hulltaking og fuktmåling i et område som regelmessig utsettes for bruksvann, og som vurderes å være det området hvor skader erfaringsmessig forekommer. Det ble utført et overflatesøk med fuktindikator på utvalgte steder, uten funn som indikerer fuktskader.
Våtrom - 1.etasje
- Helhetsvurdering: Det observeres tegn til riss og sprekker i flisfuger inne i dusjsonen. Det er hull etter tidligere innfestinger i dusjsonen. Hullene er tettet med tettemasse, men det kan ikke verifiseres ved visuell inspeksjon alene om løsningen gir tilstrekkelig fuktsikkerhet. Gulvet i sluksonen er tilnærmet flatt. Det registreres motfall på deler av gulvflater utenfor sluksonen. Det er uklart om det er benyttet vanntett sjikt på våtrommets veggflater. Vannrør av kobber (og tilhørende komponenter) har en alder som tilsier at fremtidig funksjon er usikker. Sluket er isolert inne i dusjsonen. Det er utført fuktmåling (i etablert hull) med egnet instrument i veggkonstruksjon fra tilstøtende rom. Det ble ikke registrert forhøyet fuktnivå.
Rom under terreng
- Helhetsvurdering: Det er påvist avleiring av salt- og kalkutslag på grunnmur/gulv mot grunn, som følge av fuktvandringer i konstruksjonen. Ventilasjonen vurderes som utilstrekkelig. Kondens registrert på vinduer. Forholdet vurderes til å være en indikasjon på at ventilasjonen ikke er tilstrekkelig, men eksakt årsak er ikke kjent. Det er foretatt hulltaking og utført fuktmåling i utlektet veggkonstruksjon. Fuktinnholdet i tilgjengelig treverk ble målt med piggelektroder til 24 vektprosent. Dette måleresultatet tilsier at det ble registrert kritisk høyt fuktnivå i konstruksjonen, som vurderes til å være en pågående fuktskade. Synlige tegn på fuktighet observeres inne i konstruksjonen. Avleiring av salt/kalkutslag observeres på grunnmur, noe som vurderes å være et resultat av fukttransport fra utsiden. Fuktproblemer oppstår gjerne som følge av en kombinasjon av flere underliggende årsaker, men problemer med dreneringen vurderes som en sannsynlig hovedårsak. Denne opplysningen må derfor ses i sammenheng med opplysninger som gis under punkt «Drenering».
Yttertak
- Helhetsvurdering: Taktekkingen (med tilhørende beslag) har betydelig slitasje, og det er registrert punktvise skader. Det foreligger lite informasjon om taket, og eksakt alder på undertaket er ikke kjent. Ukjent alder tilsier også at fremtidig funksjon er usikker. Vindskier viser begynnende tegn til slitasje og elde. Det gjøres oppmerksom på at det ikke er observert større skader, men at vurderingen er begrenset til det som er synlig. Takrenner og nedløp viser begynnende tegn til slitasje og elde.
Drenering
- Helhetsvurdering: Boligen viser tegn til fuktgjennomslag og fuktproblemer fra innsiden, som tyder på funksjonssvikt i dreneringen. Alderen på dreneringen underbygger denne konklusjonen. Forholdet må ses i sammenheng med rapportens øvrige risikoopplysninger som omtaler bygningsdeler som er i direkte eller nær kontakt med bakken. Terrenget rundt bygget har flere områder med fall inn mot grunnmuren. Vann fra yttertaket er ikke ledet vekk fra bygningen/grunnmuren i tilstrekkelig grad.
Følgende bygningsdeler er gitt Tilstandsgrad 2 (TG2) — Avvik som kan kreve tiltak:
Tekniske anlegg
- Vannrør (utover det som nevnes under andre sjekkpunkter): Boligens vannrør av kobber (og tilhørende komponenter) har en alder som tilsier at fremtidig funksjon er usikker.
- Innvendig stakeluke: Innvendig stakeluke er ikke påvist, og det er derfor ukjent om dette er etablert.
Loft - innredet
- Overflate vegg: Veggflater bærer preg av aldersrelatert slitasje og har enkelte mindre skader. Forholdet vurderes i hovedsak til å være av estetisk betydning.
- Konstruksjonsoppbygging: Etasjens skråtak er en lukket konstruksjon. Slike konstruksjoner betraktes erfaringsmessig som fuktrisikokonstruksjoner. Konsekvens er risiko for skjulte feil og skader. Det gjøres oppmerksom på at det ikke er observert symptomer på fuktskader.
- Statikk og bærekonstruksjon: Takets konstruksjoner har synlige skjevheter/nedbøyninger. Observasjoner er gjort i en eldre bygning og bør ses i den sammenheng.
Ildsteder og skorsteiner inne i boligen
- Ildsteder: Gjelder peisovn i stue: Det er registrert sprekk i den ildfaste steinplaten inne i peisovnens forbrenningskammer.
Etasjeskiller og gulv på grunn (skjevhetsmåling)
- Innredet loft: På innredet loft er det på tilfeldige punkter målt lokale høydeforskjeller opptil 68 mm. Det er registrert tegn på redusert stivhet, og merkbare rystelser i bjelkelaget ved hard gange. Eksakt årsak er ikke kjent.
Krypkjeller (innvendig inspeksjon)
- Helhetsvurdering: Det var ikke tilkomstmulighet til krypkjelleren på befaringsdagen. (Ikke funnet luke eller andre åpninger). Det gjøres oppmerksom på at krypkjellere er bygningsdeler som erfaringsmessig har høy skaderisiko, noe som gjør at konstruksjonstypen krever jevnlig ettersyn fra innsiden for å avdekke om det foreligger forhold som krever tiltak. TG2 er derfor valgt for å belyse risikoen et uavklart tilstandsbilde.
Yttervegger inkl. fasader
- Helhetsvurdering: Ytterkledningens materialer viser tydelige tegn til elde, med stedvise symptomer på begynnende råteskader. Det er ikke montert tilstrekkelig gnagersikring bak ytterkledningen. Det gjøres oppmerksom på at det ikke er registrert tydelige tegn eller opplysninger om problemer med gnagere i boligen.
Vinduer og ytterdører
- Vinduer og omramming: Enkelte vinduer viser begynnende tegn til slitasje på overflatebehandling, og har en alder der fremtidig funksjon vurderes som usikker.
- Ytterdører og omramming: Kjellerdør: Døren viser tegn til slitasje, elde og punktvise fuktskader. Den er vanskelig å åpne/lukke.
Terrasse / platting
- Tilstand på rekkverk og overflatematerialer: Overflatematerialer på terrassen (og rekkverk) viser tegn til slitasje, elde og begynnende fuktskader.
Utvendig trapp
- Utvendig trapp: Trappen viser tegn til slitasje og elde, med stedvise symptomer på begynnende skader.
Grunnmur, fundament
- Grunnmur og fundament: Tegn til riss og enkelte sprekkdannelser observeres stedvis i overflaten til grunnmuren. Eksakt årsak er ukjent.
Forstøtningsmur
- Tilstand: Sprekkdannelser observeres stedvis i overflaten. Eksakt årsak er ukjent.
Stikkledninger og tanker
- Utvendige vannledninger: Det er ikke kjent når boligens utvendige vannledninger ble skiftet ut. Ukjent alder tilsier også at fremtidig funksjon er usikker.
- Utvendige avløpsledninger: Det er ikke kjent når boligens utvendige avløpsledninger ble skiftet ut. Ukjent alder tilsier også at fremtidig funksjon er usikker.
Følgende bygningsdeler er ikke undersøkt (TGIU):
Terrasse / platting
- Konstruksjon og fundamenter: Fundamentene var ikke tilgjengelige for undersøkelser, noe som gjorde at utførelsen/tilstanden ikke lot seg kontrollere.
Helse, miljø og sikkerhet
Rekkverkshøyder, lysåpninger, håndløper og andre sikkerhetsmessige forhold er kontrollert opp mot dagens gjeldende byggtekniske forskrift, selv om denne ikke har tilbakevirkende kraft. Det er registrert følgende: Trappen har ikke håndløper på begge sider. Basert på ovennevnte forhold oppfyller ikke trappen dagens krav til sikkerhet. Om trappen oppfylte kravene som var gjeldende på oppføringstidspunktet eller ikke, er ikke tatt stilling til.
Tilstandsrapporten er inntatt i salgsoppgaven. Rapporten inneholder informasjon om eventuelle avvik og konsekvensen av disse. Dersom det er registrert avvik med TG3, har den bygningssakkyndige i tillegg gitt et anslag på hva det vil koste å utbedre disse. Ettersom kjøper regnes å være kjent med forhold som tydelig fremgår av tilstandsrapporten, oppfordres du til å sette deg grundig inn i rapporten i sin helhet. Konsekvenser og tiltak er nærmere forklart i tilstandsrapporten.
Egenerklæringsskjema er vedlagt salgsoppgaven i sin helhet. Selger beskriver selv i egenerklæringsskjema:
Selger opplyser om påbegynt rehabilitering av kjeller hvor fliser, avrettingsmasse og varmekabler er fjernet. Etter dette har det vært tydelig fuktinntrengning, sannsynligvis utenfra. Selger antar at dette var tilfelle også før sitt kjøp. I 2023 ble det utført ufaglært arbeid i kjelleren, hvor vegger og isolasjon delvis ble fjernet, og et hybelkjøkken ble fjernet. Intensjonen var å lage et trimrom, men prosjektet ble skrinlagt.
Moderniseringer og påkostninger
Følgende moderniseringer er foretatt de senere år:
2023:
- Fjernet hybelkjøkken i kjeller
- Vegger og isolasjon i kjeller delvis fjernet
2020:
- Elsjekk av Fagelektro (denne har ikke takstmann sett vedr. hans vurdering)
2015:
- Ny dør
- Ny kjøkkeninnredning fra Italia kjøkken
2013:
- De fleste vinduer (hovedetasjen) ble skiftet ut av tidligere eier.
2012:
- Ny flisvegg ved dusjen (plater og flis v/egeninnsats).
2007:
- Varmtvannsbereder på 198L installert
Årstall og historikk er basert på tidligere, og nåværende eiers informasjon.
Standard
Eneboligen ble oppført i 1893 med yttervegger, etasjeskillere og saltak i trekonstruksjoner. Yttertaket er belagt med takstein fra ukjent årstall, og taktekkingen har betydelig slitasje med behov for utskifting. Dreneringen er fra ukjent årstall og viser tegn til funksjonssvikt, med fuktproblemer i rom under terreng som krever strakstiltak. Grunnmuren av betong med sparestein viser riss og sprekkdannelser. Ytterkledningen viser tegn til elde og begynnende råteskader. Vinduer og ytterdører har varierende alder og tilstand, med enkelte vinduer som viser slitasje og en kjellerdør med fuktskader og treg funksjon. Innvendige trapper mangler håndløper på begge sider. Innredet loft har synlige skjevheter i takkonstruksjonen og gulvet, samt aldersrelatert slitasje på veggflater. Boligens vannrør av kobber har en alder som tilsier usikker fremtidig funksjon. Oppvarming skjer med panelovner og vedfyring i peisovner i stue, kjøkken og kjeller. Ventilasjonssystemet består av mekanisk avtrekk på badene, ventilator i overskap på kjøkken, og for øvrig naturlig ventilasjon via ventiler. Sikringsskap er plassert i kjeller og på innredet loft, med automatsikringer. Det er registrert enkelte kabler som ikke er tilstrekkelig festet i kjeller, og det anbefales basert på dette en utvidet kontroll av det elektriske anlegget. Elkontroll foreligger fra 2020 uten merknader, denne ble ikke forevist takstmann ved vurdering.
KJØKKEN 1. ETASJE:
Kjøkkeninnredningen er fra ukjent årstall og har profilerte fronter samt benkeplate med laminert overflate. Rommet er utstyrt med nedfelt kjøkkenvask med armatur, benkeskapsbelysning og stikkontakter over kjøkkenbenk. Integrerte hvitevarer inkluderer frittstående komfyr, oppvaskmaskin og kjøleskap med fryser. Ventilator er plassert i overskap. Vannrør av kobber og synlige avløpsrør av plast er installert. Rommet har et ildsted.
BAD 1. ETASJE:
Badet har gulvflate belagt med gulvbelegg, flislagte vegger og malt panel på vegger utenfor dusjhjørnet. Himlingen har panelbord. Rommet er utstyrt med vegghengt servant med armatur, speilskap med overlys, dusjhjørne med dører, vegghengt dusjarmatur og gulvstående toalett. Vannrør av kobber og synlige avløpsrør av plast er installert. Mekanisk avtrekk med ventil i vegg og opplegg for vaskemaskin er tilgjengelig. Våtrommet har et betydelig oppgraderingsbehov.
BAD KJELLER:
Baderommet i kjelleretasjen har flislagt gulv og flislagte vegger, supplert med malte veggflater og malte flater i himling. Rommet er utstyrt med vegghengt servantinnredning, speilskap med overlys, dusjnisje og gulvstående toalett. Vannrør av kobber og synlige avløpsrør av plast er installert. Mekanisk avtrekk med ventil i vegg og opplegg for vaskemaskin er tilgjengelig. Våtrommet har et betydelig oppgraderingsbehov. Det er lav takhøyde i rommet.
Overflater:
Gulvoverflater: Varierende gulvbelegg, parkett, laminat og heltre gulv.
Vegger: Malte og tapetserte veggflater.
Himling: Malte flater og panelbord.
Lagring:
Uinnredet kjeller gir god lagringsplass.
For fullstendig teknisk informasjon om boligen, se punktet Byggemåte i salgsoppgaven.
Løsøre og tilbehør
Alle hvitevarer i boligen er medfølger. Det meste av møbler og inventar medfølger også, med unntak av grill, personlig løsøre og diverse pyntegjenstander/ting.
Vi viser ellers til liste fra Norges Eiendomsmeglerforbund som gjelder fra 01.01.2020 angående løsøre og tilbehør.
Oppvarming
Elektrisk oppvarming med panelovner. Det er peisovn med glassdør i stue, peisovn på kjøkken og peisovn i uinnredet kjeller. Det er ikke kjent om branntilsyn/feievesenet har blitt utført/hatt kontroll i nyere tid.
Ferdigattest/brukstillatelse
Det foreligger ikke midlertidig brukstillatelse eller ferdigattest i kommunens arkiv.
Boligen er oppført ca. 1893, noe som er før bygningsloven trådte i kraft for hele landet i 1965. Det er ikke uvanlig at det i mange kommuner er mangelfulle arkiv for tiden før 1965. Det gjøres oppmerksom på at det ikke lenger utstedes ferdigattest på tiltak det er søkt om før 1998 jf. plan- og bygningsloven § 21-10. Kommunen vil ikke kreve ferdigattest for disse tiltakene og vil avvise eventuelle søknader. Bestemmelsen innebærer ikke at tiltak med manglende søknad blir lovlige, men at man ikke trenger å avslutte gamle byggesaker. Normalt sett kreves ferdigattest for alle søknadspliktige tiltak som gjøres etter plan- og bygningsloven.
Det foreligger godkjente tegninger hos byggesak i kommunen etter tilbygg fra ca. 1975. Dagens løsning i hovedetasjen ser ut til å stemme med tegning mottatt fra kommunen. Tegning av vindfang ved inngangsparti er også mottatt fra kommunen. Det foreligger godkjent søknad om ny pipe, og reparasjonsarbeider på hus datert 05.12.1975. I tillegg finnes det vedtak til å bygge et vindfang til huset. Tegninger av huset er vedlagt salgsoppgaven.
Ettersom det ikke finnes tegninger med forklaring av rom i kjeller/loft så kan det ikke verifiseres om det er godkjent slik det står i dag.
Kjøper overtar alt ansvar, kostnad og risiko for dette videre.
Tinglyste heftelser og rettigheter
Eiendommen overdras fri for pengeheftelser.
Kommunen har legalpant i eiendommen for forfalte krav på eiendomsskatt og kommunale avgifter/gebyrer.
1940/549-3/35 29.05.1940 BESTEMMELSE OM DELEFORBUD
Kommentar: I følge historisk grunnbok innhentet fra digitalarkivet fremgår følgende om deleforbudet: Forbud mot utparsellering. Tomten skal holdes forsvarlig inngjerdet.
Servituttene vil følge eiendommen. Kjøpers bank vil få prioritet etter ovennevnte heftelser og servitutter.
Eventuell adgang til utleie
Eiendommen har ikke separat utleieenhet. Det vil normalt være anledning til utleie av hele eiendommen eller enkeltrom, såfremt utleiearealet er bygningsmessig godkjent for varig opphold og har forsvarlige radonnivåer.
Diverse
Angitt byggeår er estimert.
Selger har ikke bebodd eiendommen eller brukt den i stor grad, og har derfor begrenset kjennskap til boligens tilstand. Kjøper må derfor kunne påregne at det kan være flere feil og mangler som normalt oppdages ved bruk av boligen, men som selger ikke har mulighet å vite.
Energimerking
Denne boligen er energimerket. På en skala fra A til G, der A er best, har denne boligen oppnådd oransje G (en normalbolig vil gjerne ligge i området C-F). Kopi av energiattest ligger vedlagt i salgsoppgaven eller kan fås ved henvendelse til megler. Megler har fylt ut en enkel energiattest, det tas forbehold om mindre avvik i denne.
Beliggenhet og tomteforhold
Beliggenhet og tomteforhold
Beliggenhet
Fra Hanthobakken 10 bor du midt i hjertet av Tvedestrand, med alt den sjarmerende sørlandsbyen har å by på rett utenfor døren. Her kan du spasere ned til havnen og sentrumsgatene på få minutter, handle på Joker på veien hjem, eller ta en kaffe på en av de lokale kafeene. Livet i sentrum betyr en enklere hverdag, hvor bilen ofte kan stå.
De daglige gjøremålene løses enkelt til fots. Foruten dagligvare, ligger Vitusapotek og Vinmonopolet bare et par minutters gange unna. For barnefamilier er det gangavstand til flere barnehager, som Bronsbu og Lyngbakken, samt skoler for alle trinn fra barneskole til videregående. Fritidstilbudene er også nære, med idrettsanlegg og ballbinge innen ti minutters gange.
Beliggenheten er ideell for pendlere og de som reiser mye. Bussholdeplassen på Øvre torv, med forbindelser i hele regionen, ligger kun 200 meter fra eiendommen. For lengre reiser er Grenstøl bussterminal, med ekspressbusser, bare en kort kjøretur unna. Tvedestrand kombinerer dermed småbyens ro med effektiv tilgang til resten av Sørlandet. Golfparken på Nes Verk, Risør og Arendal er bare en kort biltur/båttur unna. Skjærgårdslivet i Tvedestrand er ren idyll, via rutebåt/taxibåt/egen båt kan man besøke Lyngør, Furøya og Sandøya blant flere øyer her.
Adkomst
Se kart eller kontakt megler for veibeskrivelse.
Beskrivelse av tomt
Eiertomt på 337 kvm. Tomten er opparbeidet med grus, diverse støttemurer og naturtomt. I grunnkart mottatt fra kommunen er eiendommens tomtegrenser angitt som "mindre nøyaktige" mot veien og nabo i nr. 12, mens det mot nabo i nr. 7 er oppgitt som nøyaktig grense. Grunnkart er vedlagt salgsoppgaven i sin helhet. Eiendommens bygningsmasse ser ut til å være innenfor tomtegrense, med unntak av tak mot veien som ser ut til å gå litt utenfor oppgitt grense.
Parkering
Gateparkering etter gjeldende bestemmelser. Det er muligheter for leie av parkering i nærheten. Det har av tidligere eier blitt søkt om parkering på egen tomt (motsatt side av terrassen), men dette ble ikke godkjent grunnet dårlig sikt. Forrige eier har leid p-plass av naboen like ved. Det anbefales at interessenter parkerer på Tøffeltomta til visning (easypark).
Vei, vann og avløp
Eiendommen har adkomst via kommunal vei. Eiendommen er tilknyttet kommunalt ledningsnett via private stikkledninger. Eier er selv ansvarlig for private stikkledninger til boligen.
Regulerings-og arealplaner
Eiendommen er regulert til spesialområde for bevaring i reguleringsplan 048, VERNEPLAN TVEDESTRAND, vedtatt 16.06.1992, med tilhørende reguleringsbestemmelser. Planens formål er å bevare og videreutvikle de historiske, antikvariske, arkitektoniske, kulturelle og miljømessige verdiene i området.
Eiendommen omfattes også av eldre reguleringsplan 035, Rv 410 - Øvre torg, vedtatt 16.06.1992, med tilhørende reguleringsbestemmelser.
Eiendommen omfattes av Kommuneplan 2017 - 2029 (ID: 143), vedtatt 07.02.2017. I kommuneplanen er hele eiendommen på 337 m² avsatt til boligbebyggelse, nåværende.
Bygningen er SEFRAK-registrert. SEFRAK (Sekretariatet for registrering av faste kulturminner) er et landsomfattende register over eldre bygninger og andre kulturminner. Registreringen innebærer ikke automatisk vern, men kommunen skal vurdere kulturhistorisk verdi før eventuelle riveløyver gis. Endringer på bygningens eksteriør kan kreve godkjenning.
Eiendommen berøres av følgende hensynssoner i kommuneplanen:
- Hensynssone H910: Reguleringsplan skal fortsatt gjelde. Dette innebærer at eldre reguleringsplaner for området fortsatt er gjeldende foran kommuneplanens generelle arealbruk.
- Hensynssone H570: Bevaring kulturmiljø. For denne sonen gjelder følgende bestemmelser: Den antikvariske verdifulle bebyggelsen skal søkes bevart, og områdets særpregede miljø videreføres. Ved reparasjon og annen istandsetting bør så lite som mulig av de gamle materialene skiftes ut. Bygningenes karakter m.h.t former, materialer, målestokk, proporsjoner, vindusinndeling, detaljer og annet, bør opprettholdes eller tilbakeføres til det opprinnelige. Yttervegger, tak, vinduer, dører og andre detaljer bør være tilsvarende eller tilpasses de originale. Det skal benyttes tradisjonelle materialer og byggeteknikker på byggverk av betydning for kulturmiljøet. Ny bebyggelse i området skal i størrelse og proporsjoner tilpasses den bevaringsverdige bebyggelsen i området. Nye uthus og garasjer skal ha en utforming og materialbruk som underordner seg hovedbebyggelsen. Terrengformasjoner, hagemurer og terrasser av betydning for kulturmiljøet skal bevares. Offentlige eller alminnelig brukte gangstier, trappeløp, snarveier, plasser m.v. skal bevares. Forhåndsuttalelse fra Aust-Agder fylkeskommune v/kulturminnevernsseksjonen skal innhentes før det gjøres vedtak om nye tiltak. Ny bebyggelse skal miljøtilpasses etter faglige kriterier.
Utsnitt av plan med tilhørende bestemmelser kan fås ved henvendelse til megler.
Økonomi
Økonomi
Kommunale utgifter
Kommunale avgifter inkluderer vann, avløp, renovasjon og feiing.
Årsprognose for 2026:
- Vann: kr 5 322,-
- Avløp: kr 7 827,-
- Renovasjon: kr 5 044,-
- Feiing: kr 383,-
- Eiendomsskatt: kr 3 664,-
Totalt: kr 22 240,-
Utgiftene er basert på nåværende eiers forbruk og avtaler.
Forrige eier hadde Telia bredbånd. Altibox/afiber og Telenor kan iflg. fibersøket sitt legge inn fiber til huset.
Omkostninger
1 690 000,00 Prisantydning
Omkostninger
42 250,00 Dokumentavgift til staten (2,5% av kjøpesum)
19 900,00 Gjensidige Boligkjøperpakke (valgfri)
545,00 Tinglysing panterettsdokument
545,00 Tinglysing skjøte
--------------------------------------------------------
63 240,00 Omkostninger totalt
--------------------------------------------------------
1 753 240,00 Totalpris inkl. omkostninger
--------------------------------------------------------
Totalpris inkl. omkostninger forutsetter kjøp til prisantydning.
Det tas forbehold om endringer i avgifter og gebyrer.
Betalingsbetingelser
Kjøpesum inkludert omkostninger, samt pantedokument tilknyttet eventuelt lån, skal være disponibelt hos megler 2 virkedager før overtagelsen.
Annen viktig informasjon
Annen viktig informasjon
Eier
Jan Aage Aronsen
Overtakelse
Etter nærmere avtale.
Boligselgerforsikring
Selger har i forbindelse med salget tegnet boligselgerforsikring levert av Gjensidige.
Boligselgerforsikringen dekker selgers ansvar etter avhendingsloven begrenset oppad til kr 14 millioner. Dersom kjøper oppdager forhold ved eiendommen som hen mener utgjør en mangel ved eiendommen, vil Gjensidige behandle reklamasjonen på vegne av selger. Forsikringsvilkår kan fås ved henvendelse til megler.
Vedlagt salgsoppgaven følger selgers egenerklæringsskjema og tilstandsrapport. Interessenter må sette seg inn i dokumentene før bud inngis.
Boligkjøperforsikring
Innen kontraktsmøtet må kjøper ta stilling til om det ønskes å bestille Boligkjøperpakken gjennom Gjensidige. I denne gunstige pakken er boligen ferdig forsikret og inkluderer rettshjelpsforsikring, også kalt Boligkjøperforsikring. Rettshjelpsforsikring gir trygghet og tilgang på profesjonell juridisk hjelp dersom det oppdages uventede feil eller mangler det første året etter overtagelse. Forsikringsselskapet behandler i så fall ethvert mangelskrav kjøper måtte ha overfor selger.
Boligkjøperpakken inkluderer bygningsforsikring for hus og hytte, innboforsikring, flytteforsikring og dobbel rentedekning - i situasjoner hvor kjøper ikke får solgt nåværende primærbolig.
Kjøper mottar ingen særskilt faktura for Boligkjøperpakken da kostnaden det første året legges til kjøpesummen for boligen. Det gjøres oppmerksom på Krogsveen mottar et honorar for denne formidlingen.
Produktark for Boligkjøperpakken ligger vedlagt i salgsoppgaven.
Dersom ikke boligkjøperpakke ønskes kan kun rettshjelpsforsikring, også kalt boligkjøperforsikring, tegnes særskilt via megler. Rettshjelpsforsikringen varer i 5 år fra overtagelse og leveres gjennom Gjensidige. Ta kontakt med megler for ytterligere informasjon.
Selskap og privatpersoner som driver med kjøp/salg/utvikling som ledd i egen næringsvirksomhet kan ikke tegne boligkjøperpakke eller rettshjelpsforsikring.
Budgivning
Forbrukerinformasjon om budgivning er vedlagt denne salgsoppgaven og er også på vår hjemmeside Krogsveen.no. Alle bud og budforhøyelser må inngis skriftlig. I tillegg må legitimasjon være fremlagt sammen med signatur fra budgiver.
Vi oppfordrer til å gi bud elektronisk via GI BUD-knappen på eiendommens hjemmeside på Krogsveen.no. Da vil samtlige vilkår bli oppfylt.
Eventuelle forhøyelser eller endringer av budet kan bekreftes pr SMS eller på e-post. Vi oppfordrer alltid til å kontakte megler pr. telefon i tillegg da forsinkelser i SMS og e-post kan forekomme.
For at budene skal kunne bli behandlet og videreformidlet skriftlig til alle involverte parter, må alle bud ha en tilstrekkelig lang akseptfrist, jf. eiendomsmeglingsforskriften § 6-3.
Selger må også skriftlig akseptere budet før aksept kan formidles til budgiver. Akseptfrist bør derfor være på minimum 30 minutter, og budforhøyelser må derfor skje i god tid før fristens utløp.
Bud i forbrukerforhold kan uansett ikke settes med kortere frist enn kl. 12.00 første virkedag etter siste annonserte visning. I tillegg kan ikke budet ha forbehold om at det skal holdes hemmelig ovenfor øvrige interessenter. Megler har iht lov om eiendomsmegling ikke anledning til å videreformidle disse budene, og de vil dermed heller ikke bli journalført.
Etter at eiendommen er solgt vil kjøper og selger få tilsendt budjournal. Øvrige budgivere kan få utlevert kopi av budjournalen i anonymisert form.
Hvitvaskingsreglene
I henhold til lov om hvitvasking og terrorfinansiering har megler plikt til å gjennomføre kontrolltiltak overfor kunder, herunder fullmektiger. Dette innebærer bl.a. å bekrefte kunders og reelle rettighetshaveres identitet på bakgrunn av fremvist gyldig legitimasjon eller på annen godkjent måte, samt å innhente opplysninger om kundeforholdets formål og tilsiktede art.
Dersom slike kundetiltak ikke kan gjennomføres, kan megler ikke etablere kundeforholdet eller utføre transaksjonen.
Hvis kjøper ikke bidrar til gjennomføring av kundekontrollen og dette fører til at transaksjonen blir forsinket eller ikke kan gjennomføres, vil dette ansees som mislighold av avtalen og gi selger rettigheter etter avhendingslova kapittel 5. I tilfeller der selger ikke bidrar til gjennomføring av løpende kundekontroll underveis i oppdraget, er det selger som misligholder sine forpliktelser etter avtalen og gi kjøper rettigheter etter avhendingslovens kapittel 4. Partene er selv ansvarlige for eventuelle kostnader og ansvar dette kan medføre. Eiendomsmegleren eller eiendomsmeglingsforetaket kan ikke holdes ansvarlig for de konsekvenser dette vil kunne få for partene eller andre som har interesser i eiendomshandelen.
Kjøper oppfordres til å innbetale kjøpesummen som ikke kommer fra låneinstitusjon i én samlet innbetaling fra egen konto i norsk bank. Megler har plikt til å melde fra til Økokrim om eiendomshandler som fremstår som mistenkelige. Melding sendes Økokrim uten at partene varsles.
Personopplysningsloven
I henhold til personopplysningsloven gjør vi oppmerksom på at interessenter kan bli registrert for videre oppfølging.
Lovanvendelse
Generelle bestemmelser
Salgsoppgaven er basert på de opplysningene selger har gitt til megler, den bygningssakyndiges tilstandsrapport, samt opplysninger innhentet fra kommunen, Kartverket og andre tilgjengelige kilder. Det er viktig at kjøper setter seg grundig inn i alle salgsdokumentene, herunder salgsoppgave, tilstandsrapport og selgers egenerklæring. Kjøper anses kjent med forhold som er tydelig beskrevet i salgsdokumentene, og slike forhold kan ikke påberopes som mangler. Dette gjelder uavhengig av om kjøper har lest dokumentene. Alle interessenter oppfordres til å undersøke eiendommen nøye, gjerne sammen med fagkyndig før bud inngis. Kjøper som velger å kjøpe usett kan ikke gjøre gjeldende som mangel noe han burde blitt kjent med ved undersøkelsen.
Dersom det er behov for avklaringer, anbefaler vi at interessenter rådfører seg med eiendomsmegler eller egne rådgivere før det legges inn bud.
En bolig som har blitt brukt i en viss tid, har vanligvis blitt utsatt for slitasje og skader kan ha oppstått. Slik bruksslitasje må kjøper regne med, og det kan avdekkes enkelte forhold etter overtakelse som nødvendiggjør utbedringer. Normal slitasje og skader som nødvendiggjør utbedring, er innenfor hva kjøper må forvente og vil ikke utgjøre en mangel.
Kjøper og selgers rettigheter og plikter reguleres av avtalen mellom partene, samt informasjonen som har vært tilgjengelig for kjøperen i forbindelse med handelen. Avtalen utfylles av avhendingsloven, og det gjelder ulike avtalevilkår avhengig av om kjøper er forbrukerkjøper eller ikke. Dette er nærmere beskrevet nedenfor.
På grunn av ulike avtalevilkår kan selger vurdere bud fra en som ikke er forbruker, ulikt fra en forbrukers bud. Dersom kjøper ikke er forbruker, er selger sitt mulige mangelsansvar begrenset fordi eiendommen selges "som den er". Selger kan ikke ta «som den er»- forbehold overfor en forbrukerkjøper. Selv et lavere bud fra en som ikke er forbruker kan foretrekkes fordi begrensningen i mulig mangelsansvar kan ha egenverdi for selger. Selger står fritt til å forkaste eller akseptere ethvert bud, og er for eksempel ikke forpliktet til å akseptere høyeste bud.
Budgiver skal i budskjema avgi egenerklæring om budgiver er forbruker eller næringsdrivende/ person som hovedsakelig handler som ledd i næringsvirksomhet. Budgivere får informasjon dersom andre bud er inngitt av en som ikke er forbruker.
Forbrukerkjøp - definisjon
Med forbrukerkjøp menes kjøp av eiendom når kjøperen er en fysisk person som ikke hovedsakelig handler som ledd i næringsvirksomhet.
Forbruker – avtalevilkår
Eiendommen har en mangel dersom den ikke er i samsvar med kravene som følger av avtalen, eller det foreligger brudd på bestemmelsene i avhendingsloven §§ 3-2 til 3-8. Hvis eiendommen ikke er i samsvar med det kjøperen må kunne forvente ut ifra alder, type og synlig tilstand, kan det være grunnlag for mangelskrav. Det samme gjelder hvis det er holdt tilbake eller gitt uriktige opplysninger om eiendommen. Dette gjelder likevel bare dersom man kan gå ut ifra at det virket inn på avtalen at opplysningen ikke ble gitt eller at mangelskravet ikke blir rettet i tide på en tydelig måte.
Boligen kan ha en mangel etter avhendingsloven § 3-3 andre ledd, dersom det er avvik mellom opplyst og faktisk innvendig areal, forutsatt at avviket er på 2% eller mer og minimum 1 kvm.
Ved beregning av et eventuelt prisavslag eller erstatning må kjøper selv dekke tap/kostnader opptil et beløp på kr 10 000 (egenandel).
Ikke-forbruker (næringsdrivende) – definisjon
Hvis kjøper er en juridisk person, eller en fysisk person som hovedsakelig handler som ledd i næringsvirksomhet, vil kjøpet ikke anses som et forbrukerkjøp.
Ikke-forbruker – avtalevilkår
Eiendommen har en mangel dersom den ikke er i samsvar med kravene som følger av avtalen.
Eiendommen selges «som den er», og selgers ansvar utover det konkret avtalte er da begrenset etter avhendingsloven § 3-9, første ledd andre setning.
Avhendingsloven § 3-3 andre ledd fravikes, og hvorvidt boligens arealsvikt utgjør en mangel vurderes etter avhendingsloven § 3-8.
Informasjon om kjøpers undersøkelsesplikt, herunder oppfordringen om å undersøke eiendommen nøye, gjelder også for kjøpere som ikke anses som forbrukere.
Det forutsettes at hjemmel overføres til kjøper. Hvis kjøper ikke ønsker hjemmelsoverføring av eiendommen, må det tas forbehold om dette i budet.
Meglers vederlag
Meglers vederlag betales av selger og er avtalt til:
Vederlag: 2,50 % av salgssummen inkl. eventuell fellesgjeld. Minimumsprovisjon er kr 50 000,00
Vederlag:
Kontroll av hjemmel og heftelser kr 4 500,00
Markedsføringspakke kr 28 900,00
Oppgjør kr 8 900,00
Tilrettelegging kr 4 900,00
Visninger pr stk / Overtagelse kr 500,00
Utlegg:
Innhenting av offentlig opplysninger Tvedestrand kommune kr 4 800,00
Tinglysing sikring kr 545,00
Andre utgifter:
AX tilstandsrapport enebolig kr 17 000,00
Boligselgerforsikring Gjensidige Eiet - regnes av prisantydning kr 12 400,00
Foto kr 6 000,00
Vi er opptatt av verdiskapning, og har knyttet til oss samarbeidspartnere som skal sikre våre kunder de beste produkter og tjenester;
• I forbindelse med forberedelse av salget, innhenter vi informasjon om eiendommen hovedsakelig fra vår samarbeidspartner Ambita.
• Gjensidige leverer boligselgerforsikring og tilbyr bygningsforsikring
• Boligkjøperforsikring leveres av Hiscox og med Sedgwick som skadebehandler, og er formidlet gjennom Gjensidige.
• BN bank tilbyr finansieringsløsninger
• Vår avdeling Krogsveen Pluss tilbyr flyttetjenester som utvask, visningsvask, lager, tømming og transport av flyttelass, i tillegg til å formidle kontakt med Flip for overflateoppussing.
• I forbindelse med overtagelse av eiendommen tilbyr Overo avtale om strøm, alarm og bredbånd.
• Krogsveen er, sammen med øvrige bransjeaktører, medeier i Bomega AS som tilbyr den digitale annonseringsplattformen Hjem.
Opplysninger om oppdraget
Oppdragsnummer 47-0021/26
Eiendomsmegler Krogsveen AS, avd. Arendal
Kystveien 14, 4841, ARENDAL
950 007 613
Oppdragets KR-kode KR47.2621
Dato
Sist oppdatert: 08. mai 2026 kl. 13:52
Dokumenter
Dokumenter
PDF – 914 KB
PDF – 4 MB
PDF – 683 KB
PDF – 312 KB
PDF – 29 KB
PDF – 127 KB
PDF – 392 KB
Område
Legg til steder som er viktige for deg
Visning
For å delta på visning, ber vi om at du melder deg på. Da sikrer vi at du får nødvendig informasjon og at det er satt av tilstrekkelig med tid. Kontakt megler dersom annet tidspunkt ønskes. Husk å lese salgsoppgaven før visningen, så du stiller forberedt. NB. Visning utgår dersom det ikke er noen påmeldte. Ønsker du kun å bli holdt orientert, kan du fra eiendommens hjemmeside få varsel om solgtpris, eller kontakte megler.
Lurer du på noe?
Unngå doble boligrenter
Vi tilbyr gunstig forsikring.
Vurderer du utleie?
Få et tilbud fra Utleie KrogsveenHva koster lånet?
Sjekk estimert lånekostnadVil du varsles om lignende boliger?
Ved å lagre ditt boligsøk hos oss får du beskjed når vi har en bolig som ligner denne, før den legges ut på markedet!






































