Eftangveien 281
4 490 000 kr
60 m²
3 soverom
Komplett salgsoppgave

Viksfjord/Eftang
Velholdt og flott fritidseiendom med fri beliggenhet og gode solforhold - idyllisk og sjønært - båtplass - bilvei frem
Prisantydning
4 490 000 krOmkostninger
133 240 krTotalpris
4 623 240 kr
Pris
Bruksareal
76 m²BRA-I (internt bruksareal)
60 m²BRA-E (eksternt bruksareal)
16 m²TBA (terrasse-balkongareal)
116 m²
Areal
Etasje
1Byggeår
1961Soverom
3 soveromBad
1 badTomteareal
1 917 m² (festet)Type
Fritidseiendom ved sjøenEierform
EietEnergimerke
Rød G
Nøkkelinfo
Vurderer du utleie?
Få et tilbud fra Utleie KrogsveenHva koster lånet?
Sjekk estimert lånekostnadBeskrivelse
Kort om eiendommen
Velkommen til Eftangveien 281 og sommeridyll på Eftanglandet mot vakre Viksfjord.
Hytta har en usjenert og fri beliggenhet med sol fra morgen til sent på kveld. Fra hyttas terrasse mot vest får du nydelig utsikt over landskapet og en kveldshimmel som er i stadig endring, samt et godt gløtt til sjøen. Eiendommen ligger skjermet og godt tilbaketrukket fra veien så de minste kan leke trygt i gode omgivelser. En kort rusletur fra hytteveggen finner du flott friareal med flere barnevennlige småstrender og gresslette. Her er det også gode bademuligheter på både brygge og strand. Det medfølger rett til båtplass på fellesbrygge. Hytta har innlagt kommunalt vann og avløp. Det er bilvei frem med gode parkeringsmuligheter på tomten.
Innhold og byggemåte
Innhold og byggemåte
Eiendommen
Eftangveien 281, 3280 TJODALYNG
Kommunenummer 3909, gårdsnummer 1113, bruksnummer 8, ideell andel 1/1
Innhold
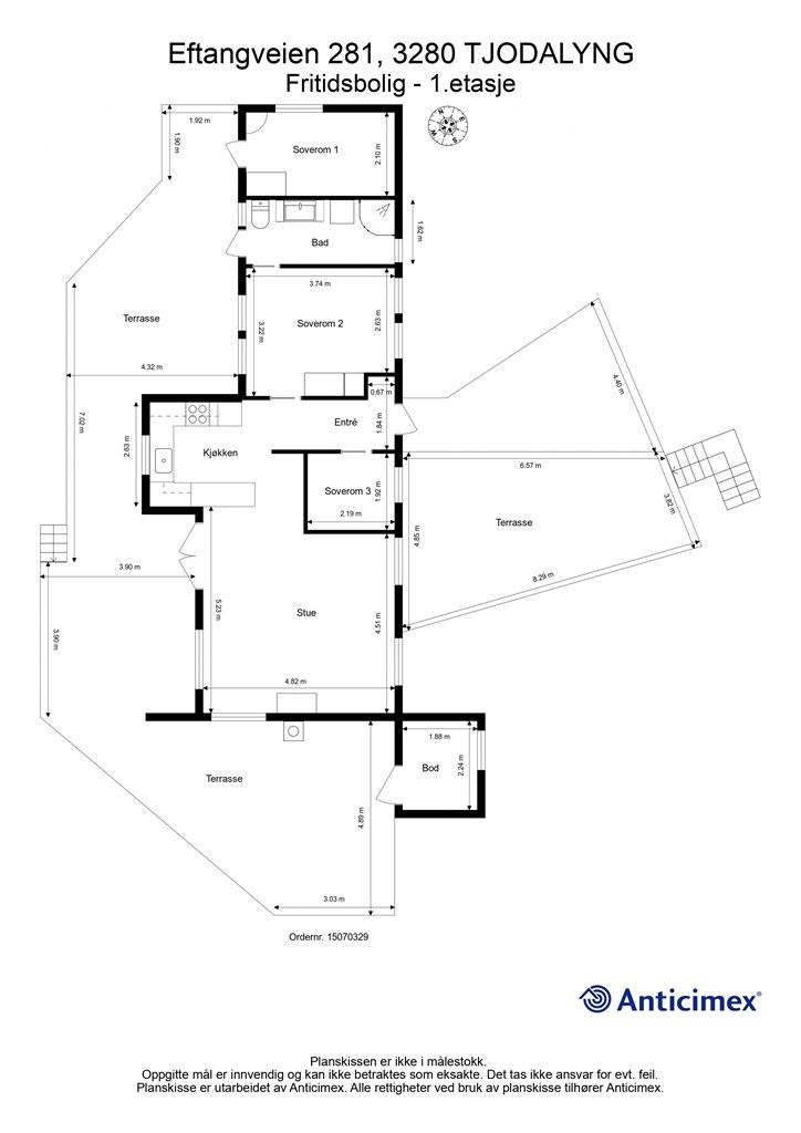
Totalt bruksareal BRA: 76 kvm
BRA-i:
Hytta:
1. etasje 60 kvm: Entré, stue, kjøkken, bad og to soverom.
BRA-e:
Hytta:
Bakkeplan: 4 kvm: Bod/lagring.
1. etasje 12 kvm: Bod (4 kvm) og ett soverom (8 kvm).
Åpent areal:
1. etasje 116 kvm: Inngangsparti/terrasse (40 kvm) terrasse (76 kvm).
Bod med utvendig adkomst (benyttes som soverom) har et totalt gulvareal (GUA) på 5 kvm, men grunnet skråtak/lav takhøyde er kun 4 kvm av arealet måleverdig som bruksareal. De delene av arealene som har lav himlingshøyde (ALH) utgjør 1 kvm.
Vedlagte plantegninger er ikke målbare. De oppgitte arealer er hentet fra rapport med befaringsdato 22.04.2025 utført av Anticimex v/Bjørn Christian Pedersen. Arealene er beregnet og rom er definert etter dagens faktiske bruk, uavhengig av hva som er godkjent av bygningsmyndighetene. Det gjøres oppmerksom på at bod med utvendig inngang som benyttes som soverom ikke er søkt eller godkjent for varig opphold. Terrasse mot øst/syd er ikke søkt eller godkjent. Soverom nummer tre er mindre enn 7 kvm som er anbefalt størrelse.
Byggemåte
Selger har fått utarbeidet en tilstandsrapport, dvs. en teknisk gjennomgang av boligen hvor eventuelle avvik, risiko for kjøper og prisoverslag for hva som bør gjøres av oppgradering, er skissert. Se særskilt TGIU (tilstandsgrad ikke undersøkt), samt TG2 og TG3 som viser hva som er boligens normale slitasje, alder og type, hva som er avvik fra dette og hva som bør/må utbedres. Rapporten og selgers egenerklæring er en del av salgsoppgaven og må leses nøye før bud inngis. Kjøper overtar ansvaret for de opplysninger som fremkommer av salgsdokumentasjonen, og kan ikke gjøre gjeldende som mangel noe som burde vært kjent eller som ikke kan anses å ha betydning for avtalen.
Bygningen er iht. tilstandsrapporten oppført på søylefundamenter i betong, med bærende bjelkelag i tre. Yttervegger, etasjeskiller og tak i trekonstruksjoner. Fasader har stående kledning i tre og saltak er tekket med asfaltbelegg. Vinduer og terrassedører med to-lags glass. Vindu med sprosser har ett lag glass. Ytterdører i tre- og sandwichkonstruksjoner. Les for øvrig mer om byggemåte og den tekniske tilstanden i rapporten.
Det gjøres spesielt oppmerksom på:
TG2:
- Bad har fått tg2 på hele våtrommet på grunn av alder og slitasjegrad. Det kan blant annet ikke verifiseres om det er benyttet tilstrekkelig tettesjikt på våtrommets gulvflater/veggflater. Eventuelt tettesjikt har også en alder som tilsier at restlevetiden er usikker. Elastiske flisfuger har stedvis manglende vedheft. Det er riss/sprekker i veggfliser ved dusjkabinett. Ingen, eller lite ventilasjon av rommet. Det bør etableres en permanent ventilasjonsløsning. Gulvet er tilnærmet flatt. Det er stedvis motfall på gulvflater utenfor dusjsonen. Det er foretatt hulltaking og utført fuktmåling med egnet instrument i tilstøtende rom til våtsone. Det ble ikke registrert forhøyede verdier eller andre avvik. Avløpsrør er vurdert til å ha en alder som tilsier at anbefalt brukstid er passert. Ved en fremtidig oppgradering av våtrommet bør utskifting av sluk og avløpsrør påregnes.
- På kjøkken og øvrige rom er det sprekker i plateskjøter i tak.
- Ventilasjonen vurderes til å stedvis ikke være tilfredsstillende. Det er ikke registrert ventiler i yttervegg på soverom 1.
- Vanninstallasjoner på tørre rom er ansett som en risikoinstallasjon. Det bør etableres lekkasjestopper eller lignende for å redusere risikoen for vannskader.
- Det er observert sprekk i overgang skorstein/brannmur i stue.
- Det er noe merkbare skjevheter i hytta. Forskjellen mellom høyeste og laveste punkt på 2,0 meter er målt til 40 mm i entre, 16 mm i stue og 20 mm på kjøkken. Målingene er foretatt i en eldre bygning og bør ses i den sammenheng. Skjevheter er mer påregnelige i eldre bygninger enn i nye. Det er ikke observert tegn til pågående setninger eller andre forhold som tilsier at skjevhetene er pågående. Ingen tiltak er vurdert som nødvendig eller hensiktsmessig. TG 2 er satt for å belyse forholdet.
- Vannrør under hytta er ikke fagmessig klamret. Utbedring anbefales. Enkelte vannrør i hytta er vurdert til å ha en alder som tilsier at restlevetid er usikker.
- På bakgrunn av varmtvannsbereder alder er det grunn til å varsle om usikker restlevetid.
- Elektrisk anlegg uten dokumentasjon. TG 2 i henhold til NS3600. Det er ikke observert feil eller mangler ved denne inspeksjonen.
- Aldersslitasje er observert på kledningen. Sprekker i endeveden. Kledningen på bod er stedvis avsluttet for nært terreng. Enkelte råteskader er observert, eksempelvis på hjørne mot nordøst. Utbedringer bør påregnes innen rimelig tid.
- Takkonstruksjonen er en lukket konstruksjon. Inspeksjon ikke mulig. Skjulte skader kan ikke utelukkes. TG 2 er satt for å belyse risiko ved manglende inspeksjonsmulighet i henhold til NS3600.
- Det kan ikke verifiseres at det er etablert tilstrekkelig lufting i/ved gesims. Følgeskader er ikke registrert, men kan ikke utelukkes. Ytterligere undersøkelser anbefales slik at etablering av lufting og utbedringstiltak kan iverksettes dersom behov.
- Terrasser på terreng har rekkverkshøyde under 1,0 meter. Høyde til terreng er målt til 1,65 meter. Dette er å anse som et avvik fra dagens forskrift. TG 2 i henhold til NS3600.
- Søyler/pilarer ved utvendig trapper har kontakt med jord. Økt fare for råteskader.
- Søyler/pilarer som danner fundamenter har stedvis skader/pussavskaling. Understøttinger i tre har direkte kontakt med jord. Enkelte steder er det ikke benyttet kapillærbrytende sjikt mellom bjelkelag/understøttinger og jord/fjell. Det er observert fuktmerker på etasjeskiller/bjelkelag under bad. Økt fare for råteskader og skjevheter i ovenpåliggende etasjeskiller. Kun deler av fundamentering er undersøkt grunnet redusert tilkomst.
- Septiktank på eiendommen har ukjent alder, og ingen dokumentasjon på materiale, type eller tilstand. Selger opplyser at denne er frakoblet og ikke i bruk i dag.
For øvrig slitasje pga. alder. Se supplerende tekst i tilstandsrapporten om punktene over. Kjøper overtar ansvar og risiko for dette.
Standard
Koselig sommerhytte i etablert og populært hytteområde med fri og flott beliggenhet. Hytta fremstår som godt holdt med byggeår lagt til grunn og ble tilbygget blant annet i 1996. Her kan du flytte rett inn og nyte sommerens late dager. Det er lettstelt og praktisk med bilvei helt frem samt kommunalt vann/avløp. Innvendig er veggoverflater malt i lyse og moderne farger. Gulv har for det meste klassisk solid tregulv og flis. Hytta har en åpen, lys og god planløsning og rikelig med sengeplasser. Her er det god plass til hele familien. Stuen har store vindusflater mot vest og fint utsyn. Her får du også utgang til terrassen.
Pent kjøkken som ligger i åpen løsning mot stuen. Innredningen har med profilerte fronter og benkeplate i eksklusiv Larvikitt. Det er montert nedsenket oppvaskkum i metall og ett-greps armatur. Det er rikelig med både skap og benkeplass. Oppvaskmaskin, komfyr og kjøleskap medfølger i handelen. Det gjøres oppmerksom på at hvitevarene er kjøpt for noen år tilbake, og kjøper må forvente slitasje som følge alder og normal bruk.
Romslig bad med både utvendig tilgang og direkte tilknytning til hyttas hovedsoverom. Det er lagt fliser på gulv og vegger. Varmekabler i gulv. Videre er det montert baderomsinnredning med profilerte fronter, heldekkende servant og ett-greps armatur. Overskap, speil, overlys og stikkontakt.
Dusjkabinett med dusjvegger av glass og gulvstående toalett. Badet har også opplegg for vaskemaskin.
Kort oppsummert:
* Velholdt sommerhytte med solrik beliggenhet.
* Bilvei helt frem og rikelig med soveplasser for storfamilien.
* Skjermet og fin tomt med gode parkeringsmuligheter.
* Kort vei til sjøen og gode bademuligheter.
* Båtplass på felles brygge.
* Deler av utvendig kledningen ble skiftet i 2022.
* Hytta ble malt utvendig 2022-23.
* Vinduer fra forskjellige årstall: 2013 i stue og på kjøkken. 2014 på soverom 3. Resterende vinduer er vurdert å være fra 1996, for uten om vindu med sprosser som er av eldre dato.
* Taktekking er fra 2022/2023.
* Terrasse med utgang fra stuen har terrassebord av eksklusiv Kebony fra 2022 og rekkverk av Møre Royal fra 2023. Kebony og Royal har både lang forventet levetid og garanti. Så her slipper du regelmessig beising.
* Utvendige vann- og avløpsledninger er opplyst å være fra 2018.
Løsøre og tilbehør
Vi viser til liste fra Norges Eiendomsmeglerforbund som gjelder fra 01.01.2020 angående løsøre og tilbehør.
Oppvarming
Peis med innsats av merket Dovre i stue. Varmekabler på bad. Ellers vanlig elektrisk oppvarming. Dersom beboelsesrom ikke har vegg- eller fastmonterte varmekilder ved visning, følger dette heller ikke med.
Ferdigattest/brukstillatelse
Eiendommen har vært brukt til fritidsboligformål siden byggeår. Kommunen opplyser at det ikke foreligger ferdigattest eller midlertidig brukstillatelse for eiendommen i deres arkiver. Det finnes av den grunn ikke dokumentasjon over eiendommens lovlighet. Men det foreligger tegninger og søknad om oppføring av hytta i 1961 samt ombygging/tilbygg datert 25.08.1980 og tilbygg/ombygging i henhold til tegninger datert 29.01.1996.
Bod mot syd som benyttes som mindre soverom er opprinnelig byggemeldt som boder jf. byggetegninger fra 1996 og er ikke godkjent til varig opphold. Innredning av rommene til bruk for varig opphold er ikke bruksendret/omsøkt og er heller ikke godkjent for denne bruk av kommunen. Konsekvensen ved søknad kan være at rommet ikke godkjennes som varig opphold og at rommet da må brukes som bod/midlertidig oppbevaring. Terrassen ved hyttas inngangsparti mot syd/øst er ikke søkt eller godkjent av kommunen. Kjøper overtar eiendommen slik den fremstår på visning med risiko og ansvaret for eventuelle pålegg fra kommunen og kostnader forbundet med dette.
Det gjøres oppmerksom på at det ikke lenger utstedes ferdigattest på tiltak det er søkt om før 1998 jf. plan- og bygningsloven § 21-10. Kommunen vil ikke kreve ferdigattest for disse tiltakene og vil avvise eventuelle søknader. Bestemmelsen innebærer ikke at tiltak med manglende søknad blir lovlige, men at man ikke trenger å avslutte gamle byggesaker. Normalt sett kreves ferdigattest for alle søknadspliktige tiltak som gjøres etter plan- og bygningsloven.
Tinglyste heftelser og rettigheter
Eiendommen overdras fri for pengeheftelser med unntak av: Dagboknr 2764, tinglyst 23.10.1958, Forkjøpsrett. Elder forkjøpsrett for grunneier knytte til et mindre areal beliggende sydøst for Eftangveien 281 (ikke relevant for denne eiendommen). Dagboknr 476, tinglyst 22.01.1991- festekontrakt med nye vilkår tinglyst 13.07.2007 med daboknr. 5642. For kontraktens vilkår se salgsoppgavens punkt "regulerings av festeavgift".
Det er tinglyst følgende servitutter på eiendommen. Dagboknr. 1059759 tinglyst 16.11.2016, bestemmelse om vann/kloakkledning: Fristad Skjeggestad Vel skal ha rett til legging reparasjoner og vedlikehold av ledninger for vann og avløp over flere gnr./bnr. i området. Hytta er en del av dette vellaget og plikter med øvrige sameiere å bidra til drift, reparasjon, vedlikehold av felles vann/avløpsledning fra eget tilknytningspunkt på felles stikkledning og frem til kommunal hovedledning.
Servituttene vil følge eiendommen. Kjøpers bank vil få prioritet etter ovennevnte heftelser og servitutter.
Eiendommen har tinglyst rett til felles kjøre vei med gnr. 1113 og bnr. 10 og 14 (Eftangveien 283) over hovedbruket. Hytta har også rett til båtplass etter grunneieres henvisning på gnr. 1113, bnr. 1 samt rett til badeplass og adkomst til denne. Rettighetene er tinglyst på gnr. 1113, bnr. 1,20 og 21 med dagboknr 476, tinglyst 22.01.1991.
Eventuell adgang til utleie
Fritidseiendommen har ikke separat utleiedel. Det vil normalt være anledning til utleie av hele eiendommen eller enkeltrom, såfremt utleiearealet er bygningsmessig godkjent for varig opphold.
Beliggenhet og tomteforhold
Beliggenhet og tomteforhold
Beliggenhet
Velkommen til Eftangveien 281 og sommeridyll på Eftanglandet mot vakre Viksfjord.
Hytta ligger fritt og solrikt til i et etablerte og trygge omgivelser, cirka 500 meter fra sjøen (i luftlinje). Eiendommen har nydelige uteområder og gode solforhold, med sol fra morgen til sent på kveld. Fra hyttas terrasse mot vest får du nydelig utsikt over landskapet og et godt gløtt til sjøen. I populære og trygge omgivelser har hytteeierne i området hatt gode og flotte sommere i flere generasjoner. Her kan de håpefulle leke trygt i gode omgivelser da hytta ligger skjermet og godt tilbaketrukket fra veien. En kort spasertur fra hytteveggen finner du gode bademuligheter fra både brygge og koselig sandstrand ved Fristadkilen/Fristadodden. Det er gode bademuligheter for både store og små samt flotte krabbefiskeforhold til sommerens faste fiskekonkurranse. Det medfølger også båtplass på fellesbrygge.
For de som er glad i sjø og båtliv er det ikke lange båtturen til sommeridyll og lunsj i historiske Stavern eller kjente Svenner fyr. Fyret markerer ikke bare innseilingen til Ytre Oslofjord men byr også på idylliske omgivelser ytterst i havgapet. Øygruppen er en populær destinasjon med fine havneforhold, solvarme svaberg, bølgeskvulp og måkeskrik. Perfekt for en dag med bading og soling. Det er også mulighet for å bestille overnatting på fyret. Videre inviterer fjorden til familievennlige eventyr i den flotte skjærgården med flere fine badeplasser og øygrupper. Viksfjord er godt egnet for båtliv og vannlek.
Turmulighetene starter ved utgangsdøren og det er rikelig med turområder i umiddelbar nærhet. Velkjente Ula og Kjerringvik er populære og kjente turmål. I Ula finnes det nydelig småbåthavn, kiosk, flott og barnevennlige sandstrender og glatte svaberg. Idylliske Kjerringvik ligger heller ikke lange turen unna og her finnes det blant annet småbåthavn, sandstrender og fine tur-områder. Her arrangeres det også kulturelle begivenheter hvert år. Kyststien i nærheten leder deg over Holtefjell til både Ula og videre til Kjerringvik. Det er heller ikke lange veien til "Sør i Ommane"/ Ølbergholmen som er et flott friområde ytterst på Eftanghalvøya. Her finnes barnevennlig sandstrand, gresslette og svaberg. Både Ula og Ølbergholmen byr på fantastiske badestrender med ypperlige bade forhold. Det er rikelig med turmuligheter i området, både til fots og på sykkel. Korte avstander til butikker både i Sandefjord og Larvik. Alt ligger til rette for at du kan nyte late dager i ditt eget sommerparadis. Vi ønsker velkommen til en hyggelig visning.
Adkomst
Kommer du fra Oslo-området kan du tar av fra E-18 til Sandefjord. Fra Sandefjord kjører du nedre vei til Larvik (fv 303). Ta av mot Ula og Eftang, følg Ulaveien ca. 3 km og ta av til høyre mot Eftang. Følg Eftangveien forbi Torsøy grendehus. Hytta ligger på venstre side etter cirka 300 meter. Veibeskrivelse Se Google maps - det er enkelt å finne frem i kartet. Det vil bli skiltet med Krogsveen visningsskilt ved fellesvisninger.
Beskrivelse av tomt
Stor festetomt på 1 917 kvm. Tomten består for det meste av naturtomt, noe gress og partier med fjell. Hytta ligger høyt og fritt til på en liten høyde med utsyn over omkringliggende områder og godt gløtt til sjøen. Her får du rikelig med sol fra morgen til sen kveld. Eiendommen har flere flotte terrasser rundt store deler av hytta. Både mot øst, syd og vest. Terrassen mot vest med utgang fra stuen/kjøkken er på cirka 76 kvm. Her er det rikelig med plass til både stort spisebord og øvrige utemøbler. En del av terrasse er også overbygget og det er montert markise så du sitter lunt og godt til. Praktisk utekjøkken er også montert. Terrassen på denne siden er også innelukket med rekkverk hele veien, så her er det også trygt for de minste. Alt ligger til rette for at både varme og lange sommerdager samt kvelder kan nytes. Mot øst/syd ved hyttas inngangsparti har du en nydelig terrasse på ca. 40 kvm, med morgensol og en ypperlig plass for morgenkaffen eller lunsjplass i skjermede omgivelser.
Tomten er ikke oppmålt i nyere tid og har usikre grenser mot vest, syd, øst og delvis mot nord. Ved nyere oppmåling kan tomtegrensene og tomtens areal avvike. Kjøper overtar risiko for avviket. Se vedlagt kartutsnitt for tomtegrenser.
Regulering av feste
Festeavgiften er kr 5 440,00 pr. år. Festeavtalen utløper 01.08.2059.
Festeavgiften reguleres hvert 10. år iht. konsumprisindeksen.
Siste regulering av festeavgiften var i 2015. Festeavgiften skal reguleres på nytt i juli 2025.
Grunneier er Mia Krøger Mathisen. Samtykke til overdragelse fra grunneier kreves ikke. Kopi av lov om tomtefeste kan fåes ved henvendelse til megler.
Parkering
Gode parkeringsmuligheter på tomten. Det medfølger rett til båtplass (leie) på fellesbyggen på Fristad (fiskebrygga). Eier disponerer i dag plass nr. 8. Det er dugnad på brygga og tilhørende fellesområder ved sesongstart. Se vedlagt leiekontrakt for mer informasjon.
Vei, vann og avløp
Eiendommen har adkomst via privat vei med felles vedlikeholdsansvar. Eiendommen deler vedlikehold av veien med Eftangveien 283. Selger opplyser at vedlikehold har blitt utført ved behov. Eiendommen er tilknyttet kommunalt ledningsnett via private stikkledninger. Eier er selv ansvarlig for private stikkledninger til boligen.
Hytta har kommunalt helårsvann og avløp. Det er lagt varmetråder i vannledning helt frem til hytta, men det gjøres oppmerksom på at selve hytta med rørsystem ikke er vinterisolert og klargjort for bruk på vinterhalvåret.
Regulerings-og arealplaner
Eiendommen ligger i et uregulert område, men er i kommuneplan datert 06.10.2021 avsatt til LNF-område (landbruks-, natur- og friluftsområde), bevaring av kulturmiljø og spredt bolig-, fritids- eller næringsbebyggelse. Utsnitt av plan med tilhørende bestemmelser kan fås ved henvendelse til megler.
Økonomi
Økonomi
Kommunale utgifter
Kommunale avgifter er kr 12 878,- for inneværende år. I dette inngår gebyr for vann, avløp, renovasjon og feiing/tilsyn.
Nåværende eier har et strømforbruk som tilsvarer ca. 3.000 kwh. pr. år.
Hytta har en årlig forsikringspremie på kr 4.728,-
Avgift til Eftang vann- og avløp kr. 1.750,- pr. år.
Bryggeavgift for leie av båtplass kr. 1.600,- for sesongen 2025 (avgiften reguleres etter indeks).
Boligen er tilknyttet parabol fra Allente og har avgift på kr. 518,- pr. mnd. Tv-tuner/dekoder medfølger ikke. Det er klargjort med fiber få meter fra tomtegrensen.
Utgiftene er basert på nåværende eiers forbruk og avtaler.
Formuesverdi
Formuesverdi for 2023 var kr 606 383,- ifølge skatteetaten.
Omkostninger
4 490 000,00 Prisantydning
Omkostninger
112 250,00 Dokumentavgift til staten (2,5% av kjøpesum)
545,00 Tinglysing panterettsdokument
545,00 Tinglysing skjøte
19 900,00 Tryg Boligkjøperpakke (valgfri)
--------------------------------------------------------
133 240,00 Omkostninger totalt
--------------------------------------------------------
4 623 240,00 Totalpris inkl. omkostninger
--------------------------------------------------------
Totalpris inkl. omkostninger forutsetter kjøp til prisantydning.
Det tas forbehold om endringer i avgifter og gebyrer.
Tilbud om lånefinansiering
Megler formidler gjerne kontakt med rådgiver hos vår samarbeidspartner BN Bank. De har konkurransedyktige betingelser samt rask og løsningsorientert behandling av din lånesøknad. Krogsveen mottar et honorar for denne formidlingen.
Betalingsbetingelser
Kjøpesum inkludert omkostninger, samt pantedokument tilknyttet eventuelt lån, skal være disponibelt hos megler 2 virkedager før overtagelsen.
Annen viktig informasjon
Annen viktig informasjon
Eier
Ingvil Berger
Overtakelse
Etter nærmere avtale.
Boligselgerforsikring
Selger har i forbindelse med salget tegnet boligselgerforsikring hos Anticimex. Vedlagt salgsoppgaven følger selgers egenerklæringsskjema og tilstandsrapport. Interessenter må sette seg inn i dokumentene før bud inngis.
Boligselgerforsikringen dekker selgers ansvar etter avhendingsloven. Dersom kjøper oppdager forhold ved eiendommen som man mener utgjør en mangel ved eiendommen, vil Claims Handling AS behandle reklamasjonen på vegne av selger. Forsikringsvilkår kan fås ved henvendelse til megler.
Boligkjøperforsikring
Innen kontraktsmøtet må kjøper ta stilling til om det ønskes å bestille Boligkjøperpakken gjennom Tryg. I denne gunstige pakken er boligen ferdig forsikret og inkluderer rettshjelpsforsikring, også kalt Boligkjøperforsikring. Rettshjelpsforsikring gir trygghet og tilgang på profesjonell juridisk hjelp dersom det oppdages uventede feil eller mangler det første året etter overtagelse. Forsikringsselskapet behandler i så fall ethvert mangelskrav kjøper måtte ha overfor selger.
For alle boligtyper, unntatt tomter, inneholder Boligkjøperpakken innboforsikring, renteforsikring (unntatt fritidsbolig) - i situasjoner hvor kjøper ikke får solgt nåværende primærbolig – og flytteforsikring. I tillegg inneholder den husforsikring for alle hus og hytter forutsatt at eiendommen ikke har seksjonsnummer/andel (tilhører et sameie/borettslag).
Kjøper mottar ingen særskilt faktura for Boligkjøperpakken da kostnaden det første året legges til kjøpesummen for boligen. Les mer om forsikringen i informasjonsarket fra Tryg. Krogsveen mottar et honorar for denne formidlingen.
Dersom ikke boligkjøperpakke ønskes kan kun rettshjelpsforsikring, også kalt boligkjøperforsikring, tegnes særskilt via megler. Rettshjelpsforsikringen varer i 5 år fra overtagelse og leveres av Tryg.
Selskap og privatpersoner som driver med kjøp/salg/utvikling som ledd i egen næringsvirksomhet kan ikke tegne boligkjøperforsikring.
Budgivning
Forbrukerinformasjon om budgivning er vedlagt denne salgsoppgaven og er også på vår hjemmeside www.krogsveen.no. Alle bud og budforhøyelser må inngis skriftlig. I tillegg må legitimasjon være fremlagt sammen med signatur fra budgiver.
Vi oppfordrer til å gi bud elektronisk via GI BUD-knappen på eiendommens hjemmeside på Krogsveen.no. Da vil samtlige vilkår bli oppfylt.
Eventuelle forhøyelser eller endringer av budet kan bekreftes pr SMS eller på e-post. Vi oppfordrer alltid til å kontakte megler pr. telefon i tillegg da forsinkelser i SMS og e-post kan forekomme.
For at budene skal kunne bli behandlet og videreformidlet skriftlig til alle involverte parter, må alle bud ha en tilstrekkelig lang akseptfrist, jf. eiendomsmeglingsforskriften § 6-3.
Selger må også skriftlig akseptere budet før aksept kan formidles til budgiver. Akseptfrist bør derfor være på minimum 30 minutter, og budforhøyelser må derfor skje i god tid før fristens utløp.
Bud i forbrukerforhold kan uansett ikke settes med kortere frist enn kl. 12.00 første virkedag etter siste annonserte visning.
Etter at eiendommen er solgt vil kjøper og selger få tilsendt budjournal. Øvrige budgivere kan få utlevert kopi av budjournalen i anonymisert form.
Hvitvaskingsreglene
I henhold til lov om hvitvasking og terrorfinansiering har megler plikt til å gjennomføre kontrolltiltak overfor kunder, herunder fullmektiger. Dette innebærer bl.a. å bekrefte kunders og reelle rettighetshaveres identitet på bakgrunn av fremvist gyldig legitimasjon eller på annen godkjent måte, samt å innhente opplysninger om kundeforholdets formål og tilsiktede art.
Dersom slike kundetiltak ikke kan gjennomføres, kan megler ikke etablere kundeforholdet eller utføre transaksjonen.
Hvis kjøper ikke bidrar til gjennomføring av kundekontrollen og dette fører til at transaksjonen blir forsinket eller ikke kan gjennomføres, vil dette ansees som mislighold av avtalen og gi selger rettigheter etter avhendingslova kapittel 5. I tilfeller der selger ikke bidrar til gjennomføring av løpende kundekontroll underveis i oppdraget, er det selger som misligholder sine forpliktelser etter avtalen og gi kjøper rettigheter etter avhendingslovens kapittel 4. Partene er selv ansvarlige for eventuelle kostnader og ansvar dette kan medføre. Eiendomsmegleren eller eiendomsmeglingsforetaket kan ikke holdes ansvarlig for de konsekvenser dette vil kunne få for partene eller andre som har interesser i eiendomshandelen.
Kjøper oppfordres til å innbetale kjøpesummen som ikke kommer fra låneinstitusjon i én samlet innbetaling fra egen konto i norsk bank. Megler har plikt til å melde fra til Økokrim om eiendomshandler som fremstår som mistenkelige. Melding sendes Økokrim uten at partene varsles.
Personopplysningsloven
I henhold til personopplysningsloven gjør vi oppmerksom på at interessenter kan bli registrert for videre oppfølging.
Lovanvendelse
Generelle bestemmelser
Salgsoppgaven er basert på de opplysningene selger har gitt til megler, den bygningssakyndiges tilstandsrapport, samt opplysninger innhentet fra kommunen, Kartverket og andre tilgjengelige kilder. Det er viktig at kjøper setter seg grundig inn i alle salgsdokumentene, herunder salgsoppgave, tilstandsrapport og selgers egenerklæring. Kjøper anses kjent med forhold som er tydelig beskrevet i salgsdokumentene, og slike forhold kan ikke påberopes som mangler. Dette gjelder uavhengig av om kjøper har lest dokumentene. Alle interessenter oppfordres til å undersøke eiendommen nøye, gjerne sammen med fagkyndig før bud inngis. Kjøper som velger å kjøpe usett kan ikke gjøre gjeldende som mangel noe han burde blitt kjent med ved undersøkelsen.
Dersom det er behov for avklaringer, anbefaler vi at interessenter rådfører seg med eiendomsmegler eller egne rådgivere før det legges inn bud.
En bolig som har blitt brukt i en viss tid, har vanligvis blitt utsatt for slitasje og skader kan ha oppstått. Slik bruksslitasje må kjøper regne med, og det kan avdekkes enkelte forhold etter overtakelse som nødvendiggjør utbedringer. Normal slitasje og skader som nødvendiggjør utbedring, er innenfor hva kjøper må forvente og vil ikke utgjøre en mangel.
Kjøper og selgers rettigheter og plikter reguleres av avtalen mellom partene, samt informasjonen som har vært tilgjengelig for kjøperen i forbindelse med handelen. Avtalen utfylles av avhendingsloven, og det gjelder ulike avtalevilkår avhengig av om kjøper er forbrukerkjøper eller ikke. Dette er nærmere beskrevet nedenfor.
På grunn av ulike avtalevilkår kan selger vurdere bud fra en som ikke er forbruker, ulikt fra en forbrukers bud. Dersom kjøper ikke er forbruker, er selger sitt mulige mangelsansvar begrenset fordi eiendommen selges "som den er". Selger kan ikke ta «som den er»- forbehold overfor en forbrukerkjøper. Selv et lavere bud fra en som ikke er forbruker kan foretrekkes fordi begrensningen i mulig mangelsansvar kan ha egenverdi for selger. Selger står fritt til å forkaste eller akseptere ethvert bud, og er for eksempel ikke forpliktet til å akseptere høyeste bud.
Budgiver skal i budskjema avgi egenerklæring om budgiver er forbruker eller næringsdrivende/ person som hovedsakelig handler som ledd i næringsvirksomhet. Budgivere får informasjon dersom andre bud er inngitt av en som ikke er forbruker.
Forbrukerkjøp - definisjon
Med forbrukerkjøp menes kjøp av eiendom når kjøperen er en fysisk person som ikke hovedsakelig handler som ledd i næringsvirksomhet.
Forbruker – avtalevilkår
Eiendommen har en mangel dersom den ikke er i samsvar med kravene som følger av avtalen, eller det foreligger brudd på bestemmelsene i avhendingsloven §§ 3-2 til 3-8. Hvis eiendommen ikke er i samsvar med det kjøperen må kunne forvente ut ifra alder, type og synlig tilstand, kan det være grunnlag for mangelskrav. Det samme gjelder hvis det er holdt tilbake eller gitt uriktige opplysninger om eiendommen. Dette gjelder likevel bare dersom man kan gå ut ifra at det virket inn på avtalen at opplysningen ikke ble gitt eller at mangelskravet ikke blir rettet i tide på en tydelig måte.
Boligen kan ha en mangel etter avhendingsloven § 3-3 andre ledd, dersom det er avvik mellom opplyst og faktisk innvendig areal, forutsatt at avviket er på 2% eller mer og minimum 1 kvm.
Ved beregning av et eventuelt prisavslag eller erstatning må kjøper selv dekke tap/kostnader opptil et beløp på kr 10 000 (egenandel).
Ikke-forbruker (næringsdrivende) – definisjon
Hvis kjøper er en juridisk person, eller en fysisk person som hovedsakelig handler som ledd i næringsvirksomhet, vil kjøpet ikke anses som et forbrukerkjøp.
Ikke-forbruker – avtalevilkår
Eiendommen har en mangel dersom den ikke er i samsvar med kravene som følger av avtalen.
Eiendommen selges «som den er», og selgers ansvar utover det konkret avtalte er da begrenset etter avhendingsloven § 3-9, første ledd andre setning.
Avhendingsloven § 3-3 andre ledd fravikes, og hvorvidt boligens arealsvikt utgjør en mangel vurderes etter avhendingsloven § 3-8.
Informasjon om kjøpers undersøkelsesplikt, herunder oppfordringen om å undersøke eiendommen nøye, gjelder også for kjøpere som ikke anses som forbrukere.
Det forutsettes at hjemmel overføres til kjøper. Hvis kjøper ikke ønsker hjemmelsoverføring av eiendommen, må det tas forbehold om dette i budet.
Meglers vederlag
Meglers vederlag betales av selger og er avtalt til:
Vederlag: 1,25% av salgssummen.
Tilrettelegging fra kr 17.000,-
Oppgjør: kr 7.500,-
Markedspakke: kr 26.000,-
Visninger: kr 4.000,-
Oppslag eiendomsregister: kr 2.900,-
Megler har i tillegg krav på dekning av utlegg.
Opplysninger om oppdraget
Oppdragsnummer 22-0153/25
Eiendomsmegler Krogsveen AS, avd. Sandefjord
Jernbanealléen 13, 3210, SANDEFJORD
950 007 613
Oppdragets KR-kode KR22.25153
Dato
Sist oppdatert: 19. desember 2025 kl. 13:15
Dokumenter
Dokumenter
PDF – 1 MB
PDF – 382 KB
PDF – 312 KB
PDF – 29 KB
PDF – 127 KB
PDF – 392 KB
Område
Legg til steder som er viktige for deg
Visning
Ta kontakt med megler for avtale om privatvisning.
Ønsker du kun å bli holdt orientert, kan du fra eiendommens hjemmeside få varsel om solgtpris, eller kontakte megler.
Lurer du på noe?
Vurderer du utleie?
Få et tilbud fra Utleie KrogsveenHva koster lånet?
Sjekk estimert lånekostnadVil du varsles om lignende boliger?
Ved å lagre ditt boligsøk hos oss får du beskjed når vi har en bolig som ligner denne, før den legges ut på markedet!


