Bjørneskrenten 10
7 150 000 kr
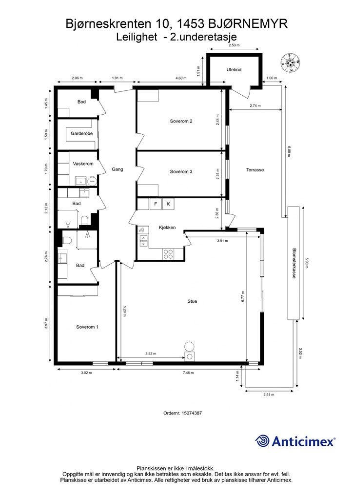
139 m²
3 soverom
Komplett salgsoppgave

Bjørnemyr
Fantastisk utsikt over Oslofjorden! Stor vestvendt og solrik terrasseleilighet med alt på en flate. Garasje.
Prisantydning
7 150 000 krAndel fellesgjeld
118 461 krOmkostninger
192 740 krTotalpris
7 461 201 kr
Pris
Bruksareal
150 m²BRA-I (internt bruksareal)
139 m²BRA-E (eksternt bruksareal)
11 m²TBA (terrasse-balkongareal)
33 m²
Areal
Etasje
-2Byggeår
1986Soverom
3 soveromBad
2 badType
EierleilighetEierform
EierseksjonFasiliteter
Garasje/P-plass og Balkong/TerrasseFellesutgifter
5 500 krEnergimerke
Rød F
Nøkkelinfo
Unngå doble boligrenter
Vi tilbyr gunstig forsikring.
Vurderer du utleie?
Få et tilbud fra Utleie KrogsveenHva koster lånet?
Sjekk estimert lånekostnadDette liker selger best ved boligen
Panorama utsikt fra Slemmestad til Holmenkollen og kan følge all skipstrafikk fra stor terrasse på hele 31m2. Direkte tilgang fra terrassen til deilig lite plen område i vest med beplantning som deles med naboen. Usjenert, stille og rolig hvor du kan nyte utsikten og sola til den går sent ned i vest. Meget godt vedlikeholdt og alt fagmessig utført og dokumentert i Boligmappa. Flott stor lys stue med varmekabler, parkett og deilig klebersteinsovn. Markiser og screens på varme solrike dager. El-anlegget hele tiden oppdatert til topp standard. 4 store boder - 2 inne og 2 ute meg god oppbevaringsplass. 3 romslige soverom og flotte renoverte bad med rør til rør system med skap på vaskerommet..
Beskrivelse
Kort om eiendommen
Panoramautsikt over hele indre Oslofjord, fra Bygdøy til Slemmestad.
Leiligheten er hyggelig og praktisk med alt på en flate, 2 bad hvorav 1 med tilknytning til hovedsoverommet, adskilt kjøkken, og eget vaskerom. Stor terrasse med gode solforhold. Her er det mulighet for flere sittegrupper og rikelig med beplantning i plassbygde plantekasser. Medfølgende biloppstillingsplass i felles garasjeanlegg. Leiligheten ligger i en stille og rolig blindvei med gangavstand til bl.a. sjøen, bussholdeplass, butikker, skoler, barnehager og marka. Lekeplass i nærområdet.
Innhold og byggemåte
Innhold og byggemåte
Eiendommen
Bjørneskrenten 10, 1453 BJØRNEMYR
Kommunenummer 3212, gårdsnummer 30, bruksnummer 338, seksjonsnummer 36, ideell andel 1/1
Kommunenummer 3212, gårdsnummer 30, bruksnummer 336, ideell andel 1/81
Kommunenummer 3212, gårdsnummer 30, bruksnummer 402, ideell andel 1/81
Innhold
BRA-i:
-2. etasje 139 kvm: Gang, 2 bad, vaskerom, kjøkken, stue, 3 soverom, garderobe og innvendig bod
BRA-e:
-2. etasje 7 kvm: En utvendig bod ved markterrassen og en kjellerbod ved trappegang
1. etasje 4 kvm: Utvendig bod
Åpent areal:
-2. etasje 33 kvm: Markterrasse
Leiligheten disponerer en kjellerbod ved trappegang i 2. underetasje.
Vedlagte plantegninger er ikke målbare. De oppgitte arealer er hentet fra rapport med befaringsdato 19.08.2025 utført av Anticimex v/Thomas Erichsen. Arealene er beregnet og rom er definert etter dagens faktiske bruk, uavhengig av hva som er godkjent av bygningsmyndighetene.
Byggemåte
Selger har fått utarbeidet en tilstandsrapport, dvs. en teknisk gjennomgang av boligen hvor eventuelle avvik, risiko for kjøper og prisoverslag for hva som bør gjøres av oppgradering, er skissert. Se særskilt TGIU (tilstandsgrad ikke undersøkt), samt TG2 og TG3 som viser hva som er boligens normale slitasje, alder og type, hva som er avvik fra dette og hva som bør/må utbedres. Rapporten og selgers egenerklæring er en del av salgsoppgaven og må leses nøye før bud inngis. Kjøper overtar ansvaret for de opplysninger som fremkommer av salgsdokumentasjonen, og kan ikke gjøre gjeldende som mangel noe som burde vært kjent eller som ikke kan anses å ha betydning for avtalen.
Bygningen er iht. tilstandsrapporten fundamentert med gulv mot grunn av betong og grunnmur, skillende dekker og bærende konstruksjoner av betong/murkonstruksjon. Utvendig fasade forblendet med liggende kledning. Saltakkonstruksjon i tre, tekket med takplater og takstein (tak ikke besiktiget). Vinduer med karmer av tre, og tre-lags glass fra byggeår. Vindu på soverom 1 med karmer av tre, og to-lags glass fra 2018. Balkongdør med karmer av tre, og tre-lags glass fra byggeår. Balkongdør (skyvedør) med karmer av tre, og to-lags glass fra 2020. Entrédør fra byggeår med brannklasse B30 og lydklasse 35dB.
Les forøvrig mer om byggemåte og den tekniske tilstanden i rapporten.
Det gjøres spesielt oppmerksom på:
TG3 er gitt:
Vaskerom :
- Membran, tettesjikt og overgang til sluk.: Tettesjiktet er skjult har en alder som tilsier at levetiden er passert. Bakenforliggende skader kan ikke utelukkes. Utskifting av tettesjikt må påregnes innen rimelig tid. Utførelsen med hensyn til bruk av slukmansjett og tettesjikt er uoversiktlig, og det kan derfor ikke verifiseres at løsningen er fullgod og sikker mot lekkasjer. Fornying av slukmansjett og tettesjikt bør påregnes.
Sjablongmessig prisanslag: kr 50 000 - 100 000
TG2 er gitt:
Bad v/soverom:
- Skjulte avløpsrør er av ukjent type, alder og tilstand. Bygningsdelen er ikke tilgjengelig for undersøkelser. Restlevetiden er ukjent.
- Drenering fra innebygget sisterne er vurdert til å være for liten. Større hull bør lages så eventuell fukt i konstruksjonen vil synliggjøres fortere ved en lekkasje. Tiltak bør vurderes.
Bad v/gang:
- Skjulte avløpsrør er av ukjent type, alder og tilstand. Bygningsdelen er ikke tilgjengelig for undersøkelser. Restlevetiden er ukjent.
Vaskerom :
- Nivåforskjell fra døråpning på topp overflate gulv og til hovedsluk er på tilfeldig sted målt til ca. 1mm. Dette er vurdert til å ikke være tilfredsstillende mht lekkasjesikkerhet.
- Avløpsrør er vurdert til å ha en alder som tilsier at anbefalt brukstid er passert. På bakgrunn av alderen er det grunn til å varsle om risiko for skjulte avvik, svekket funksjon, usikker restlevetid eller lignende forhold som utvikles over tid.
- Det kan ikke verifiseres om det er benyttet tilstrekkelig tettesjikt på våtrommets veggflater, eventuelt bør nytt tettesjikt etableres.
Kjøkken:
- Det registreres moderate tegn til bomlyd (tegn til hulrom) under enkelte gulvfliser. Eksakt årsak er ikke kjent. Tiltak vurderes ikke til å være nødvendig, men bør holdes under oppsikt.
- Vannrør av kobber er vurdert til å ha en alder som tilsier at anbefalt brukstid er passert. På bakgrunn av alderen er det grunn til å varsle om risiko for skjulte avvik, svekket funksjon, usikker restlevetid eller lignende forhold som utvikles over tid.
- Avløpsrør er vurdert til å ha en alder som tilsier at anbefalt brukstid er passert. På bakgrunn av alderen er det grunn til å varsle om risiko for skjulte avvik, svekket funksjon, usikker restlevetid eller lignende forhold som utvikles over tid.
- Ukjent om ventilatoren gir tilstrekkelig avtrekk. Ved funksjonstest registreres liten effekt.
Tekniske anlegg, VVS anlegg:
- Vannrør av kobber er vurdert til å ha en alder som tilsier at anbefalt brukstid er passert. På bakgrunn av alderen er det grunn til å varsle om risiko for skjulte avvik, svekket funksjon, usikker restlevetid eller lignende forhold som utvikles over tid.
- Avløpsrør er vurdert til å ha en alder som tilsier at anbefalt brukstid er passert. På bakgrunn av alderen er det grunn til å varsle om risiko for skjulte avvik, svekket funksjon, usikker restlevetid eller lignende forhold som utvikles over tid.
- På bakgrunn av varmtvannsberederens alder er det grunn til å varsle om usikker restlevetid eller andre forhold som utvikles over tid. Det kan ikke utelukkes behov for reparasjon/utskiftning. Jevnlig ettersyn anbefales slik at eventuelle tiltak kan iverksettes ved behov.
Rom under terreng -2. underetasje:
- Det er registrert noen små skade i gulvflater ved soverom 2-3.
- Det er stedvis knirk i gulvflater
- Etasjen har vegger under bakkenivå som er utlektet fra grunnmuren. Konstruksjonen er lukket, og det er ikke kjent hvordan oppbyggingen er utført. Dette sammen med dreneringens alder tilsier risiko for fuktskader i konstruksjonen. Ytterligere undersøkelser bør påregnes for å avdekke skadeomfang og aktuelle tiltak.
- Det er foretatt hulltaking og utført fuktmåling i utlektet kjellevegg. Det ble registrert forhøyede fuktverdier. Målingen gir kun et øyeblikksbilde av forholdene og kan endre seg med årstider, fukt- og temperaturforhold. Målingene viser følgende: RH 78,9 %, temperatur 17,2 grader C og duggpunkt 13,6 grader C. Dette kan indikere utettheter/funksjonssvikt. Årsak må avklares og videre fukttilførsel må stoppes.
- Hulltaking i forbindelse med fuktmåling viser at konstruksjonen har en oppbygning som erfaringsmessig medfører forhøyet risiko for kondens-/fuktproblematikk. Ytterligere undersøkelser bør påregnes for å avdekke skadeomfang og aktuelle tiltak.
Etasjeskiller:
- Skjevhetsmåling: Det er noe merkbare skjevheter i boligen.
Elektrisk anlegg:
- Forenklet vurdering av det elektriske anlegget: Det er kun fremlagt samsvarserklæring på deler av utførte arbeider på det elektriske anlegget. Det er ikke fremlagt dokumentasjon på de deler av det elektriske anlegget som er montert før 1999. Løs stikkontakt på kjøkken ved balkongdør. Med bakgrunn i ovennevnte avvik bør det gjennomføres en utvidet el-kontroll av en kvalifisert elektrofaglig person.
Dører og vinduer:
- Vinduer fra byggeår er av eldre dato og har behov for oppgraderinger/ overflatebehandling.
- Balkongdør fra byggeår av eldre dato og har behov for oppgraderinger/ overflatebehandling.
Markterrasse :
- Det registreres skjevheter i dekket som danner terrassens fundamenter. Eksakt årsak er ikke kjent, men forholdet kan føre til behov for utbedring/tiltak.
- Rekkverkshøyden er under 1,0 meter. Avvik fra dagens byggteknisk forskrift. Det registreres bomlyd (tegn til hulrom) under enkelte gulvfliser. Eksakt årsak er ikke kjent. Forholdet indikerer manglende vedheft mellom flis og underlag. Jevnlig ettersyn anbefales slik at tiltak kan iverksettes ved behov.
Drenering:
- Dreneringen er nedgravd og skjult, og tilstanden vurderes derfor i hovedsak ut fra alder. På bakgrunn av dreneringens alder og symptomer vurderes det at levetiden er passert. Opplysningen bør ses i sammenheng med observasjoner gjort fra innsiden. Se punkt Rom under terreng, konstruksjoner. Det bør gjennomføres ytterligere undersøkelser av fagkyndige for å kartlegge eksakt tilstand, årsakssammenhenger og hvilke tiltak som skulle være nødvendig. Det må påregnes kostnader for utbedringer.
- Det kan ikke verifiseres at grunnmuren har utvendig fuktsperre. Forholdet øker faren for fuktvandring i konstruksjoner under bakkenivå, og bør ses i sammenheng med opplysninger om alderen til dreneringen.
TGIU er gitt:
Bad v/gang: På grunn av våtrommets utforming og bruk er det ikke praktisk mulig å gjennomføre hulltaking og fuktmåling i de mest fuktutsatte delene av våtsonen, som
erfaringsmessig er områdene der skader forekommer. Hulltaking og fuktmåling i lukkede konstruksjoner er derfor ikke utført. Det ble derimot gjennomført et overflatesøk med fuktindikator, uten at det ble påvist indikasjoner som tyder på fuktskader.
Se supplerende tekst i tilstandsrapporten. Kjøper overtar ansvar og risiko for dette.
Moderniseringer og påkostninger
2022: Parkett, fliser og malte veggflater i gang
2021: Ny benkeplate, platetopp, stekeovn, oppvaskmaskin og kjøleskap på kjøkken
2018: Flislagt over gulvbelegget på vaskerom
2016: Nye vannrør av typen rør-i-rør-system med fordelerskap på vaskerom
2014: Parkett med varmekabler i stue
2010 (ca.): Flislagt mellom overskap og underskap på kjøkken
Standard
Terrassehus over 4 etasjer der denne leiligheten er beliggende i byggets 2. underetasje med adkomst via felles trappegang. Leiligheten har callinganlegg.
Entré
Boligen har en romslig entré/gang med gode muligheter for oppbevaring av yttertøy og sko i skyvedørsgarderobe med speildører.
Stue
Lys og innbydende stue der store vindusflater gir rikelig med lys og åpner rommet fullstendig mot utsikten. En dobbel skyvedør gir lett adkomst ut til den delvis overbygde, vestvendte markterrassen på ca. 33 kvm. Stuens romløsning åpner for flere innredningsmuligheter og har god plass til både sofagruppe, spisegruppe og ønsket møblement. For ekstra hygge og varme på kalde kvelder kan det fyres opp i den flotte klebersteinsovnen.
Kjøkken
Kjøkkeninnredning fra byggeår med profilerte fronter og benkeplate av laminat (2021) med nedsenket oppvaskkum av metall. Det er belysning og stikkontakter under overskap, og i ca. 2010 ble det montert fliser mellom benk og overskap. Integrert platetopp og stekeovn, samt frittstående kjøleskap og oppvaskmaskin (medfølger ikke) fra 2021.
Kjøkkenventilator er plassert i overskap.
Det er kun de hvitevarene som er listet opp som medfølger: Kjøleskap og stekeovn m/platetopp medfølger.
Det gjøres oppmerksom på at hvitevarene er kjøpt for noen år tilbake, og kjøper må forvente slitasje som følge alder og normal bruk.
Soverom
Boligen har tre soverom av god størrelse.
Bad v/soverom
Lekkert flislagt bad med gulvarme. Badet ble totalrehabilitert i 2016. Moderne vegghengt servantinnredning med skuffer. Det er montert speil med overlys og stikkontakt på vegg over servant. Vegghengt toalett med innebygget sisterne, og dusjhjørne med innfellbare glassdører og dusjarmatur tilkoblet veggmontert hånddusj. Avtrekksventil plassert på vegg.
Bad i gang
Pent flislagt bad med gulvvarme. Badet ble totalrehabilitert i 2016. Vegghengt servantinnredning med profilerte dører fra ukjent årstall. Det er montert speil med innebygd lys og stikkontakt på vegg over servant. Vegghengt toalett med innebygget sisterne, og dusjhjørne med innfellbare glassdører og dusjarmatur tilkoblet veggmontert hånddusj. Avtrekksventil plassert på himling.
Vaskerom
Praktisk vaskerom fra byggeår med flislagt gulv. Benkeplate av laminat med oppvaskkum i metall, overskap og opplegg for vaskemaskin og tørketrommel. Varmtvannsbereder. Avtrekksventil plassert i himling.
Teknisk/VVS
- Synlige vannrør av typen rør-i-rør-system og kobberrør
- Synlige avløpsrør av plast og støpejern
- Hovedstoppekran til leiligheten er plassert bak inspeksjonsluke i gangen med stakeluke og vannmåler
- Fordelerskap med fordelerstammer til typen rør-i-rør-system er plassert under benkeplate på vaskerommet
- Varmtvannsbereder fra 2009 (200L) er plassert i vaskerommet
- Mekanisk avtrekk på kjøkken, vaskerom og begge badene
Vegger: Malt strie, fliser
Gulv: Parkett, laminat, fliser
Himling: Malte slette flater, malt betong
Annet fast inventar
- Røykvarsler
- Skyvedørsgarderobe på soverom 1
- Garderobeskap på soverom 2 og 3
- Utebelysning, stikkontakt, elektriske markiser og utvendig screens
- Callinganlegg
- Klargjort for å videreføring rør-i-rør system til kjøkken
Løsøre og tilbehør
Vi viser til liste fra Norges Eiendomsmeglerforbund som gjelder fra 01.01.2020 angående løsøre og tilbehør.
Oppvarming
Leiligheten er oppvarmet med elektrisitet, samt vedfyring i klebersteinsovn i stuen.
Gulvvarme i begge bad, stue og kjøkken.
Dersom beboelsesrom ikke har vegg- eller fastmonterte varmekilder ved visning, følger dette heller ikke med.
Sikringsskap
Sikringsskap med automatsikringer, overbelastningsvern og strømmåler er plassert i gangen.
Boligen har hovedsakelig skjult elektrisk anlegg med noe åpent.
Ferdigattest/brukstillatelse
Det foreligger ferdigattest på boligen, datert 24.10.1986. Denne kan fås ved henvendelse til megler.
Det er uvisst om det er gjort endringer etter at ferdigattest ble gitt, men selger opplyser at det ikke er foretatt endringer i selgers eiertid.
Tinglyste heftelser og rettigheter
Leiligheten overdras fri for pengeheftelser med unntak av:
Dagboknr 14372, tinglyst 01.12.1986, type heftelse: Pantsettelseserklæring til boligsameiet
Sameiet har legalpant for krav mot sameieren som følger av sameieforholdet iht. eierseksjonsloven § 31. Pantet er begrenset oppad til 2G, (G = folketrygdens grunnbeløp).
I tillegg har sameiet tinglyst panterett som nevnt over.
Det er tinglyst følgende servitutter på sameiets eiendom.
01.12.1986 - Dokumentnr: 14372 - Erklæring/avtale
Bestemmelse om anlegg og vedlikehold av ledninger m.v.
Forklaring: Rett for Nesodden kommune, televerket, energiverket og antenneselskap til å til oppføring og vedlikehold av rør og ledninger på sameiets eiendom.
Servituttene vil følge eiendommen. Kjøpers bank vil få prioritet etter ovennevnte heftelser og servitutter.
Eventuell adgang til utleie
Leiligheten kan leies ut såfremt leiligheten har forsvarlige radonverdier. Leietaker må følge sameiets vedtekter og ordensregler på lik linje som eier.
Det er foretatt måling av radon og det dokumenteres at verdiene er innenfor statens anbefalte grenseverdi.
Diverse
Tilbud av produkter og tjenester fra våre samarbeidspartnere
VI er opptatt av verdiskapning, og har knyttet til oss samarbeidspartnere som skal sikre våre kunder de beste produkter og tjenester;
• Gjensidige leverer boligselgerforsikring og tilbyr bygningsforsikring
• Boligkjøperforsikring levers av Hiscox og med Sedgwick som skadebehandler, og er formidlet gjennom Gjensidige.
• BN bank tilbyr finansieringsløsninger
• Vår avdeling Krogsveen Pluss tilbyr flyttetjenester som utvask, visningsvask, lager, tømming og transport av flyttelass, i tillegg til å formidle kontakt med Flip for overflateoppussing.
• I forbindelse med overtagelse av eiendommen tilbyr Overo avtale om strøm, alarm og bredbånd.
• Krogsveen er, sammen med øvrige bransjeaktører, medeier i den digitale annonseringsplattformen Hjem.
Beliggenhet og tomteforhold
Beliggenhet og tomteforhold
Beliggenhet
Leiligheten ligger i et attraktivt og etablert boligområde på Bjørnemyr på Nesoddens vestside. Boligen ligger høyt og solrikt til med fantastisk utsikt mot Askerlandet og Oslofjorden.
Eiendommen har gangavstand til flere dagligvareforretninger, barne- og ungdomsskole. samt flere kommunale og private barnehager i nærområdet. Kjøpesenter og kommunesenter på Tangen med forretninger og de fleste servicetilbud.
Kort vei til populær badestrand på Alværn med sandstrand, svaberg og gressletter. Gangavstand til fine turområder i Nesoddmarka med turstier, lysløype og skiløyper ved snø vintertid.
Det finnes gode muligheter for sportslige aktiviteter i området med bl.a. friidrettsbane, fotballbaner og liten slalåmbakke. Bjørnemyrhallen er Nesoddens største flerbrukshall og ligger ved Bjørnemyr skole. I tillegg ligger Berger Idrettsanlegg en kort sykkeltur gjennom skogen/kjøretur unna.
Her har du Østlandets beste og mest stabile kollektivtrafikk. Her tar vi buss for buss og båt for båt, og er alltid sikret å komme på jobb i rett tid. Så kan du bruke tiden på en podcast, en god bok eller å slappe av mellom jobb og hjem istedenfor å stresse over å ikke rekke det du skal.
Nærmeste bussholdeplass er To Vest som ligger ca. 600 meter fra boligen. Fra Nesoddtangen brygge tar båten deg til Lysaker på ca. 9 min og til Aker brygge på ca. 23 minutter. Ved å benytte bil tar det ca. 10 min til Nesoddtangen, 30 min. til Vinterbro Senter, 30 min. til Drøbak, 40 min. til Ski og 50 min. til Oslo S.
Adkomst
Ta av ved Nesset og følg Fv156 mot Nesoddtangen. Ta til venstre i rundkjøringen ved Nesodden kirke og følg veien over til Fjellstrand. Ta til høyre i Fjellstrandkrysset og følg Fv157 nordover. Ta inn Bjørnelia på venstre side og følg denne over i Bjørneskrenten. Følg Bjørneskrenten inn til venstre. Eiendommen ligger på høyre hånd. Det vil bli skiltet med Krogsveen visningsskilt ved fellesvisninger. Se også google maps - det er enkelt å finne frem i kartet.
Barnehager, skoler og fritid
Gangavstand til barnehager, barneskole på Bjørnemyr og ungdomsskole på Alværn. Det er Steinerskole ved Skoklefall og videregående ved Hellvik/Berger. Informasjon om tilhørende skolekretser er hentet fra Prognosesenteret som dataleverandør og tilhørigheten kan årlig endres av kommunen. Dersom skole- og barnehagetilbud er av betydning for kjøpet, ber vi om at det rettes en særskilt henvendelse til kommunen for oppdatert informasjon.
Beskrivelse av tomt
Eiet tomt på 12.879,8 kvm som tilhører sameiet. Felleseiendommen har en høy og solrik beliggenhet med vidstrakt utsikt over Oslofjorden, innseilingen til Oslo og over mot Askerlandet. Den velstelte fellestomten er kupert, skrånende mot vest, og pent opparbeidet med plenarealer, prydbusker og beplantninger. Det er asfaltert adkomstvei og internveier, samt felles lekeplass med sandkasse.
Parkering
Leiligheten disponerer en biloppstillingsplass (nr. 203) i felles garasjeanlegg med el-bil lader og elektrisk portåpner.
Vei, vann og avløp
Eiendommen har adkomst via kommunal vei.
Eiendommen er tilknyttet kommunalt ledningsnett via private stikkledninger. Sameiet er ansvarlig for private stikkledninger til bygningen.
Regulerings-og arealplaner
Eiendommen er regulert til boliger, gang-/sykkelvei, kjørevei, fellesområde. felles gangareal i henhold til reguleringsplan Bjørneskrenten datert 13.01.1984 med tilhørende reguleringsbestemmelser.
Eiendommen er avsatt til boligbebyggelse og LNRF i kommuneplan for 2022-2046.
Reguleringsplaner under arbeid i nærheten (500 meter):
Id 20240232
Navn: Detaljregulering for Sunnaas felt BB1
Status: Planlegging igangsatt
Plantype: Detaljregulering
Utsnitt av plan med tilhørende bestemmelser kan fås ved henvendelse til megler.
Områdeanalyse megler har mottatt viser:
- Radon: Eiendommen ligger i et område med høy aktsomhet for radon.
Økonomi
Økonomi
Boligens kostnader
Kommunale avgifter er kr 19 835,- for 2024. I dette inngår gebyr for vann, avløp, renovasjon og feiing/tilsyn. Vann og avløp faktureres etter forbruk.
Fellesutgiftene er kr 5 500,-/md. og inkluderer: Felles byggforsikring, basispakker fra kabel-tv og internett fra Telenor (Tv-tuner/dekoder medfølger), snømåking foruten inngangspartiet, utvendig vedlikehold (bl.a. av vinduer og dører og membran på terrasser etter prioritert rekkefølge), drift/forretningsførsel, nedbetaling av fellesgjeld.
Pliktig medlemskap i Bjørneskrenten vel er kr. 6 000,-/år og inkluderer garasjeplass.
Vedlikehold: kr. 2 000,00
Avdrag: kr. 525,00
Renter: kr. 800,00
Kabel-tv/internett: kr. 595,-
Felleskostnader: kr. 1 580,-
Nåværende eier har et strømforbruk som tilsvarer ca. kr 20 000,-/år (16 000 kwh/år)
Utgiftene er basert på nåværende eiers forbruk. Kjøper må selv tegne innboforsikring.
Formuesverdi
Formuesverdi for 2023 var kr 1 532 024,- ifølge skatteetaten. Beløpet forutsetter at eier bor fast i boligen (primærbolig).
Ved eventuell øvrig bruk av eiendommen (f.eks. fritidsbolig, pendlerbolig, utleieobjekt) var formuesverdien for 2023 kr 6 128 094,-.
Formuesverdien justeres normalt årlig. Se skatteetaten.no for mer informasjon om fastsettelse av formuesverdien.
Eiendomsskatt
Det er p.t ikke vedtatt eiendomsskatt for eiendommer i kommunen.
Opplysninger om fellesgjeld
Andel formue er kr 50 197,- pr. 31.12.2024
Andel fellesgjeld er kr 118 461,- pr. 29.07.2025
Total fellesgjeld for sameiet er kr 4 975 452,- pr. 29.07.2025 og lånevilkårene er:
Bank: Dnb Bank Asa
Lånenr.: 12131606328
Lånetype: Annuitetslån
Rentesats: 6,80%
Restsaldo: 4 975 452,87
Innfrielsesdato: 30.12.2036
Type rente: Flytende rente
Terminer i året: 4
Omkostninger
7 150 000,00 Prisantydning
118 461,00 Andel av fellesgjeld
--------------------------------------------------------
7 268 461,00 Pris inkl. fellesgjeld
Omkostninger
181 700,00 Dokumentavgift til staten (2,5% av kjøpesum)
9 950,00 Gjensidige Boligkjøperpakke (valgfri)* (valgfritt)
545,00 Tinglysing panterettsdokument
545,00 Tinglysing skjøte
--------------------------------------------------------
182 790,00 (Omkostninger totalt (uten Gjensidige Boligkjøperpakke (valgfri)))
192 740,00 Omkostninger totalt (med Gjensidige Boligkjøperpakke (valgfri)))
--------------------------------------------------------
7 451 251,00 Totalpris inkl. omkostninger
7 461 201,00 Totalpris inkl. omkostninger (med Gjensidige Boligkjøperpakke (valgfri))
--------------------------------------------------------
Dersom sameiet har fellesgjeld, vil leilighetens andel av fellesgjelden komme i tillegg til kjøpesummen. Denne gjelden skal ikke innbetales i oppgjøret, men følger leiligheten.
Totalpris inkl. omkostninger forutsetter kjøp til prisantydning.
Det tas forbehold om endringer i avgifter og gebyrer.
Tilbud om lånefinansiering
Megler formidler gjerne kontakt med rådgiver hos vår samarbeidspartner BN Bank. De har konkurransedyktige betingelser samt rask og løsningsorientert behandling av din lånesøknad. Krogsveen mottar et honorar for denne formidlingen.
Betalingsbetingelser
Kjøpesum inkludert omkostninger, samt pantedokument tilknyttet eventuelt lån, skal være disponibelt hos megler 2 virkedager før overtagelsen.
Annen viktig informasjon
Annen viktig informasjon
Eier
Knut Vidar Johansen og Synve Holm Johansen
Informasjon om sameiet
Eiendommen er seksjonert, og leiligheten er tilknyttet Bjørneskrenten Terrassesameie.
Sameiet består av 42 leiligheter og ingen næringsseksjoner.
Forretningsfører er OBOS Eiendomsforvaltning AS
Dugnad og trappevask må påregnes.
Dyrehold er tillatt så lenge dette ikke er til ulempe for de øvrige brukerne av eiendommen. Se også husordensregler.
Sameiet har utarbeidet en 5-årig vedlikeholdsplan. Vedlikeholdsplanen er rullerende.
1. Utvendige dører og vinduer dekkes av sameiet ved behov og er vedtektsfestet.
2. Sameiet skal bekoste totalrenovering av terrassen i 2026/2027. De vil da fjerne fliser og legge ny membran med Proxy dekke på toppen. Hvis det er ønske om sluttfinish på dette, må dette bekostes av sameier.
3. Hver seksjonseier i terrassesameiet har rett og plikt til å være medlem av Velforeningen. Bjørneskrenten Vel: Organisasjonsnummeret er 985 687 692. Det er eiere i 3 sameier samt en del eneboliger som er medlemmer av Bjørneskrenten Vel.
Leiligheten eier 1/79 av vellets eiendom og har en plass i garasjehuset.
Bjørneskrenten Vel har gjennomført omfattende renoveringsarbeider i garasjehuset som består av 62 plasser, anlegget ble ferdigstilt desember 2025, dette er bekostet av selger.
Det er besluttet å gjennomføre renovering av to garasjerekker med totalt 17 plasser. Endelig pris og fremdriftsplan legges frem på årsmøtet i april/mai 2026, kjøper må påregne en kostnad på ca. 50.000,-.
Kostnader som tilkommer etter overtakelse dekkes av kjøper.
Iht. sameiets vedtekter må kjøper godkjennes av styret som ny sameier. Det er kjøpers ansvar at styregodkjenning blir gitt, men styret kan ikke nekte godkjenning uten saklig grunn.
Vi gjør videre oppmerksom på at det iht. eierseksjonsloven ikke er anledning å erverve mer enn 2 seksjoner i sameiet.
I tillegg følger det av sameiets vedtekter at juridiske personer (selskaper) ikke kan eie seksjoner i sameiet.
Dokumenter for sameiet og kopi av seksjonsbegjæringen kan fås ved henvendelse til megler.
Informasjon om forkjøpsrett
Det praktiseres ikke forkjøpsrett.
Overtakelse
Etter nærmere avtale.
Boligselgerforsikring
Selger har i forbindelse med salget tegnet boligselgerforsikring levert av Gjensidige.
Boligselgerforsikringen dekker selgers ansvar etter avhendingsloven begrenset oppad til kr 14 millioner. Dersom kjøper oppdager forhold ved eiendommen som hen mener utgjør en mangel ved eiendommen, vil Gjensidige behandle reklamasjonen på vegne av selger. Forsikringsvilkår kan fås ved henvendelse til megler.
Vedlagt salgsoppgaven følger selgers egenerklæringsskjema og tilstandsrapport. Interessenter må sette seg inn i dokumentene før bud inngis.
Boligkjøperforsikring
Innen kontraktsmøtet må kjøper ta stilling til om det ønskes å bestille Boligkjøperpakken gjennom Gjensidige. I denne gunstige pakken er boligen ferdig forsikret og inkluderer rettshjelpsforsikring, også kalt Boligkjøperforsikring. Rettshjelpsforsikring gir trygghet og tilgang på profesjonell juridisk hjelp dersom det oppdages uventede feil eller mangler det første året etter overtagelse. Forsikringsselskapet behandler i så fall ethvert mangelskrav kjøper måtte ha overfor selger.
Boligkjøperpakken inkluderer bygningsforsikring for hus og hytte, innboforsikring, flytteforsikring og dobbel rentedekning - i situasjoner hvor kjøper ikke får solgt nåværende primærbolig.
Kjøper mottar ingen særskilt faktura for Boligkjøperpakken da kostnaden det første året legges til kjøpesummen for boligen. Det gjøres oppmerksom på Krogsveen mottar et honorar for denne formidlingen.
Produktark for Boligkjøperpakken ligger vedlagt i salgsoppgaven.
Dersom ikke boligkjøperpakke ønskes kan kun rettshjelpsforsikring, også kalt boligkjøperforsikring, tegnes særskilt via megler. Rettshjelpsforsikringen varer i 5 år fra overtagelse og leveres gjennom Gjensidige. Ta kontakt med megler for ytterligere informasjon.
Selskap og privatpersoner som driver med kjøp/salg/utvikling som ledd i egen næringsvirksomhet kan ikke tegne boligkjøperpakke eller rettshjelpsforsikring.
Budgivning
Forbrukerinformasjon om budgivning er vedlagt denne salgsoppgaven og er også på vår hjemmeside Krogsveen.no. Alle bud og budforhøyelser må inngis skriftlig. I tillegg må legitimasjon være fremlagt sammen med signatur fra budgiver.
Vi oppfordrer til å gi bud elektronisk via GI BUD-knappen på eiendommens hjemmeside på Krogsveen.no. Da vil samtlige vilkår bli oppfylt.
Eventuelle forhøyelser eller endringer av budet kan bekreftes pr SMS eller på e-post. Vi oppfordrer alltid til å kontakte megler pr. telefon i tillegg da forsinkelser i SMS og e-post kan forekomme.
For at budene skal kunne bli behandlet og videreformidlet skriftlig til alle involverte parter, må alle bud ha en tilstrekkelig lang akseptfrist, jf. eiendomsmeglingsforskriften § 6-3.
Selger må også skriftlig akseptere budet før aksept kan formidles til budgiver. Akseptfrist bør derfor være på minimum 30 minutter, og budforhøyelser må derfor skje i god tid før fristens utløp.
Bud i forbrukerforhold kan uansett ikke settes med kortere frist enn kl. 12.00 første virkedag etter siste annonserte visning. I tillegg kan ikke budet ha forbehold om at det skal holdes hemmelig ovenfor øvrige interessenter. Megler har iht lov om eiendomsmegling ikke anledning til å videreformidle disse budene, og de vil dermed heller ikke bli journalført.
Etter at eiendommen er solgt vil kjøper og selger få tilsendt budjournal. Øvrige budgivere kan få utlevert kopi av budjournalen i anonymisert form.
Hvitvaskingsreglene
I henhold til lov om hvitvasking og terrorfinansiering har megler plikt til å gjennomføre kontrolltiltak overfor kunder, herunder fullmektiger. Dette innebærer bl.a. å bekrefte kunders og reelle rettighetshaveres identitet på bakgrunn av fremvist gyldig legitimasjon eller på annen godkjent måte, samt å innhente opplysninger om kundeforholdets formål og tilsiktede art.
Dersom slike kundetiltak ikke kan gjennomføres, kan megler ikke etablere kundeforholdet eller utføre transaksjonen.
Hvis kjøper ikke bidrar til gjennomføring av kundekontrollen og dette fører til at transaksjonen blir forsinket eller ikke kan gjennomføres, vil dette ansees som mislighold av avtalen og gi selger rettigheter etter avhendingslova kapittel 5. I tilfeller der selger ikke bidrar til gjennomføring av løpende kundekontroll underveis i oppdraget, er det selger som misligholder sine forpliktelser etter avtalen og gi kjøper rettigheter etter avhendingslovens kapittel 4. Partene er selv ansvarlige for eventuelle kostnader og ansvar dette kan medføre. Eiendomsmegleren eller eiendomsmeglingsforetaket kan ikke holdes ansvarlig for de konsekvenser dette vil kunne få for partene eller andre som har interesser i eiendomshandelen.
Kjøper oppfordres til å innbetale kjøpesummen som ikke kommer fra låneinstitusjon i én samlet innbetaling fra egen konto i norsk bank. Megler har plikt til å melde fra til Økokrim om eiendomshandler som fremstår som mistenkelige. Melding sendes Økokrim uten at partene varsles.
Personopplysningsloven
I henhold til personopplysningsloven gjør vi oppmerksom på at interessenter kan bli registrert for videre oppfølging.
Lovanvendelse
Generelle bestemmelser
Salgsoppgaven er basert på de opplysningene selger har gitt til megler, den bygningssakyndiges tilstandsrapport, samt opplysninger innhentet fra kommunen, Kartverket og andre tilgjengelige kilder. Det er viktig at kjøper setter seg grundig inn i alle salgsdokumentene, herunder salgsoppgave, tilstandsrapport og selgers egenerklæring. Kjøper anses kjent med forhold som er tydelig beskrevet i salgsdokumentene, og slike forhold kan ikke påberopes som mangler. Dette gjelder uavhengig av om kjøper har lest dokumentene. Alle interessenter oppfordres til å undersøke eiendommen nøye, gjerne sammen med fagkyndig før bud inngis. Kjøper som velger å kjøpe usett kan ikke gjøre gjeldende som mangel noe han burde blitt kjent med ved undersøkelsen.
Dersom det er behov for avklaringer, anbefaler vi at interessenter rådfører seg med eiendomsmegler eller egne rådgivere før det legges inn bud.
En bolig som har blitt brukt i en viss tid, har vanligvis blitt utsatt for slitasje og skader kan ha oppstått. Slik bruksslitasje må kjøper regne med, og det kan avdekkes enkelte forhold etter overtakelse som nødvendiggjør utbedringer. Normal slitasje og skader som nødvendiggjør utbedring, er innenfor hva kjøper må forvente og vil ikke utgjøre en mangel.
Kjøper og selgers rettigheter og plikter reguleres av avtalen mellom partene, samt informasjonen som har vært tilgjengelig for kjøperen i forbindelse med handelen. Avtalen utfylles av avhendingsloven, og det gjelder ulike avtalevilkår avhengig av om kjøper er forbrukerkjøper eller ikke. Dette er nærmere beskrevet nedenfor.
På grunn av ulike avtalevilkår kan selger vurdere bud fra en som ikke er forbruker, ulikt fra en forbrukers bud. Dersom kjøper ikke er forbruker, er selger sitt mulige mangelsansvar begrenset fordi eiendommen selges "som den er". Selger kan ikke ta «som den er»- forbehold overfor en forbrukerkjøper. Selv et lavere bud fra en som ikke er forbruker kan foretrekkes fordi begrensningen i mulig mangelsansvar kan ha egenverdi for selger. Selger står fritt til å forkaste eller akseptere ethvert bud, og er for eksempel ikke forpliktet til å akseptere høyeste bud.
Budgiver skal i budskjema avgi egenerklæring om budgiver er forbruker eller næringsdrivende/ person som hovedsakelig handler som ledd i næringsvirksomhet. Budgivere får informasjon dersom andre bud er inngitt av en som ikke er forbruker.
Forbrukerkjøp - definisjon
Med forbrukerkjøp menes kjøp av eiendom når kjøperen er en fysisk person som ikke hovedsakelig handler som ledd i næringsvirksomhet.
Forbruker – avtalevilkår
Eiendommen har en mangel dersom den ikke er i samsvar med kravene som følger av avtalen, eller det foreligger brudd på bestemmelsene i avhendingsloven §§ 3-2 til 3-8. Hvis eiendommen ikke er i samsvar med det kjøperen må kunne forvente ut ifra alder, type og synlig tilstand, kan det være grunnlag for mangelskrav. Det samme gjelder hvis det er holdt tilbake eller gitt uriktige opplysninger om eiendommen. Dette gjelder likevel bare dersom man kan gå ut ifra at det virket inn på avtalen at opplysningen ikke ble gitt eller at mangelskravet ikke blir rettet i tide på en tydelig måte.
Boligen kan ha en mangel etter avhendingsloven § 3-3 andre ledd, dersom det er avvik mellom opplyst og faktisk innvendig areal, forutsatt at avviket er på 2% eller mer og minimum 1 kvm.
Ved beregning av et eventuelt prisavslag eller erstatning må kjøper selv dekke tap/kostnader opptil et beløp på kr 10 000 (egenandel).
Ikke-forbruker (næringsdrivende) – definisjon
Hvis kjøper er en juridisk person, eller en fysisk person som hovedsakelig handler som ledd i næringsvirksomhet, vil kjøpet ikke anses som et forbrukerkjøp.
Ikke-forbruker – avtalevilkår
Eiendommen har en mangel dersom den ikke er i samsvar med kravene som følger av avtalen.
Eiendommen selges «som den er», og selgers ansvar utover det konkret avtalte er da begrenset etter avhendingsloven § 3-9, første ledd andre setning.
Avhendingsloven § 3-3 andre ledd fravikes, og hvorvidt boligens arealsvikt utgjør en mangel vurderes etter avhendingsloven § 3-8.
Informasjon om kjøpers undersøkelsesplikt, herunder oppfordringen om å undersøke eiendommen nøye, gjelder også for kjøpere som ikke anses som forbrukere.
Det forutsettes at hjemmel overføres til kjøper. Hvis kjøper ikke ønsker hjemmelsoverføring av eiendommen, må det tas forbehold om dette i budet.
Meglers vederlag
Meglers vederlag betales av selger og er avtalt til:
Vederlag: 1% av salgssummen inkl. eventuell fellesgjeld.
Minimumsvederlag: kr 60.000,-
Tilrettelegging: fra kr 17.000,-
Oppgjør: kr 7.500,-
Markedspakke: kr 27.400,-
Visninger: kr 3.500,- pr. visning
Oppslag eiendomsregister: kr 2.900,-
Megler har i tillegg krav på dekning av utlegg:
Innhenting av dokumenter/servitutter fra grunnboken: kr 240,-/stk
Eierskiftegebyr forretningsfører: kr 6 570,-
Innhenting av informasjon forretningsfører: kr 4 038,-
Innhenting av offentlig opplysninger Nesodden: kr 5 175,-
Tinglysing sikring: kr 545,-
Boligselgerforsikring inkl. tilstandsrapport Anticimex: kr 43 292,-
Foto: kr 5 000,-
Opplysninger om oppdraget
Oppdragsnummer 51-0040/25
Eiendomsmegler Krogsveen AS, avd. Nesodden
Vestveien 51, Tangen Center, 1452, NESODDTANGEN
950 007 613
Oppdragets KR-kode KR51.2540
Dato
Sist oppdatert: 13. april 2026 kl. 15:48
Dokumenter
Dokumenter
PDF – 1015 KB
PDF – 747 KB
PDF – 546 KB
PDF – 312 KB
PDF – 29 KB
PDF – 127 KB
PDF – 392 KB
Område
Legg til steder som er viktige for deg
Visning
Ta kontakt med megler for avtale om privatvisning.
Ønsker du kun å bli holdt orientert, kan du fra eiendommens hjemmeside få varsel om solgtpris, eller kontakte megler.
Lurer du på noe?
Unngå doble boligrenter
Vi tilbyr gunstig forsikring.
Vurderer du utleie?
Få et tilbud fra Utleie KrogsveenHva koster lånet?
Sjekk estimert lånekostnadVil du varsles om lignende boliger?
Ved å lagre ditt boligsøk hos oss får du beskjed når vi har en bolig som ligner denne, før den legges ut på markedet!







































