Smidsrødveien 66B
4 990 000 kr
231 m²
3 soverom
Solgt

Teie/Smidsrød
Pen og innholdsrik enebolig beliggende høyt med utsikt! Sentralt med kort vei til alt.
Prisantydning
4 990 000 krOmkostninger
145 740 krTotalpris
5 135 740 kr
Pris
Bruksareal
261 m²BRA-I (internt bruksareal)
231 m²BRA-E (eksternt bruksareal)
30 m²TBA (terrasse-balkongareal)
13 m²
Areal
Byggeår
1977Soverom
3 soveromBad
3 badTomteareal
933 m² (eiet)Type
Enebolig - FrittliggendeEierform
EietFasiliteter
Garasje/P-plass og Balkong/TerrasseEnergimerke
Gul F
Nøkkelinfo
Unngå doble boligrenter
Vi tilbyr gunstig forsikring.
Vurderer du utleie?
Få et tilbud fra Utleie KrogsveenHva koster lånet?
Sjekk estimert lånekostnadBeskrivelse
Kort om eiendommen
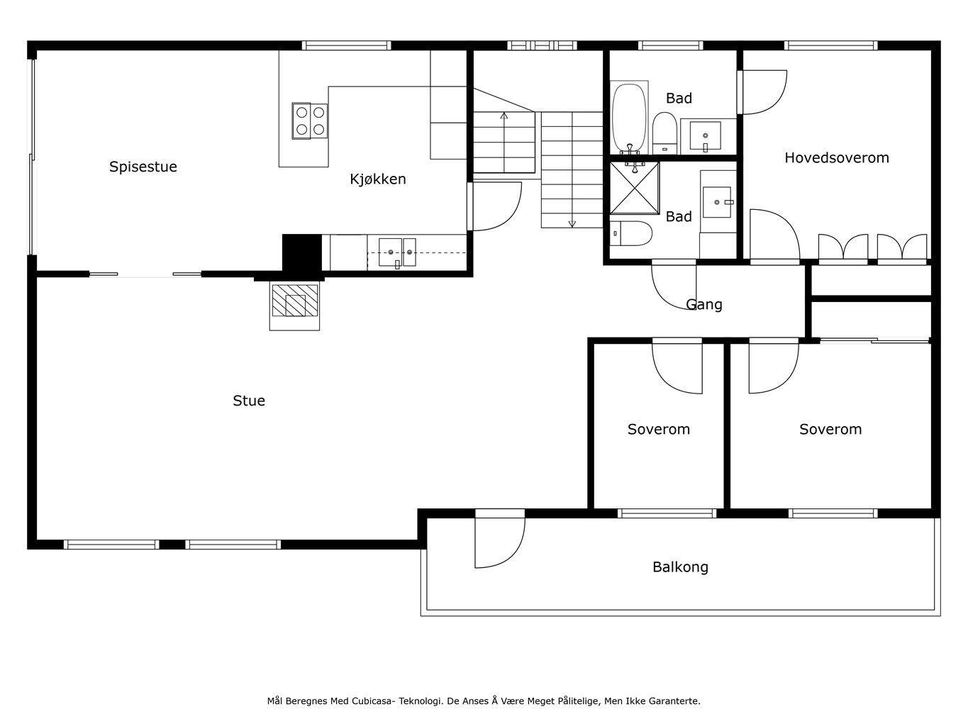
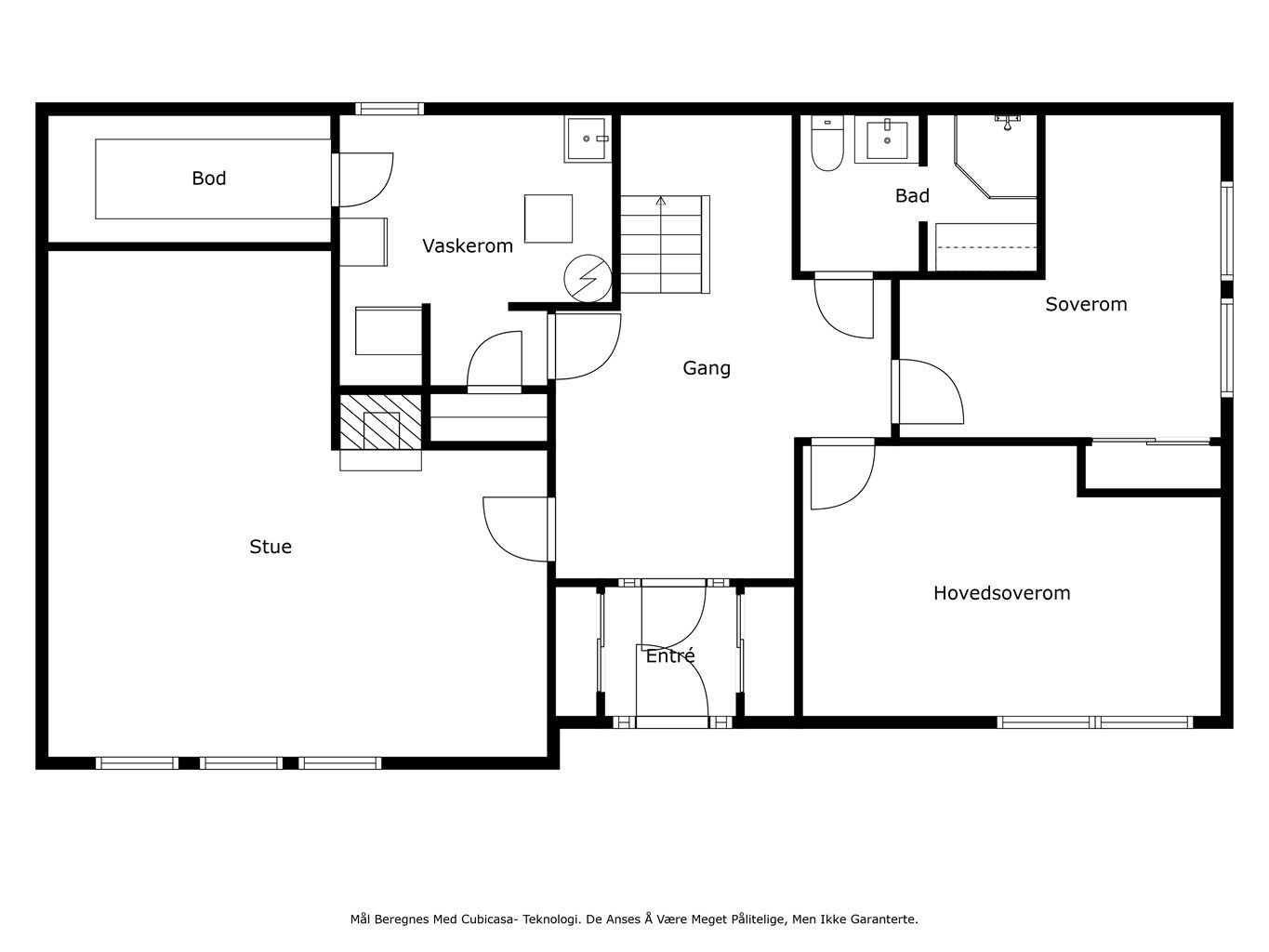
Denne boligen fremstår som velholdt, lys og pen og går over to plan samt dobbel garasje på egen parsell. Tomten er skrånende og har svært gode solforhold og ligger høyt med utsikt. Boligen inneholder entré/gang, peisestue, vaskerom, tre bad, fem soverom (2 av de er ikke bruksendret fra tilleggsdel til hoveddel), kjøkken med spiseplass og romslig stue med adkomst til balkong. Beliggende meget sentralt til på Teie/Smidsrød, men samtidig tilbaketrukket inn i en privat stikkvei. Her er det kort vei til dagligvareforretning, Teie torv, barnehage, skole, bussholdeplass, Rosanes med park, lekeplass, båthavn og badeplass m.m Kun 7 minutter kjøring til Tønsberg sentrum med alt av fasiliteter.
Velkommen til visning!
Område
Legg til steder som er viktige for deg
På flyttefot? Tenk kjøp og salg samtidig.
Få din egen rådgiver gjennom hele kjøps- og salgsprosessen. Det starter med en verdivurdering.
Unngå doble boligrenter
Vi tilbyr gunstig forsikring.
Vurderer du utleie?
Få et tilbud fra Utleie KrogsveenHva koster lånet?
Sjekk estimert lånekostnadVil du varsles om lignende boliger?
Ved å lagre ditt boligsøk hos oss får du beskjed når vi har en bolig som ligner denne, før den legges ut på markedet!

