Råkvågveien 285
1 250 000 kr
59 m²
2 soverom
Solgt

Råkvåg
Enebolig på landlig tomt i frodige kystomgivelser. Garasje m/anneks. Innglasset veranda. Ingen boplikt.
Prisantydning
1 250 000 krOmkostninger
52 240 krTotalpris
1 302 240 kr
Pris
Bruksareal
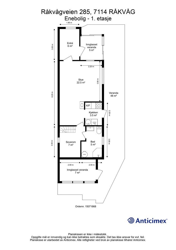
94 m²BRA-I (internt bruksareal)
59 m²BRA-E (eksternt bruksareal)
35 m²TBA (terrasse-balkongareal)
53 m²
Areal
Soverom
2 soveromBad
1 badTomteareal
1 232 m² (eiet)Type
Enebolig - FrittliggendeEierform
EietFasiliteter
Garasje/P-plass og Balkong/TerrasseEnergimerke
Gul F
Nøkkelinfo
Unngå doble boligrenter
Vi tilbyr gunstig forsikring.
Vurderer du utleie?
Få et tilbud fra Utleie KrogsveenHva koster lånet?
Sjekk estimert lånekostnadBeskrivelse
Kort om eiendommen
Eiendommen ligger i vakre, rolige og landlige omgivelser ved kysten. Tomta har både hage og skogsterreng, og boligen har høy beliggenhet i terrenget med fint utsyn over landskapet. Et rikt fugle- og dyreliv kommer tett på eiendommen gjennom hele året, og på grunn av boligens høye beliggenhet i terrenget oppleves ikke trafikken sjenerende.
Boligen ble oppført på 50-tallet og er siden både utvidet og modernisert. I etasjen over garasjen er det oppført et anneks på ca. 17 kvm, og to vinterhager (ikke omsøkt/byggegodkjent) på hver sin side av huset er med på å forlenge sommerhalvåret.
Tomta har god parkeringsplass i tillegg til garasjerommet. Den solrike hagen er plantet med både urter, ramsløk, pæretre og bærbusker, og i tillegg byr den på villjordbær samt god plass til lek og utfoldelse.
Område
Legg til steder som er viktige for deg
På flyttefot? Tenk kjøp og salg samtidig.
Få din egen rådgiver gjennom hele kjøps- og salgsprosessen. Det starter med en verdivurdering.
Unngå doble boligrenter
Vi tilbyr gunstig forsikring.
Vurderer du utleie?
Få et tilbud fra Utleie KrogsveenHva koster lånet?
Sjekk estimert lånekostnadVil du varsles om lignende boliger?
Ved å lagre ditt boligsøk hos oss får du beskjed når vi har en bolig som ligner denne, før den legges ut på markedet!

