Røysiåsen 42B
7 990 000 kr
375 m²
4 soverom
Komplett salgsoppgave
Ærverdig villa med historiske detaljer og unike kvaliteter | Garasje på 105 m2 | Fantastisk tomt med gode solforhold |
Prisantydning
7 990 000 krOmkostninger
220 740 krTotalpris
8 210 740 kr
Pris
Bruksareal
526 m²BRA-I (internt bruksareal)
375 m²BRA-E (eksternt bruksareal)
151 m²TBA (terrasse-balkongareal)
137 m²
Areal
Etasje
3Byggeår
1840Soverom
4 soveromBad
2 badTomteareal
1 959 m² (eiet)Type
Enebolig - FrittliggendeEierform
EietFasiliteter
Garasje/P-plass og Balkong/TerrasseEnergimerke
Oransje G
Nøkkelinfo
Unngå doble boligrenter
Vi tilbyr gunstig forsikring.
Vurderer du utleie?
Få et tilbud fra Utleie KrogsveenHva koster lånet?
Sjekk estimert lånekostnadBeskrivelse
Kort om eiendommen
Røysiåsen 42B er en eiendom med historie. Den har et stort våningshus, som er meget godt vedlikeholdt, der alle rom er pusset opp og oppgradert. Huset har særpreg med originale overflater på vegger og tak som flyter godt med boligens estetikk. Usjenert tomt på nesten 2 mål og sol hele dagen. Eiendommen har en flott hage med stor plen, diverse beplanting og fine uteområder på terrasse og platting, samt en stor garasje og et stabbur.
Boligen er meget innholdsrik med en romslig entré og et flott inngangsparti . Kjøkkenet har god plass til sittegrupper. Boligen har også en storstue med god plass til mange, perfekt til selskap. I boligens 2. etasje er det fire soverom, to TV-stuer og et fantastisk bad fra 2019. I boligens kjeller finner man et bad og vaskerom fra 2018, samt bod.
Velkommen!
Innhold og byggemåte
Innhold og byggemåte
Eiendommen
Røysiåsen 42B, 2092 MINNESUND
Kommunenummer 3240, gårdsnummer 185, bruksnummer 28, ideell andel 1/1
Innhold
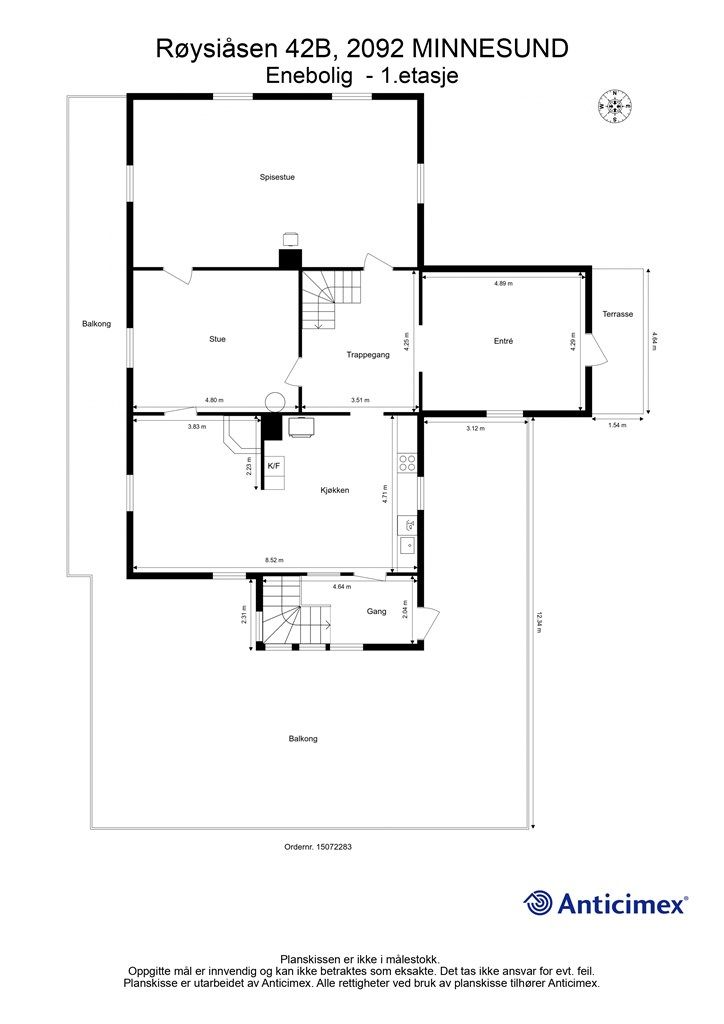
Totalt bruksareal BRA: 526 kvm
BRA-i:
Enebolig:
Kjeller: 24 kvm: Gang, bad, vaskerom
1. etasje 155 kvm: Entré, trappegang, kjøkken, spisestue, stue
2. etasje 151 kvm: Trappegang, stue, fire soverom, TV-stue, bad
3. etasje 45 kvm: Loftsboder
BRA-e:
Garasje:
1. etasje 105 kvm: Garasje
Stabbur:
1. etasje 31 kvm: Boder
2. etasje 15 kvm: Bod
Åpent areal:
Enebolig:
1. etasje 137 kvm: Balkong og terrasse
Loftsetasjen har et totalt gulvareal (GUA) på 69 kvm, men grunnet skråtak/lav takhøyde er kun 45 kvm av arealet måleverdig som bruksareal. De delene av arealene som har lav himlingshøyde (ALH) utgjør 24 kvm.
Kun deler av arealet i kjeller måleverdig som bruksareal. Arealet har et totalt gulvareal (GUA) på 40 kvm, men grunnet lav takhøyde er kun 24 kvm av arealet måleverdig som bruksareal. De delene av arealene som har lav himlingshøyde (ALH) utgjør 16 kvm.
Kun deler av arealet i 2.etasje stabbur er måleverdig som bruksareal. Arealet har et totalt gulvareal (GUA) på 31 kvm, men grunnet lav takhøyde er kun 15 kvm av arealet måleverdig som bruksareal. De delene av arealene som har lav himlingshøyde (ALH) utgjør 16 kvm.
Vedlagte plantegninger er ikke målbare. De oppgitte arealer er hentet fra rapport med befaringsdato utført av Anticimex AS. Arealene er beregnet og rom er definert etter dagens faktiske bruk, uavhengig av hva som er godkjent av bygningsmyndighetene.
Deler av badet er byggemeldt som soverom jf. byggetegninger, men endringen er ikke søknadspliktig. Se punkt om ferdigattest for ytterlig informasjon.
Byggemåte
Selger har fått utarbeidet en tilstandsrapport, dvs. en teknisk gjennomgang av boligen hvor eventuelle avvik, risiko for kjøper og prisoverslag for hva som bør gjøres av oppgradering, er skissert. Se særskilt TGIU (tilstandsgrad ikke undersøkt), samt TG2 og TG3 som viser hva som er boligens normale slitasje, alder og type, hva som er avvik fra dette og hva som bør/må utbedres. Rapporten og selgers egenerklæring er en del av salgsoppgaven og må leses nøye før bud inngis. Kjøper overtar ansvaret for de opplysninger som fremkommer av salgsdokumentasjonen, og kan ikke gjøre gjeldende som mangel noe som burde vært kjent eller som ikke kan anses å ha betydning for avtalen.
Bygningen er iht. tilstandsrapporten oppført med støpt gulv mot grunn og krypkjeller mot grunn. Grunnmur og bærende konstruksjoner av betong og sparesteinsmur. Yttervegger av bindingsverk og tømmer utvendig kledd med stående trepanel. Etasjeskillere av trekonstruksjoner og betong. Takkonstruksjoner av saltaksform utvendig tekket med takstein. Ytterdører av tre med to lagsglass fra 2013 og 2015. Vinduer med karmer av tre med to-lags glass fra 2015, 2016 og 2019. Les forøvrig mer om byggemåte og den tekniske tilstanden i rapporten.
Det gjøres spesielt oppmerksom på TG3:
Etasjeskiller - Loftsetasje :
- Skjevhetsmåling. Skjevhetsmåling utført i loftsbod 1 viser at forskjellen mellom høyeste og laveste punkt er målt til ca 44 mm. Skjevhetsmåling utført i loftsbod 2 viser at forskjellen mellom høyeste og laveste punkt er målt til ca 110 mm. Målingene er foretatt i en eldre bygning og bør ses i den sammenheng. Skjevheter er mer påregnelige i eldre bygninger enn i nye. Årsaken til skjevhetene er ikke vurdert.
Sjablongmessig prisanslag: kr 10 000 - 50 000,-
Følgende har fått TG2:
Våtrom - Vaskerom kjeller:
- Fallforhold (gulv). Nivåforskjell fra døråpning på topp overflate gulv og til hovedsluk er på tilfeldig sted målt til ca. 12 mm. Dette er vurdert til å ikke være tilfredsstillende mht lekkasjesikkerhet.
Øvrige rom:
- Overflater gulv: Det registreres stedvise riper/hakk/merker i gulvets overflatemateriale.
Krypekjeller:
- Helhetsvurdering: Krypekjelleren har ingen inspeksjonsmulighet. Konstruksjonen har erfaringsmessig vist seg skadeutsatt og derfor med høy risiko. Det anbefales sterkt å etablere inspeksjonsmulighet for å kunne besiktige arealet. Først da kan det få en faglig forsvarlig vurdering.
Loft - innredet:
- Statikk. Takets konstruksjoner har synlige nedbøyninger. Årsaken kan være underdimensjonering. Observasjonen er gjort i en eldre bygning, og kan ses i den sammenheng.
- Overflater gulv. Det registreres stedvise riper/hakk/merker i gulvets overflatemateriale.
- Konstruksjonsoppbygging. Konstruksjonen er lukket, og det er ikke kjent hvordan oppbyggingen er utført. Erfaringsmessig betraktes slike konstruksjoner som risikokonstruksjoner blant annet med tanke på fukt-/kondensproblematikk. Det er ikke observert skader eller symptomer på skader, men skader kan ikke utelukkes. Oppfølging med jevnlig ettersyn anbefales slik at tiltak kan iverksettes ved behov. TG2 er valgt for å belyse risiko.
Loft - uinnredet / råloft:
- Helhetsvurdering. Det er ikke tilkomst for inspeksjon av uinnredet loft. Det er ikke kjent hvordan oppbyggingen er utført. Erfaringsmessig betraktes slike konstruksjoner som risikokonstruksjoner blant annet med tanke på fukt-/kondensproblematikk. Det er ikke observert skader eller symptomer på skader, men skader kan ikke utelukkes. TG2 er valgt for å belyse skaderisiko/behov for tiltak.
Innvendige trapper:
- Innvendige trapper. Trappen har ikke håndløper på begge sider. Trappen er slitt/aldringspreget, men forholdet vurderes til å være av estetisk karakter.
Etasjeskiller - 1.etasje:
- Skjevhetsmåling. Skjevhetsmåling utført i spisestue viser at forskjellen mellom høyeste og laveste punkt er målt til ca 13 mm. Skjevhetsmåling utført i trappegang viser at forskjellen mellom høyeste og laveste punkt er målt til ca 15 mm.
Etasjeskiller - 2.etasje:
- Skjevhetsmåling. Skjevhetsmåling utført i trappegang viser at forskjellen mellom høyeste og laveste punkt er målt til ca 30 mm. Skjevhetsmåling utført i tv-stue viser at forskjellen mellom høyeste og laveste punkt er målt til ca 10 mm. Målingene er foretatt i en eldre bygning og bør ses i den sammenheng. Skjevheter er mer påregnelige i eldre bygninger enn i nye. Årsaken til skjevhetene er ikke vurdert.
Grunnmur, fundamenter:
- Grunnmur: Det registreres stedvise riss/sprekker på grunnmur. Eksakt årsak er ikke kjent. Krever oppfølging med jevnlig ettersyn. Sparesteinsmur fra byggeår har på grunn av høy alder mer behov for hyppigere vedlikehold.
Drenering:
- Fuktsikring av grunnmur. Det kan ikke verifiseres at grunnmuren har utvendig fuktsperre. Forholdet øker faren for fuktvandring i konstruksjoner under bakkenivå, og bør ses i sammenheng med opplysninger om alderen til dreneringen.
Stikkledninger og tanker:
- Vann- og avløpsledninger (ink. stikkledninger): Utvendige vann- og avløpsrør har en alder som tilsier at anbefalt brukstid er passert. Tiltak anbefales.
Boligen er godt vedlikeholdt og resterende punkter har dermed fått TG1
Se supplerende tekst i tilstandsrapporten om rommet/badet/bygningsdelen/skjevheten/sluket/fuktigheten/taket/det elektriske etc. Kjøper overtar ansvar og risiko for dette.
Selger opplyser videre:
- Bad og vaskerom i kjeller og bad i 2 etasje er pusset opp i hhv. 2018 og 2019. Da ble også membran/tettesjikt fornyet. Arbeidene er utført av Eidsvoll Mur & Flis, Sigvartsen Elektro, Vegheim rør-service.
- Det har blitt lagt opp nye rør-i-rør i hele huset i 2018 og 2019. Arbeidene er utført av Vegheim rør-service.
- Det er blitt installert ny varmtvannsbereder, utført av rørlegger Knut A. Stubergh
- Tidligere tømmerstokker med sopp/råteskader har blitt skiftet ut med nye i forbindelse med ny isolering og ny kledning av huset. Arbeidene er utført av av Eiendomsservice Øst AS. Og det er ny omramming rundt vinduer.
- Det er blitt etablert musetetting på bygget når det ble satt på ny kledning.
- I 2018 har det blitt montert snøfanger, fottekking av 2 stk piper, utbedret møne og mønekam, justert takstein for bedre overdekking, gjort i stand takfot. Arbeidene er utført av Eidsvoll Tak og Håndverkstjenester.
- Garasjen var tidligere en gammel låve. Den ble i 2019 ombygget til stor garasje, og i 2025 er det blitt etablert brannsikker vegg. Arbeidene er utført av Vestli interiør og maling AS, i tillegg til noe egeninnsats.
- Terrassen utvidet, gjort med egeninnsats og ved veiledning av faglært.
- Hele det elektriske anlegget var nytt i 2016, samt diverse el. arbeid i 2020. Dett elektriske anlegget på loftet er nytt i 2025. Arbeidene er utført av Sigvartsen Elektro. I tillegg ble det gjort tilknytning/forsterkning/omlegging av strømnettet av Hafslund Nett AS i 2016.
Standard
Velkommen hjem til en unik og historisk herskapsbolig bygget på ca. midten av 1800-tallet. Boligen har blitt godt tatt vare på, lekkert pusset opp med kombinasjon av gammelt og nytt, mens det
opprinnelige særpreget er tatt vare på som en rød tråd gjennom alle rom. Huset er godt vedlikeholdt, har særpreg og absolutt historisk verdi.
Entré og hall
Boligen har et flott og hyggelig inngangsparti med belegningsstein opp til en overbygd platting og inngangsdør. Inne venter en stor og pen entré med flislagt gulv med varmekabler. I entreen er det tapetserte veggflater og malte himlingsflater. Entreen er pusset opp i selgers eiertid, og har nå stilrene store fliser som passer godt inn i boligens estetikk. I denne entreen er det mer enn nok av plass til å henge fra seg yttertøy og innredningsløsninger.
Fra entreen kommer man videre til hall og trapperom. Veggflater og himlingsflater er originalt treverk, som er vedlikeholdt og malt i originale farger, og gulvflatene er av heltre. Disse detaljene er godt gjennomtenkt for å gi boligen sitt historiske særpreg.
Kjøkken
Kjøkkenet er husets hjerte og samlingspunkt. God plass til koselig sittebenk til morgenkaffen, samt god plass til et stort spisebord for hyggelige frokoster og rolige morgenstunder. Kjøkkenet har hatt overflatebehandling, med fliser på veggen, malte veggflater og gulv av heltre. Kjøkkeninnredningen har profilerte fronter som er malt i farger som står i stil med andre deler av huset, og benkeplate av heltre med nedfelt oppvaskkum med ett-greps armatur. Kjøkkenet har frittstående komfyr med keramisk platetopp og mekanisk kjøkkenventilator fra SMEG. Integrert oppvaskmaskin og frittstående kjøleskap med frysedel. På kjøkkenet har man peis, peisovn og en varmepumpe.
Det er kun de hvitevarene som er listet opp som følger med. Disse hvitevarene følger med: Kjøleskap og oppvaskmaskin.
Stue og storstue
Boligen har to stuer i første etasje. Man har adkomst til begge stuene direkte fra trapperom/gang, samt inngang direkte til kjøkkenet. Rommene er adskilt med profilerte dører som holder samme estetikk som resten av boligen med både stil og farger.
Storstuen er et stort rom med sjenerøs plass til stort spisebord med mange sitteplasser og er perfekt til selskaper.
Rommet er et åpent og helt nydelig oppholdsrom, med vakre detaljer og store, klassiske vinduer på begge sider av rommet. Dagslys og ekstra god takhøyde bidrar til en upåklagelig atmosfære. Det er meget god møbleringsfrihet i stuen, og her kan venner og familie samles for hyggelige middagsselskaper rundt et langbord med plass til hele hele storfamilien. Her kan også konfirmasjoner holdes for hele slekten. Originale veggflater, malt i pene farger som representerer husets alder og historie. Gulvflatene er av heltre og originale malte himlingsflater. I storstuen er det installert varmepumpe, samt at man har en peisovn for de ekstra kalde dagene.
Stuen mellom kjøkkenet og storstuen har tapetserte vegger og samme gulv og himlingsflater som de andre rommene i første etasje, samt enda en lekker og historisk peisovn.
Bad 2. etasje
Badet i 2. etasje er et stort og unikt bad som er nytt i 2019. Badet har flislagt gulv med varmekabler, veggene er kombinasjon av originale tømmervegger, flislagte vegger, og malte himlingsflater med downlights. Oppussingen er gjort på en måte som gjenspeiler husets historie og bærer preg av solide materialvalg, med en god plan og gjennomføring. Her har man et moderne og pent bad, som samtidig står i stil og passer inn i boligen.
Baderomsinnredningen har en benkeplate som er gjenbruk av en gammel dør fra boligen, og med store skuffer under for oppbevaring. Det er to ovenpåliggende servanter og to ett-greps armaturer. Over innredningen er det vegghengte speil og en praktisk hylle. Vegghengt toalett og innebygget sisterne. I forbindelse med oppussingen av badet er det ny membran og tettesjikt.
Et nydelig bad med dusjhjørne med innfellbare glassdører med dusjarmatur og regnfallsdusj. Lekkert, gulvmontert badekar på badet med dusjbatteri og vindu med nydelig utsikt mot Vorma. Perfekt for en avslappende spatime....
Bad og vaskerom kjeller
Bad og vaskerommet i underetasjen er pusset opp og nytt i 2018. Flislagte gulv med varmekabler, veggflater med flis og malte himlingsflater med downlights.
Baderomsinnredningen har samme type benkeplate som badet i andre etasje, med gjenbruk av en gammel dør fra boligen, som også har store skuffer under. To ovenpåliggende servanter og to ett-greps armatur og vegghengt speil over innredningen. Dusjhjørne med innfellbare glassdører og vegghengt toalett og innebygget sisterne.
Eget og praktisk vaskrerom med smarte løsninger og godt med benkeplass og skapplass. Vaskerommet har et vegghengt servantskap med nedfelt servant og ett-grepsarmatur.
Begge rommene er særdeles pent oppusset og har en samhørighet med resten av boligen.
Soverom og TV-stue
Boligen har fire store og gode soverom og alle er i andre etasje, i tillegg til to TV-stuer. Tre av soverommene er i hvert sitt hjørne av boligen og det siste er i tilbygget over entreen og inngangspartiet. Alle rommene er pusset opp og har godt bevarte originale trevegger malt i de samme pene og originale fargene man finner andre steder i boligen, samt meget lekre tapeter. Gulvflatene er av heltre og malte himlingsflater.
Øvrig
Alle rommene i huset er påkostet og pusset opp med en klar tanke og rød tråd. Rommene er pene og har historiske detaljer med særpreg og bringer fram boligens estetikk og utrykk med originale overflater i vegger og himling, samt farger som er nøye valgt etter hvilke farger som har tidligere vært i boligen.
Både lampetter, armatur, samt dørhåndtak er nøye utvalgt med tanke på husets karakter.
Det er blitt byttet ut tømmerstokker og ny isolering på huset, og det er nye og moderne vinduer rundt om i hele huset. Det elektriske anlegget er oppgradert, det er lagt inn rør-i-rør anlegg i hele boligen og varmtvannsberederen er byttet. I denne boligen er alt det tekniske av høy og moderne standard og alle rommene er også av høy standard med et utrykk som passer boligens stil. Denne boligen er meget godt vedlikeholdt og alle rom gir en lun og fantastisk følelse av at det magiske og historiske har blitt tatt vare på!
En drøm av en bolig!
Kort fortalt:
- Flott, unik eiendom på ca. 2 mål.
- Sjelden sjanse.
- Landlig, men sentral beliggenhet.
- Klassisk hovedhus over fire plan.
- Gårdsplass og stor garasje, samt stabbur.
- Praktfullt uteareal med ulike soner.
- Herlige terrasser på totalt ca. 137 kvm.
- Innbydende kjøkken med spiseplass
- Tidløs kjøkkeninnredning med god benkeplass.
- Godt med skap- og benkeplass.
- Store og vakre stue med peisovner
- Klassiske vinduer i to retninger.
- To lekre bad med gulvvarme.
- Eget vaskerom.
- Hele fire soverom med nydelige fargevalg.
- Lagring på loft, garasje og kjeller.
- Meget pent beplantning rundt om på tomten.
- Eiendommen er inngjerdet.
Løsøre og tilbehør
Vi viser til liste fra Norges Eiendomsmeglerforbund som gjelder fra 01.01.2020 angående løsøre og tilbehør.
Lyskrone i storstua medfølger ikke salget.
Oppvarming
Boligen varmes opp med vedfyring i peis/peisovn på kjøkken, stue, storstue og TV-stue i andre etasje. Boligen har også elektrisk oppvarming, med blant annet to varmepumper i første etasje og varmekabler i gulv på bad i 2. etasje, vaskerom i kjeller, entré og trappegang.
Boligen har naturlig ventilasjon med tilluftsventiler i yttervegger.
Dersom beboelsesrom ikke har vegg- eller fastmonterte varmekilder ved visning, følger dette heller ikke med.
Ferdigattest/brukstillatelse
Eiendommen er antatt å vært brukt til boligformål siden 1840
Kommunen opplyser at det ikke var krav til ferdigattest eller midlertidig brukstillatelse på den tiden eiendommen ble oppført.
Det foreligger ferdigattest på boligens tilbygg, datert 14.05.2025. Tilbygget er entreen i første etasje, og soverom og TV-stue rett over, samt tak over soverommet. Denne kan fås ved henvendelse til megler.
Det foreligger ferdigattest på garasjen, datert 05.08.2025. Denne kan fås ved henvendelse til megler.
Deler av badet er er opprinnelig byggemeldt som soverom jf. byggetegninger og er godkjent til varig opphold. Endringen er ikke søknadspliktig.
Kjøper overtar alt ansvar, kostnad og risiko for dette videre.
Det gjøres oppmerksom på at det ikke lenger utstedes ferdigattest på tiltak det er søkt om før 1998 jf. plan- og bygningsloven § 21-10. Kommunen vil ikke kreve ferdigattest for disse tiltakene og vil avvise eventuelle søknader. Bestemmelsen innebærer ikke at tiltak med manglende søknad blir lovlige, men at man ikke trenger å avslutte gamle byggesaker. Normalt sett kreves ferdigattest for alle søknadspliktige tiltak som gjøres etter plan- og bygningsloven.
Tinglyste heftelser og rettigheter
Eiendommen overdras fri for pengeheftelser.
Det er tinglyst følgende servitutter på eiendommen:
Dagboknr 10430, tinglyst 22.10.1999, type heftelse: Bestemmelse om veg
Servitutten handler om at gnr. 185. bnr. 1 skal ha rett til å bruke veg/område på gnr. 185 bnr. 28 som er på østsiden av garasje/låve, som driftsveg for den kjøring som er nødvendig som er nødvendig til/fra 185/1
Dagboknr 906638, tinglyst 19.06.2018, type heftelse: Bestemmelse om veg
Servitutten handler om at eiere av gnr. 185 bnr. 1 og eierne av gnr. 185. bnr. 28 gir eiere av gnr. 185 bnr. 29 rett til å benytte felles adkomst til/fra Røysiåsveien
Eiendommen har tinglyst rett til kloakkanlegg. Rettigheten er tinglyst på 185/28, dagboknr. 1067864, tinglyst 26.07.2018.
Rettigheten handler om at 185/28 og 185/29 har felles kloakkanlegg som ligger på 185/29. 185/28 har rett til å ha dette også i fremtiden. Vedlikehold utføres av begge eiendommene.
Eventuell adgang til utleie
Eiendommen har ikke separat utleieenhet. Det vil normalt være anledning til utleie av hele eiendommen eller enkeltrom, såfremt utleiearealet er bygningsmessig godkjent for varig opphold og har forsvarlige radonnivåer.
Beliggenhet og tomteforhold
Beliggenhet og tomteforhold
Beliggenhet
Røysiåsen 42B er en herskapelig og sjarmerende eiendom med flott og usjenert beliggenhet i Røysiåsen på Langset på Minnesund og kort vei til det meste. Natur og friluftsliv er rett utenfor døren, med blant annet Ninabben i umiddelbar nærhet. Boligen har utsikt til Vorma hvor man kan se den historiske hjuldamperen Skibladner flere ganger i uken. Langset er like ved hvor man finner dagligvarehandel, barneskole, treningssenter, gatekjøkken og offentlig kommunikasjon.
Ninabben er et populært turmål for lokalbefolkningen og gir deg en enkel og flott naturopplevelse. Turstien starter bare 500 meter fra eiendommen og er en rundtur via toppen på 443 moh, og er merket hele runden. På toppen finnes det benker hvor man kan sette seg ned og nyte den fantastiske utsikten over Vorma og Mjøsa. Turen opp til Ninabben passer for de fleste og er et ideelt for deg som verdsetter friluftsliv i hverdagen!
Om sommeren har man bademuligheter i Mjøsa, Vorma, Hurdalssjøen og Fløyta. Det er også flere topper man kan utforske, blant annet Mistberget som er Eidsvolls høyeste topp på 672 moh. I tillegg er det gode muligheter for båtliv, fiske og jakt. På vinterstid finnes det skiløyper på Minnesund, Eidsvoll Verk, Minneåsen og mer, samt alpinanlegg i Hurdal. På Eidsvoll Verk finner man historiske Eidsvollsbygningen, som har en fin park og flotte turmuligheter langs Andelva.
På Minnesund og i nærområdene har man flere kulturminner som er verdt å besøke. Plasser som er verdt og nevne er blant annet bygdetunet, Minne gård, smaragdgruvene, feiring jernverk og mer. Minne Gård er et gammelt gårdsbruk med mye historie, og er i dag et flott selskapslokale. Bygdetunet er et gammelt tun og bygdesamfunn, som i dag er et museum med levende dyr som griser, høns og sau. Her er det mye historie fra forskjellige tidsperioder.
Fra eiendommen er det bare en kort kjøretur til Råholt som byr på AMFI senteret som har 52 butikker, restauranter og kafeer. Fra Eidsvoll Verk togstasjon går det to avganger i timen i retning mot Gardermoen og Oslo som bruker bare hhv 5 og 30 min. Råholt har også svømmehall, fotballbaner og klatresenteret i Leto-hallen som gir gode muligheter for aktivitet for både barn og voksne.
Avstander med bil:
Sundet ca. 12 min.
Gardermoen/Jessheim ca. 27 min.
Oslo S. ca. 55 min.
Hamar ca. 39 min.
Adkomst
Det vil bli skiltet med Krogsveen visningsskilt ved fellesvisninger.
Barnehager, skoler og fritid
Dersom skole- og barnehagetilbud er av betydning for kjøpet, ber vi om at det rettes en særskilt henvendelse til kommunen for oppdatert informasjon.
Beskrivelse av tomt
Eiertomt på 1 959 kvm.
Når man kommer kjørende åpenbarer det seg en flott, inngjerdet eiendom, der en hyggelig port og stemningsfull belysning ønsker velkommen.
Området er landlig og fredelig, men likevel sentralt, med kort vei til alt man trenger i hverdagen. Her bor man skjermet og tilbaketrukket, – omkranset av vakker natur og helårs turmuligheter.
Eiendommen ligger usjenert til med en stor hage og sol hele dagen. Tomten har flere bygninger, med en stor enebolig på 375 kvm, en garasje på hele 105 kvm og nesten 6 meter takhøyde til møne, og ett koselig stabbur. Fra garasjen er det en pent opparbeidet gangvei med flott beplantning fram til boligens herskapelig inngangsparti.
Eiendommen er en unik og privat oase med mye boltreplass for både store og små. Rundt om på tomten er det flere koselige kriker og kroker, der man kan trekke seg tilbake for litt egentid.
Tomten på ca 2 mål er pent opparbeidet med gressplen, blomster, prydbusker, trær og diverse beplantning.
Videre har man en hundegård og hundehus.
Hagen er pent opparbeidet. Store plenareal legger til rette for selskapeligheter, lek og hygge. I tillegg er det bygget plattinger og terrasser flere steder på eiendommen, og terrassen tilliggende boligen strekker seg hele veien rundt. Terrassen oppleves som usjenert, perfekt for både stille stunder og lange, sosiale kvelder. På denne eiendommen kan man nyte de nydelige solforholdene overalt, fra soloppgang til solnedgang.
Parkering
Eiendommen har en garasje på 105 kvm hvor man har plass til flere biler, i tillegg til plass for biloppstilling utenfor garasjen. Mange muligheter for innredning eller annen planløsning grunnet størrelsen.
Vei, vann og avløp
Eiendommen er tilknyttet kommunalt ledningsnett via private stikkledninger. Eier er selv ansvarlig for private stikkledninger til boligen.
Eiendommen har adkomst via privat vei med felles vedlikeholdsansvar.
Eiendommen har privat minirenseanlegg, som er et felles anlegg med naboen. Anlegget tømmes én gang i året av kommunen og kostnaden for dette er inkludert i kommunale avgifter. Anlegget er oppgradert til et godkjent Biovac-anlegg i 2017 og vil ikke få noe krav om oppgradering. Kontakt megler for ytterligere informasjon.
Regulerings-og arealplaner
Eiendommen ligger i et uregulert område, men er i kommuneplan datert 13.04.2021 avsatt til: LNFR, areal for nødvendige tiltak for landbruk og reindrift og gårdstilknyttet næringsvirksomhet basert på gården ressursgrunnlag.
Våningshus, stabbur og garasjen er verneverdig/Sefrak-registrert. Dette kan medføre at større endringer av bygningen må godkjennes av kommunen eller fylket før igangsetting. Garasjen var tidligere en gammel låve som nå er gjort om til garasje. Det foreligger godkjennelse fra kommunen om tillatelse til ombygging fra låve til garasje. Kontakt megler for mer informasjon.
Utsnitt av plan med tilhørende bestemmelser kan fås ved henvendelse til megler.
Økonomi
Økonomi
Kommunale utgifter
Kommunale avgifter er kr 21 209,- for inneværende år. I dette inngår gebyr for vann, slam, eiendomsskatt, renovasjon og feiing/tilsyn.
Eiendommen har privat minirenseanlegg/Biovac for avløp, som er felles for denne eiendommen og naboen. Kostnad for tømming av denne én gang i året er inkludert i kommunale avgifter.
Biovac anlegget har service to ganger i året og har en kostand på ca. kr 4.700,- pr service. Kostnaden blir delt på med naboen.
Det er installert vannmåler på eiendommen og kostnadene betales etter forbruk. Forbruk avleses etter henvendelse fra kommunen. Forbruk betales à konto basert på siste avlesning. Avregning foretas i forbindelse med neste forfall på kommunale avgifter.
Nåværende eier har et strømforbruk som tilsvarer ca. kr 43 000,- pr. år. / 32 700 kwh. pr. år.
Boligen har en årlig forsikringspremie på kr 20 382,- for hus, garasje og stabbur.
Boligen er tilknyttet Telenor til trådløst nettverk og kun antenne for TV-signal.
Boligen er tilknyttet Sikkerhetsgruppen AS som alarmselskap og koster kr 5 988,- pr. år. Abonnement kan medfølge.
Utgiftene er basert på nåværende eiers forbruk og avtaler.
Formuesverdi
Formuesverdi for 2023 var kr 1 191 009,- ifølge skatteetaten. Beløpet forutsetter at eier bor fast i boligen (primærbolig).
Ved eventuell øvrig bruk av eiendommen (f.eks. fritidsbolig, pendlerbolig, utleieobjekt) var formuesverdien for 2023 kr 4 764 036,-.
Formuesverdien justeres normalt årlig. Se skatteetaten.no for mer informasjon om fastsettelse av formuesverdien.
Eiendomsskatt
Eiendomsskatten utgjør kr 5 870,- pr år og er inkludert i de kommunale avgiftene
Omkostninger
7 990 000,00 Prisantydning
Omkostninger
199 750,00 Dokumentavgift til staten (2,5% av kjøpesum)
19 900,00 Gjensidige Boligkjøperpakke (valgfri)
545,00 Tinglysing panterettsdokument
545,00 Tinglysing skjøte
--------------------------------------------------------
220 740,00 Omkostninger totalt
--------------------------------------------------------
8 210 740,00 Totalpris inkl. omkostninger
--------------------------------------------------------
Totalpris inkl. omkostninger forutsetter kjøp til prisantydning.
Det tas forbehold om endringer i avgifter og gebyrer.
Tilbud om lånefinansiering
Megler formidler gjerne kontakt med rådgiver hos vår samarbeidspartner BN Bank. De har konkurransedyktige betingelser samt rask og løsningsorientert behandling av din lånesøknad. Krogsveen mottar et honorar for denne formidlingen.
Betalingsbetingelser
Kjøpesum inkludert omkostninger, samt pantedokument tilknyttet eventuelt lån, skal være disponibelt hos megler 2 virkedager før overtagelsen.
Annen viktig informasjon
Annen viktig informasjon
Eier
Else Marie Kirkebøen og Knut Åge Graff Av Øhr
Overtakelse
Etter nærmere avtale.
Boligselgerforsikring
Selger har i forbindelse med salget tegnet boligselgerforsikring levert av Gjensidige.
Boligselgerforsikringen dekker selgers ansvar etter avhendingsloven begrenset oppad til kr 14 millioner. Dersom kjøper oppdager forhold ved eiendommen som hen mener utgjør en mangel ved eiendommen, vil Gjensidige behandle reklamasjonen på vegne av selger. Forsikringsvilkår kan fås ved henvendelse til megler.
Vedlagt salgsoppgaven følger selgers egenerklæringsskjema og tilstandsrapport. Interessenter må sette seg inn i dokumentene før bud inngis.
Boligkjøperforsikring
Innen kontraktsmøtet må kjøper ta stilling til om det ønskes å bestille Boligkjøperpakken gjennom Gjensidige. I denne gunstige pakken er boligen ferdig forsikret og inkluderer rettshjelpsforsikring, også kalt Boligkjøperforsikring. Rettshjelpsforsikring gir trygghet og tilgang på profesjonell juridisk hjelp dersom det oppdages uventede feil eller mangler det første året etter overtagelse. Forsikringsselskapet behandler i så fall ethvert mangelskrav kjøper måtte ha overfor selger.
Boligkjøperpakken inkluderer bygningsforsikring for hus og hytte, innboforsikring, flytteforsikring og dobbel rentedekning - i situasjoner hvor kjøper ikke får solgt nåværende primærbolig.
Kjøper mottar ingen særskilt faktura for Boligkjøperpakken da kostnaden det første året legges til kjøpesummen for boligen. Det gjøres oppmerksom på Krogsveen mottar et honorar for denne formidlingen.
Produktark for Boligkjøperpakken ligger vedlagt i salgsoppgaven.
Dersom ikke boligkjøperpakke ønskes kan kun rettshjelpsforsikring, også kalt boligkjøperforsikring, tegnes særskilt via megler. Rettshjelpsforsikringen varer i 5 år fra overtagelse og leveres gjennom Gjensidige. Ta kontakt med megler for ytterligere informasjon.
Selskap og privatpersoner som driver med kjøp/salg/utvikling som ledd i egen næringsvirksomhet kan ikke tegne boligkjøperpakke eller rettshjelpsforsikring.
Budgivning
Forbrukerinformasjon om budgivning er vedlagt denne salgsoppgaven og er også på vår hjemmeside Krogsveen.no. Alle bud og budforhøyelser må inngis skriftlig. I tillegg må legitimasjon være fremlagt sammen med signatur fra budgiver.
Vi oppfordrer til å gi bud elektronisk via GI BUD-knappen på eiendommens hjemmeside på Krogsveen.no. Da vil samtlige vilkår bli oppfylt.
Eventuelle forhøyelser eller endringer av budet kan bekreftes pr SMS eller på e-post. Vi oppfordrer alltid til å kontakte megler pr. telefon i tillegg da forsinkelser i SMS og e-post kan forekomme.
For at budene skal kunne bli behandlet og videreformidlet skriftlig til alle involverte parter, må alle bud ha en tilstrekkelig lang akseptfrist, jf. eiendomsmeglingsforskriften § 6-3.
Selger må også skriftlig akseptere budet før aksept kan formidles til budgiver. Akseptfrist bør derfor være på minimum 30 minutter, og budforhøyelser må derfor skje i god tid før fristens utløp.
Bud i forbrukerforhold kan uansett ikke settes med kortere frist enn kl. 12.00 første virkedag etter siste annonserte visning. I tillegg kan ikke budet ha forbehold om at det skal holdes hemmelig ovenfor øvrige interessenter. Megler har iht lov om eiendomsmegling ikke anledning til å videreformidle disse budene, og de vil dermed heller ikke bli journalført.
Etter at eiendommen er solgt vil kjøper og selger få tilsendt budjournal. Øvrige budgivere kan få utlevert kopi av budjournalen i anonymisert form.
Hvitvaskingsreglene
I henhold til lov om hvitvasking og terrorfinansiering har megler plikt til å gjennomføre kontrolltiltak overfor kunder, herunder fullmektiger. Dette innebærer bl.a. å bekrefte kunders og reelle rettighetshaveres identitet på bakgrunn av fremvist gyldig legitimasjon eller på annen godkjent måte, samt å innhente opplysninger om kundeforholdets formål og tilsiktede art.
Dersom slike kundetiltak ikke kan gjennomføres, kan megler ikke etablere kundeforholdet eller utføre transaksjonen.
Hvis kjøper ikke bidrar til gjennomføring av kundekontrollen og dette fører til at transaksjonen blir forsinket eller ikke kan gjennomføres, vil dette ansees som mislighold av avtalen og gi selger rettigheter etter avhendingslova kapittel 5. I tilfeller der selger ikke bidrar til gjennomføring av løpende kundekontroll underveis i oppdraget, er det selger som misligholder sine forpliktelser etter avtalen og gi kjøper rettigheter etter avhendingslovens kapittel 4. Partene er selv ansvarlige for eventuelle kostnader og ansvar dette kan medføre. Eiendomsmegleren eller eiendomsmeglingsforetaket kan ikke holdes ansvarlig for de konsekvenser dette vil kunne få for partene eller andre som har interesser i eiendomshandelen.
Kjøper oppfordres til å innbetale kjøpesummen som ikke kommer fra låneinstitusjon i én samlet innbetaling fra egen konto i norsk bank. Megler har plikt til å melde fra til Økokrim om eiendomshandler som fremstår som mistenkelige. Melding sendes Økokrim uten at partene varsles.
Personopplysningsloven
I henhold til personopplysningsloven gjør vi oppmerksom på at interessenter kan bli registrert for videre oppfølging.
Lovanvendelse
Generelle bestemmelser
Salgsoppgaven er basert på de opplysningene selger har gitt til megler, den bygningssakyndiges tilstandsrapport, samt opplysninger innhentet fra kommunen, Kartverket og andre tilgjengelige kilder. Det er viktig at kjøper setter seg grundig inn i alle salgsdokumentene, herunder salgsoppgave, tilstandsrapport og selgers egenerklæring. Kjøper anses kjent med forhold som er tydelig beskrevet i salgsdokumentene, og slike forhold kan ikke påberopes som mangler. Dette gjelder uavhengig av om kjøper har lest dokumentene. Alle interessenter oppfordres til å undersøke eiendommen nøye, gjerne sammen med fagkyndig før bud inngis. Kjøper som velger å kjøpe usett kan ikke gjøre gjeldende som mangel noe han burde blitt kjent med ved undersøkelsen.
Dersom det er behov for avklaringer, anbefaler vi at interessenter rådfører seg med eiendomsmegler eller egne rådgivere før det legges inn bud.
En bolig som har blitt brukt i en viss tid, har vanligvis blitt utsatt for slitasje og skader kan ha oppstått. Slik bruksslitasje må kjøper regne med, og det kan avdekkes enkelte forhold etter overtakelse som nødvendiggjør utbedringer. Normal slitasje og skader som nødvendiggjør utbedring, er innenfor hva kjøper må forvente og vil ikke utgjøre en mangel.
Kjøper og selgers rettigheter og plikter reguleres av avtalen mellom partene, samt informasjonen som har vært tilgjengelig for kjøperen i forbindelse med handelen. Avtalen utfylles av avhendingsloven, og det gjelder ulike avtalevilkår avhengig av om kjøper er forbrukerkjøper eller ikke. Dette er nærmere beskrevet nedenfor.
På grunn av ulike avtalevilkår kan selger vurdere bud fra en som ikke er forbruker, ulikt fra en forbrukers bud. Dersom kjøper ikke er forbruker, er selger sitt mulige mangelsansvar begrenset fordi eiendommen selges "som den er". Selger kan ikke ta «som den er»- forbehold overfor en forbrukerkjøper. Selv et lavere bud fra en som ikke er forbruker kan foretrekkes fordi begrensningen i mulig mangelsansvar kan ha egenverdi for selger. Selger står fritt til å forkaste eller akseptere ethvert bud, og er for eksempel ikke forpliktet til å akseptere høyeste bud.
Budgiver skal i budskjema avgi egenerklæring om budgiver er forbruker eller næringsdrivende/ person som hovedsakelig handler som ledd i næringsvirksomhet. Budgivere får informasjon dersom andre bud er inngitt av en som ikke er forbruker.
Forbrukerkjøp - definisjon
Med forbrukerkjøp menes kjøp av eiendom når kjøperen er en fysisk person som ikke hovedsakelig handler som ledd i næringsvirksomhet.
Forbruker – avtalevilkår
Eiendommen har en mangel dersom den ikke er i samsvar med kravene som følger av avtalen, eller det foreligger brudd på bestemmelsene i avhendingsloven §§ 3-2 til 3-8. Hvis eiendommen ikke er i samsvar med det kjøperen må kunne forvente ut ifra alder, type og synlig tilstand, kan det være grunnlag for mangelskrav. Det samme gjelder hvis det er holdt tilbake eller gitt uriktige opplysninger om eiendommen. Dette gjelder likevel bare dersom man kan gå ut ifra at det virket inn på avtalen at opplysningen ikke ble gitt eller at mangelskravet ikke blir rettet i tide på en tydelig måte.
Boligen kan ha en mangel etter avhendingsloven § 3-3 andre ledd, dersom det er avvik mellom opplyst og faktisk innvendig areal, forutsatt at avviket er på 2% eller mer og minimum 1 kvm.
Ved beregning av et eventuelt prisavslag eller erstatning må kjøper selv dekke tap/kostnader opptil et beløp på kr 10 000 (egenandel).
Ikke-forbruker (næringsdrivende) – definisjon
Hvis kjøper er en juridisk person, eller en fysisk person som hovedsakelig handler som ledd i næringsvirksomhet, vil kjøpet ikke anses som et forbrukerkjøp.
Ikke-forbruker – avtalevilkår
Eiendommen har en mangel dersom den ikke er i samsvar med kravene som følger av avtalen.
Eiendommen selges «som den er», og selgers ansvar utover det konkret avtalte er da begrenset etter avhendingsloven § 3-9, første ledd andre setning.
Avhendingsloven § 3-3 andre ledd fravikes, og hvorvidt boligens arealsvikt utgjør en mangel vurderes etter avhendingsloven § 3-8.
Informasjon om kjøpers undersøkelsesplikt, herunder oppfordringen om å undersøke eiendommen nøye, gjelder også for kjøpere som ikke anses som forbrukere.
Det forutsettes at hjemmel overføres til kjøper. Hvis kjøper ikke ønsker hjemmelsoverføring av eiendommen, må det tas forbehold om dette i budet.
Meglers vederlag
Meglers vederlag betales av selger og er avtalt til:
Vederlag: 0,9% av salgssummen.
Tilrettelegging fra kr 17.000,-
Oppgjør: kr 7.500,-
Markedspakke: kr 27.250,-
Visninger: kr 4.000,- pr. visning
Oppslag eiendomsregister: kr 2.900,-
Eksklusiv salgsoppgave: kr 5.000,-
Megler har i tillegg krav på dekning av følgende utlegg:
Innhenting av offentlig opplysninger: kr 4.995,-
Tinglysing sikring: kr 545,-
Opplysninger om oppdraget
Oppdragsnummer 63-0123/25
Eiendomsmegler Krogsveen AS, avd. Jessheim
Skovly Promenade 10, 2066, JESSHEIM
950 007 613
Oppdragets KR-kode KR63.25123
Dato
Sist oppdatert: 20. april 2026 kl. 23:50
Dokumenter
Dokumenter
PDF – 659 KB
PDF – 1009 KB
PDF – 312 KB
PDF – 29 KB
PDF – 127 KB
PDF – 392 KB
Område
Legg til steder som er viktige for deg
Visning
For å delta på visning, ber vi om at du melder deg på. Da sikrer vi at du får nødvendig informasjon og at det er satt av tilstrekkelig med tid. Kontakt megler dersom annet tidspunkt ønskes.
NB. Visning utgår dersom det ikke er noen påmeldte.
Lurer du på noe?
Unngå doble boligrenter
Vi tilbyr gunstig forsikring.
Vurderer du utleie?
Få et tilbud fra Utleie KrogsveenHva koster lånet?
Sjekk estimert lånekostnadVil du varsles om lignende boliger?
Ved å lagre ditt boligsøk hos oss får du beskjed når vi har en bolig som ligner denne, før den legges ut på markedet!
























































































