Etterstadsletta 46A
7 450 000 kr
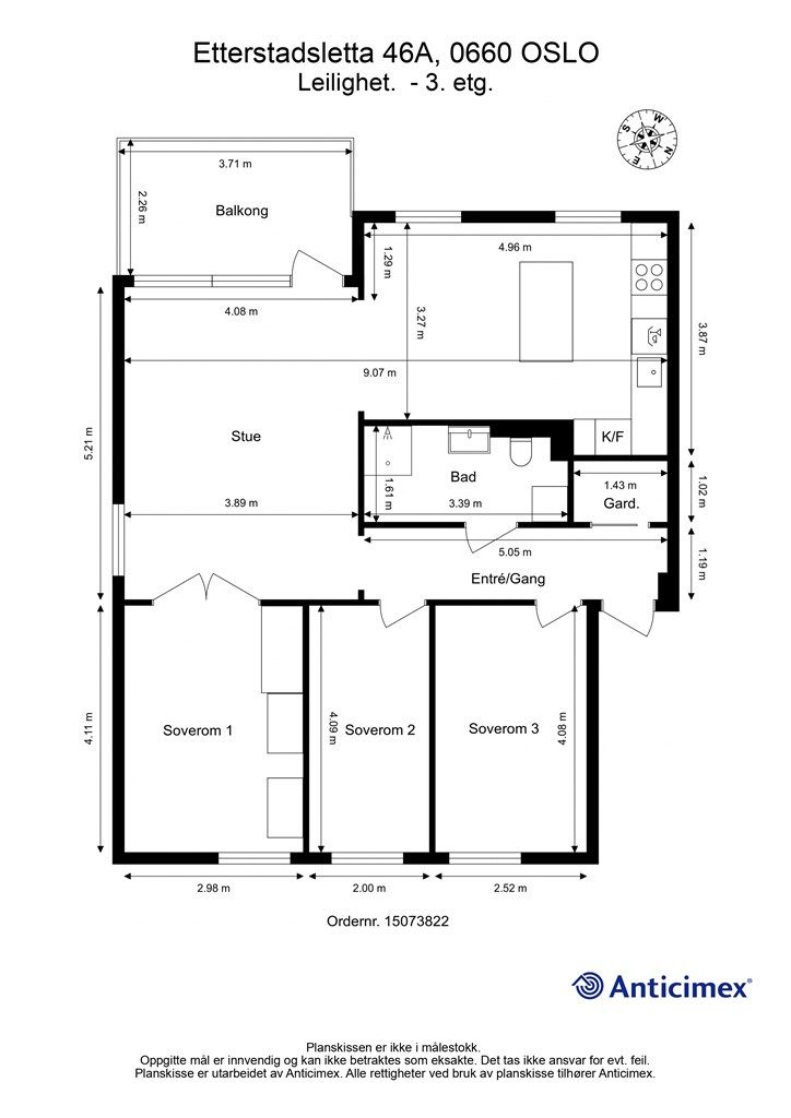
84 m²
3 soverom
Solgt

Etterstad
Lekker 4-roms topp-/endeleilighet|Oppusset i 2023|P-plass m/elbil-lader|Vestvendt balkong|Grønne omgivelser "nær" i byen
Prisantydning
7 450 000 krAndel fellesgjeld
22 418 krOmkostninger
19 252 krTotalpris
7 491 670 kr
Pris
Bruksareal
94 m²BRA-I (internt bruksareal)
84 m²BRA-E (eksternt bruksareal)
10 m²TBA (terrasse-balkongareal)
9 m²
Areal
Etasje
3Byggeår
1972Soverom
3 soveromBad
1 badType
AndelsleilighetEierform
AndelFasiliteter
Balkong/TerrasseFellesutgifter
4 382 krEnergimerke
Rød F
Nøkkelinfo
Unngå doble boligrenter
Vi tilbyr gunstig forsikring.
Vurderer du utleie?
Få et tilbud fra Utleie KrogsveenHva koster lånet?
Sjekk estimert lånekostnadDette liker selger best ved boligen
Boligens størrelse og åpne planløsning, det er gjennomgående lys som gir økt trivsel. Vestvendt balkong av god størrelse med plass til alt man trenger, det er svært lite/ingen direkte innsyn. Utsikt utover Etterstadparken og til og med litt sjøgløtt. Fellesarealet i bakhagen er koselig og for seg gjort, bomiljøet oppleves trygt med gode naboer som satser på fellesskap og godt naboskap. Sentral beliggenhet med kort vei til både bane, og flere busser. Det er flere matbutikker, cafeer og restauranter i nærområdet, Svartdalsparken med tursti og Krokloftet (badstue og café). Her er det også marked og utstillinger med jevne mellomrom. Leiligheten ligger i toppetg. og på enden noe som gir mye luft og rom.
Beskrivelse
Kort om eiendommen
Velkommen til Etterstadstadsletta 46A!
- Landlig idyll "midt i smørøyet"!
Høydepunkter:
- Topp- og endeleilighet - her får du ekstra lys inn via gavl-vinduet i stuen
- Usjenert balkong m/gode solforhold og nydelig, luftig utsikt over grønne sletter og nærområdet. Noe sjøgløtt.
- Leiligheten ble pusset opp i 2023:
- Lekkert, utvidet bad/WC med opplegg vaskemaskin
- Stilig kjøkken m/flyttbar kjøkkenøy
- Pene overflater
- Oppgradert el-anlegg
- 3 gode soverom
- Fast p-plass med elbil-lader medfølger
- God oppbevaringsplass i 3 boder
- Lave omkostninger (ingen dok.avgift)
- Stille og rolig beliggenhet
- Tur- og rekreasjonsmuligheter rett utenfor døren
- Kort vei til offentlig kommunikasjon - Helsfyr T innen 250 m
- Barnehager, skoler og lekeplass i umiddelbar nærhet
Område
Legg til steder som er viktige for deg
På flyttefot? Tenk kjøp og salg samtidig.
Få din egen rådgiver gjennom hele kjøps- og salgsprosessen. Det starter med en verdivurdering.
Unngå doble boligrenter
Vi tilbyr gunstig forsikring.
Vurderer du utleie?
Få et tilbud fra Utleie KrogsveenHva koster lånet?
Sjekk estimert lånekostnadVil du varsles om lignende boliger?
Ved å lagre ditt boligsøk hos oss får du beskjed når vi har en bolig som ligner denne, før den legges ut på markedet!

