Nystøylvegen 29
2 750 000 kr
52 m²
2 soverom
Solgt

Ski ut og ski inn. Alpinanlegg og flotte oppkjørte skiløyper like utenfor døren. Flott utsikt. Solrik.
Prisantydning
2 750 000 krOmkostninger
70 012 krTotalpris
2 820 012 kr
Pris
Bruksareal
54 m²
Areal
Etasje
2Byggeår
1989Soverom
2 soveromBad
1 badType
Fritidseiendom på fjelletEierform
EierseksjonFasiliteter
Balkong/TerrasseFellesutgifter
2 032 krEnergimerke
Rød E
Nøkkelinfo
Vurderer du utleie?
Få et tilbud fra Utleie KrogsveenHva koster lånet?
Sjekk estimert lånekostnadBeskrivelse
Kort om eiendommen
Solrik lys fritidsleilighet rett ved skisenter og oppkjørte langrennsløyper. Ski ut og ski inn. Området byr på rikelig med aktiviteter hele året. Flotte turområder og toppturer hele året med start rett utenfor døren.
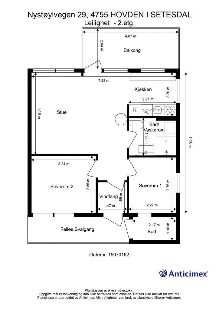
Hovden badeland og sentrum med fasiliteter ligger i gåavstand. Leiligheten ligger i 2.etasje og inneholder Vindfang, stue og kjøkken, bad/vaskerom, 2 soverom og utvendig skibod.
Felles smørebod i 1. etg.. Leiligheten ligger ytterst mot skisenter og skiløyper med flott utsikt utover dalen. Biloppstilling på utsiden Peisovn.
https://my.matterport.com/show/?m=WuJufkBMDc2
Område
Legg til steder som er viktige for deg
På flyttefot? Tenk kjøp og salg samtidig.
Få din egen rådgiver gjennom hele kjøps- og salgsprosessen. Det starter med en verdivurdering.
Vurderer du utleie?
Få et tilbud fra Utleie KrogsveenHva koster lånet?
Sjekk estimert lånekostnadVil du varsles om lignende boliger?
Ved å lagre ditt boligsøk hos oss får du beskjed når vi har en bolig som ligner denne, før den legges ut på markedet!

