Skausnaret 14B
6 500 000 kr
165 m²
3 soverom
Solgt
TOPPÅSEN
Enebolig o/3 plan - solrike uteplasser - flott utsikt - to kjøkken og to bad 2013/2015 - hybel(ikke godkjent)-parkering
Prisantydning
6 500 000 krOmkostninger
183 490 krTotalpris
6 683 490 kr
Pris
Bruksareal
165 m²BRA-I (internt bruksareal)
165 m²TBA (terrasse-balkongareal)
47 m²
Areal
Byggeår
1989Soverom
3 soveromBad
2 badTomteareal
445 m² (eiet)Type
Enebolig - FrittliggendeEierform
EietFasiliteter
Balkong/TerrasseEnergimerke
Rød E
Nøkkelinfo
Unngå doble boligrenter
Vi tilbyr gunstig forsikring.
Vurderer du utleie?
Få et tilbud fra Utleie KrogsveenHva koster lånet?
Sjekk estimert lånekostnadBeskrivelse
Kort om eiendommen
Arkitekttegnet enebolig i et etablert og rolig boområde på Toppåsen. Boligen ligger i en blindvei, og har lite/ingen gjenboere.
- Lys, luftig og innholdsrik bolig over 3 plan
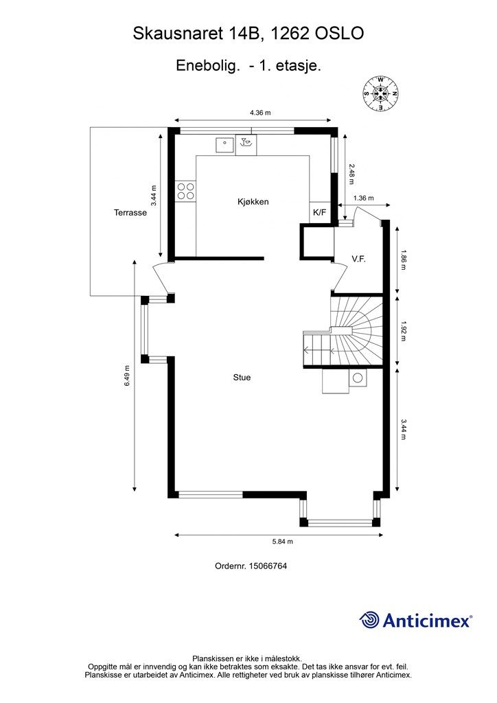
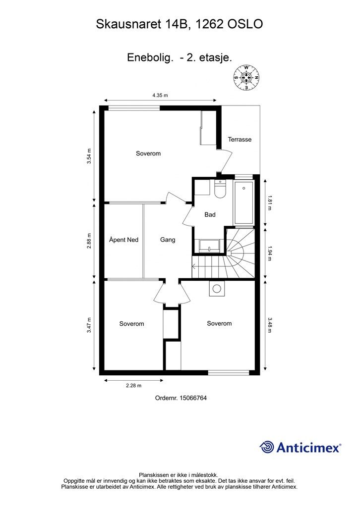
- 1. og 2. etg. inneholder bl.a. stor stue med flott utsikt, kjøkken(2013), 3 soverom og bad(oppusset 2015)
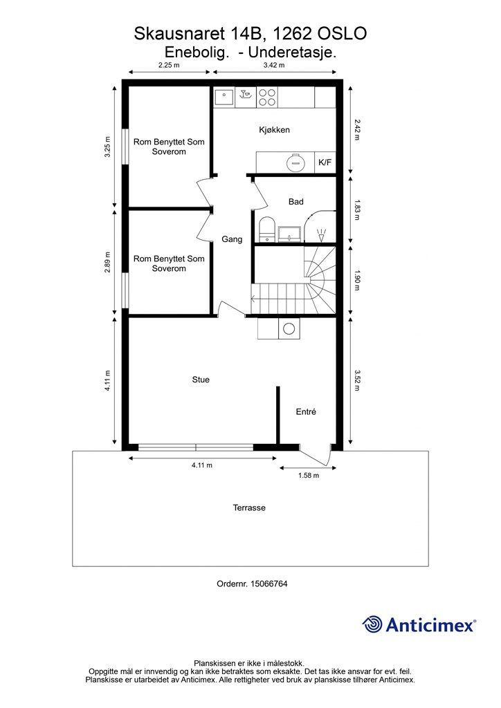
- U.etg. er innredet som hybel (ikke godkjent - se punkt "adgang til utleie" i salgsoppgaven for nærmere info), og inneholder stue, kjøkken (2015), bad og 2 rom benyttet som soverom (disse 2 rommene er ikke godkjent til varig opphold, se punkt "ferdigattest" i salgsoppgaven for nærmere info)
- Solrike uteplasser med sol fra morgen til kveld
- Parkering på felles tomt rett utenfor boligen
- Kort vei til Toppåsen barneskole, buss, tog, kjøpesenter (Holmlia og Kolbotn), sjø og turmuligheter
Område
Legg til steder som er viktige for deg
På flyttefot? Tenk kjøp og salg samtidig.
Få din egen rådgiver gjennom hele kjøps- og salgsprosessen. Det starter med en verdivurdering.
Unngå doble boligrenter
Vi tilbyr gunstig forsikring.
Vurderer du utleie?
Få et tilbud fra Utleie KrogsveenHva koster lånet?
Sjekk estimert lånekostnadVil du varsles om lignende boliger?
Ved å lagre ditt boligsøk hos oss får du beskjed når vi har en bolig som ligner denne, før den legges ut på markedet!
På flyttefot? Slik gjør vi det enklere for deg
Skreddersydd flyttepakke
Vi fikser håndverkere, vask, pakking, lagring og transport, og legger ut for utgiftene underveis.
Hjelp med både kjøp og salg
Hos oss har du din egen rådgiver gjennom hele kjøps- og salgsprosessen.
Hjelp til finansiering
Vårt samarbeid med BN Bank sikrer deg rask og løsningsorientert hjelp, til konkurransedyktige betingelser.




