Skiveien 223C
5 800 000 kr
261 m²
4 soverom
Solgt
OPPEGÅRD
Innholdsrik enebolig (generasjonsbolig)- høyt og fritt beliggende med utsyn - solrik - dbl.garasje - snekkerverksted
Prisantydning
5 800 000 krOmkostninger
165 990 krTotalpris
5 965 990 kr
Pris
Bruksareal
327 m²BRA-I (internt bruksareal)
261 m²BRA-E (eksternt bruksareal)
66 m²TBA (terrasse-balkongareal)
31 m²
Areal
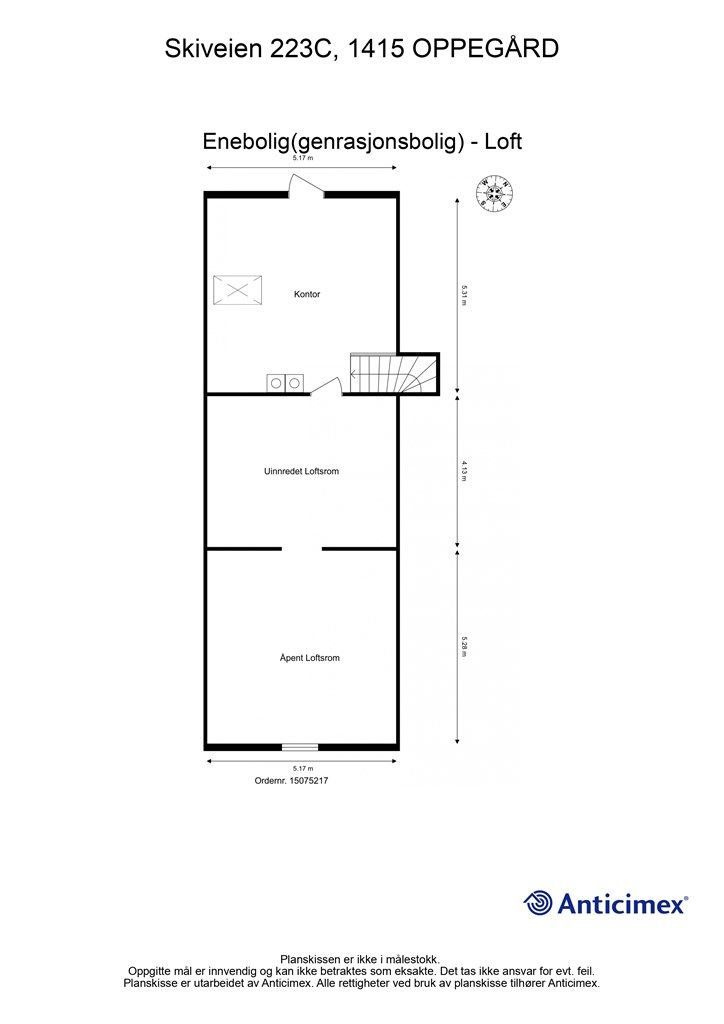
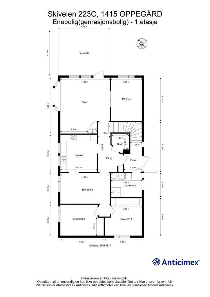
Etasje
3Byggeår
1987Soverom
4 soveromBad
2 badTomteareal
912 m² (eiet)Type
Enebolig - FrittliggendeEierform
EietFasiliteter
Garasje/P-plass og Balkong/TerrasseEnergimerke
Oransje E
Nøkkelinfo
Unngå doble boligrenter
Vi tilbyr gunstig forsikring.
Vurderer du utleie?
Få et tilbud fra Utleie KrogsveenHva koster lånet?
Sjekk estimert lånekostnadBeskrivelse
Kort om eiendommen
Velkommen til Skiveien 223C! Stor enebolig beliggende på romslig tomt med utsyn
Stor enebolig innredet som to separate boenheter/generasjonsbolig. Eneboligen trenger oppussing så her kan du sette ditt eget preg på boligen! Gode uteområder og solrike uteplasser. Lite innsyn på eiendommen. Boligen ligger i gangavstand til offentlig transport og matbutikk.
Høydepunkter:
Pene uteområder med plass til flere soner for sittegrupper og liknende
Romslig bolig med stort potensiale
Stor dobbeltgarasje med snekkerverksted i underetasjen (separat inngang til snekkerverkstedet)
Kort vei til offentlig kommunikasjon
Behov for oppussing/modernisering
Her har du et godt utgangspunkt for å skape ditt drømmehjem!
Område
Legg til steder som er viktige for deg
På flyttefot? Tenk kjøp og salg samtidig.
Få din egen rådgiver gjennom hele kjøps- og salgsprosessen. Det starter med en verdivurdering.
Unngå doble boligrenter
Vi tilbyr gunstig forsikring.
Vurderer du utleie?
Få et tilbud fra Utleie KrogsveenHva koster lånet?
Sjekk estimert lånekostnadVil du varsles om lignende boliger?
Ved å lagre ditt boligsøk hos oss får du beskjed når vi har en bolig som ligner denne, før den legges ut på markedet!
På flyttefot? Slik gjør vi det enklere for deg
Skreddersydd flyttepakke
Vi fikser håndverkere, vask, pakking, lagring og transport, og legger ut for utgiftene underveis.
Hjelp med både kjøp og salg
Hos oss har du din egen rådgiver gjennom hele kjøps- og salgsprosessen.
Hjelp til finansiering
Vårt samarbeid med BN Bank sikrer deg rask og løsningsorientert hjelp, til konkurransedyktige betingelser.




