Solligrenda 89
5 750 000 kr
61 m²
2 soverom
Solgt
Solligrenda i naturskjønne omgivelser
Drømmebeliggenhet! 3-roms idyll m direkte utgang til bading, natur, solrik hage m frukttrær. God planløsning og garasje.
Prisantydning
5 750 000 krOmkostninger
154 790 krTotalpris
5 904 790 kr
Pris
Bruksareal
66 m²BRA-I (internt bruksareal)
61 m²BRA-E (eksternt bruksareal)
5 m²TBA (terrasse-balkongareal)
14 m²
Areal
Etasje
-2Byggeår
1985Soverom
2 soveromBad
1 badType
EierleilighetEierform
EierseksjonFasiliteter
Garasje/P-plass og Balkong/TerrasseFellesutgifter
4 748 krEnergimerke
Oransje E
Nøkkelinfo
Unngå doble boligrenter
Vi tilbyr gunstig forsikring.
Vurderer du utleie?
Få et tilbud fra Utleie KrogsveenHva koster lånet?
Sjekk estimert lånekostnadBeskrivelse
Kort om eiendommen
Delikat 3-roms med svært god intern beliggenhet i populært sameie. Stor, solrik, sørvestvendt terrasse med fritt og åpent utsyn.
Idylliske badeplasser og flotte turområder rett utenfor døren. Stor felles hage og muligheter for selvdyrking.
Gangavstand til marka, Nydalen, barnehager, skoler, buss/trikk/tog samt Stillatorget og Frysjaparken med matbutikker, apoteker, serveringssteder, treningssentre og mange andre fasiliteter/butikker. Sammenhengende gang-og sykkelvei langs elva til sentrum.
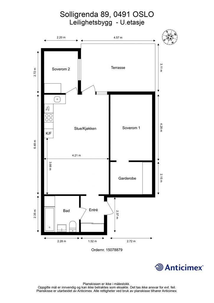
Entré med garderobe, romslig bad, stor stue med åpen kjøkkenløsning, to soverom og et ekstra fleksibelt rom. Bod, garasje, felles treningsrom, smørebod og fryserom.
Dyrehold tillatt. Særdeles barnevennlig.
Område
Legg til steder som er viktige for deg
På flyttefot? Tenk kjøp og salg samtidig.
Få din egen rådgiver gjennom hele kjøps- og salgsprosessen. Det starter med en verdivurdering.
Unngå doble boligrenter
Vi tilbyr gunstig forsikring.
Vurderer du utleie?
Få et tilbud fra Utleie KrogsveenHva koster lånet?
Sjekk estimert lånekostnadVil du varsles om lignende boliger?
Ved å lagre ditt boligsøk hos oss får du beskjed når vi har en bolig som ligner denne, før den legges ut på markedet!






















































