Inkognitogata 6
3 200 000 kr
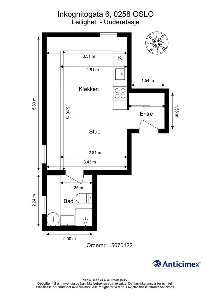
21 m²
Solgt

Frogner
Lys og arealeffektiv 1-roms - Lave felleskostnader - Perfekt førstegangskjøp/Utleie - Flott beliggenhet m nærhet til alt
Prisantydning
3 200 000 krAndel fellesgjeld
4 658 krOmkostninger
91 140 krTotalpris
3 295 798 kr
Pris
Bruksareal
25 m²BRA-I (internt bruksareal)
21 m²BRA-E (eksternt bruksareal)
4 m²
Areal
Etasje
1Byggeår
1889Bad
1 badType
EierleilighetEierform
EierseksjonFellesutgifter
1 296 krEnergimerke
Rød G
Nøkkelinfo
Unngå doble boligrenter
Vi tilbyr gunstig forsikring.
Vurderer du utleie?
Få et tilbud fra Utleie KrogsveenHva koster lånet?
Sjekk estimert lånekostnadBeskrivelse
Kort om eiendommen
Velkommen til Inkognitogata 6, en super sentral og arealeffektiv 1-roms på Frogner presentert av Marius Dyngeland Iversen. Denne leiligheten er et perfekt førstegangskjøp, eller utleieobjekt med lave felleskostnader og alt i umiddelbar nærhet. Leiligheten fremstår lys og luftig med gode løsninger som gjør det enkelt å utnytte plassen godt. Inkognitogata ligger like bak slottet i en rolig, enveiskjørt gate med representative bygårder og byvillaer med flotte, velstelte forhager.
Kort fortalt:
- Arealeffektiv og lys leilighet
- Gulvvarme på bad og oppholdsrom
- Svært sentralt, i et rolig nabolag
- Hyggelig området i enveiskjørt gate
- Lave felleskostnader med fiberinternett inkludert
- Kort avstand til Vika, Solli Plass, Aker Brygge og Tjuvholmen
Velkommen til visning!
Område
Legg til steder som er viktige for deg
På flyttefot? Tenk kjøp og salg samtidig.
Få din egen rådgiver gjennom hele kjøps- og salgsprosessen. Det starter med en verdivurdering.
Unngå doble boligrenter
Vi tilbyr gunstig forsikring.
Vurderer du utleie?
Få et tilbud fra Utleie KrogsveenHva koster lånet?
Sjekk estimert lånekostnadVil du varsles om lignende boliger?
Ved å lagre ditt boligsøk hos oss får du beskjed når vi har en bolig som ligner denne, før den legges ut på markedet!

