Majorstuveien 17B
7 200 000 kr
67 m²
2 soverom
Solgt

Majorstuen
Lys og attraktiv 3-roms med vestvendt balkong - Heis - P-leie - Peis - Sentral beliggenhet - IN-ordning
Prisantydning
7 200 000 krAndel fellesgjeld
91 341 krOmkostninger
193 310 krTotalpris
7 484 651 kr
Pris
Bruksareal
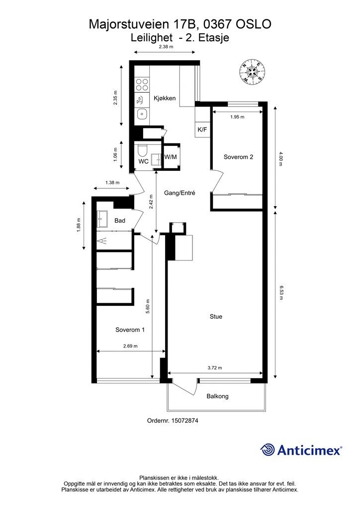
73 m²BRA-I (internt bruksareal)
67 m²BRA-E (eksternt bruksareal)
6 m²TBA (terrasse-balkongareal)
4 m²
Areal
Etasje
2Byggeår
1936Soverom
2 soveromBad
1 badType
EierleilighetEierform
EierseksjonFellesutgifter
5 348 krEnergimerke
Grønn F
Nøkkelinfo
Unngå doble boligrenter
Vi tilbyr gunstig forsikring.
Vurderer du utleie?
Få et tilbud fra Utleie KrogsveenHva koster lånet?
Sjekk estimert lånekostnadBeskrivelse
Kort om eiendommen
Velkommen til Majorstuveien 17B, en lys og tiltalende 3-roms sentralt på Majorstuen presentert av Marius Dyngeland Iversen. Innenfor umiddelbar nærhet har man blant annet Bogstadveien med alt man skulle trenge av fasiliteter. Leiligheten har god standard med bad fra 2012(nye fliser 2021) samt stilrent kjøkken fra 2010(oppgradert 2020). God planløsning med to soverom av god størrelse, samt praktisk løsning med separat WC og bad med dusj.
Kort om boligen:
- Fyring, vv og internett inkl. i felleskostnadene
- Peis
- Enkel adkomst med heis
- IN-ordning
- Veldrevet sameie
- Vaskekjeller
- Separat WC
- Sentral, men tilbaketrukket beliggenhet
- Kort vei til offentlig kommunikasjon
- Nærhet til diverse parker og grøntområder
- Flere parkeringsanlegg med ledig p-leie like ved boligen.
Område
Legg til steder som er viktige for deg
På flyttefot? Tenk kjøp og salg samtidig.
Få din egen rådgiver gjennom hele kjøps- og salgsprosessen. Det starter med en verdivurdering.
Unngå doble boligrenter
Vi tilbyr gunstig forsikring.
Vurderer du utleie?
Få et tilbud fra Utleie KrogsveenHva koster lånet?
Sjekk estimert lånekostnadVil du varsles om lignende boliger?
Ved å lagre ditt boligsøk hos oss får du beskjed når vi har en bolig som ligner denne, før den legges ut på markedet!

