Vakåsveien 19A
5 100 000 kr
130 m²
3 soverom
Komplett salgsoppgave

ASKER / HVALSTAD
Innholdsrik halvpart av tomannsbolig med 3 soverom. Solrik, stor tomt. Sentralt til offentlig kommunikasjon.
Prisantydning
5 100 000 krOmkostninger
148 490 krTotalpris
5 248 490 kr
Pris
Bruksareal
130 m²BRA-I (internt bruksareal)
130 m²TBA (terrasse-balkongareal)
21 m²
Areal
Etasje
2Byggeår
1974Soverom
3 soveromBad
1 badType
Halvpart vertikaldelt boligEierform
EierseksjonFasiliteter
Garasje/P-plass og Balkong/TerrasseÅrlig velavgift
400 krEnergimerke
Grønn G
Nøkkelinfo
Unngå doble boligrenter
Vi tilbyr gunstig forsikring.
Vurderer du utleie?
Få et tilbud fra Utleie KrogsveenHva koster lånet?
Sjekk estimert lånekostnadBeskrivelse
Kort om eiendommen
Innhold og byggemåte
Innhold og byggemåte
Eiendommen
Vakåsveien 19A, 1395 HVALSTAD
Kommunenummer 3203, gårdsnummer 1, bruksnummer 261, seksjonsnummer 2, ideell andel 1/1
Innhold
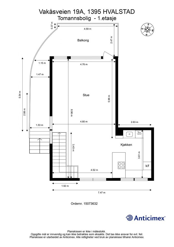
Totalt bruksareal BRA: 130 kvm
BRA-i:
-1. etasje 77 kvm: Entré, gang, mellomgang, trapperom, bad, vaskerom, toalettrom, tre soverom og bod.
1. etasje 53 kvm: Stue/kjøkken.
Åpent areal:
1. etasje 21 kvm: Balkong.
Vedlagte plantegninger er ikke målbare. De oppgitte arealer er hentet fra rapport med befaringsdato 31.07.2025 utført av Anticimex AS. Arealene er beregnet og rom er definert etter dagens faktiske bruk, uavhengig av hva som er godkjent av bygningsmyndighetene.
Nåværende vaskerom var på siste godkjente byggetegninger, datert 23.08.1974, tegnet som tre rom: bod, mat og vaskerom.
Byggemåte
Selger har fått utarbeidet en tilstandsrapport, dvs. en teknisk gjennomgang av boligen hvor eventuelle avvik, risiko for kjøper og prisoverslag for hva som bør gjøres av oppgradering, er skissert. Se særskilt TGIU (tilstandsgrad ikke undersøkt), samt TG2 og TG3 som viser hva som er avvik fra boligens normale slitasje, alder og type, eller som bør/må utbedres. Rapporten og selgers egenerklæring er en del av salgsoppgaven og må leses nøye før bud inngis. Kjøper overtar ansvaret for de opplysninger som fremkommer av salgsdokumentasjonen, og kan ikke gjøre gjeldende som mangel noe som burde vært kjent eller som ikke kan anses å ha betydning for avtalen.
Tomannsbolig over 1 etasje og underetasje. Bygningen har støpt gulv mot grunn. Grunnmur av betong. Etasjeskillere av tre. Yttervegger av trekonstruksjoner utvendig kledd med liggende kledning. Takkonstruksjon av saltaksform utvendig tekket med shingel. Boligen har profilert entrédør med glassfelt. Terrassedør med karmer/rammer av tre og to-lags glass fra ukjent årstall i underetasje. Balkongdør med karmer/rammer av tre og tolags glass fra 1984 i 1.etasje. Vinduer med karmer/rammer av tre og to-lags glass fra byggeår i underetasje. Vinduer med karmer/rammer av tre fra byggeår i 1.etasje (byttet to-lags glass fra 2010 og 2021). Koblede vinduer med karmer/rammer av tre og 2x ett-lags glass fra byggeår i trapperom og vaskerom. Oppvarming med vannbåren varme til radiatorer tilknyttet felles varmesentral i kombinasjon med vedfyring i stue/kjøkken. Elektrisk gulvvarme i bad og toalettrom.
Teknisk anlegg/VVS
Boligen har varmtvannsbereder og stoppekraner samt sentralstøvsuger plassert i vaskerom. Oppvarming med vannbåren varme til radiatorer tilknyttet felles varmesentral (plassert hos nabo). Vannrør av kobber. Synlige avløpsrør av plast og kobber.
Elektrisk anlegg
Boligen har to sikringsskap med automatsikringer og målere. Hovedsikring er på 40A. Boligen har i hovedsak åpent elektrisk anlegg.
Brann
Boligen har brannslukningsapparat og røykvarslere. Har boligen godkjent slukkeutstyr: Ja. Har boligen tilstrekkelig røykvarsling/deteksjon: Ja. Oppfyller boligen krav til rømningsveier: Ja.
Garasje
Frittstående garasje. Støpt gulv mot grunn. Vegger med lecablokker. Takkonstruksjon av saltaksform utvendig tekket med shingel.
Det gjøres spesielt oppmerksom på:
TG 2 er gitt på følgende bygningsdeler:
- Våtrom - Med adkomst fra trapperom: Vannrør av kobber er vurdert til å ha en alder som tilsier at det er begrenset restlevetid. Sluket er isolert inne i dusjsonen. Vannsøl eller lekkasjevann utenfor denne sonen har ingen mulighet til å nå sluket. Tettesjiktet har en alder som tilsier at restlevetiden er usikker. Avløpsrør (unntatt sluk) er vurdert til å ha en alder som tilsier at det er begrenset restlevetid. Dørhåndtak/låskasse er slitt. Drenering fra innebygget sisterne er ikke registrert.
- Våtrom - Med adkomst fra mellomgang: TG 2 helhetsvurdering er valgt grunnet rommets alder og enkelte avvik. Se tilstandsrapport for detaljer.
- Kjøkken: Det er kun kullfilter og ikke separat avtrekk fra rommet. Det er ikke montert automatisk lekkasjestopper for å begrense eventuelle lekkasjer fra vanninstallasjoner. Integrert dør til fryser er utilfredsstillende festet. Oppvaskmaskin har behov for justering (skjevt montert). Avløpsrør er vurdert til å ha en alder som tilsier at det er begrenset restlevetid.
- Toalettrom (Ikke våtrom) - Med adkomst fra trapperom: Våtrommet har kun naturlig ventilasjon. Drenering fra innebygget sisterne er ikke registrert.
- Øvrige rom: Det er ingen tilluftsventiler i 1.etasje. Støvkondens påvist ved spiker på panel. Indikerer kuldebru og/eller dårlig isolasjon. Det er registrert sprekker på himling i kjøkken. Parkettgulv bærer preg av alder og slitasje.
- Rom under terreng (kjeller, underetasje, sokkeletasje): Det har vært fuktskader på yttervegg i bod under trapp. Dette er nå utbedret. Men fuktindikatorinstrument viser utslag ved overflatesøk i hjørnet på gulv/vegg som ikke kan utelukke at det er fuktproblematikk i grunnmur og kapillært oppsug fra grunnen. Gulvoverflater bærer preg av alder og slitasje. Sprekk på gulvfliser i entré. Kjeller har gulv/vegger av mur/betong og det er derfor ikke utført fuktmåling. Dørbladet til innerdør ved soverom 2 og 3 har kontakt med dørterskel/dørkarm, noe som gjør at døren henger når den åpnes og lukkes.
- Innvendige trapper: Trappen er slitt/aldringspreget, men forholdet vurderes til å være av estetisk karakter. Det registreres knirk i trappen. Trappen har ikke håndløper på begge sider. Rekkverket har åpninger på mer enn 0,10 meter.
- Etasjeskiller - 1.etasje og underetasje: 1.etasje: Det er noe merkbare skjevheter i stue/kjøkken. Forskjellen mellom høyeste og laveste punkt er målt til ca. 21 mm og ca. 12 mm i kryssmåling.
- Tekniske anlegg, VVS anlegg (Sjekkpunkter utover det som er inkludert i andre rom): Avløpsrørene er skjult og eventuell stakeluke er ikke lokalisert. Stoppekraner er av eldre type. Anbefalt brukstid er passert.
- Elektrisk anlegg: Det er ikke fremlagt samsvarserklæring på det elektriske anlegget (tilstandsgrad settes i henhold til NS3600).
- Yttervegger inkl. fasader og konstruksjon: Utvendig kledning har behov for overflatebehandling mot syd i underetasje. Det er registrert malingsavflassing på skjøt av hjørnekasse mot syd.
- Dører og vinduer: Vinduer er av eldre dato og har behov for oppgraderinger/ overflatebehandling. Ytterdører er av eldre dato og har behov for oppgraderinger/overflatebehandling.
- Balkonger, terrasser, veranda etc: Rekkverkshøyden er under 1,0 meter. Markiseduk er slitt.
- Drenering: Grunnmurens utvendige fuktsperre er ikke avsluttet med beslag/topplist, noe som for eksempel medfører at det kan komme vann bak fuktsperren. Dreneringens tilstand og funksjon påvirker boligens innvendige konstruksjoner og bruksområder. Dreneringen er nedgravd og skjult, og tilstanden vurderes derfor i hovedsak ut fra alder.
- Frittstående byggverk (garasje): TG 2 gjelder taktekking: Det er registrert symptomer på elde og slitasje, selv om det ikke ble observert tegn på lekkasjer eller skader, anbefales oppfølging med jevnlig ettersyn slik at vedlikeholds- og eventuelle utbedringstiltak kan iverksettes ved behov.
TG 3 er gitt på følgende bygningsdeler:
- Våtrom - Med adkomst fra trapperom: Lekkasje i toalettsisterne. Pakning eller flottør må skiftes ut.
- Yttertak: Helhetsvurdering: Taktekkingen bærer preg av høy alder og høy slitasje samt mye mose. Konsekvens kan være økt fare for fuktvandring under svingel og påfølgende skader på undertak. Taktekking samt renner og beslag må fornyes.
TGIU (tilstandsgrad ikke undersøkt):
- Våtrom - Med adkomst fra trapperom: Våtrommet har vegger av mur/betong og det er derfor ikke utført hulltaking/fuktmåling.
- Grunnmur, fundamenter: Fundamenter er naturgitt skjult, og det er for øvrig ingen sikre og dokumenterte opplysninger om type fundamenter som huset har. Byggegrunnens beskaffenhet er ukjent.
Se supplerende tekst i tilstandsrapporten om overnevnte bygningsdeler. Kjøper overtar ansvar og risiko for dette. Les forøvrig mer om byggemåte og den tekniske tilstanden i rapporten.
Se vedlagt dokument til salgsoppgaven med selgers egenerklæring for tilleggsinformasjon til tilstandsrapporten.
Standard
Underetasje:
Entré
Entré med plass til ytterjakker og sko.
Gang:
Fra entreen kommer man videre til gangen som leder til etasjens 3 soverom, vaskerom, toalettrom og bad.
Soverom
I underetasjen er det 3 soverom. Hovedsoverommet er av god størrelse og har plass til dobbeltseng med nattbord på hver side. Hovedsoverommet har direkte utgang til hagen. De to andre soverommene egner seg godt til gjesterom, barnerom eller kontor.
Vaskerom:
Vaskerom fra byggeår. Gulvflate belagt med gulvbelegg. Vegger i malt mur. Himling med tapet. Vegghengt utslagsvask i rustfritt stål med to-greps armatur. Vanntilførsel til vaskemaskin men ingen avløp. Gulvstående skap. Varmtvannsbereder på ca. 200 liter fra 2019 plassert i hjørnet. Sentralstøvsuger. Naturlig avtrekksventil i himling. Tilførselsrør av kobber og stoppekraner plassert over varmtvannsbereder. Radiator plassert på vegg. Vannrør av kobber. Synlige avløpsrør av plast og kobber.
Toalett-rom:
Toalettrom oppgradert i ukjent årstall. Flislagt gulv med varme. Vegger med fliser/malt mur. Nedsenket himling med downlights. Vegghengt servantskap. Ovenpåliggende servant med ett-greps armatur. Speil på vegg over servant. Vegghengt toalett. Naturlig avtrekksventil i himling. Vannrør av kobber. Synlige avløpsrør av plast.
Bad:
Baderom oppgradert i ukjent årstall. Flislagt gulv med varme og flislagte vegger. Himling med hvite himlingsplater. Vegghengt servantskap. Ovenpåliggende servant med ett-greps armatur. Speilskap med belysning på vegg over servant. Vegghengt høyskap ved siden av servant. Dusjsone med delvegger og skyvedør av glass. Dusjarmatur tilkoblet hånddusj. Vegghengt toalett. Elektrisk avtrekksvifte på yttervegg. Vannrør av kobber. Synlige avløpsrør av plast.
Bod:
Bod på 2 kvm under trapp som passer perfekt til lagring.
1. Etasje:
Stue og spisestue
Lys og romslig stue med god plass til sittegruppe og TV-område. Peisovn for ekstra varme på kjølige dager. Det er åpen løsning mellom stue og spisestue, samt mellom spisestue og kjøkken. Dette skaper en veldig god atmosfære når man har besøk av venner og familie. Fra stuen er det direkte utgang til sydøst-vendt balkong på 21kvm med god utsikt.
Kjøkken
Åpen kjøkkenløsning med kjøkkenøy. Kjøkkeninnredning med slette fronter fra omkring 2011. Benkeplate av laminat. Planlimt oppvaskkum i rustfritt stål med ett-greps armatur. Fliser og stikkontakt på vegg over kjøkkenbenk. Integrert kjøleskap med fryser, oppvaskmaskin, kaffemaskin, to stekeovner og induksjonstopp. Takhengt ventilator med kullfilter. Vannrør av kobber. Synlige avløpsrør av plast. Kjøkkenet har montert komfyrvakt.
Alle hvitevarene medfølger ved salg. Det gjøres oppmerksom på at hvitevarene er kjøpt for noen år tilbake, og kjøper må forvente slitasje som følge av alder og normal bruk.
Garasje:
Boligen har garasjeplass i felles dobbelgarasje delt med naboen i 19B.
Lagringsplass
Overflater
Gulv: parkett.
Vegger: malt tapet, malt strie, stående panel.
Himling: hvite himlingsplater.
Løsøre og tilbehør
Vi viser til liste fra Norges Eiendomsmeglerforbund som gjelder fra 01.01.2020 angående løsøre og tilbehør.
Oppvarming
Boligen varmes opp via vannbåren varme til radiatorer tilknyttet felles varmesentral. Vedfyring i stue/kjøkken. Elektrisk gulvvarme i bad og toalettrom.
Dersom beboelsesrom ikke har vegg- eller fastmonterte varmekilder ved visning, følger dette heller ikke med.
Ferdigattest/brukstillatelse
Det foreligger ferdigattest på boligen/tilbygg, datert 26.11.1976. Denne kan fås ved henvendelse til megler.
På godkjente byggetegninger, datert 23.08.1974, var dagens vaskerom tegnet som vaskerom, mat og bod. I dag er rommene slått sammen og delene som var mat og bod er ikke omsøkt eller godkjent for varig opphold.
Kjøper overtar alt ansvar, kostnad og risiko for dette videre.
Det foreligger ferdigattest for garasjen, datert 18.01.1977. Denne kan fås ved henvendelse til megler.
Tinglyste heftelser og rettigheter
Eiendommen overdras fri for pengeheftelser med unntak av:
Dagboknr 17680, tinglyst 21.11.1974, type heftelse: Nedre Vakås Vel
For sikring av betaling av festeavgift til vellet.
Det er tinglyst følgende servitutter på eiendommen.
Dagboknr 10311, tinglyst 10.07.1974, type heftelse: Bestemmelse om adkomstrett
Omhandler hva eierne av tomten plikter å gjøre, blant annet å holde bygning og tomt i ordentlig stand, ikke drive sjenerende virksomhet på tomten m.m.
Ved utvendig oppussing må det ikke benyttes skjemmende materialer eller maling.
Dagboknr 10308, tinglyst 10.07.1974, type heftelse: Bestemmelse om deleforbud.
Tomten eller deler av denne kan kun avståes til gate- og veigrunn eller grunn til kraft- og telefonledninger, vann- og kloakkledninger o.l. med lagets samtykke.
Servituttene vil følge eiendommen. Kjøpers bank vil få prioritet etter ovennevnte heftelser og servitutter.
Eventuell adgang til utleie
Eiendommen har ikke separat utleieenhet. Det vil normalt være anledning til utleie av hele eiendommen eller enkeltrom, såfremt utleiearealet er bygningsmessig godkjent for varig opphold og har forsvarlige radonnivåer.
Diverse
Selger har ikke bebodd eiendommen og har derfor ikke kunnskap om eiendommens tilstand. Kjøper må derfor kunne påregne at det kan være flere feil og mangler som normalt oppdages ved bruk av boligen, men som selger ikke har mulighet å vite. Kjøper overtar derfor all risiko for denne type feil og mangler.
Det er to strømmålere i boligen. En til huset og en til garasjen/utelys. I følge selger og nabo vegg-i-vegg, så har avtalen vært at nabo betaler strøm for varmepumpe/oppvarming for radiatorer mot at denne leiligheten står for strøm i garasje/utelys.
Det er, i følge velformann, planlagt gravearbeider i forbindelse med arbeider på vann-/avløpsrør på noen eiendommer sør for Vakåsveien. I forbindelse med dette må det påregnes noe støy fra arbeidet og potensielt noe dårligere fremkommelighet noen steder.
I følge selger vil det graves kabelgrøfter for strømkabler som til nå har vært i luften, fra veien og inn mot naboen i Vakåsveien 19B. Videre fra 19B vil strømkablene gå videre via huset til 19A (denne enheten). Det vil komme noe kostnader i forbindelse med dette, men hvor mye er ikke sikkert p.t.
Tilbud av produkter og tjenester fra våre samarbeidspartnere
Vi er opptatt av verdiskapning, og har knyttet til oss samarbeidspartnere som skal sikre våre kunder de beste produkter og tjenester;
• Gjensidige leverer boligselgerforsikring og tilbyr bygningsforsikring
• Boligkjøperforsikring levers av Hiscox og med Sedgwick som skadebehandler, og er formidlet gjennom Gjensidige.
• BN bank tilbyr finansieringsløsninger
• Vår avdeling Krogsveen Pluss tilbyr flyttetjenester som utvask, visningsvask, lager, tømming og transport av flyttelass, i tillegg til å formidle kontakt med Flip for overflateoppussing.
• I forbindelse med overtagelse av eiendommen tilbyr Overo avtale om strøm, alarm og bredbånd.
• Krogsveen er, sammen med øvrige bransjeaktører, medeier i den digitale annonseringsplattformen Hjem.
Beliggenhet og tomteforhold
Beliggenhet og tomteforhold
Beliggenhet
Eiendommen ligger i en populær område i Asker. Hvalstad barneskole, flere barnehager i området. Få minutters gange til offentlig kommunikasjon med tog fra Vakås stasjon eller buss fra Kirkeveien ca. 900 meter unna boligen. Kort vei til nærbutikken Joker v/ Vakås stasjon. Leikarvollen friområde ligger i nærområdet. Eiendommen ligger flott og solrikt til. Barnevennlig område med kort avstand til flotte turområder med blant annet idylliske Semsvannet og Vestmarka. Fra eiendommen er det 5 minutter med bil til Holmenskjæret med badestrand, båthavn og kjøpesenteret Holmen-senteret. Vis à vis Holmen-senteret ligger i tillegg Holmen Tennis, et av Norges største tennisanlegg, og Holmenhallen med et hav av aktivitetstilbud, samt kunstgress fotballbane. Det er kun 4 min. kjøring til påkjøringen til E-18 på Holmen. Nærhet til Sandvika og gangavstand til Asker sentrum med utvidet shoppingtilbud.
Asker byr på et moderne handelssentrum med spennende arkitektur, gågater og hyggelige butikkområder. Her finner du også et blomstrende kunst-, kultur- og uteliv. Asker kulturhus er en flott møteplass for alle, med blant annet stor teater/konsertsal, kino, galleri og ungdomsklubb, og ligger i umiddelbar nærhet til boligen. Asker museum er også verdt et besøk.
Dagligvarehandelen kan gjøres ved bl.a. Joker og Kiwi. Ønsker du ytterligere servicetilbud er det ikke lange avstanden til Trekanten senter i Asker, et populært kjøpesenter og samlingspunkt i sentrum. Senteret har 65 butikker og 800 parkeringsplasser. Sandvika Storsenter og Liertoppen kjøpesenter ligger også godt innen rekkevidde via offentlig kommunikasjon eller bil.
Området gir mulighet for offentlig kommunikasjon via buss og tog. Langs Kirkeveien går det buss i retning Asker og Sandvika, med videre forbindelse med tog. Busstoppet Ravnsborg ligger ca. 900 meter unna boligen, og har avgang hvert 15 minutt. Direkte pendlerrute til Fornebu. Fra Asker bruker toget 18 minutter til Nationaltheateret og 12 minutter til Drammen. Ønsker du å benytte bilen er det enkel adkomst til E18 ved Holmen.
Adkomst
Se vedlagt kartskisse nederst i annonsen på Krogsveen.no. Ved å trykke på kartet får du enkelt tilgang til en spesifisert reiserute fra din startdestinasjon til boligen. Det vil bli skiltet med Krogsveen visningsskilt ved fellesvisninger. Velkommen til visning!
Barnehager, skoler og fritid
Barnehager
- Bjørndalen barnehage (1-5 år)
- Haugtussa barnehage (1-2 år)
- Hvalstad barnehage (1-5 år)
Skoler
- Hvalstad skole (1-7 kl.)
- Hofstad skole (1-7 kl.)
- Jansløkka skole (1-7 kl.)
- Torstad ungdomsskole (8-10 kl.)
- Landøya ungdomsskole (8-10 kl.)
- Nesbru videregående skole
- Asker videregående skole
Beskrivelse av tomt
Felleseie tomt på 1080 kvm opparbeidet med blant annet asfaltert internvei, garasje, gressplen, trær, prydbusker og diverse beplantning.
Utgang fra stue/kjøkken til sydøstvendt balkong på 21 kvm. Gulvflate belagt med terrassebord. Rekkverk av tre. Rekkverkshøyden er målt til ca. 90 cm. El-markise.
Parkering
Boligen har garasjeplass i en dobbelgarasje som deles med naboen. Ellers mulighet for parkering ved siden av huset.
Vei, vann og avløp
Eiendommen har adkomst via kommunal vei.
Eiendommen er tilknyttet kommunalt ledningsnett via private stikkledninger. Eier er selv ansvarlig for private stikkledninger til boligen.
Regulerings-og arealplaner
Eiendommen er regulert til frittliggende småhusbebyggelse i henhold til reguleringsplan "Vakås borettslag" datert 12.05.1949 med tilhørende reguleringsbestemmelser datert 12.05.1949.
Eiendommen ligger også i område for kommuneplanens arealdel iht. Kommuneplan for Asker 2023-2035, datert 13.06.2023.
Eiendommen ligger også i område for kommunedelplanens arealdel iht. "E18 Slependen-Drengsrud", datert 08.11.2016.
Utsnitt av plan med tilhørende bestemmelser kan fås ved henvendelse til megler.
Økonomi
Økonomi
Kommunale utgifter
Kommunale avgifter var kr 17 547,- for 2024. I dette inngår gebyr for vann, avløp og renovasjon.
Selger har ikke bebodd eiendommen og har således ikke kjennskap til øvrige løpende utgifter for eiendommen.
Formuesverdi
Formuesverdi for 2023 var kr 1 471 401,- ifølge skatteetaten. Beløpet forutsetter at eier bor fast i boligen (primærbolig).
Ved eventuell øvrig bruk av eiendommen (f.eks. fritidsbolig, pendlerbolig, utleieobjekt) var formuesverdien for 2023 kr 5 885 602,-.
Formuesverdien justeres normalt årlig. Se skatteetaten.no for mer informasjon om fastsettelse av formuesverdien.
Omkostninger
5 100 000,00 Prisantydning
Omkostninger
127 500,00 Dokumentavgift til staten (2,5% av kjøpesum)
19 900,00 Gjensidige Boligkjøperpakke (valgfri)
545,00 Tinglysing panterettsdokument
545,00 Tinglysing skjøte
--------------------------------------------------------
148 490,00 Omkostninger totalt
--------------------------------------------------------
5 248 490,00 Totalpris inkl. omkostninger
--------------------------------------------------------
Totalpris inkl. omkostninger forutsetter kjøp til prisantydning.
Det tas forbehold om endringer i avgifter og gebyrer.
Tilbud om lånefinansiering
Megler formidler gjerne kontakt med rådgiver hos vår samarbeidspartner BN Bank. De har konkurransedyktige betingelser samt rask og løsningsorientert behandling av din lånesøknad. Krogsveen mottar et honorar for denne formidlingen.
Betalingsbetingelser
Kjøpesum inkludert omkostninger, samt pantedokument tilknyttet eventuelt lån, skal være disponibelt hos megler 2 virkedager før overtagelsen.
Annen viktig informasjon
Annen viktig informasjon
Eier
Amanda Schioldborg
Overtakelse
Etter nærmere avtale.
Velforening
Boligen er tilknyttet Nedre Vakås Vel.
Nedre Vakås Vel står for drift av fellesarealer og for dialog med kommune o.l. i forbindelse med driften.
Den årlige velavgiften går til å betale festeavgiften for fellesarealene nedenfor Fasan- og Vakåsveien, samt felleskostnadene for drift av vellet.
Boligselgerforsikring
Selger har i forbindelse med salget tegnet boligselgerforsikring levert av Gjensidige.
Boligselgerforsikringen dekker selgers ansvar etter avhendingsloven begrenset oppad til kr 14 millioner. Dersom kjøper oppdager forhold ved eiendommen som hen mener utgjør en mangel ved eiendommen, vil Gjensidige behandle reklamasjonen på vegne av selger. Forsikringsvilkår kan fås ved henvendelse til megler.
Vedlagt salgsoppgaven følger selgers egenerklæringsskjema og tilstandsrapport. Interessenter må sette seg inn i dokumentene før bud inngis.
Boligkjøperforsikring
Innen kontraktsmøtet må kjøper ta stilling til om det ønskes å bestille Boligkjøperpakken gjennom Gjensidige. I denne gunstige pakken er boligen ferdig forsikret og inkluderer rettshjelpsforsikring, også kalt Boligkjøperforsikring. Rettshjelpsforsikring gir trygghet og tilgang på profesjonell juridisk hjelp dersom det oppdages uventede feil eller mangler det første året etter overtagelse. Forsikringsselskapet behandler i så fall ethvert mangelskrav kjøper måtte ha overfor selger.
Boligkjøperpakken inkluderer bygningsforsikring for hus og hytte, innboforsikring, flytteforsikring og dobbel rentedekning - i situasjoner hvor kjøper ikke får solgt nåværende primærbolig.
Kjøper mottar ingen særskilt faktura for Boligkjøperpakken da kostnaden det første året legges til kjøpesummen for boligen. Det gjøres oppmerksom på Krogsveen mottar et honorar for denne formidlingen.
Produktark for Boligkjøperpakken ligger vedlagt i salgsoppgaven.
Dersom ikke boligkjøperpakke ønskes kan kun rettshjelpsforsikring, også kalt boligkjøperforsikring, tegnes særskilt via megler. Rettshjelpsforsikringen varer i 5 år fra overtagelse og leveres gjennom Gjensidige. Ta kontakt med megler for ytterligere informasjon.
Selskap og privatpersoner som driver med kjøp/salg/utvikling som ledd i egen næringsvirksomhet kan ikke tegne boligkjøperpakke eller rettshjelpsforsikring.
Budgivning
Forbrukerinformasjon om budgivning er vedlagt denne salgsoppgaven og er også på vår hjemmeside Krogsveen.no. Alle bud og budforhøyelser må inngis skriftlig. I tillegg må legitimasjon være fremlagt sammen med signatur fra budgiver.
Vi oppfordrer til å gi bud elektronisk via GI BUD-knappen på eiendommens hjemmeside på Krogsveen.no. Da vil samtlige vilkår bli oppfylt.
Eventuelle forhøyelser eller endringer av budet kan bekreftes pr SMS eller på e-post. Vi oppfordrer alltid til å kontakte megler pr. telefon i tillegg da forsinkelser i SMS og e-post kan forekomme.
For at budene skal kunne bli behandlet og videreformidlet skriftlig til alle involverte parter, må alle bud ha en tilstrekkelig lang akseptfrist, jf. eiendomsmeglingsforskriften § 6-3.
Selger må også skriftlig akseptere budet før aksept kan formidles til budgiver. Akseptfrist bør derfor være på minimum 30 minutter, og budforhøyelser må derfor skje i god tid før fristens utløp.
Bud i forbrukerforhold kan uansett ikke settes med kortere frist enn kl. 12.00 første virkedag etter siste annonserte visning. I tillegg kan ikke budet ha forbehold om at det skal holdes hemmelig ovenfor øvrige interessenter. Megler har iht lov om eiendomsmegling ikke anledning til å videreformidle disse budene, og de vil dermed heller ikke bli journalført.
Etter at eiendommen er solgt vil kjøper og selger få tilsendt budjournal. Øvrige budgivere kan få utlevert kopi av budjournalen i anonymisert form.
Hvitvaskingsreglene
I henhold til lov om hvitvasking og terrorfinansiering har megler plikt til å gjennomføre kontrolltiltak overfor kunder, herunder fullmektiger. Dette innebærer bl.a. å bekrefte kunders og reelle rettighetshaveres identitet på bakgrunn av fremvist gyldig legitimasjon eller på annen godkjent måte, samt å innhente opplysninger om kundeforholdets formål og tilsiktede art.
Dersom slike kundetiltak ikke kan gjennomføres, kan megler ikke etablere kundeforholdet eller utføre transaksjonen.
Hvis kjøper ikke bidrar til gjennomføring av kundekontrollen og dette fører til at transaksjonen blir forsinket eller ikke kan gjennomføres, vil dette ansees som mislighold av avtalen og gi selger rettigheter etter avhendingslova kapittel 5. I tilfeller der selger ikke bidrar til gjennomføring av løpende kundekontroll underveis i oppdraget, er det selger som misligholder sine forpliktelser etter avtalen og gi kjøper rettigheter etter avhendingslovens kapittel 4. Partene er selv ansvarlige for eventuelle kostnader og ansvar dette kan medføre. Eiendomsmegleren eller eiendomsmeglingsforetaket kan ikke holdes ansvarlig for de konsekvenser dette vil kunne få for partene eller andre som har interesser i eiendomshandelen.
Kjøper oppfordres til å innbetale kjøpesummen som ikke kommer fra låneinstitusjon i én samlet innbetaling fra egen konto i norsk bank. Megler har plikt til å melde fra til Økokrim om eiendomshandler som fremstår som mistenkelige. Melding sendes Økokrim uten at partene varsles.
Personopplysningsloven
I henhold til personopplysningsloven gjør vi oppmerksom på at interessenter kan bli registrert for videre oppfølging.
Lovanvendelse
Generelle bestemmelser
Salgsoppgaven er basert på de opplysningene selger har gitt til megler, den bygningssakyndiges tilstandsrapport, samt opplysninger innhentet fra kommunen, Kartverket og andre tilgjengelige kilder. Det er viktig at kjøper setter seg grundig inn i alle salgsdokumentene, herunder salgsoppgave, tilstandsrapport og selgers egenerklæring. Kjøper anses kjent med forhold som er tydelig beskrevet i salgsdokumentene, og slike forhold kan ikke påberopes som mangler. Dette gjelder uavhengig av om kjøper har lest dokumentene. Alle interessenter oppfordres til å undersøke eiendommen nøye, gjerne sammen med fagkyndig før bud inngis. Kjøper som velger å kjøpe usett kan ikke gjøre gjeldende som mangel noe han burde blitt kjent med ved undersøkelsen.
Dersom det er behov for avklaringer, anbefaler vi at interessenter rådfører seg med eiendomsmegler eller egne rådgivere før det legges inn bud.
En bolig som har blitt brukt i en viss tid, har vanligvis blitt utsatt for slitasje og skader kan ha oppstått. Slik bruksslitasje må kjøper regne med, og det kan avdekkes enkelte forhold etter overtakelse som nødvendiggjør utbedringer. Normal slitasje og skader som nødvendiggjør utbedring, er innenfor hva kjøper må forvente og vil ikke utgjøre en mangel.
Kjøper og selgers rettigheter og plikter reguleres av avtalen mellom partene, samt informasjonen som har vært tilgjengelig for kjøperen i forbindelse med handelen. Avtalen utfylles av avhendingsloven, og det gjelder ulike avtalevilkår avhengig av om kjøper er forbrukerkjøper eller ikke. Dette er nærmere beskrevet nedenfor.
På grunn av ulike avtalevilkår kan selger vurdere bud fra en som ikke er forbruker, ulikt fra en forbrukers bud. Dersom kjøper ikke er forbruker, er selger sitt mulige mangelsansvar begrenset fordi eiendommen selges "som den er". Selger kan ikke ta «som den er»- forbehold overfor en forbrukerkjøper. Selv et lavere bud fra en som ikke er forbruker kan foretrekkes fordi begrensningen i mulig mangelsansvar kan ha egenverdi for selger. Selger står fritt til å forkaste eller akseptere ethvert bud, og er for eksempel ikke forpliktet til å akseptere høyeste bud.
Budgiver skal i budskjema avgi egenerklæring om budgiver er forbruker eller næringsdrivende/ person som hovedsakelig handler som ledd i næringsvirksomhet. Budgivere får informasjon dersom andre bud er inngitt av en som ikke er forbruker.
Forbrukerkjøp - definisjon
Med forbrukerkjøp menes kjøp av eiendom når kjøperen er en fysisk person som ikke hovedsakelig handler som ledd i næringsvirksomhet.
Forbruker – avtalevilkår
Eiendommen har en mangel dersom den ikke er i samsvar med kravene som følger av avtalen, eller det foreligger brudd på bestemmelsene i avhendingsloven §§ 3-2 til 3-8. Hvis eiendommen ikke er i samsvar med det kjøperen må kunne forvente ut ifra alder, type og synlig tilstand, kan det være grunnlag for mangelskrav. Det samme gjelder hvis det er holdt tilbake eller gitt uriktige opplysninger om eiendommen. Dette gjelder likevel bare dersom man kan gå ut ifra at det virket inn på avtalen at opplysningen ikke ble gitt eller at mangelskravet ikke blir rettet i tide på en tydelig måte.
Boligen kan ha en mangel etter avhendingsloven § 3-3 andre ledd, dersom det er avvik mellom opplyst og faktisk innvendig areal, forutsatt at avviket er på 2% eller mer og minimum 1 kvm.
Ved beregning av et eventuelt prisavslag eller erstatning må kjøper selv dekke tap/kostnader opptil et beløp på kr 10 000 (egenandel).
Ikke-forbruker (næringsdrivende) – definisjon
Hvis kjøper er en juridisk person, eller en fysisk person som hovedsakelig handler som ledd i næringsvirksomhet, vil kjøpet ikke anses som et forbrukerkjøp.
Ikke-forbruker – avtalevilkår
Eiendommen har en mangel dersom den ikke er i samsvar med kravene som følger av avtalen.
Eiendommen selges «som den er», og selgers ansvar utover det konkret avtalte er da begrenset etter avhendingsloven § 3-9, første ledd andre setning.
Avhendingsloven § 3-3 andre ledd fravikes, og hvorvidt boligens arealsvikt utgjør en mangel vurderes etter avhendingsloven § 3-8.
Informasjon om kjøpers undersøkelsesplikt, herunder oppfordringen om å undersøke eiendommen nøye, gjelder også for kjøpere som ikke anses som forbrukere.
Det forutsettes at hjemmel overføres til kjøper. Hvis kjøper ikke ønsker hjemmelsoverføring av eiendommen, må det tas forbehold om dette i budet.
Meglers vederlag
Meglers vederlag betales av selger og er avtalt til:
Vederlag: 1% av salgssummen.
Minimumsvederlag: kr 60.000,-
Tilrettelegging: kr 17.000,-
Oppgjør: kr 7.500,-
Markedspakke: kr 28.950,-
Visninger: kr 3.500,- pr. visning etter 2. visning
Oppslag eiendomsregister: kr 2.900,-
Megler har i tillegg krav på dekning av følgende utlegg:
Innhenting av offentlige opplysninger Asker kommune: kr 4.171,-
Tinglysing av sikring: kr 545,-
Annonsen i Budstikka.no: kr 1.750,-
Foto: kr 5.890,-
Tilstandsrapport: kr 19.950,-
Opplysninger om oppdraget
Oppdragsnummer 15-0039/25
Eiendomsmegler Krogsveen AS, avd. Asker
Torvveien 1, 1383, ASKER
950 007 613
Oppdragets KR-kode KR15.2539
Dato
Sist oppdatert: 13. januar 2026 kl. 12:01
Dokumenter
Dokumenter
PDF – 301 KB
PDF – 682 KB
PDF – 1 MB
PDF – 749 KB
PDF – 6 MB
PDF – 580 KB
PDF – 312 KB
PDF – 29 KB
PDF – 127 KB
PDF – 392 KB
Område
Legg til steder som er viktige for deg
Visning
Det er ingen planlagte visninger. Meld deg på for å avtale en tid som passer.
Lurer du på noe?
Unngå doble boligrenter
Vi tilbyr gunstig forsikring.
Vurderer du utleie?
Få et tilbud fra Utleie KrogsveenHva koster lånet?
Sjekk estimert lånekostnadVil du varsles om lignende boliger?
Ved å lagre ditt boligsøk hos oss får du beskjed når vi har en bolig som ligner denne, før den legges ut på markedet!

