Vågsdalsfjorden 114
2 990 000 kr
150 m²
5 soverom
Solgt

Mykland
BUD MOTTATT! Velholdt og perfekt familiehytte ved vannkanten - 6 sov, 2 bad ++ | Naturskjønt område
Prisantydning
2 990 000 krOmkostninger
95 740 krTotalpris
3 085 740 kr
Pris
Bruksareal
150 m²BRA-I (internt bruksareal)
150 m²TBA (terrasse-balkongareal)
117 m²
Areal
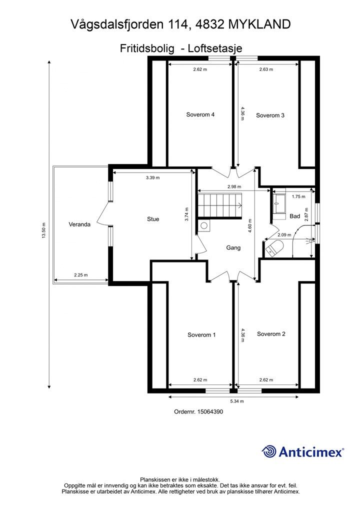
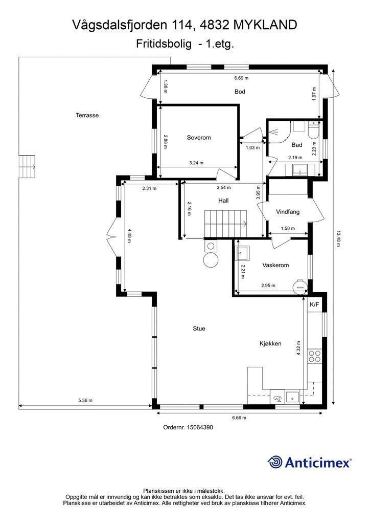
Etasje
2Byggeår
2011Soverom
5 soveromBad
2 badTomteareal
1 196 m² (eiet)Type
Fritidseiendom på fjelletEierform
EietFasiliteter
Balkong/TerrasseEnergimerke
Gul C
Nøkkelinfo
Vurderer du utleie?
Få et tilbud fra Utleie KrogsveenHva koster lånet?
Sjekk estimert lånekostnadBeskrivelse
Kort om eiendommen
Vågsdalsfjorden er et magisk ferieområde med natur og aktivitetsmuligheter på alle kanter. Eiendommen har sol fra tidlig morgen til ca. kl. 21 midtsommers, romslig tomt, 16 soveplasser, to bad, eget vaskerom, to stuer, kjøkken og mye mer. Det er gode løsninger til helårsbruk og et område som har et flott aktivitetstilbud enten man liker idylliske skiturer, turstier, padling, bading eller andre aktiviteter. Eiendommen ligger på førsterekka mot fjorden, med lite innsyn. Dette er en fritidseiendom som er perfekt for å kjøpe sammen med andre med mange soverom (6 soverom inkl. loftstua) og praktiske løsninger.
Det tar ca. 50 min. i bil enten man skal til Arendal, Grimstad eller Kristiansand fra eiendommen. Det er god standard med borrevann, renseanlegg, brøyting mv. som inngår i velavgiften.
Område
Legg til steder som er viktige for deg
På flyttefot? Tenk kjøp og salg samtidig.
Få din egen rådgiver gjennom hele kjøps- og salgsprosessen. Det starter med en verdivurdering.
Vurderer du utleie?
Få et tilbud fra Utleie KrogsveenHva koster lånet?
Sjekk estimert lånekostnadVil du varsles om lignende boliger?
Ved å lagre ditt boligsøk hos oss får du beskjed når vi har en bolig som ligner denne, før den legges ut på markedet!

