Gydas vei 49
3 600 000 kr
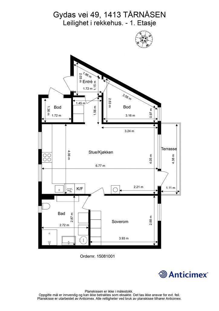
59 m²
1 soverom
Solgt
TÅRNÅSEN
Lys "rekkehusleilighet" med solrik balkong - trappefri adkomst - garasje - sentralt og kort vei til marka
Prisantydning
3 600 000 krAndel fellesgjeld
155 923 krOmkostninger
19 295 krTotalpris
3 775 218 kr
Pris
Bruksareal
61 m²BRA-I (internt bruksareal)
59 m²BRA-E (eksternt bruksareal)
2 m²TBA (terrasse-balkongareal)
5 m²
Areal
Etasje
1Byggeår
1986Soverom
1 soveromBad
1 badType
RekkehusEierform
AndelFasiliteter
Garasje/P-plass og Balkong/TerrasseFellesutgifter
4 598 krEnergimerke
Nøkkelinfo
Unngå doble boligrenter
Vi tilbyr gunstig forsikring.
Vurderer du utleie?
Få et tilbud fra Utleie KrogsveenHva koster lånet?
Sjekk estimert lånekostnadBeskrivelse
Kort om eiendommen
Velkommen til Gydas vei 49 - en gjennomgående "rekkehusleilighet" i et veletablert og boområde på Tårnåsen.
Lyse og luftige rom med god planløsning. Boligen inneholder; entré, stue, kjøkken, bad, soverom og rom (rommet er benyttet som soverom, godkjent som bod).
Hovedpunkter:
Flott beliggenhet på tunet med lite innsyn og gjennomgang forbi boligen
Trappefri adkomst
Beliggende høyt i terrenget med gode solforhold og pent utsyn fra balkongen
Balkongdør og vinduer fra 2017
Romslig loft og utvendig bod
Garasjeplass med elbil-lader samt god plass til gjesteparkering
Kort avstand til buss (Oslo-takst) med hyppige avganger til Oslo
Marka rett i nærheten med store turområder sommer som vinter
Kort sykkel- eller biltur til Kolbotn sentrum
Område
Legg til steder som er viktige for deg
På flyttefot? Tenk kjøp og salg samtidig.
Få din egen rådgiver gjennom hele kjøps- og salgsprosessen. Det starter med en verdivurdering.
Unngå doble boligrenter
Vi tilbyr gunstig forsikring.
Vurderer du utleie?
Få et tilbud fra Utleie KrogsveenHva koster lånet?
Sjekk estimert lånekostnadVil du varsles om lignende boliger?
Ved å lagre ditt boligsøk hos oss får du beskjed når vi har en bolig som ligner denne, før den legges ut på markedet!
På flyttefot? Slik gjør vi det enklere for deg
Skreddersydd flyttepakke
Vi fikser håndverkere, vask, pakking, lagring og transport, og legger ut for utgiftene underveis.
Hjelp med både kjøp og salg
Hos oss har du din egen rådgiver gjennom hele kjøps- og salgsprosessen.
Hjelp til finansiering
Vårt samarbeid med BN Bank sikrer deg rask og løsningsorientert hjelp, til konkurransedyktige betingelser.






























