Pesamostubben 47
5 140 000 kr
117 m²
3 soverom
Komplett salgsoppgave

Holter/Eltonåsen
Lekkert og familievennlig enderekkehus over 2 plan med svært god intern beliggenhet-Carport med bod-Balkong og terrasser
Prisantydning
5 140 000 krOmkostninger
149 490 krTotalpris
5 289 490 kr
Pris
Bruksareal
126 m²BRA-I (internt bruksareal)
117 m²BRA-E (eksternt bruksareal)
9 m²TBA (terrasse-balkongareal)
47 m²
Areal
Byggeår
2024Soverom
3 soveromBad
2 badType
RekkehusEierform
EierseksjonFellesutgifter
1 827 krEnergimerke
Rød B
Nøkkelinfo
Unngå doble boligrenter
Vi tilbyr gunstig forsikring.
Vurderer du utleie?
Få et tilbud fra Utleie KrogsveenHva koster lånet?
Sjekk estimert lånekostnadBeskrivelse
Kort om eiendommen
Velkommen til Pesamostubben 47.
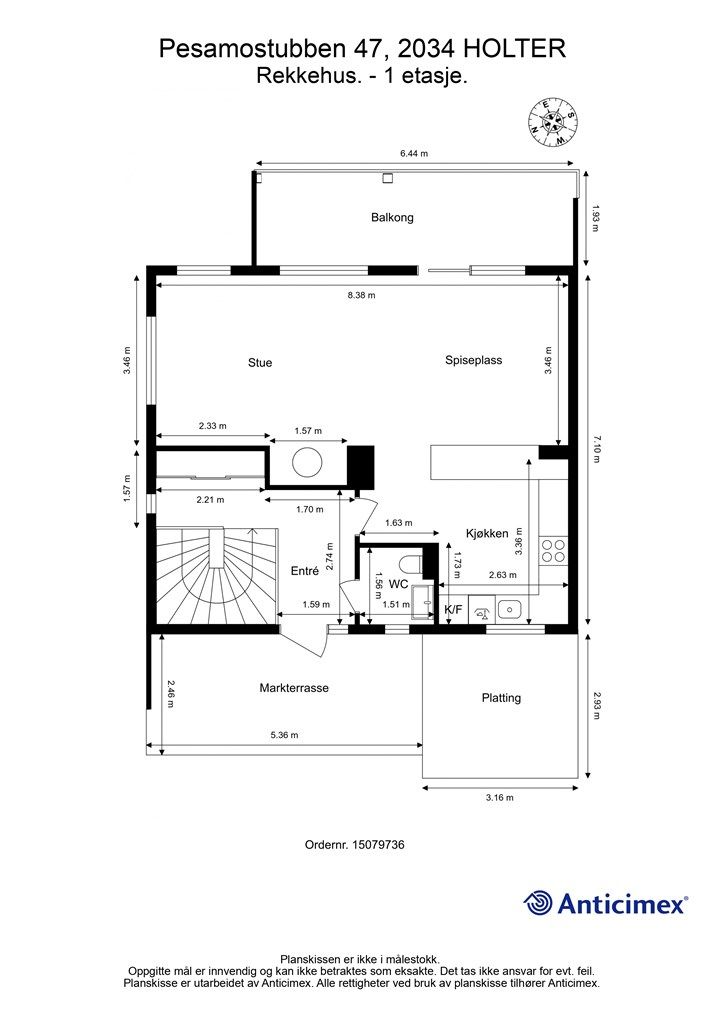
Her har du muligheten til å sikre deg et flott og moderne enderekkehus over 2 plan med carport. Boligen bør inneholde det meste en familie kan tenke seg, og har en praktisk og god planløsning. Boligen har en svært god intern beliggenhet på feltet, og har supre uteplasser som kan benyttes sommer som vinter. Fra både balkong og hage har du flott utsikt samt grense mot furuskog med dyreliv. Eiendommen ligger på en nyere del av etablerte Eltonåsen i Holter. Barnevennlig og populært boområde med veldig kort vei til barnehager og barneskole. Er du glad i turer i skog og mark, er det få områder på Romerike som slår Romeriksåsen. Nærmere beskrivelse: 1. etasje inneholder entre, wc, stue, spiseplass og kjøkken. Underetasjen består av gang, bad bod og 3 soverom.
Innhold og byggemåte
Innhold og byggemåte
Eiendommen
Pesamostubben 47, 2034 HOLTER
Kommunenummer 3238, gårdsnummer 81, bruksnummer 40, seksjonsnummer 10, ideell andel 1/1
Innhold
Totalt bruksareal BRA: 126 kvm
BRA-i:
Underetasje 57 kvm: Gang, bad, bod, 3 soverom.
1. etasje 60 kvm: Entré, wc, stue, spiseplass, kjøkken
BRA-e:
Utebod i carport:
1. etasje 5 kvm: Utebod i carport
Underetasje 4 kvm: Redskapsbod
Åpent areal:
Underetasje 13 kvm: Terrasse
1. etasje 34 kvm: Balkong, markterrasse og platting.
Vedlagte plantegninger er ikke målbare. De oppgitte arealer er hentet fra rapport med befaringsdato 04.03.2026 utført av Anticimex.
Byggemåte
Selger har fått utarbeidet en tilstandsrapport, dvs. en teknisk gjennomgang av boligen hvor eventuelle avvik, risiko for kjøper og prisoverslag for hva som bør gjøres av oppgradering, er skissert. Se særskilt TGIU (tilstandsgrad ikke undersøkt), samt TG2 og TG3 som viser hva som er boligens normale slitasje, alder og type, hva som er avvik fra dette og hva som bør/må utbedres. Rapporten og selgers egenerklæring er en del av salgsoppgaven og må leses nøye før bud inngis. Kjøper overtar ansvaret for de opplysninger som fremkommer av salgsdokumentasjonen, og kan ikke gjøre gjeldende som mangel noe som burde vært kjent eller som ikke kan anses å ha betydning for avtalen.
Bygningen er iht. tilstandsrapporten oppført i tre/mur/betong. Grunnmur av betong. Bygget er oppført med støpt gulv mot grunn. Bygget er oppført med underetasje. Yttervegger av
trekonstruksjoner. Utvendige fasader er kledd med stående trekledning. Etasjeskillere av trekonstruksjoner. Saltak i trekonstruksjoner. Yttertak er belagt
med sedum (planter). Les for øvrig mer om byggemåte og den tekniske tilstanden i rapporten.
Det gjøres spesielt oppmerksom på:
Følgende har fått TG2:
Yttertak:
Inspeksjonsmuligheter: Taket er ikke fysisk inspisert grunnet is og snø (sikkerhetsmessige forhold). Konsekvens er at taket kan være utsatt for slitasje, skader eller feil utførelse som ikke lar seg registrere på grunn av forholdene på befaringsdagen. Foreslått tiltak er videre undersøkelser når forholdene ligger til rette, slik at man kan avdekke om det er behov for utbedringer eller andre nødvendige tiltak.
Følgende har fått TGIU:
Loft - uinnredet /kaldt loft:
Kontroll av diffusjonssperre: Dampsperren mot underliggende etasje er ikke kontrollert, siden ingen deler av isolasjonen var tilgjengelig for å bli løftet opp for å synliggjøre konstruksjonen under. Tilstand og utførelse er derfor ukjent. Foreslått tiltak er videre overvåking, slik at ytterligere undersøkelser kan gjennomføres ved mistanke om fuktproblemer eller lignende
Yttertak:
Takgjennomføringer (takhatter o.l.): Takgjennomføringer er ikke fysisk undersøkt grunnet snø og isforhold.
Skorsteiner (over tak): På bakgrunn av begrensningene (snø og is) lot ikke skorsteinen seg undersøke. Tilstand og utførelse er derfor ukjent, og forholdet bør derfor undersøkes nærmere.
Terrasse/platting:
Konstruksjon og fundamenter: Fundamentene var ikke tilgjengelige for undersøkelser grunnet snø og is, noe som gjorde at utførelsen/tilstanden ikke lot seg kontrollere.
Grunnmur, fundament:
Grunnmur og fundament: Grunnmuren er ikke tilgjengelig for undersøkelser på grunn av at overflatene er dekket av utvendig platekledning.
Carport med bodplass:
Yttertak og takkonstruksjon: Taket er ikke fysisk inspisert grunnet is og snø (sikkerhetsmessige forhold). Konsekvens er at taket kan være utsatt for slitasje, skader eller feil utførelse som ikke registreres grunnet begrenset tilkomst. Yttertaket bør kontrolleres i sin helhet når forholdene ligger til rette.
Kjøper overtar ansvar og risiko for dette.
Selger opplyser i egenerklæringsskjemaet:
Planer og godkjenninger:
Spørsmål: Er det utført radonmåling? Svar: Nei, men det er ifølge utbygger montert radonsperre, og det er observert
radonbrønn ute ved terrasse i underetasje.
Spørsmål: Er det andre forhold av betydning eller sjenanse for eiendommen eller nærområdet? Svar: Ja. Området er under utviklingen.
Standard
Pesamostubben 47 er en flott og moderne rekkehus over 2 plan med carport. Eiendommen ligger på en nyere del av etablerte Eltonåsen i Holter. Boligen har svært god intern beliggenhet og grenser til fellesareal. Barnevennlig og populært boområde med veldig kort vei til barnehager og barneskole.
Entré:
Det første du møter i boligen er et overbygget inngangsparti og du har carport og utebod ved inngang. Du har videre plass til en hyggelig sittegruppe på en skjermet uteplass. Entreen gir et solid førsteinntrykk med mulighet for lagring av klær og sko og annen oppbevaring.
Kjøkken:
Åpen kjøkkenløsning. Tidløst og lekkert HTH Innredning. Glatte fronter. Benkeplate med laminert overflate. Nedfelt kjøkkenvask med armatur. Benkeskapsbelysning og
stikkontakter over kjøkkenbenk. Integrert stekeovn, platetopp, oppvaskmaskin og kjøleskap med fryser. Mekanisk kjøkkenventilator i overskap med avtrekk ut
over tak. Komfyrvakt.
Stue:
Stuen fremstår med ekstra god takhøyde som gir en meget luftig romfølelse. Det er vindusflater som slipper inn rikelig med naturlig lys. Rommet har parkett og malte flater og her har du god plass til spisegruppe og sofaavdeling. I rommet har du også vedovn som gir en ekstra lun og god varme om vinteren. Fra stuen er det utgang til en super balkong med flott utsikt.
Bad:
Innbydende og lekkert bad. Flislagt gulv med gulvvarme. Flislagte vegger. Malte flater i himling. Vegghengt servantinnredning. Ovenpåliggende servant med armatur.
Speil med sidelys, og stikkontakt over servant. Vegghengt baderomsmøbel. Dusjhjørne med dører. Vegghengt dusjarmatur (hånddusj og regndusj).
Vegghengt toalett. Vannrør av type rør-i-rør. Synlige avløpsrør av plast. Mekanisk avtrekk med ventil i himling. Luftespalte for overstrømning under dør.
Opplegg for vaskemaskin.
Soverom:
Det er tre gode soverom i boligen.
Toalettrom:
Gulvflate belagt med fliser. Malte veggflater. Malte flater i himling. Vegghengt servantinnredning. Ovenpåliggende servant med armatur. Vegghengt toalett.
Gulvflater er belagt med parkett, og fliser i entré. Gulvvarme i entré og wc. Malte veggflater. Malte flater i himling. Innerdør med glassfelt. Mekanisk balansert
ventilasjon.
Det er kun de hvitevarene som er listet opp som følger med.
Det gjøres oppmerksom på at hvitevarene er fra byggeår, og kjøper må forvente slitasje som følge alder og normal bruk.
Løsøre og tilbehør
Lysekrone i spisestue og en antikk slangetrommel følger ikke med
Vi viser til liste fra Norges Eiendomsmeglerforbund som gjelder fra 01.01.2020 angående løsøre og tilbehør.
Oppvarming
Oppvarming av boligen skjer i en kombinasjon mellom bruk av panelovner (elektrisk oppvarming), varmekabler i toalett og gang oppe og bad. Ildsted plassert i stue.
Dersom beboelsesrom ikke har vegg- eller fastmonterte varmekilder ved visning, følger dette heller ikke med.
Selger har avtalt Norgespris på strøm på eiendommen for perioden 14.10.25-31.12.26, og denne er pt på 50 øre inkl mva. Nettleie, avgifter og påslag fra kraftleverandøren kommer i tillegg. Er det fjernvarme vil det også komme kostnader i tillegg.
Denne avtalen vil følge eiendommen i den avtalte perioden.
Les mer om Norgespris her: https://www.regjeringen.no/no/aktuelt/legg-fram-lov-om-norgespris-pa-straum-og-fjernvarme/id3102642/
Ferdigattest/brukstillatelse
Det foreligger ferdigattest på eiendommen, datert 13.05.24. Denne kan fås ved henvendelse til megler.
Tinglyste heftelser og rettigheter
Leiligheten overdras fri for pengeheftelser.
Sameiet har legalpant for krav mot sameieren som følger av sameieforholdet iht. eierseksjonsloven § 31. Pantet er begrenset oppad til 2G, (G = folketrygdens grunnbeløp).
I tillegg har sameiet tinglyst panterett som nevnt over.
Det er tinglyst følgende servitutter på sameiets eiendom.
Dagboknr 700536, tinglyst 29.06.2017, type heftelse: Bestemmelse om nettstasjon: Stedsvarig rett til bygging, drift, vedlikehold og fornyelse
Transport og ferdsel. Byggeforbud og beplantning. Omhandler rett for netteier til å drifte, vedlikeholde og fornye nettstasjon med tilhørende kabelanlegg/luftledningsnett.
Dagboknr 690625, tinglyst 24.06.2022, type heftelse: Erklæring/avtale: Bestemmelse om felles renovasjonsløsning. Bestemmelse om vedlikehold. Omhandler rett til å anlegge, benytte samt utføre nødvendig vedlikehold og reparasjonsarbeider av felles renovasjonsløsning.
Servituttene vil følge eiendommen. Kjøpers bank vil få prioritet etter ovennevnte heftelser og servitutter.
Diverse
- Doorman/kodelås på inngangsdør vil bli fjernet før overtagelse til ny eier.
Beliggenhet og tomteforhold
Beliggenhet og tomteforhold
Beliggenhet
Eiendommen ligger i et etablert boligområde på Eltonåsen i Holter. Boligen har en svært god intern beliggenhet. Barnevennlig og populært boområde med kort vei til barnehager og barneskole.
Det er kort vei til Coop Extra, Kiwi, frisør og bussholdeplass med offentlig kommunikasjon inn til hovedstaden, Gardermoen og Lillestrøm. Fra Eltonåsen går det skolebuss inn til Nannestad med ungdomsskole og videregående. Ca. 15 min. kjøretur til Jessheim stasjon med tog til hovedstaden.
Kort kjøretur til Gjerdrum med Rema, Bunnpris, spisesteder, apotek, vinmonopol og mer. Har man behov for et enda bredere utvalg, er det kun ca. 15 min. til Jessheim som har et meget godt utvalg av servicetilbud. Jessheim-senteret alene rommer 145 butikker og har et variert utvalg med gode handlemuligheter. Ved siden av senteret finner du kulturhuset med flere kinosaler og bibliotek. I tillegg er det kulturskole med dans, musikk og teater for barna.
Fra boligen er det kort vei til Romeriksåsen som er et av Romerikes mest varierte friluftsområder; og byr på alt fra tur- og sykkelstier, oppkjørte skiløyper, badeplasser og skianlegg. Åsen ligger langs hele vestsiden av Nannestad kommune, og her er det et rolig skoglandskap med bølgende åser og mange innsjøer med gode fiskevann.
Adkomst
Det vil bli skiltet med Krogsveen visningsskilt ved fellesvisninger.
Barnehager, skoler og fritid
Informasjon om tilhørende skolekretser er hentet fra Prognosesenteret som dataleverandør, og tilhørigheten kan årlig endres av kommunen. Dersom skole- og barnehagetilbud er av betydning for kjøpet, ber vi om at det rettes en særskilt henvendelse til kommunen/bydelsadministrasjonen for oppdatert informasjon.
Beskrivelse av tomt
Eiertomt på 257 kvm. Tomten i sameiet er opparbeidet med blant annet asfalterte veier, biloppstillingsplasser, plenarealer og diverse beplantning. Hver seksjon i sameiet har egen tilleggsdel tilhørende sin seksjon. I nr 47 har du en endetomt med svært god intern beliggenhet. I forkant av boligen har du carport og en flott skjermet uteplass med gode solforhold. På siden og baksiden av boligen er det hage med skjermede og supre uteplasser med flott utsikt.
Parkering
Parkering i carport og foran carport samt gjesteparkering i sameiet.
Vei, vann og avløp
Eiendommen har adkomst via privat vei med felles vedlikeholdsansvar for
Sameiet.
Eiendommen er tilknyttet kommunalt ledningsnett via private stikkledninger.
Sameiet er ansvarlig for private stikkledninger til bygningen.
Regulerings-og arealplaner
Eiendommen er regulert til boligbebyggelse i henhold til reguleringsplan for Eltonåsen B25, BKS5 og 7 datert 25.10.2016 med tilhørende reguleringsbestemmelser datert 28.06.2019.
Utsnitt av plan med tilhørende bestemmelser kan fås ved henvendelse til megler.
Økonomi
Økonomi
Boligens kostnader
Kommunale avgifter er kr 17 055,- for inneværende år og blir fakturert direkte fra kommunen. I dette inngår gebyr for vann, avløp, renovasjon og feiing/tilsyn.
Fellesutgiftene er kr 1 827,- pr. mnd. og inkluderer bl.a.: Bygningsforsikring, drifts- og vedlikehold, forretningsførsel, snømåking/strøing.
Fellesutgiftene justeres normalt en til to ganger årlig i forhold til sameiets faktiske utgifter.
Nåværende eier har et strømforbruk som tilsvarer ca. kr 14.623,- pr. år. / 15.187 kwh. pr. år.
Boligen er tilknyttet Viken fiber som leverandør av kabel-tv og har avgift på kr 449. pr. mnd. Tv-tuner/dekoder medfølger ikke.
Boligen er tilknyttet alarm. Abonnement medfølger ikke.
Utgiftene er basert på nåværende eiers forbruk. Kjøper må selv tegne innboforsikring.
Selger har avtalt Norgespris på strøm på eiendommen for perioden 14.10.25-31.12.26, og denne er pt på 50 øre inkl mva. Nettleie, avgifter og påslag fra kraftleverandøren kommer i tillegg. Er det fjernvarme vil det også komme kostnader i tillegg.
Denne avtalen vil følge eiendommen i den avtalte perioden.
Les mer om Norgespris her: https://www.regjeringen.no/no/aktuelt/legg-fram-lov-om-norgespris-pa-straum-og-fjernvarme/id3102642/
Formuesverdi
Formuesverdi for 2024 var kr 994 241,- ifølge Skatteetaten. Beløpet forutsetter at eier bor fast i boligen (primærbolig).
Ved eventuell øvrig bruk av eiendommen (f.eks. fritidsbolig, pendlerbolig, utleieobjekt) var formuesverdien for 2023 kr 3 976 964,-.
Fra 2026 har Stortinget vedtatt en oppdatert modell for beregning av formuesverdi for primærbolig, så avvik kan forekomme.
For mer informasjon se skatteetaten.no
Eiendomsskatt
Det er p.t ikke vedtatt eiendomsskatt for eiendommer i kommunen.
Omkostninger
5 140 000,00 Prisantydning
Omkostninger
128 500,00 Dokumentavgift til staten (2,5% av kjøpesum)
19 900,00 Gjensidige Boligkjøperpakke (valgfri)* (valgfritt)
545,00 Tinglysing panterettsdokument
545,00 Tinglysing skjøte
--------------------------------------------------------
129 590,00 Omkostninger totalt (uten Gjensidige Boligkjøperpakke (valgfri))
149 490,00 Omkostninger totalt (med Gjensidige Boligkjøperpakke (valgfri))
--------------------------------------------------------
5 269 590,00 Totalpris inkl. omkostninger
5 289 490,00 Totalpris inkl. omkostninger (med Gjensidige Boligkjøperpakke (valgfri))
--------------------------------------------------------
Dersom sameiet har fellesgjeld, vil leilighetens andel av fellesgjelden komme i tillegg til kjøpesummen. Denne gjelden skal ikke innbetales i oppgjøret, men følger leiligheten.
Totalpris inkl. omkostninger forutsetter kjøp til prisantydning.
Det tas forbehold om endringer i avgifter og gebyrer.
Tilbud om lånefinansiering
Megler formidler gjerne kontakt med rådgiver hos vår samarbeidspartner BN Bank. De har konkurransedyktige betingelser samt rask og løsningsorientert behandling av din lånesøknad. Krogsveen mottar et honorar dersom lån opprettes.
Betalingsbetingelser
Kjøpesum inkludert omkostninger, samt pantedokument tilknyttet eventuelt lån, skal være disponibelt hos megler 2 virkedager før overtagelsen.
Annen viktig informasjon
Annen viktig informasjon
Eier
Bente Irene Sollien
Informasjon om forkjøpsrett
Eiendommen er seksjonert, og leiligheten er tilknyttet Eltonåsen Syd 3 Sameie, med sameiebrøk 116/1464.
Sameiet består av 12 boligseksjoner.
Forretningsfører er Obos Eiendomsforvaltning AS, tlf. 22 86 56 00.
Dugnad må påregnes.
Dyrehold er tillatt så lenge dette ikke på en urimelig eller unødvendig måte er til skade eller ulempe for de øvrige brukerne av eiendommen.
Vi gjør videre oppmerksom på at det iht. eierseksjonsloven ikke er anledning å erverve mer enn 2 seksjoner i sameiet, her teller også eierskap via. firma, nærstående og familie. Kjøper har risikoen for at overskjøting på denne bakgrunn kan nektes av Statens Kartverk. I så fall vil kjøper uansett være forpliktet til å gjennomføre handelen, og oppgjør til selger vil finne sted tross manglende overskjøting.
Konferer med megler for mer informasjon.
Dokumenter for sameiet og kopi av seksjonsbegjæringen kan fås ved henvendelse til megler.
Overtakelse
Etter nærmere avtale.
Boligselgerforsikring
Selger har i forbindelse med salget tegnet boligselgerforsikring levert av Gjensidige.
Boligselgerforsikringen dekker selgers ansvar etter avhendingsloven begrenset oppad til kr 14 millioner. Dersom kjøper oppdager forhold ved eiendommen som hen mener utgjør en mangel ved eiendommen, vil Gjensidige behandle reklamasjonen på vegne av selger. Forsikringsvilkår kan fås ved henvendelse til megler.
Vedlagt salgsoppgaven følger selgers egenerklæringsskjema og tilstandsrapport. Interessenter må sette seg inn i dokumentene før bud inngis.
Boligkjøperforsikring
Innen kontraktsmøtet må kjøper ta stilling til om det ønskes å bestille Boligkjøperpakken gjennom Gjensidige. I denne gunstige pakken er boligen ferdig forsikret og inkluderer rettshjelpsforsikring, også kalt Boligkjøperforsikring. Rettshjelpsforsikring gir trygghet og tilgang på profesjonell juridisk hjelp dersom det oppdages uventede feil eller mangler det første året etter overtagelse. Forsikringsselskapet behandler i så fall ethvert mangelskrav kjøper måtte ha overfor selger.
Boligkjøperpakken inkluderer bygningsforsikring for hus og hytte, innboforsikring, flytteforsikring og dobbel rentedekning - i situasjoner hvor kjøper ikke får solgt nåværende primærbolig.
Kjøper mottar ingen særskilt faktura for Boligkjøperpakken da kostnaden det første året legges til kjøpesummen for boligen. Det gjøres oppmerksom på Krogsveen mottar et honorar for denne formidlingen.
Produktark for Boligkjøperpakken ligger vedlagt i salgsoppgaven.
Dersom ikke boligkjøperpakke ønskes kan kun rettshjelpsforsikring, også kalt boligkjøperforsikring, tegnes særskilt via megler. Rettshjelpsforsikringen varer i 5 år fra overtagelse og leveres gjennom Gjensidige. Ta kontakt med megler for ytterligere informasjon.
Selskap og privatpersoner som driver med kjøp/salg/utvikling som ledd i egen næringsvirksomhet kan ikke tegne boligkjøperpakke eller rettshjelpsforsikring.
Budgivning
Forbrukerinformasjon om budgivning er vedlagt denne salgsoppgaven og er også på vår hjemmeside Krogsveen.no. Alle bud og budforhøyelser må inngis skriftlig. I tillegg må legitimasjon være fremlagt sammen med signatur fra budgiver.
Vi oppfordrer til å gi bud elektronisk via GI BUD-knappen på eiendommens hjemmeside på Krogsveen.no. Da vil samtlige vilkår bli oppfylt.
Eventuelle forhøyelser eller endringer av budet kan bekreftes pr SMS eller på e-post. Vi oppfordrer alltid til å kontakte megler pr. telefon i tillegg da forsinkelser i SMS og e-post kan forekomme.
For at budene skal kunne bli behandlet og videreformidlet skriftlig til alle involverte parter, må alle bud ha en tilstrekkelig lang akseptfrist, jf. eiendomsmeglingsforskriften § 6-3.
Selger må også skriftlig akseptere budet før aksept kan formidles til budgiver. Akseptfrist bør derfor være på minimum 30 minutter, og budforhøyelser må derfor skje i god tid før fristens utløp.
Bud i forbrukerforhold kan uansett ikke settes med kortere frist enn kl. 12.00 første virkedag etter siste annonserte visning. I tillegg kan ikke budet ha forbehold om at det skal holdes hemmelig ovenfor øvrige interessenter. Megler har iht lov om eiendomsmegling ikke anledning til å videreformidle disse budene, og de vil dermed heller ikke bli journalført.
Etter at eiendommen er solgt vil kjøper og selger få tilsendt budjournal. Øvrige budgivere kan få utlevert kopi av budjournalen i anonymisert form.
Hvitvaskingsreglene
I henhold til lov om hvitvasking og terrorfinansiering har megler plikt til å gjennomføre kontrolltiltak overfor kunder, herunder fullmektiger. Dette innebærer bl.a. å bekrefte kunders og reelle rettighetshaveres identitet på bakgrunn av fremvist gyldig legitimasjon eller på annen godkjent måte, samt å innhente opplysninger om kundeforholdets formål og tilsiktede art.
Dersom slike kundetiltak ikke kan gjennomføres, kan megler ikke etablere kundeforholdet eller utføre transaksjonen.
Hvis kjøper ikke bidrar til gjennomføring av kundekontrollen og dette fører til at transaksjonen blir forsinket eller ikke kan gjennomføres, vil dette ansees som mislighold av avtalen og gi selger rettigheter etter avhendingslova kapittel 5. I tilfeller der selger ikke bidrar til gjennomføring av løpende kundekontroll underveis i oppdraget, er det selger som misligholder sine forpliktelser etter avtalen og gi kjøper rettigheter etter avhendingslovens kapittel 4. Partene er selv ansvarlige for eventuelle kostnader og ansvar dette kan medføre. Eiendomsmegleren eller eiendomsmeglingsforetaket kan ikke holdes ansvarlig for de konsekvenser dette vil kunne få for partene eller andre som har interesser i eiendomshandelen.
Kjøper oppfordres til å innbetale kjøpesummen som ikke kommer fra låneinstitusjon i én samlet innbetaling fra egen konto i norsk bank. Megler har plikt til å melde fra til Økokrim om eiendomshandler som fremstår som mistenkelige. Melding sendes Økokrim uten at partene varsles.
Personopplysningsloven
I henhold til personopplysningsloven gjør vi oppmerksom på at interessenter kan bli registrert for videre oppfølging.
Lovanvendelse
Generelle bestemmelser
Salgsoppgaven er basert på de opplysningene selger har gitt til megler, den bygningssakyndiges tilstandsrapport, samt opplysninger innhentet fra kommunen, Kartverket og andre tilgjengelige kilder. Det er viktig at kjøper setter seg grundig inn i alle salgsdokumentene, herunder salgsoppgave, tilstandsrapport og selgers egenerklæring. Kjøper anses kjent med forhold som er tydelig beskrevet i salgsdokumentene, og slike forhold kan ikke påberopes som mangler. Dette gjelder uavhengig av om kjøper har lest dokumentene. Alle interessenter oppfordres til å undersøke eiendommen nøye, gjerne sammen med fagkyndig før bud inngis. Kjøper som velger å kjøpe usett kan ikke gjøre gjeldende som mangel noe han burde blitt kjent med ved undersøkelsen.
Dersom det er behov for avklaringer, anbefaler vi at interessenter rådfører seg med eiendomsmegler eller egne rådgivere før det legges inn bud.
En bolig som har blitt brukt i en viss tid, har vanligvis blitt utsatt for slitasje og skader kan ha oppstått. Slik bruksslitasje må kjøper regne med, og det kan avdekkes enkelte forhold etter overtakelse som nødvendiggjør utbedringer. Normal slitasje og skader som nødvendiggjør utbedring, er innenfor hva kjøper må forvente og vil ikke utgjøre en mangel.
Kjøper og selgers rettigheter og plikter reguleres av avtalen mellom partene, samt informasjonen som har vært tilgjengelig for kjøperen i forbindelse med handelen. Avtalen utfylles av avhendingsloven, og det gjelder ulike avtalevilkår avhengig av om kjøper er forbrukerkjøper eller ikke. Dette er nærmere beskrevet nedenfor.
På grunn av ulike avtalevilkår kan selger vurdere bud fra en som ikke er forbruker, ulikt fra en forbrukers bud. Dersom kjøper ikke er forbruker, er selger sitt mulige mangelsansvar begrenset fordi eiendommen selges "som den er". Selger kan ikke ta «som den er»- forbehold overfor en forbrukerkjøper. Selv et lavere bud fra en som ikke er forbruker kan foretrekkes fordi begrensningen i mulig mangelsansvar kan ha egenverdi for selger. Selger står fritt til å forkaste eller akseptere ethvert bud, og er for eksempel ikke forpliktet til å akseptere høyeste bud.
Budgiver skal i budskjema avgi egenerklæring om budgiver er forbruker eller næringsdrivende/ person som hovedsakelig handler som ledd i næringsvirksomhet. Budgivere får informasjon dersom andre bud er inngitt av en som ikke er forbruker.
Forbrukerkjøp - definisjon
Med forbrukerkjøp menes kjøp av eiendom når kjøperen er en fysisk person som ikke hovedsakelig handler som ledd i næringsvirksomhet.
Forbruker – avtalevilkår
Eiendommen har en mangel dersom den ikke er i samsvar med kravene som følger av avtalen, eller det foreligger brudd på bestemmelsene i avhendingsloven §§ 3-2 til 3-8. Hvis eiendommen ikke er i samsvar med det kjøperen må kunne forvente ut ifra alder, type og synlig tilstand, kan det være grunnlag for mangelskrav. Det samme gjelder hvis det er holdt tilbake eller gitt uriktige opplysninger om eiendommen. Dette gjelder likevel bare dersom man kan gå ut ifra at det virket inn på avtalen at opplysningen ikke ble gitt eller at mangelskravet ikke blir rettet i tide på en tydelig måte.
Boligen kan ha en mangel etter avhendingsloven § 3-3 andre ledd, dersom det er avvik mellom opplyst og faktisk innvendig areal, forutsatt at avviket er på 2% eller mer og minimum 1 kvm.
Ved beregning av et eventuelt prisavslag eller erstatning må kjøper selv dekke tap/kostnader opptil et beløp på kr 10 000 (egenandel).
Ikke-forbruker (næringsdrivende) – definisjon
Hvis kjøper er en juridisk person, eller en fysisk person som hovedsakelig handler som ledd i næringsvirksomhet, vil kjøpet ikke anses som et forbrukerkjøp.
Ikke-forbruker – avtalevilkår
Eiendommen har en mangel dersom den ikke er i samsvar med kravene som følger av avtalen.
Eiendommen selges «som den er», og selgers ansvar utover det konkret avtalte er da begrenset etter avhendingsloven § 3-9, første ledd andre setning.
Avhendingsloven § 3-3 andre ledd fravikes, og hvorvidt boligens arealsvikt utgjør en mangel vurderes etter avhendingsloven § 3-8.
Informasjon om kjøpers undersøkelsesplikt, herunder oppfordringen om å undersøke eiendommen nøye, gjelder også for kjøpere som ikke anses som forbrukere.
Det forutsettes at hjemmel overføres til kjøper. Hvis kjøper ikke ønsker hjemmelsoverføring av eiendommen, må det tas forbehold om dette i budet.
Meglers vederlag
Meglers vederlag betales av selger og er avtalt til:
Fastpris: 28 750,-
Vederlag:
Kontroll av hjemmel og heftelser kr 3 900,00
Markedsføringspakke kr 29 900,00
Oppgjør kr 8 900,00
Tilrettelegging kr 17 000,00
Utlegg:
Eierskiftegebyr forretningsfører - OBOS kr 6 725,00
Innhenting av informasjon forretningsfører kr 4 375,00
Innhenting av offentlig opplysninger kr 4 784,00
Tinglysing sikring kr 545,00
Andre utgifter:
AX tilstandsrapport rekkehus/tomannsbolig kr 17 500,00
Boligselgerforsikring Gjensidige Snr - regnes av prisantydning
Foto kr 4 000,00
Vi er opptatt av verdiskapning, og har knyttet til oss samarbeidspartnere som skal sikre våre kunder de beste produkter og tjenester;
• I forbindelse med forberedelse av salget, innhenter vi informasjon om eiendommen hovedsakelig fra vår samarbeidspartner Amibita.
• Gjensidige leverer boligselgerforsikring og tilbyr bygningsforsikring
• Boligkjøperforsikring leveres av Hiscox og med Sedgwick som skadebehandler, og er formidlet gjennom Gjensidige.
• BN bank tilbyr finansieringsløsninger
• Vår avdeling Krogsveen Pluss tilbyr flyttetjenester som utvask, visningsvask, lager, tømming og transport av flyttelass, i tillegg til å formidle kontakt med Flip for overflateoppussing.
• I forbindelse med overtagelse av eiendommen tilbyr Overo avtale om strøm, alarm og bredbånd.
• Krogsveen er, sammen med øvrige bransjeaktører, medeier i Bomega AS som tilbyr den digitale annonseringsplattformen Hjem.
Opplysninger om oppdraget
Oppdragsnummer 63-0029/26
Eiendomsmegler Krogsveen AS, avd. Jessheim
Skovly Promenade 10, 2066, JESSHEIM
950 007 613
Oppdragets KR-kode KR63.2629
Dato
Sist oppdatert: 07. mai 2026 kl. 15:10
Dokumenter
Dokumenter
PDF – 938 KB
PDF – 225 KB
PDF – 312 KB
PDF – 29 KB
PDF – 127 KB
PDF – 392 KB
Område
Legg til steder som er viktige for deg
Visning
For å delta på visning, ber vi om at du melder deg på. Da sikrer vi at du får nødvendig informasjon og at det er satt av tilstrekkelig med tid. Kontakt megler dersom annet tidspunkt ønskes.
NB. Visning utgår dersom det ikke er noen påmeldte.
Lurer du på noe?
Unngå doble boligrenter
Vi tilbyr gunstig forsikring.
Vurderer du utleie?
Få et tilbud fra Utleie KrogsveenHva koster lånet?
Sjekk estimert lånekostnadVil du varsles om lignende boliger?
Ved å lagre ditt boligsøk hos oss får du beskjed når vi har en bolig som ligner denne, før den legges ut på markedet!

