Pilestredet Park 38
4 600 000 kr
36 m²
1 soverom
Solgt

Pilestredet Park
Attraktiv selveier med hyggelig terrasse på 10 kvm. Strøm, varmtvann og oppvarming inkl. Heis. Felles takterrasse.
Prisantydning
4 600 000 krOmkostninger
126 040 krTotalpris
4 726 040 kr
Pris
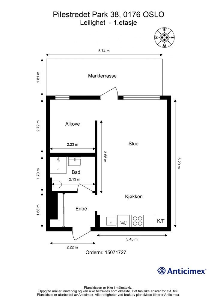
Bruksareal
39 m²BRA-I (internt bruksareal)
36 m²BRA-E (eksternt bruksareal)
3 m²TBA (terrasse-balkongareal)
10 m²
Areal
Etasje
1Byggeår
2005Soverom
1 soveromBad
1 badType
EierleilighetEierform
EierseksjonFasiliteter
Heis og Balkong/TerrasseFellesutgifter
2 682 krEnergimerke
Grønn C
Nøkkelinfo
Unngå doble boligrenter
Vi tilbyr gunstig forsikring.
Vurderer du utleie?
Få et tilbud fra Utleie KrogsveenHva koster lånet?
Sjekk estimert lånekostnadBeskrivelse
Kort om eiendommen
Velkommen til Pilestredet Park 38!
En moderne og attraktiv selveierleilighet med store vindusflater ut mot nydelig grøntområde.
Åpen stue-/kjøkken med utgang til terrasse på 10 kvm. Videre har boligen en hyggelig entré med skyvedørsgarderobe, bad og sovealkove.
Beboerne disponerer en stor felles takterrasse med heisadkomst. Populær beliggenhet i attraktive Pilestredet Park, med kort avstand til bymessige fasiliteter og offentlig kommunikasjon.
- Heis i bygget
- Bod i kjeller
- Usjenert beliggenhet med flott utsyn mot grønn og frodig park
- Lave felleskostnader
- Varmtvann, strøm og oppvarming inkludert
- Felles takterrasse
- Gangavstand til St.Hanshaugen, Bogstadveien og Majorstuen
Område
Legg til steder som er viktige for deg
På flyttefot? Tenk kjøp og salg samtidig.
Få din egen rådgiver gjennom hele kjøps- og salgsprosessen. Det starter med en verdivurdering.
Unngå doble boligrenter
Vi tilbyr gunstig forsikring.
Vurderer du utleie?
Få et tilbud fra Utleie KrogsveenHva koster lånet?
Sjekk estimert lånekostnadVil du varsles om lignende boliger?
Ved å lagre ditt boligsøk hos oss får du beskjed når vi har en bolig som ligner denne, før den legges ut på markedet!

