Djupetjønnvegen 3
3 950 000 kr
101 m²
3 soverom
Komplett salgsoppgave

Hytte med garasje sentralt på Hovden. Rett ved oppkjørt skiløype. Gåavstand til sentrum.
Prisantydning
3 950 000 krOmkostninger
100 012 krTotalpris
4 050 012 kr
Pris
Bruksareal
105 m²
Areal
Etasje
2Byggeår
1996Soverom
3 soveromBad
1 badType
Fritidseiendom på fjelletEierform
EietFasiliteter
Garasje/P-plass og Balkong/TerrasseEnergimerke
Oransje E
Nøkkelinfo
Vurderer du utleie?
Få et tilbud fra Utleie KrogsveenHva koster lånet?
Sjekk estimert lånekostnadBeskrivelse
Kort om eiendommen
Sentralt beliggende hytte i koselig og rolig hyttetun. Egen garasje i rekke. Solrikt med utsikt mot Hartevassnutane, Enden, Hovdenut og Nos. Oppkjørte skiløyper ca. 50 meter fra hytta som bringer deg inn
i Hovdens rike løypenett, eller lysløypa. Nær turløyper sommerstid. Gåavstand til alle Hovdens fasiliteter, som sentrum med butikker og spisesteder, badeland og skøytebane. Innhold: Vindfang, toalett, vaskerom,
stue, kjøkken, bod, gang, 3 soverom, bad. Utvendig bod. Garasje.
https://my.matterport.com/show/?m=whZWHubCKPW
Innhold og byggemåte
Innhold og byggemåte
Eiendommen
Djupetjønnvegen 3, 4755 HOVDEN I SETESDAL
Kommunenummer 4222, gårdsnummer 2, bruksnummer 1, festenummer 218, ideell andel 1/1
Kommunenummer 4222, gårdsnummer 2, bruksnummer 1, festenummer 222, ideell andel 1/6
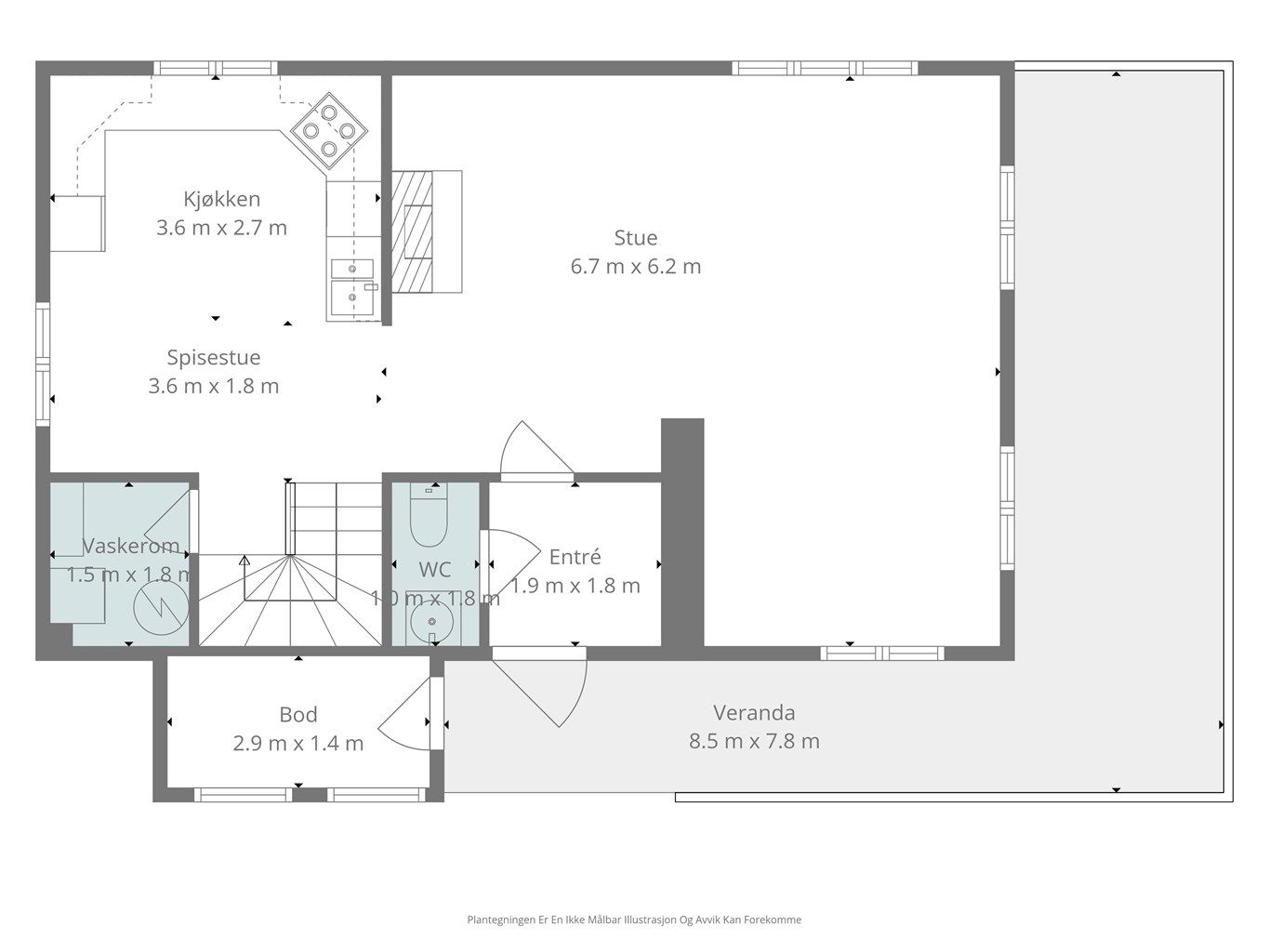
Innhold
Bruksareal:
Primærrom:
1. etasje 63 kvm: Vindfang, toalett, stue, kjøkken og vaskerom.
2. etasje 38 kvm: Gang, 3 soverom og bad.
Sekundærrom:
1. etasje 4 kvm: Bod
1. etasje 18 kvm: Garasje
Terrasse oppmålt til 30 m2 (TBA).
Utvendig bod oppmålt til ca. 4 m2 (BRA-e)
Frittstående garasje i rekke oppmålt innvendig parkeringsplass til ca. 18 m2 (BRA-e)
På bakgrunn av at det ikke er fremlagt byggetegninger, er bruken av arealene i boligen ikke kontrollert opp mot de sist godkjente tegningene. Arealer
kan være i strid med byggeforskriftene og mangle nødvendig godkjenning i kommunen, uten at dette har hatt betydning for klassifisering og
vurdering av måleverdighet på befaringstidspunktet. Se mer utfyllende informasjon i rapportens premisser om areal.
Boligen inneholder 101 m2 P-ROM og 4 m2 S-ROM.
Totalt bruksareal BRA: 105 kvm
Vedlagte plantegninger er ikke målbare. De oppgitte arealer er hentet fra rapport datert 12.02.2025 utført av Anticimex v/ Halvard Grina. Arealene er beregnet og rom er definert etter dagens faktiske bruk, uavhengig av hva som er godkjent av bygningsmyndighetene.
Byggemåte
Fritidsbolig med 1.etasje og loftsetasje. Terrasse og utvendig bod. Tilhørende garasje i rekke.
Boligen er oppført med støpt plate på mark. Fundamentert på ukjent byggegrunn. Yttervegger i trekonstruksjoner. Fasaden er kledd med liggende
trekledning. Etasjeskillere av trekonstruksjoner. Saltak i trekonstruksjoner. Torvtak med underliggende tettesjikt. Vinduer med karmer av tre, og tolags
glass. Elektrisk oppvarming. Ventilasjon med naturlig tilluft kombinert med stedvis mekanisk avtrekk.
Selger har fått utarbeidet en tilstandsrapport, dvs. en teknisk gjennomgang av boligen hvor eventuelle avvik, risiko for kjøper og prisoverslag for hva som bør gjøres av oppgradering, er skissert. Se særskilt TGIU (tilstandsgrad ikke undersøkt), samt TG2 og TG3 som viser hva som er boligens normale slitasje, alder og type, hva som er avvik fra dette og hva som bør/må utbedres. Rapporten og selgers egenerklæring er en del av salgsoppgaven og må leses nøye før bud inngis. Kjøper overtar ansvaret for de opplysninger som fremkommer av salgsdokumentasjonen, og kan ikke gjøre gjeldende som mangel noe som burde vært kjent eller som ikke kan anses å ha betydning for avtalen.
Bygningen er iht. tilstandsrapporten oppført i tre/mur/betong. Les for øvrig mer om byggemåte og den tekniske tilstanden i rapporten.
Det gjøres spesielt oppmerksom på:
Oppsummering av avvik med tilstandsgrad 2 (TG2) og tilstandsgrad 3 (TG3) fra vedlagt tilstandsrapport:
Følgende bygningsdeler har fått TG2 (vesentlig avvik) i tilstandsrapporten:
Våtrom - Bad loftsetasje :
- Overflater vegger: Baderomsplater er montert uten bruk av bunnlist i våtsonen, noe som betyr at monteringen ikke er i henhold til produsentens anvisning. Veggplatene er en del av våtrommets vanntette sjikt, og konsekvensen av manglende bunnlist kan derfor være risiko for redusert fuktsikkerhet for både platene og konstruksjonen bak. Foreslått tiltak er lokal utbedring, eller utskiftning der videre undersøkelser viser at dette er nødvendig.
- Membran, tettesjikt og overgang til sluk.: Baderomsplater har en alder som tilsier at fremtidig funksjon er usikker. Konsekvensen er at bygningsdelen erfaringsmessig har risiko for nedsatt funksjon, utettheter eller andre aldersrelaterte problemer. Foreslått tiltak er videre overvåking (minimum årlig visuell kontroll), slik at tiltak kan iverksettes når dette viser seg å være nødvendig.
- Slukets plassering i forhold til at vann utenfor dusjsonen kan nå det: Sluket er isolert inne i dusjsonen. Konsekvens er at bruks- og lekkasjevann som oppstår utenfor dusjsonen derfor ikke vil kunne ledes til sluk, noe som reduserer fuktsikkerheten. Foreslått strakstiltak er lokal utbedring for å sikre tilfredsstillende avrenning i hele våtrommet.
- Ventilasjon: Tilluftsspalte eller lignende er ikke etablert. Konsekvens er at forholdet medfører redusert ventilering av våtrommet når døren er lukket. Foreslått tiltak er lokal utbedring.
Øvrige rom - 1.etasje:
- Annet: Vaskemaskin er plassert i bod som ikke er utført som våtrom. Rommet mangler tilfredsstillende lekkasjesikring i form av blant annet tilstrekkelig tettesjikt/membran og installasjonen er derfor ikke i tråd med anbefalte løsninger med hensyn til lekkasjesikkerhet. Det anbefales at vaskemaskin flyttes til bad, hvor gulv og overflater er tilrettelagt for vanninstallasjoner og har tilfredsstillende sikring mot lekkasjer.
Tekniske anlegg, VVS anlegg (Sjekkpunkter utover det som er inkludert i andre rom):
- Varmtvannsbereder (Sjekkpunkter utover det som er inkludert i andre rom): På bakgrunn av berederens alder er det grunn til å varsle om usikker restlevetid eller andre forhold som utvikles over tid. Det kan ikke utelukkes behov for reparasjon/utskiftning. Jevnlig ettersyn anbefales slik at eventuelle tiltak kan iverksettes ved behov.
Yttervegger inkl. fasader og konstruksjon:
- Fasader ink. kledning: Det er vurdert å være begrenset spalte for lufting og drenering bak ytterkledningen. Konsekvens er at konstruksjonens evne til å tørke ut eventuell fuktighet reduseres, noe som kan øke faren for skjulte fuktskader. Det gjøres oppmerksom på at det ikke er observert synlige tegn på at forholdet har ført til skader på dette tidspunkt. Foreslått tiltak er videre overvåking, slik at lokal reparasjon eller utskiftning kan iverksettes hvis dette blir nødvendig. Det er ikke montert tilstrekkelig gnagersikring bak hjørnebord (ytterhjørner). Konsekvensen er at gnagere kan komme seg inn bak kledningen og søke etter eksisterende åpninger eller etablere egne åpninger som fører videre inn i boligen. Det gjøres oppmerksom på at det ikke er registrert tydelige tegn eller opplysninger om problemer med gnagere i boligen. Foreslått tiltak er lokal utbedring. Det er registrert enkelte kledningsbord på yttervegg ved stue og kjøkken som har utilstrekkelig innfesting og har vridd seg ut fra underlaget. Forholdet kan medføre økt fuktbelastning bak kledningen som følge av vanninntrengning med påfølgende skader. Tilstrekkelig innfesting bør etableres for å forhindre skader.
Yttertak:
- Inspeksjonsmulighet: Taket er ikke fysisk inspisert grunnet is og snø (sikkerhetsmessige forhold). TG2 er valgt på bakgrunn av at taket kan være utsatt for slitasje, skader eller feil utførelse som ikke registreres grunnet begrenset tilkomst. Yttertaket bør kontrolleres i sin helhet når forholdene ligger til rette. Øvrige sjekkpunkter er vurdert ut i fra alder, observasjoner fra bakkeplan og fra loft.
- Annet: Det er registrert skade på dekkbord/vannbord over vindskie ved utvendig bod. Skaden kan medføre redusert beskyttelse mot nedbør og økt risiko for fuktinntrengning i underliggende konstruksjon. Det anbefales å reparere eller skifte skadet bord, samt kontrollere tilstanden på underliggende konstruksjon.
Følgende bygningsdeler har fått TG3 (store eller alvorlige avvik) i tilstandsrapporten:
Det ble ikke funnet noen punkter med denne tilstandsgraden i rapporten.
Ingen bemerkninger i egenerklæringen:.
Standard
Hytten holder en god standard. Gulvene i 1. etg har fliser med varmekabler på gulvet og villmarkspanel på veggene i stue, mens resten er panelet vegger. 2.etg har furugulv og panel på veggene. Koselig peis i stuen. På badet oppe er det belegg på
gulv og våtromsplater på veggene. 120 cm innredning med overskap, wc og dusjhjørne. Toalettet nede har wc og servant. Hovedsoverommet har 3 skap. Soverom med 4 senger har 1 dobbeltskap. Utvendig bod. Garasje i rekke.
Løsøre og tilbehør
Vi viser til liste fra Norges Eiendomsmeglerforbund som gjelder fra 01.01.2020 angående løsøre og tilbehør.
Oppvarming
Følgende rom har varmekabler: Vindfang, kjøkken og stue.
Peisovn i stue.
Ferdigattest/brukstillatelse
Det foreligger ferdigattest på hytten datert.02.12.2009 Denne kan fås ved henvendelse til megler.
Tinglyste heftelser og rettigheter
Festekontrakt med rett til garasjeplass.
Eventuell adgang til utleie
Fritidseiendommen har ikke separat utleiedel. Det vil normalt være anledning til utleie av hele eiendommen eller enkeltrom, såfremt utleiearealet er bygningsmessig godkjent for varig opphold.
Diverse
Er det fastmontert løsøre og tilbehør som ikke skal følge med eiendommen?
Spesialsydde liftgardiner følger ikke med.
Oppgi her dersom det er hvitevarer som ikke vil medfølge eiendommen:
Oppvaskmaskin, kjøleskap, platetopp og komfyr. Vaskemaskin.
Energimerking
Årlig strømforbruk kr: (ca kostnad) 7000 kWh pr år:
Beliggenhet og tomteforhold
Beliggenhet og tomteforhold
Beliggenhet
Sentral og solrik beliggende i et lite etablert koselig hyttetun. Gåavstand til alle fasiliteter på Hovden, som badeland, skøytebane, butikker, kafèer og sentrum med både bank og post. Rett ved oppkjørte
skiløyper som bringer deg inn i Hovdens rike langrennsnett og lysløyper. Flotte turområder både sommer og vinter. Djupetjønn med flott vannspeil rett over hyttetunet.
Adkomst
Ta av mot Breive i Hovden sentrum. Kjør over broa og ta til venstre. Kjør inn 3 vei til høyre, ta til venstre med en gang. 2 hytta på venstre side. Se etter Krogsveen "til salgs" skilt.
Hytta er merket med skiltnummer 3. Garasje i rekke er merket med port nr. 2.
Beskrivelse av tomt
Festet tomt med gåavstand til sentrum med butikker, restauranter, sport og interiørbutikker, så vel som badeland og skøytebane. Den oppkjørte langrennsløypa som bringer deg inn i Hovdens rike oppkjørte løypenett, samt lysløype, går like forbi hytten.
Regulering av feste
Hvert 10 år. Varighet for festekontrakt: 80 år fra 01.01.1996. Neste regulering er oktober 2027 for året 2028. Festeavgiften er kr. 3318,- pr. dato
Parkering
Biloppstillingsplass rett utenfor hytten. Egen garasjeplass i garasjerekke. God plass til parkering for besøkende på begge sider av hytten.
Vei, vann og avløp
Eiendommen har adkomst via privat vei med felles vedlikeholdsansvar.
Eiendommen er tilknyttet kommunalt ledningsnett via private stikkledninger. Eier er selv ansvarlig for private stikkledninger til boligen.
Regulerings-og arealplaner
Regulert til fritidsformål i reguleringsplanen Hovden del 2.
Endelig vedtatt arealplan. Ikrafttredelse 10.09.1997
Økonomi
Økonomi
Kommunale utgifter
Fakturert beløp i 2025
Avløp: 5 527,22 kr
Feiing: 455,04 kr
Renovasjon: 3 241,80 kr
Vann: 4 407,56 kr
Sum: 13 631,62 kr
Formuesverdi
Formuesverdi for 20224var kr 931 628,- ifølge selger/skatteetaten.
Eiendomsskatt
Det er p.t ikke vedtatt eiendomsskatt for eiendommer i kommunen.
Omkostninger
3 950 000,00 Prisantydning
Omkostninger
--------------------------------------------------------
100 012,00 Omkostninger totalt
--------------------------------------------------------
4 150 012,00 Totalpris inkl. omkostninger
--------------------------------------------------------
Betalingsbetingelser
Kjøpesum inkludert omkostninger, samt pantedokument tilknyttet eventuelt lån, skal være disponibelt hos megler 2 virkedager før overtagelsen.
Annen viktig informasjon
Annen viktig informasjon
Eier
Sten Lunden og Bjørg Marit Lunden
Konsesjon
Eiendommen er ikke konsesjonspliktig, men det er boplikt i Bykle kommune. For at eiendommen skal kunne overskjøtes må kjøper signere på egenerklæring om konsesjonsfrihet om at boplikten ikke gjelder for denne eiendommen.
Overtakelse
Etter nærmere avtale.
Boligselgerforsikring
Selger har i forbindelse med salget tegnet boligselgerforsikring hos Anticimex. Vedlagt salgsoppgaven følger selgers egenerklæringsskjema og tilstandsrapport. Interessenter må sette seg inn i dokumentene før bud inngis.
Boligselgerforsikringen dekker selgers ansvar etter avhendingsloven. Dersom kjøper oppdager forhold ved eiendommen som man mener utgjør en mangel ved eiendommen, vil Claims Handling AS behandle reklamasjonen på vegne av selger. Forsikringsvilkår kan fås ved henvendelse til megler.
Boligkjøperforsikring
Innen kontraktsmøtet må kjøper ta stilling til om det ønskes å bestille Boligkjøperpakken gjennom Tryg. I denne gunstige pakken er boligen ferdig forsikret og inkluderer rettshjelpsforsikring, også kalt Boligkjøperforsikring. Rettshjelpsforsikring gir trygghet og tilgang på profesjonell juridisk hjelp dersom det oppdages uventede feil eller mangler det første året etter overtagelse. Forsikringsselskapet behandler isåfall ethvert mangelskrav kjøper måtte ha overfor selger.
For alle boligtyper, unntatt tomter, inneholder Boligkjøperpakken innboforsikring, renteforsikring (unntatt fritidsbolig) - i situasjoner hvor kjøper ikke får solgt nåværende primærbolig – og flytteforsikring. I tillegg inneholder den husforsikring for alle hus og hytter forutsatt at eiendommen ikke har seksjonsnummer/andel (tilhører et sameie/borettslag).
Kjøper mottar ingen særskilt faktura for Boligkjøperpakken da kostnaden det første året legges til kjøpesummen for boligen. Les mer om forsikringen i informasjonsarket fra Tryg. Krogsveen mottar et honorar for denne formidlingen.
Dersom ikke boligkjøperpakke ønskes kan kun rettshjelpsforsikring, også kalt boligkjøperforsikring, tegnes særskilt via megler. Rettshjelpsforsikringen varer i 5 år fra overtagelse og leveres av Tryg.
Selskap og privatpersoner som driver med kjøp/salg/utvikling som ledd i egen næringsvirksomhet kan de ikke tegne boligkjøperforsikring.
Budgivning
Forbrukerinformasjon om budgivning er vedlagt denne salgsoppgaven og er også på vår hjemmeside www.krogsveen.no. Alle bud og budforhøyelser må inngis skriftlig. I tillegg må legitimasjon være fremlagt sammen med signatur fra budgiver.
Vi oppfordrer til å gi bud elektronisk via GI BUD-knappen på eiendommens hjemmeside på Krogsveen.no. Da vil samtlige vilkår bli oppfylt.
Eventuelle forhøyelser eller endringer av budet kan bekreftes pr SMS eller på e-post. Vi oppfordrer alltid til å kontakte megler pr. telefon i tillegg da forsinkelser i SMS og e-post kan forekomme.
For at budene skal kunne bli behandlet og videreformidlet skriftlig til alle involverte parter, må alle bud ha en tilstrekkelig lang akseptfrist, jf. eiendomsmeglingsforskriften § 6-3.
Selger må også skriftlig akseptere budet før aksept kan formidles til budgiver. Akseptfrist bør derfor være på minimum 30 minutter, og budforhøyelser må derfor skje i god tid før fristens utløp.
Bud kan uansett ikke settes med kortere frist enn kl. 12.00 første virkedag etter siste annonserte visning.
Etter at eiendommen er solgt vil kjøper og selger få tilsendt budjournal. Øvrige budgivere kan få utlevert kopi av budjournalen i anonymisert form.
Hvitvaskingsreglene
I henhold til lov om hvitvasking og terrorfinansiering har megler plikt til å gjennomføre kontrolltiltak overfor kunder, herunder fullmektiger. Dette innebærer bl.a. å bekrefte kunders og reelle rettighetshaveres identitet på bakgrunn av fremvist gyldig legitimasjon eller på annen godkjent måte, samt å innhente opplysninger om kundeforholdets formål og tilsiktede art.
Dersom slike kundetiltak ikke kan gjennomføres, kan megler ikke etablere kundeforholdet eller utføre transaksjonen.
Hvis kjøper ikke bidrar til gjennomføring av kundekontrollen og dette fører til at transaksjonen blir forsinket eller ikke kan gjennomføres, vil dette ansees som mislighold av avtalen og gi selger rettigheter etter avhendingslova kapittel 5. I tilfeller der selger ikke bidrar til gjennomføring av løpende kundekontroll underveis i oppdraget, er det selger som misligholder sine forpliktelser etter avtalen og gi kjøper rettigheter etter avhendingslovens kapittel 4. Partene er selv ansvarlige for eventuelle kostnader og ansvar dette kan medføre. Eiendomsmegleren eller eiendomsmeglingsforetaket kan ikke holdes ansvarlig for de konsekvenser dette vil kunne få for partene eller andre som har interesser i eiendomshandelen.
Kjøper oppfordres til å innbetale kjøpesummen som ikke kommer fra låneinstitusjon i én samlet innbetaling fra egen konto i norsk bank. Megler har plikt til å melde fra til Økokrim om eiendomshandler som fremstår som mistenkelige. Melding sendes Økokrim uten at partene varsles.
I henhold til lov om hvitvasking og terrorfinansiering har megler plikt til å gjennomføre kontrolltiltak overfor kunder, herunder fullmektiger. Dette innebærer bl.a. å bekrefte kunders og reelle rettighetshaveres identitet på bakgrunn av fremvist gyldig legitimasjon eller på annen godkjent måte, samt å innhente opplysninger om kundeforholdets formål og tilsiktede art.
Dersom slike kundetiltak ikke kan gjennomføres, kan megler ikke etablere kundeforholdet eller utføre transaksjonen.
Hvis kjøper ikke bidrar til gjennomføring av kundekontrollen og dette fører til at transaksjonen blir forsinket eller ikke kan gjennomføres, vil dette ansees som mislighold av avtalen og gi selger rettigheter etter avhendingslova kapittel 5. I tilfeller der selger ikke bidrar til gjennomføring av løpende kundekontroll underveis i oppdraget, er det selger som misligholder sine forpliktelser etter avtalen og gi kjøper rettigheter etter avhendingslovens kapittel 4. Partene er selv ansvarlige for eventuelle kostnader og ansvar dette kan medføre. Eiendomsmegleren eller eiendomsmeglingsforetaket kan ikke holdes ansvarlig for de konsekvenser dette vil kunne få for partene eller andre som har interesser i eiendomshandelen.
Kjøper oppfordres til å innbetale kjøpesummen som ikke kommer fra låneinstitusjon i én samlet innbetaling fra egen konto i norsk bank. Megler har plikt til å melde fra til Økokrim om eiendomshandler som fremstår som mistenkelige. Melding sendes Økokrim uten at partene varsles.
Personopplysningsloven
I henhold til personopplysningsloven gjør vi oppmerksom på at interessenter kan bli registrert for videre oppfølging.
Lovanvendelse
Generelle bestemmelser
Salgsoppgaven er basert på de opplysningene selger har gitt til megler, den bygningssakyndiges tilstandsrapport, samt opplysninger innhentet fra kommunen, Kartverket og andre tilgjengelige kilder. Det er viktig at kjøper setter seg grundig inn i alle salgsdokumentene, herunder salgsoppgave, tilstandsrapport og selgers egenerklæring. Kjøper anses kjent med forhold som er tydelig beskrevet i salgsdokumentene, og slike forhold kan ikke påberopes som mangler. Dette gjelder uavhengig av om kjøper har lest dokumentene. Alle interessenter oppfordres til å undersøke eiendommen nøye, gjerne sammen med fagkyndig før bud inngis. Kjøper som velger å kjøpe usett kan ikke gjøre gjeldende som mangel noe han burde blitt kjent med ved undersøkelsen.
Dersom det er behov for avklaringer, anbefaler vi at interessenter rådfører seg med eiendomsmegler eller egne rådgivere før det legges inn bud.
En bolig som har blitt brukt i en viss tid, har vanligvis blitt utsatt for slitasje og skader kan ha oppstått. Slik bruksslitasje må kjøper regne med, og det kan avdekkes enkelte forhold etter overtakelse som nødvendiggjør utbedringer. Normal slitasje og skader som nødvendiggjør utbedring, er innenfor hva kjøper må forvente og vil ikke utgjøre en mangel.
Kjøper og selgers rettigheter og plikter reguleres av avtalen mellom partene, samt informasjonen som har vært tilgjengelig for kjøperen i forbindelse med handelen. Avtalen utfylles av avhendingsloven, og det gjelder ulike avtalevilkår avhengig av om kjøper er forbrukerkjøper eller ikke. Dette er nærmere beskrevet nedenfor.
På grunn av ulike avtalevilkår kan selger vurdere bud fra en som ikke er forbruker, ulikt fra en forbrukers bud. Dersom kjøper ikke er forbruker, er selger sitt mulige mangelsansvar begrenset fordi eiendommen selges "som den er". Selger kan ikke ta «som den er»- forbehold overfor en forbrukerkjøper. Selv et lavere bud fra en som ikke er forbruker kan foretrekkes fordi begrensningen i mulig mangelsansvar kan ha egenverdi for selger. Selger står fritt til å forkaste eller akseptere ethvert bud, og er for eksempel ikke forpliktet til å akseptere høyeste bud.
Budgiver skal i budskjema avgi egenerklæring om budgiver er forbruker eller næringsdrivende/ person som hovedsakelig handler som ledd i næringsvirksomhet. Budgivere får informasjon dersom andre bud er inngitt av en som ikke er forbruker.
Forbrukerkjøp - definisjon
Med forbrukerkjøp menes kjøp av eiendom når kjøperen er en fysisk person som ikke hovedsakelig handler som ledd i næringsvirksomhet.
Forbruker – avtalevilkår
Eiendommen har en mangel dersom den ikke er i samsvar med kravene som følger av avtalen, eller det foreligger brudd på bestemmelsene i avhendingsloven §§ 3-2 til 3-8. Hvis eiendommen ikke er i samsvar med det kjøperen må kunne forvente ut ifra alder, type og synlig tilstand, kan det være grunnlag for mangelskrav. Det samme gjelder hvis det er holdt tilbake eller gitt uriktige opplysninger om eiendommen. Dette gjelder likevel bare dersom man kan gå ut ifra at det virket inn på avtalen at opplysningen ikke ble gitt eller at mangelskravet ikke blir rettet i tide på en tydelig måte.
Boligen kan ha en mangel etter avhendingsloven § 3-3 andre ledd, dersom det er avvik mellom opplyst og faktisk innvendig areal, forutsatt at avviket er på 2% eller mer og minimum 1 kvm.
Ved beregning av et eventuelt prisavslag eller erstatning må kjøper selv dekke tap/kostnader opptil et beløp på kr 10 000 (egenandel).
Ikke-forbruker (næringsdrivende) – definisjon
Hvis kjøper er en juridisk person, eller en fysisk person som hovedsakelig handler som ledd i næringsvirksomhet, vil kjøpet ikke anses som et forbrukerkjøp.
Ikke-forbruker – avtalevilkår
Eiendommen har en mangel dersom den ikke er i samsvar med kravene som følger av avtalen.
Eiendommen selges «som den er», og selgers ansvar utover det konkret avtalte er da begrenset etter avhendingsloven § 3-9, første ledd andre setning.
Avhendingsloven § 3-3 andre ledd fravikes, og hvorvidt boligens arealsvikt utgjør en mangel vurderes etter avhendingsloven § 3-8.
Informasjon om kjøpers undersøkelsesplikt, herunder oppfordringen om å undersøke eiendommen nøye, gjelder også for kjøpere som ikke anses som forbrukere.
Det forutsettes at hjemmel overføres til kjøper. Hvis kjøper ikke ønsker hjemmelsoverføring av eiendommen, må det tas forbehold om dette i budet.
Rett til fritt å velge megler
Valg av eiendomsmeglingsforetak skal være frivillig. Eiendomsmeglingsforetak kan ikke inngå oppdrag om eiendomsmegling dersom inngåelsen av oppdraget er satt som vilkår i avtale om annet enn eiendomsmegling, f.eks. tilbud om lån eller andre banktjenester, jf. Lov om eiendomsmegling § 6-3 (3)
Meglers vederlag
Vi er opptatt av verdiskapning, og har knyttet til oss samarbeidspartnere som skal sikre våre kunder de beste produkter og tjenester;
• I forbindelse med forberedelse av salget, innhenter vi informasjon om eiendommen hovedsakelig fra vår samarbeidspartner Amibita.
• Gjensidige leverer boligselgerforsikring og tilbyr bygningsforsikring
• Boligkjøperforsikring leveres av Hiscox og med Sedgwick som skadebehandler, og er formidlet gjennom Gjensidige.
• BN bank tilbyr finansieringsløsninger
• Vår avdeling Krogsveen Pluss tilbyr flyttetjenester som utvask, visningsvask, lager, tømming og transport av flyttelass, i tillegg til å formidle kontakt med Flip for overflateoppussing.
• I forbindelse med overtagelse av eiendommen tilbyr Overo avtale om strøm, alarm og bredbånd.
• Krogsveen er, sammen med øvrige bransjeaktører, medeier i Bomega AS som tilbyr den digitale annonseringsplattformen Hjem.
Opplysninger om oppdraget
Oppdragsnummer 32-0015/26
Eiendomsmegler Krogsveen AS, avd. Hovden
Setesdalsvegen 4275, 4755, HOVDEN I SETESDAL
950 007 613
Oppdragets KR-kode KR32.2615
Dato
Sist oppdatert: 01. april 2026 kl. 20:45
Dokumenter
Dokumenter
PDF – 1000 KB
PDF – 312 KB
PDF – 29 KB
PDF – 127 KB
PDF – 392 KB
Område
Legg til steder som er viktige for deg
Visning
Det er ingen planlagte visninger. Meld deg på for å avtale en tid som passer.
Lurer du på noe?
Vurderer du utleie?
Få et tilbud fra Utleie KrogsveenHva koster lånet?
Sjekk estimert lånekostnadVil du varsles om lignende boliger?
Ved å lagre ditt boligsøk hos oss får du beskjed når vi har en bolig som ligner denne, før den legges ut på markedet!

