Binneveien 9
11 800 000 kr
128 m²
2 soverom
Solgt

Idyll på Slemdal
Attraktiv 1/2 part tomannsbolig (2. etg) m/carport og solrik hage innerst i blindvei i barnevennlige omgivelser.
Prisantydning
11 800 000 krOmkostninger
306 040 krTotalpris
12 106 040 kr
Pris
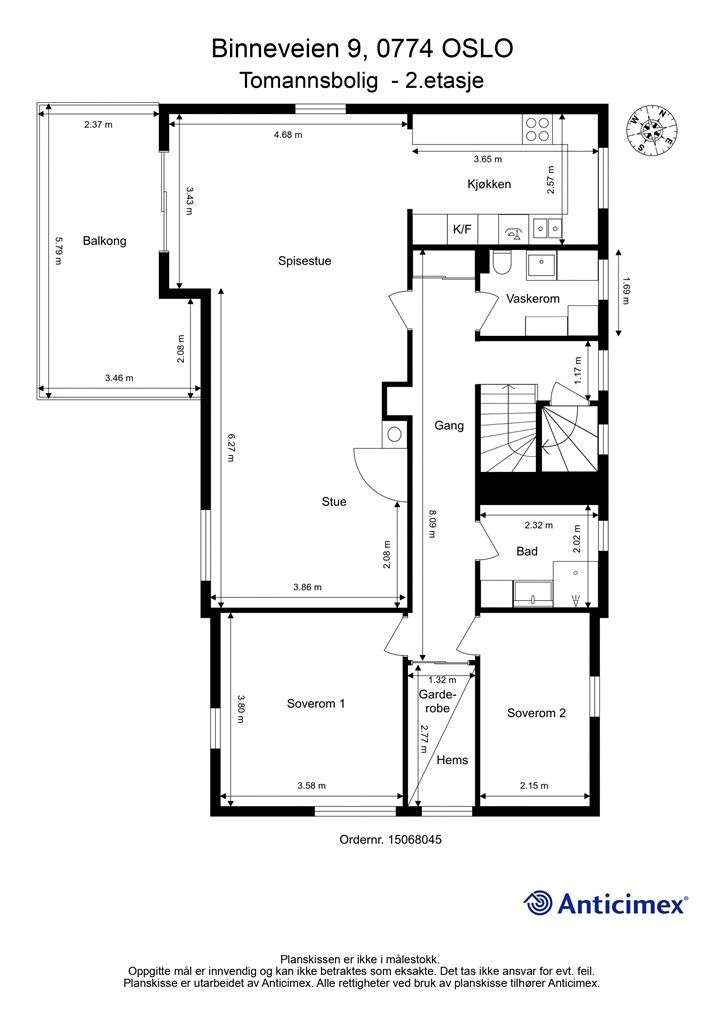
Bruksareal
133 m²BRA-I (internt bruksareal)
128 m²BRA-E (eksternt bruksareal)
5 m²TBA (terrasse-balkongareal)
16 m²
Areal
Etasje
3Byggeår
1952Soverom
2 soveromBad
2 badType
Halvpart horisontaldelt boligEierform
EierseksjonFasiliteter
Garasje/P-plass og Balkong/TerrasseEnergimerke
Rød G
Nøkkelinfo
Unngå doble boligrenter
Vi tilbyr gunstig forsikring.
Vurderer du utleie?
Få et tilbud fra Utleie KrogsveenHva koster lånet?
Sjekk estimert lånekostnadBeskrivelse
Kort om eiendommen
Velkommen til Binneveien 9, en attraktiv halvpart av tomannsbolig med peis, balkong og hage. Boligen har ettertraktet beliggenhet midt i mellom Slemdal og Holmendammen/Gressbanen nær både skoler, barnehager og offentlig kommunikasjon. Denne hyggelige boligen har familievennlig og innholdsrik planløsning med egen inngang via skifertrapp til gang/hall med garderobe i 1. etasje, stue med peis, spisestue, kjøkken, to soverom, bad og vaskerom i 2. etasje og to innredede loftsrom og trapperom i loftsetasjen.
Boligen disponerer romslig andel av stor og solrik hage samt parkeringsplass i carport og på gårdsplass. Boligen er velholdt og ble påbygget og betydelig oppgradert i 1997. Utvendig ble taket lagt nytt i 2017 og kledning malt. Dette er en super familiebolig med mange muligheter!
Område
Legg til steder som er viktige for deg
På flyttefot? Tenk kjøp og salg samtidig.
Få din egen rådgiver gjennom hele kjøps- og salgsprosessen. Det starter med en verdivurdering.
Unngå doble boligrenter
Vi tilbyr gunstig forsikring.
Vurderer du utleie?
Få et tilbud fra Utleie KrogsveenHva koster lånet?
Sjekk estimert lånekostnadVil du varsles om lignende boliger?
Ved å lagre ditt boligsøk hos oss får du beskjed når vi har en bolig som ligner denne, før den legges ut på markedet!

