Teksleåsen 53D
2 690 000 kr
77 m²
2 soverom
Solgt

Teksleåsen/Dåpaløkka
BUD INNKOMMET - Gjennomgående stilfull og moderne ende/hjørne leilighet med fin beliggenhet - Barnevennlig boområde - Stor terrasse
Prisantydning
2 690 000 krAndel fellesgjeld
411 225 krOmkostninger
11 040 krTotalpris
3 112 265 kr
Pris
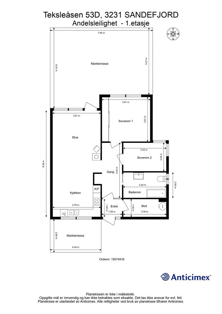
Bruksareal
82 m²BRA-I (internt bruksareal)
77 m²BRA-E (eksternt bruksareal)
5 m²TBA (terrasse-balkongareal)
57 m²
Areal
Etasje
1Byggeår
1991Soverom
2 soveromBad
1 badType
AndelsleilighetEierform
AndelFasiliteter
Balkong/TerrasseFellesutgifter
5 543 krEnergimerke
Oransje E
Nøkkelinfo
Unngå doble boligrenter
Vi tilbyr gunstig forsikring.
Vurderer du utleie?
Få et tilbud fra Utleie KrogsveenHva koster lånet?
Sjekk estimert lånekostnadBeskrivelse
Kort om eiendommen
Velkommen til Teksleåsen!
Leiligheten har en særdeles fin beliggenhet på feltet, og like ved utgangsdøren finner en fotballbane, tennisbane og flere lekeplasser. Her kan en trygt slippe ungene ut for lek og moro i trygge og rolige omgivelser.
Fra utgangsdøren er gangveien kort til Meny Åsane, samt Granholmen badestrand.
Boligen holder en meget fin standard, og samtlige rom fremstår som moderne og tidsriktig innredet med en gjennomgående fin stil. Her kan en flytte rett inn!
Teksleåsen 53 D er praktisk innredet med alt på en flate, og har en meget romslig og usjenert terrasse der det er plass til hele familien på grilling og sommerhygge. Leiligheten har også en koselig terrasse ved inngangsparti.
Stuen kan trygt kalles for romslig, og det er godt med lysinnslipp fra flere vinduer.
Område
Legg til steder som er viktige for deg
På flyttefot? Tenk kjøp og salg samtidig.
Få din egen rådgiver gjennom hele kjøps- og salgsprosessen. Det starter med en verdivurdering.
Unngå doble boligrenter
Vi tilbyr gunstig forsikring.
Vurderer du utleie?
Få et tilbud fra Utleie KrogsveenHva koster lånet?
Sjekk estimert lånekostnadVil du varsles om lignende boliger?
Ved å lagre ditt boligsøk hos oss får du beskjed når vi har en bolig som ligner denne, før den legges ut på markedet!

